устройство, требования к установке и высоте
Согласно нормативным документам, работы по подключению газоиспользующего оборудования к магистрали и первому запуску должна выполнять специализированная служба. Зато построить дымоход для газового котла вам никто не запрещает своими руками, главное, чтобы он соответствовал требованиям правил. Иначе контролеры управляющей компании не разрешат пользоваться отопительным агрегатом и опломбируют кран газопровода, пока нарушения не будут устранены. Отсюда и цель нашей публикации – рассказать, как правильно сделать дымоходную трубу в частном доме.
Способы отвода продуктов горения
В зависимости от конструкции теплогенератора дымовые газы выбрасываются наружу двумя способами:
- Из напольных и настенных котлов с открытой камерой сжигания дым направляется в вертикальный канал нужной высоты, обеспечивающей появление естественной тяги. Проще говоря, это традиционные дымовые трубы, поднимающиеся над крышами зданий, как показано на фото.

- Турбированные котельные установки с закрытой камерой сгорания оснащаются короткими коаксиальными дымоходами, прокладываемыми горизонтально сквозь ближайшую стену.
Примечание. По желанию домовладельца газоход наддувного котла можно установить и вертикально, выведя через кровлю.
Принцип работы традиционного дымохода хорошо всем известен: за счет перепада давлений между верхом и низом вертикального канала, а также разницы температур продуктов горения и окружающего воздуха, в нем возникает естественная тяга. Она благополучно уносит дым на улицу.
Коаксиальная двустенная труба для газового котла с закрытой камерой сгорания служит одновременно воздушным и дымовым каналом, полностью изолирующим агрегат от помещений частного дома. По внутренней трубе дымохода газы идут на улицу, а в пространстве между стенками навстречу им движется воздушный поток. Работа системы обеспечивается за счет принудительного давления, создаваемого турбиной (вентилятором).
Требования к дымоотводам газовых агрегатов
Котлы отопления, сжигающие природный и сжиженный газ, относятся к установкам с высокой эффективностью, чей КПД равен 88% и более. На практике это значит, что температура продуктов сжигания колеблется в пределах 70—120 °С что способствует образованию конденсата на стенках неутепленных газоходов. Отсюда правило первое: участки вертикальных каналов, находящиеся вне здания либо проходящие сквозь холодные чердаки, подлежат обязательному утеплению.
Справка. В дымоходах газовых котельных установок конденсат появляется всегда. Дело в том, что в результате горения метана, пропана и других углеводородов образуется водяной пар, который выпадает каплями влаги на внутренних стенках. Если их не утеплить, конденсат станет прихватывать мороз, а через некоторое время сечение газохода перекроется льдом.
Кирпичные оголовки — и те необходимо утеплять
Остальные требования к устройству дымоотводов звучат следующим образом:
- Размеры сечения канала или шахты определяются расчетом, но не должны быть меньше диаметра выходного патрубка газового котла.

- При строительстве дымохода допускается применять морозостойкий глиняный кирпич, асбестоцементные трубы и другие негорючие материалы – сталь, жаростойкий бетон, керамику.
- Пористые стройматериалы использовать запрещается.
- В нижней части вертикального газохода надо предусмотреть карман с ревизионной дверцей, служащий сборником конденсата.
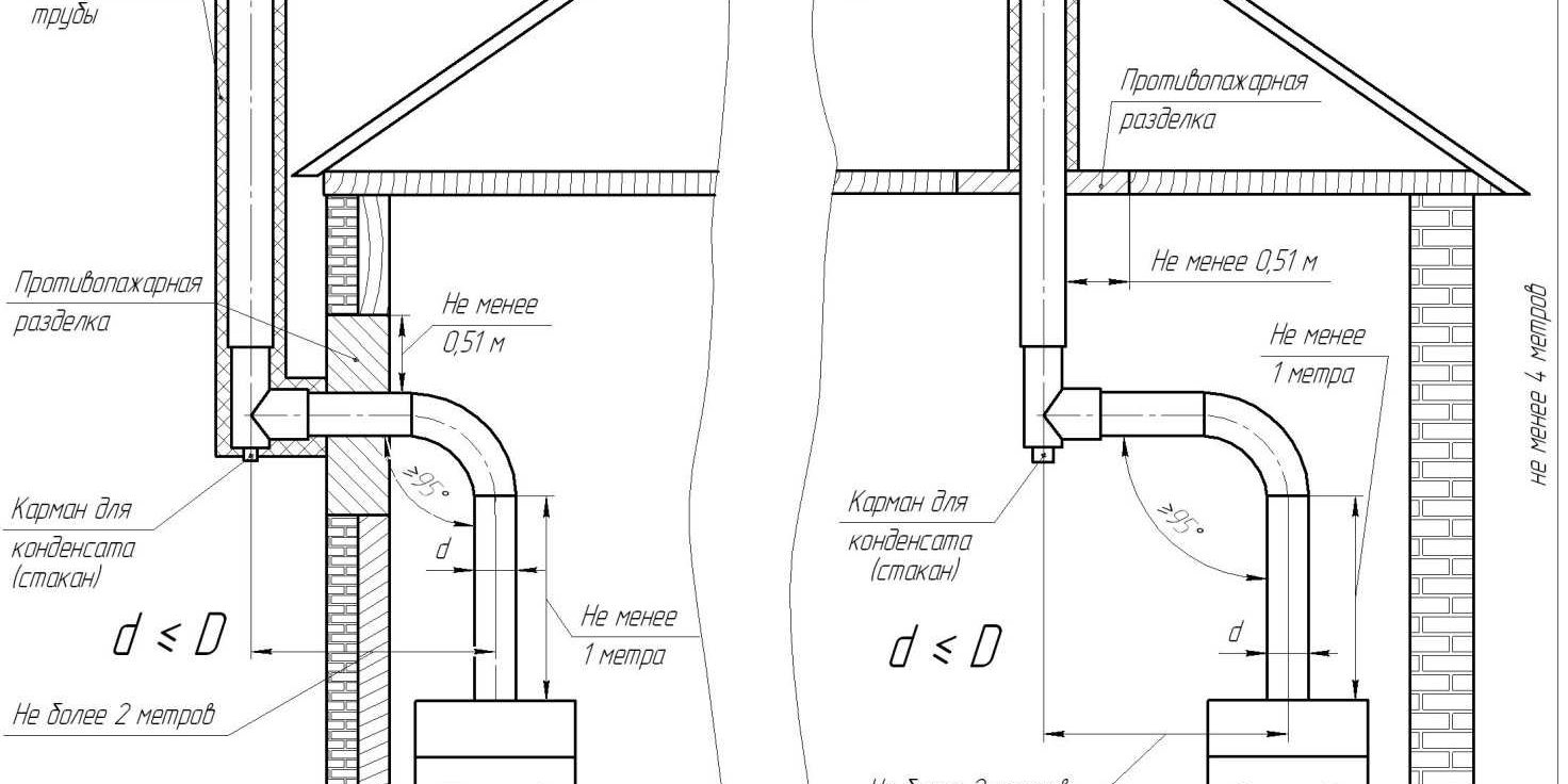
- Дымоходы для газовых котлов разрешается устраивать внутри кирпичных стен и прокладывать рядом с вентиляционными шахтами, разделив их герметичной перегородкой 12 см в толщину. При выводе на кровлю дымовая и вытяжная труба делается на одном уровне.
- Оголовок газохода не должен попасть в зону ветрового подпора, создаваемую коньком крыши, соседним зданием или деревом. Как определить требуемую высоту, изображено на схеме (минимальная равна 5 м).
Совет. Перед закупкой материалов и монтажом лучше составить проект будущего дымохода, проконсультировавшись со знающими печниками. Так вы обезопасите себя от ошибок и дорогостоящих переделок, о чем подробно рассказывается в видео от эксперта:
Дымоотводы из стальных труб дозволяется выводить на кровлю прямо через перекрытия, но с одним условием: канал не должен проходить через жилую комнату. Второй и более дешевый по цене вариант – это приставной газоход, монтируемый на внешней стене здания.
Несколько слов о том, как правильно сделать отведение продуктов горения от нескольких источников тепла, например, котла, дровяной печки и газовой колонки. Если вопрос решается на этапе строительства, то нормы требуют установки обособленного канала для каждой единицы оборудования. Их можно объединить в один блок с вытяжной трубой вентиляции. В существующем здании газоиспользующие установки допускается подключать к одному дымоотводу, соблюдая расстояние между врезками, как предписывает схема:
Виды современных дымоходов
На данный момент в частных домах применяется 3 разновидности дымовых каналов под естественную тягу:
- кирпичные со вставкой из нержавейки;
- керамические;
- двустенные утепленные трубы типа сэндвич, изображенные на схеме.

Примечание. Различные коаксиальные системы для газовых турбированных котлов делаются из нержавеющей стали и практически не отличаются друг от друга по конструкции.
Мы не включили в перечень недорогие асбестовые трубы, поскольку их сложно отнести к современным. Кстати сказать, СНиП допускает их установку лишь в одноэтажных зданиях, причем утепление наружной части обязательно. Учитывая вес асбестоцемента и неудобство монтажа, экономия выйдет призрачной. Проще изготовить сэндвич своими руками, обернув нержавейку базальтовым волокном и кожухом из оцинкованной кровельной стали.
Дымовые трубы из чистого кирпича тоже уходят в прошлое. Если вы хотите сделать надежный и долговечный дымоход внутри кирпичной стены, то лучше воспользуйтесь одним из двух вариантов:
- Вставить внутрь кирпичной шахты нержавеющую трубу с толщиной стенки не менее 1 мм.

- В процессе постройки заложить в стену специальные блоки с утепленными базальтовым волокном керамическими втулками.
Вариант с металлической вставкой дешевле комплекта керамики, но проигрывает в надежности. Опять же, гораздо проще купить и смонтировать модульный сэндвич, чем возводить кирпичную кладку и вставлять туда гильзу. Процесс сборки газохода из двустенных труб рассмотрен в этом руководстве. Есть и другая трудность: сечение шахты, привязанное к размеру кирпичей, не всегда совпадает с наружным диаметром патрубка на котле. Уменьшать проем нельзя, только увеличивать, что не всегда возможно.
Керамические дымоходные элементы
О правилах монтажа
Чтобы построить правильный дымоход, нужно не только соблюсти общие требования, но и придерживаться конкретных правил, регламентирующих его прокладку:
· подключение газоиспользующего оборудования к дымоходной системе производится стальной трубой или гофрой таким образом, чтобы на выходе получился вертикальный участок длиной не меньше 15 см;
- расстояние от этого соединителя до несгораемых конструкций – 50 мм, до горючих – минимум 250 мм
- максимальная длина горизонтального участка, прокладываемого с уклоном 0,01 в сторону котла, составляет 3 м;
- число поворотов на всем протяжении газохода – не более трех;
- допускается отклонение от вертикали до 30° на расстояние до 1 м без уменьшения сечения канала;
- минимальная глубина кармана с ревизионной дверцей – 25 см;
- дымоотводный патрубок теплогенератора необходимо оснастить шибером;
- при пересечении перекрытий из горючих материалов керамической трубой или сэндвичем надо выдержать расстояние 380 мм от внутренней стенки до деревянной конструкции;
- колпаки или зонтики на дымоходы от газовых котлов не ставятся, дабы избежать обледенения и угара в помещениях.

Примечание. Шиберная заслонка не должна закрываться наглухо. Минимальный диаметр отверстия – 5 см.
Невзирая на впечатляющий список требований, выдержать их не так уж трудно. Дымоходные каналы внутри стен выкладываются в процессе строительства, когда у вас есть на руках проект и возможность в любой момент исправить огрехи. Если частный дом уже построен, организовать отвод продуктов горения сподручнее дымоходами сэндвич, надо только решить, прокладывать трубу внутри или вынести за пределы здания. Второй вариант наиболее предпочтителен при условии, что котел расположен неподалеку от внешней стены.
Что касается монтажа коаксиальных труб, то к нему предъявляются такие же требования. Горизонтальный участок не должен быть длиннее 3 м, а расстояние до сгораемых конструкций – 25 см. Чтобы при сильных морозах конец газохода не обледеневал от конденсата, внутренний канал необходимо выпустить на 5—10 см дальше наружного.
Заключение
Если работы по устройству дымохода вы решили целиком взять в свои руки, то связываться с кирпичной кладкой не стоит, лучше подсоединить к газовому котлу трубы — сэндвич. Рекомендация актуальна в тех случаях, когда жилище давно построено и что-либо изменить внутри нереально. Действуйте по проверенной схеме: монтируйте дымоотвод на стену дома и подключайте к теплогенератору горизонтальным участком.
Кирпичный дымоход для газового котла
Вступление
Кирпичный дымоход для газового котла понятие условное. Сам по себе кирпич неприемлем для газового канала. Конденсат, который характерен для дымохода, быстро разрушает кирпич. В доме кирпичный дымоход набирает влагу, которая передается на примыкающие стены. Кирпичный оголовок дымохода со временем просто рассыпается.
Кирпичный дымоход для газового котла — особенности
Для решения проблемы непрочности кирпича и его разрушение от влаги конденсата есть простой способ.
Кирпичный дымоход должен быть загильзован. То есть внутри кирпичной кладки дымохода, сам дымоход нужно сделать в металлической трубе. Причем трубу нужно взять из нержавейки.
Часто в качестве альтернативы трубе из нержавеющей стали выбирают асбестовую трубу, металлическую трубу, стальную оцинкованную трубу, трубы из фуранфлекса, но все они имеют недостатки, которые не стоит скрывать кирпичной кладкой.
Недостатки дымоходов
Асбестовый дымоход
Асбестовый дымоход стоит недорого, однако:
- Его трудно подключить к котлу, Нужен люк для прочистки и отводчик конденсата, что в асбестовой трубе сделать проблематично.
- Дымоход из асбеста тяжело монтировать из-за большого веса;
- Стыки труб в дымоходе трудно сделать герметичными;
- И последнее, асбест хорошо впитывает конденсат, а при повышенных температурах, часто асбестовые трубы лопаются.
Стальные и стальные оцинкованные трубы
Стальная труба и стальная оцинкованная труба, «запертая» в кирпичную кладку быстро ржавеет от конденсата, что значительно уменьшает срок службы дымохода (стальная труба — 2-3 года/ оцинкованная труба 3-4 года).
Фуранфлекс достаточно новый материал и еще не так популярен для гильз дымохода в кирпичной кладке.
Поэтому в кирпичный дымоход закладываются гильзы из нержавеющей стали в качестве фактического дымохода. Вне кирпичной кладки дымоход из труб нержавеющий стали делают в виде сэндвичей (одна труба в другой).
Выводы статьи
- Дымоход для газового котла из кирпича нежелателен;
- При желании сделать кирпичный дымоход, из кирпича делают лишь шахту дымохода, закладывая дымоход из труб из нержавеющей стали.
- Уклон вертикального дымохода не более 30° на 1 метр;
- К котлу дымоход подключается через тройник с карманом 25 см, люком для прочистки и отводчиком конденсата.
©Obotoplenii.ru
Другие статьи раздела: Газификация дома
Кирпичный дымоход для газового котла: кладка своими руками
Кирпичные дымовые трубы очень красиво смотрятся
Благодаря отличным эксплуатационным качествам и высокой эффективности, котлы, работающие на природном газе, получают все большее распространение.
При монтаже такого оборудования необходимо обеспечить отвод продуктов сгорания. Кирпичный дымоход для газового котла один из вариантов. Рассмотрим особенности его конструкции и требования, предъявляемые к нему работниками газовой службы и пожарного надзора.
Также в помощь вам видео в этой статье:
Чем отличается дымоход газового котла от котла твердотопливного
Газовый котелКотел на твердом топливе
Основная задача любого дымохода — отвести отработанные газы и поддержать тягу необходимую для поступления воздуха в зону горения. При сгорании как твердого топлива, так и газа, образуются в основной массе двуокись углерода (углекислый газ) и пары воды.
Также в дыму присутствую другие примеси (чаще всего вредные) и частицы несгоревшего топлива (сажа). Но все-таки к дымоходам для газовых котлов предъявляются особые требования. Расскажем почему.
Безопасность
Не самые худшие последствия от взрыва газового котла из-за дымохода
При правильно отрегулированной горелке наличие примесей в уходящих газах минимально. Поэтому дымоходы газового котла загрязняются меньше. Но осматривать и чистить их нужно гораздо чаще. Дело в том, что отсутствие тяги может привести к более тяжелым последствиям, чем у твердотопливных котлов.
- Неполное сгорание топлива приводит к образованию ядовитого угарного газа. Изменение настроек горелки может произойти и из-за уменьшения тяги. Причем в отличие от твердотопливного котла это трудно заметить. Дым от газа чистый и незаметный, запаха гари в помещении может и не быть.
- Погасание пламени может вызвать накопление газа в помещении и последующему взрыву (особенно при неисправной или отключенной автоматике безопасности). Во многих моделях котлов проконтролировать отсутствие пламени можно только индикаторам, сам горелка чаще спрятана внутри кожуха.
Поэтому дымоход для газового котла из кирпича должен иметь конструкцию, которая позволяет легко проводить их осмотр и очистку. Также к дымоходам газовых котлов предъявляют и особые требования по пожаробезопасности. Причина та же — возможное накопление газа в помещениях.
Если перегрет кирпичный дымоход для твердотопливного котла или через его дефекты проникли искры, в обычном помещении могут загореться обстановка и строительные конструкции, то в случае наличия газа слово «могут» неприменимо. Вероятность пожара или взрыва возрастает в десятки раз.
Особые условия работы
Еще одна особенность дымоходов газовых котлов — возможное образование конденсата на поверхностях. При сгорании обычного топлива водяных паров образуется меньше, а температура на срезе дымовой трубы выше точки росы. Для газового оборудования это условие соблюдается не всегда.
Сосульки на срезе трубы из-за конденсата
Отметим, что некоторые модели котлов предполагают специальное снижение температуры отходящих газов (например, Vitocond). Таким способом повышается использование тепла от сгорания топлива.
Если вы видите в рекламе что коэффициент полезного действия больше 100 % (что противоречит законам термодинамики) то, скорее всего, имеете дело именно с такой конструкцией.
Нереальная цифра связана с применением методики расчета КПД, в которой не учитывается пониженная температура дымовых газов.
Конденсат вызывает накопление влаги в материалах, из которых сделаны дымоходы, что приводит к их разрушению. Части трубы находящиеся вне помещения разрушаются зимой еще быстрее — вода замерзает, лед вызывает трещины.
Второй неприятный фактор, связанный с конденсатом — разрушение материалов от химических веществ. Углекислый газ растворяется в воде, образуя слабую, но все же кислоту. При повышенном содержании серы в сжигаемом газе образуется уже более агрессивная среда (про действие серной кислоты знают все).
Серная кислота содержится в конденсате
Поэтому дымовые трубы для газовых котлов должны иметь устройства для отвода конденсата. Материалы для устройства трубы должны быть устойчивыми не только к повышенной температуре, но и к воздействию влажности и агрессивных веществ.
Кирпич может работать в таких условиях недолго, поэтому часто дымоход газового котла имеет внутри стальную или керамическую гильзу.
Допустимый вариант — оштукатуренный специальными смесями кирпич.
Дымоход кирпичный для газового котла с внутренними гильзами
Теперь остановимся подробнее, что нужно учесть при строительстве кирпичного дымохода для газового котла, чтобы он был безопасным и долговечным, а при приемке соответствующими службами не возникало вопросов.
Сечение дымохода
Дымоход газового котла должен обеспечивать полный отвод продуктов сгорания. Поэтому площадь его поперечного сечения оговаривается в инструкции котла. Если такой информации нет, то следует брать исходя из нормы не более 5,2 квадратных сантиметров на киловатт мощности. Больше можно, меньше нельзя.
Совет. Можно также ориентировать по площади выхода котла, оно не может быть меньше допустимого.
Геометрическая форма выбирается такой, чтобы площадь контакта конструкции с газами была минимальной. В идеале круг, но по технологическим причинам для кирпича чаще выбирают прямоугольник. Также часто применяю вариант, когда вокруг круглой гильзы возводят кирпичную прямоугольную коробку.
Это уменьшение площади контакта с газами нужно по двум причинам:
- Уменьшается теплоотдача от дыма к конструкции. Труба нагревается меньше, следовательно, она более безопасна в пожарном плане. Также, чем больше температура дымовых газов, тем меньше в них образуется конденсата.
- Улучшается тяга. Хотя сопротивление потоку из-за образования завихрений у стенок минимально, но и эта небольшая величина важна.
Кроме того для сечения трубы существуют еще два ограничения:
- Не допускается расширение и сужение трубы на всей ее протяженности;
- Если труба прямоугольного сечения, то соотношение сторон не более одного к двум.
Толщина стенок
Как уже говорилось выше, устройство дымохода из кирпича для газового котла должно быть таким, чтобы теплопередача через стенки была минимальной. Керамика сама по себе имеет неплохие теплоизоляционные свойства, как показывает практика (даже не прибегая к расчетам), кладки в полтора-два кирпича достаточно.
Но учтите, при проходе через сгораемые конструкции толщина должна увеличиваться. Об этом чуть ниже.
Форма дымохода
Форма дымоходов газового котла
Для того чтобы устройство кирпичного дымохода для газового котла минимально создавало сопротивление потоку газов он должен иметь минимальное количество изгибов. Для котлов без устройств принудительного наддува воздуха или дымососов (исключая канал через который котел присоединяется к дымоходу), труба вообще должна быть строго вертикальна.
Перечислим все требования к форме дымохода:
- Количество изгибов не больше трех.
- Отклонение от оси не разрешается более чем на один метр.
- Уклон не должен быть более 30 градусов.
- Не допускаются уклоны вниз.
- Диаметр закруглений должен быть больше диаметра трубы.
Все эти требования понятны — поток газов должен двигаться исключительно вверх, устройство дымохода для газового котла из кирпича не допускает участки со снижением.
Высота дымохода
Высота дымохода над коньком
Чем больше она будет, тем лучше тяга дымохода. Конечно, для частного дома строить вариант заводской трубы не стоит, особенно если котел с наддувом или дымососом. Правила требуют, чтобы труба была выше кровли на 1 метр.
Если крыша скатная, то вот инструкция по подбору минимальной высоты:
- если труба ближе полтора метра к коньку — то 0,5 метра;
- если труба дальше, но не более чем на три метра — можно делать вровень с коньком;
- при большем расстоянии разрешается снижать трубу до такой высоты чтобы ее верхняя точка составляла с коньком угол к горизонтали не более 10 градусов.
Подключение других отопительных приборов к трубе газового котла
Несколько дымоходов под одной облицовкой
Дымоходы из кирпича для твердотопливных котлов позволяют одновременное подключение к себе нескольких отопительных устройств (котла, камина, печи). Для газовых котлов такой подход недопустим.
Даже если хватает сечения дымохода, это запрещено в связи с тем, что через канал дымового хода возможно проникновение газа в другие помещения.
Если не хотите украшать крышу несколькими трубами, то просто сблокируйте их в одной общей облицовке.
Поверхность внутренних стенок
Такая поверхность внутренних стенок котла недопустима
Для того чтобы исключить налипание сажи и опять же улучшить условия удаления дыма поверхность внутри дымохода должна быть максимально гладкой. Поэтому состав для оштукатуривания труб без гильз не должен иметь крупных заполнителей. Затирать свежеуложенную на поверхность смесь следует максимально качественно.
Проход через перекрытия и кровлю
Тут устройство дымохода для газовых котлов из кирпича подчиняется тем же требованиям, что и к обычным дымовым трубам.
Порядовка разделки дымохода
- При проходе через перекрытие из сгораемых материалов должна быть обеспечена разделка (утолщение внешнего размера трубы) на расстояние не менее 250 мм. Допускается уменьшить этот размер до 150 мм, если использовать тепловую защиту из асбеста и стали.
- При проходе через несгораемые перекрытия должен быть обеспечен зазор не менее 100 мм.

- На выходе дымохода через кровлю из листовых материалов, в месте прохода трубы делается фартук из жести или подобного материала, отстоящий от ее периметра не менее чем на 100 мм для несгораемых кровельных покрытий (асбестоволокнистые листы, черепица и т. п.) и 250 мм для горючих (ондулин, мягкие покрытия на основе битума). Также не менее 25 см должно быть расстояние до деревянных элементов стропильной конструкции и обрешетки.
На оголовке дымохода желательно устанавливать дефлектор. Он обеспечит увеличение тяги и защитит канал трубы от влаги и попадания посторонних предметов.
Совет. Дефлектор или козырек дополнительно нужен еще и потому, что почему-то птицы не только привыкли отдыхать на оголовках труб, но и засорять их своим пометом. Часто причиной уменьшения тяги трубы является уставшая, отравившаяся ворона или голубь, упавшие внутрь, и естественно не способные выбраться.
Даже самодельный козырек спасает от засора
Дополнительные устройства на дымоходе для газового котла
Итак:
- Для осмотра внутренней поверхности дымохода и его очистки необходимо предусмотреть герметично закрывающиеся люки ревизии.
Они располагаются на вертикальных и горизонтальных участках и должны иметь размер не менее 250 мм. Если есть гильза промышленного изготовления, то ревизия, как на фото ниже, будет являться ее фитингом, который можно приобрести в комплекте
Гильза из нержавейки с ревизией
- Внизу вертикальных участков предусматриваются карманы для сбора сажи. Они тоже должны иметь люки для чистки (можно совместить с ревизиями).
- Устройство газового дымохода из кирпича должно включать для отвода конденсата внизу на вертикальных участках отверстия — капельники.
Требования к соединениям гильз
Соединение гильз с использованием герметика
Если вы собираетесь устраивать гильзовую трубу, то обратите внимание на требования к гильзам:
- Гильзы выполняются из материалов устойчивых к высоким температурам и агрессивной среде. Наилучший вариант — нержавеющая сталь.
- Соединения гильз не допускается выполнять в местах, где дымоход проходит через стену или перекрытие.

- На стыках детали гильз должны входить друг в друга на величину не меньше диаметра.
- Все стыки должны быть герметичными.
Устройство дымохода
Теперь рассмотрим, как возводится дымоход строения своими руками:
- В первую очередь разрабатываем проект или наброски нашего дымохода. Чтобы не возникало проблем при подключении и приемке котла, лучше сразу согласовать его с компанией, которая будет заниматься установкой, и службами, которые будут его принимать и вводить в строй (газовики и МЧС).
- Вторая стадия — закупка материалов. Просчитайте сразу, сколько всего материала вам понадобится, чтобы не докупать позже. Ведь чем крупнее партия, тем меньше цена.
- Начинаем с заливки фундамента. Он должен быть заглублен не менее чем на полметра. Если труба будет находиться снаружи здания, то нижняя отметка фундамента должна быть ниже глубины промерзания грунта. По габаритам фундамент сантиметров на 10-15 выходит за контур нашей будущей трубы.

- Залив фундамент, укладываем не менее трех слоев гидроизоляции, чтобы исключить проникновение влаги из земли в кладку.
- Первые ряды до места расположения камеры для сажи лучше укладывать на цемент.
- Затем начинаем формировать канал трубы. Устраиваем отвод для слива конденсата, камеру для сбора сажи.
- Устанавливаем люк для чистки трубы.
- Если дымоход предполагается гильзовый то устанавливаем гильзу (камера для сажи входит в ее фитинги). С этого момента лучше перейти на глиняный раствор или мертель.
- Если труба не гильзовая, то одновременно с кладкой проводим оштукатуривание внутренней поверхности.
- Дальше с помощью силиконового герметика соединяем трубы с отводом котла. Стык должен быть герметичным.
- Продолжаем кладку до перекрытия. По ходу выполнения работы наращиваем гильзу и устанавливаем ревизии.
- Затем проделываем отверстие в перекрытии. Стенку трубы в этом месте уширяем и устраиваем теплоизоляцию (в зависимости от материала перекрытия).

- Подходя к кровле здания, снова переходим на цементный раствор.
После выхода на кровлю снова используем цементный раствор
- Кровлю проходим обеспечивая пожарную защиту с помощью металлического фартука соответствующих размеров. Чтобы исключить протекание по поверхности дымохода снова используем герметик.
Выход дымохода через кровлю
- Заканчиваем постройку установкой дефлектора или хотя бы защитного козырька на срез трубы.
Установка дефлектора заканчивает монтаж
Мы постарались раскрыть тему, как возводится дымоход из кирпича для газового котла, и какие требования к нему предъявляются. Будем рады, если наша статья помогла вам. Пусть ваш дом всегда будет теплым и безопасным.
проверка тяги устройства и температуры газов
Газовый котёл считается одним из самых эффективных источников обогрева в доме. Газ стоит дешево, а вырабатывающие с его помощью тепло системы продаются в большинстве магазинов.
Поскольку в ходе работы котла образуются продукты сгорания, необходим канал, по которому они будут удаляться из агрегата.
Роль такого канала играет дымоход, конструкция и расположение которого влияют на эффективность работы газового котла. Существуют разные виды дымоходов и каждый из них имеет свои характерные особенности.
Особенности кирпичного дымохода для газового котла
Кирпичный дымоход для газового котла — это, скорее, вынужденная необходимость, чем желаемый вариант.
Если делать обычную кирпичную трубу, то при неправильной эксплуатации она может скоро разрушиться.
Это связано с тем, что низкая температура дыма из газового котла (120 °C) не нагревает стенки канала в холодную погоду, на них образуется конденсат и материал разрушается.
В зимнее время замёрзший конденсат снижает тягу, что приводит к нарушению работы оборудования.
Поэтому если дымоходный канал делать заново, то лучше выбрать другие материалы и технологии. Но если приходится реставрировать или использовать уже существующий кирпичный канал, нужно его доделать.
Принцип работы
Принцип работы кирпичного варианта повторяет общий принцип функционирования дымоходов. За счёт разницы воздушной температуры внутри и снаружи трубы возникает тяга. Причём тяга тем сильнее, чем выше труба, поэтому важно установить её на правильной высоте.
Конструкционной особенностью варианта из кирпича, особенно если он строится заново, является необходимость фундамента. Когда речь идёт о пристенной наружной трубе, то её основание должно быть армировано металлическими прутьями. Ещё одна особенность кирпичного варианта — необходимость утепления или гильзования.
Фото 1. Несколько кирпичных дымоходов, установленных на крыше, применяются в тех случаях, когда нет возможности поставить другие.
Даже если кирпичная труба сделана в соответствии с требованиями — из шамотного кирпича, с герметичным швом толщиной 1 см, с дефлектором для увеличения тяги — эффективность работы канала будет ниже без утеплителя. При наружном расположении трубы это необходимо сделать по всему её размеру, который, в свою очередь, определяется объёмом камеры сгорания газового котла.
Лучше всего для утепления трубы подходит негорючая базальтовая вата, которую сажают на клей, затем натягивают армирующую сетку, а сверху производится финишная отделка (например, металлопрофилем).
Важно! Даже если кирпичный дымоход идёт через неотапливаемый чердак, он тоже обязательно утепляется.
В случае прокладки дымохода в кирпичной стене необходимо провести его гильзование. Для этого в кирпичный короб вставляется сэндвич-труба или одностенная труба из нержавейки, обёрнутая утеплителем.
Фото 2.
В кирпичный дымоход вставлена труба из нержавеющей стали, для утепления применена герметичная пена.
В отличие от трубы из нержавейки, которая может исправно работать более 20 лет, хорошо сделанная кирпичная труба прослужит без ремонта около 6 лет. Несмотря на этот минус, на оборудование шахты для газового котла потребуется меньше затрат, если в доме уже есть кирпичный канал. Плюс ко всему, если придётся менять котёл, кирпичный дымоход подойдёт для агрегатов с другими видами топлива.
Правильный дымоход из нержавеющей стали
Дымоходный канал из нержавеющей трубы делается значительно быстрее кирпичного. Среди его преимуществ:
- доступность материала;
- длительный срок службы;
- простота установки.
Фото 3. Дымоход из нержавеющей стали в помещении, легко монтируется, имеет большой срок эксплуатации.
Принцип работы и температура газов
Принцип работы сходен с принципом кирпичного варианта. Благодаря естественной тяге продукты горения удаляются из газового котла на улицу через трубу из нержавеющей стали. Лучше всего трубу вывести наружу через внешнюю стену. Добиться необходимой тяги в нержавеющей трубе можно, подняв дымоход на высоту как минимум 6 метров и обеспечив герметичность стыков.
Температура отработанных газов, достигающая 120 °C, оставляет риск появления конденсата, канал нужно утеплить. Для этого нержавейку обкладывают базальтовой ватой, а сверху обшивают кровельной жестью. Получается сэндвич, который лучше всего способствует нормальной работе системы.
На металлической поверхности конденсат появляется быстрее, чем на любой другой.
Поэтому к числу конструктивных особенностей трубы из нержавейки относится располагающийся внизу выведенной наружу сборник конденсата.
Над ним находится секция с ревизией — местом для чистки шахты.
Выше идёт прямая секция сэндвича-дымохода из нержавейки, которая заканчивается колпаком в виде конуса. Если потребуется изменить траекторию трубы из-за архитектурных нюансов здания, необходимо помнить о СНиП. В правилах указано, что:
- протяжённость горизонтального отрезка дымохода перед вертикальной частью не должна превышать в сумме 3 метра;
- шахта может отклониться, чтобы обойти кровельный свес, на 1 м с углом 30° по отношению к оси шахты;
- количество поворотов дымохода не должно превышать трёх, за исключением колен, которые огибают кровельный свес;
- эти и другие требования, как правило, предъявляются инспектором при получении разрешения на подключение котла к газопроводу.
Внимание! При подключении газового котла закрытого типа устанавливается коаксиальный дымоход.
Принцип его работы отличается от дымохода из нержавейки, а монтаж имеет особую схему.
Труба из нержавейки считается одним из наиболее выгодных вариантов дымоходного канала для газовых котлов открытого типа.
Её главным плюсом можно назвать вероятность произвести сборку и установку самостоятельно без существенных затрат на материалы и инструменты.
В силу прочности и герметичности, а также благодаря простоте в утеплении эффективность работы стальной трубы выше.
Среди минусов дымоходов из нержавейки — внешний вид, который может выбиваться из экстерьера здания. Кроме того, в случае замены газа на другой вид топлива, вместе с котлом, скорее всего, придётся менять и трубу.
Вам также будет интересно:
Устройство из керамических труб
Керамический дымоход — выгодное, но дорогостоящее решение для газового котла. Причём если кирпичный канал и трубу из нержавейки можно изготовить самому, то керамический вариант нужно приобретать в заводской комплектации и устанавливать в строгом соответствии с инструкцией.
Характеристики тяги в керамическом дымоходе зависят от тех же условий, что и в других трубах: к котлу должен быть обеспечен приток воздуха, а высота трубы должна быть более 6 м. Температура газов в керамической шахте от газового котла так же, как и в других трубах, достигает 120 °C. При этом можно выбрать вариант, рассчитанный на низкие и высокие температуры. Во втором случае к керамике можно будет подсоединить котлы с разными видами топлива.
Фото 4. Процесс установки дымохода из керамики, выделяет мало конденсата, подходит для разных типов котлов.
Как работает?
Принцип работы керамической шахты заключается в удалении отработанных газов из котла под действием тяги. Благодаря материалу изготовления — керамике, негорючему базальтовому утеплителю и керамическому дымоходному кирпичу удаётся избежать большого выделения конденсата.
При этом срок службы устройства из керамики превосходит все остальные варианты и может достигать 50 лет.
Но такие показатели возможны, если правильно выполнить установку керамической трубы.
Дело в том, что так же, как и кирпичная, она требует фундамента. Кроме того, специалисты рекомендуют располагать керамическую шахту исключительно вертикально.
Единственный горизонтальный участок, который на ней допускается — часть тройника для проводки через стену трубы и подключения газового котла.
Керамическая труба требует регулярного ухода. Поэтому над установленными в самом низу сборнике конденсата и вентиляционной решёткой располагается ревизия (отверстие для чистки). Выше тройника идёт прямая секция, которую на самом верху завершает конус или дефлектор.
Стоит отметить, что керамическая труба представляет не такую опасность при соприкосновении с деревянной стеной дома, как металлическая, потому что нагревается меньше. Но расстояние между ней и трубой в месте её проводки все равно нужно оставлять и прокладывать базальтовой ватой для изоляции.
В этом, как и во многих других случаях, приходится учитывать СНиП.
Плюсы керамического дымохода в его безопасности, длительном сроке службы, готовой для установки комплектации, которая собирается как конструктор. Минусы — в дороговизне, значительной массе, требующей отдельного фундамента, и необходимости монтажа строго в вертикальном положении.
Как проверить тягу?
Чтобы тяга в дымоходном канале способствовала нормальной работе газового котла, необходимо установить трубу на правильную высоту. Если она устанавливается с внешней стороны здания, её высота должна быть не ниже 6 м.
Если дымоход проходит через перекрытия дома, его высота на крыше определяется расстоянием до конька. Так, при промежутке от 1 до 1,5 м. до конька высота трубы над его уровнем должна составлять от 50 см.
При удалении от конька на 1,5–3 м его высота может совпадать с высотой трубы.
На плоской крыше высота дымохода устанавливается на уровне 100 см. Стоит помнить, что на тягу влияет не только высота трубы, но и её теплоизоляция.
Проверить тягу можно разными способами. Например, посмотреть цвет пламени в газовом котле. Если он периодически меняется на красный, это говорит о недостатке кислорода для горения.
Проверить можно и листом тонкой бумаги, поднесённой к отверстию дымохода. Если его засасывает в канал, значит, тяга есть. Хорошую тягу обеспечивает только чистый дымоход. Проверить его проходимость можно с помощью металлического шара, прикреплённого к верёвке. Его нужно спустить из верхней точки шахты в нижнюю. Если он прошёл весь путь, дымоходный канал чист и тяга будет отличной.
Справка! Выбирать удобный способ проверки нужно исходя из того, допускает ли его конструкция канала. При этом проверка тяги листом бумаги годится для всех типов дымоходов.
Наконец, для получения более точных данных о тяге можно использовать специальный прибор — анемометр.
Полезное видео
Посмотрев видео, можно ознакомиться с несколькими схемами для правильной установки дымоходов.
Безопасность
Дымоходный канал не только обеспечивает тягу для процесса горения в газовом котле, но и создаёт безопасные условия для нахождения в помещении, удаляя из него вредные газы. Их наличие — прямой показатель неправильной работы дымохода.
Если в помещении чувствуется запах газа, а также продуктов сгорания, это значит, что горелка потухла или внутрь здания начал попадать дым.
В обоих случаях необходимо срочно остановить работу газового котла, проветрить помещение и провести ремонт дымохода.
Для обнаружения неисправности требуется пошагово проверить все элементы дымоходного канала на их соответствие существующим нормам работы.
Если решить проблему самостоятельно не удаётся, нужно вызвать для ремонта опытного мастера. Он сможет лучше разобраться в проблеме и качественно исправить дымоход для газового котла.
нормы и требования к монтажу, сравнительный обзор видов
Если для отопления в доме выбран газ, следует позаботиться об отводе продуктов горения. Это значит, что нужно выбрать и правильно установить дымоход для газового котла. Соблюдением норм и правил в этом вопросе категорически нельзя пренебрегать, поскольку это может поставить под вопрос не только здоровье, но и жизнь жильцов дома.
Мы готовы поделиться с вами полезными сведениями о правилах монтажа и подключения дымовой трубы для газового агрегата, о специфике подбора оптимальной конструкции. Информацию дополняют наглядные иллюстрации и видео-инструкции.
Содержание статьи:
Зачем вообще нужен дымоход?
Один из самых опасных продуктов, образующихся при практически всех видах горения – угарный газ. Это коварное и очень опасное вещество, вдыхание которого грозит тяжелыми формами отравления.
При работе газового котла в процессе сгорания топлива помимо прочих продуктов горения образуется и угарный газ.
Если дымоход, отводящий продукты горения, установлен неправильно или поврежден, это может привести к отравлению.
На этой схеме изображено устройство дымохода для газового котла и отражено его расположение внутри здания или снаружи
Опасность не стоит недооценивать. Угарный газ (он же монооксид углерода) не имеет запаха и цвета, поэтому отравление может происходить совершенно незаметно для всех, кто находится в доме.
Попадая в организм человека, молекулы угарного газа вступают во взаимодействие с гемоглобином. В результате образуется так называемый карбоксигемоглобин, который препятствует поступлению молекул кислорода в ткани человеческого организма.
Помимо этого, угарный газ может очень плохо отразиться и на других биохимических процессах в организме. Бывали случаи, когда отравление угарным газом обнаруживалось слишком поздно, человека просто не удавалось спасти.
Чтобы избежать подобных проблем, рекомендуется обратить самое пристальное внимание на правильное проектирование и монтаж дымохода, а также на его дальнейшее обслуживание.
Галерея изображений
Фото из
Дымоход газового оборудования
Сертифицированные дымоходные конструкции и элементы
Металлические дымоходные конструкции
Наружная схема устройства дымовой трубы
Прокладка коаксиального дымохода в котельной
Подключение дымоотвода к коллективным каналам
Герметичное соединение дымового канала
Приборы сигнализации о содержании газа в помещении
Подбор материалов для конструкции дымохода
Газы, выводимые через дымоход котла, работающего на этом топливе, имеют небольшую температуру — около 150⁰, поэтому и требования к материалу дымоотвода несколько другие.
При его сгорании образуется пар с примесью углекислого газа — вещества нейтральные, не способствующие возникновению разрушительных процессов, но, кроме них, в продуктах сгорания присутствует и агрессивная серная кислота.
Вид дымохода зависит от того где выполняют монтаж системы отопления. При установке газового котла во вновь строящемся доме дымоход входит в состав проекта.
Устанавливая котел в доме старой постройки, придется кое-что реконструировать
При загородного дома и дымохода для газового котла следует использовать только очень прочные материалы, устойчивые к воздействию множества внешних факторов. Они должны быть огнестойкими, способными контактировать с влагой и кислотами, выделяющимися при сгорании газа и оседающими на стенках дымохода в виде конденсата.
При выборе материала необходимо обратить внимание на такой параметр, как газопроницаемость материала. Он должен быть нулевым. Кроме того, материал должен быть не слишком тяжелым, поскольку такая конструкция создает дополнительную нагрузку на стены и фундамент дома.
Домовладельцы все чаще останавливают выбор на легких трубах из кислотостойкой нержавейки, используют фуранфлекс, защитные рукава, керамические модули.
Галерея изображений
Фото из
Наружная часть дымохода газового котла
Внутренняя часть дымового канала
Трубы из черной стали с полимерным покрытием
Кирпичная труба со стальной гильзой
Керамический дымоходный канал
Подключение стальной трубы к керамической
Асбестоцементная дымоходная труба
Сэндвич-труба для газовых котлов
Дымоходы из нержавеющей стали
Такие конструкции считаются оптимальным выбором.
Они исключительно устойчивы ко многим видам коррозионного воздействия, имеют относительно небольшой вес и обеспечивают отличную тягу. Срок эксплуатации дымохода из стали обычно составляет около 15 лет.
Легкий вес дымоходной конструкции из нержавейки позволяет выполнить монтаж своими силами. Тем более, что установка такого дымохода не слишком сложна, поскольку отдельные элементы конструкции продаются в виде готовых модулей
Оцинкованная сталь с отведением продуктов горения справляется гораздо хуже, чем нержавейка. Влажные и горячие испарения с повышенной кислотностью быстро разрушают этот материал. Оцинкованный дымоход придется заменить уже через пять лет.
Керамические дымоходы
Они отличаются исключительно высоким сроком эксплуатации – они могут прослужить до 30 лет. Особенно популярны и удобны модели европейского производства с внешним контуром из стали.
Технический термин “керамический дымоход” является определением трехслойной системы, внешняя часть которого выполнена оболочкой из керамизитобетона, внутренняя – это керамический канал.
Между оболочкой и каналом проложена минераловатная изоляция
Но у этого варианта есть и ряд серьезных недостатков:
- Высокий вес конструкции, который следует соотнести с несущей способностью фундамента и стен дома.
- Повышенные требования к монтажу. Считается, что для получения максимальной тяги должен быть расположен строго вертикально, а такая конфигурация удобна далеко не везде.
Коаксиальный дымоход
Коаксиальный дымоотвод – выбор высокоэффективный, современный, но дорогостоящий. Конструкция такого дымохода представляет две трубы, вложенные друг в друга. По внутренней трубе отводятся продукты горения, а внешняя предназначена для подведения воздуха.
Схема монтажа коаксиального дымохода в горизонтальном исполнении. Эта конструкция универсальная. Она складывается из нескольких частей вложенных одна в другую. Удерживаются отдельные элементы благодаря наличию специальных перемычек
Поставляется коаксиальный дымоход также в виде модулей, что облегчает его сборку и установку.
Еще одно преимущество — повышенный уровень безопасности. Это, конечно, если в процессе установки соблюдались нормы монтажа коаксиального дымохода и строительные правила.
Коаксиальные дымоходные конструкции обладают высокой эффективностью, безопасны и относительно просты в монтаже. Они подходят для отвода продуктов горения газовых отопительных агрегатов
Кирпичный дымоход
Это не лучший вариант для газового котла. Массивная конструкция обычно не отличается хорошей тягой, весит слишком много, а служит недолго. Чистить такой дымоход нужно часто, на его поверхности скапливается много конденсата, поэтому срок его эксплуатации при использовании с газовым оборудованием невелик.
Канал из кирпича опасен еще и тем, что из-за неровности внутренних стенок при низкой наружной температуре может проявиться эффект или образоваться водяная пробка, что приведет к прекращению процесса горения.
При обустройстве кирпичного дымохода рекомендуется выполнить его гильзование: внутрь корпуса из кирпичной кладки вставляется специальный стальной вкладыш-гильза, гладкие стенки которого способствуют отводу продуктов горения и препятствуют накоплению отложений
Но если в доме уже имеется старый дымоход из кирпича, его вполне можно использовать.
Внутрь конструкции вставляют специальный вкладыш из нержавеющей стали, а кирпичная кладка становится защитным футляром. Разумеется, диаметр вкладыша и его конфигурация должны соответствовать нормам, описанным выше.
Дымоходы из асбоцементных труб
Такие конструкции встречаются достаточно редко. Их вытесняют более эффективные материалы. Если купить сравнительно недорогую асбоцементную трубу, то монтаж ее усложняется тем, что она имеет большую массу и должна занимать строго вертикальное положение.
Материал гигроскопичен и впитывает конденсат, появляющийся при выходе нагретых газов. Последствием его перегрева может стать взрыв или возгорание
Ввиду своих недостаток обустройство такого варианта строго не рекомендуется. Это бюджетно, конечно, но разве ваше здоровье можно оценить деньгами? Срок эксплуатации асбоцементного дымохода не превышает пяти лет.
Все варианты дымоходов для газового оборудования рекомендовано обустраивать .
Тонкости проектирования дымового канала
При значение имеет все: и его размер, и конфигурация, и сечение, и уклон, и прочие параметры.
При устройстве дымоотвода от газового котла необходимо строго придерживаться требований нормативных документов: СНиП 2.04.05-91 и ДБН В.2.5-20-2001.
Правило #1 — соблюдение норм сечения каналов
Поперечный срез дымоходного канала по площади должен быть не меньше, чем сечение патрубка газового котла, с помощью которого устройство подключают к дымоходу.
При сооружении и подсоединении дымоходов для газовых котлов на всей их протяженности недопустимы сужения канала, искривления и применение неподходящих по сечению модулей.
При одновременном подключении двух устройств к дымоходу следует увеличить сечение с учетом вероятности одновременной работы двух устройств. Т.е. сечение канала должно равняться суммарным размерам патрубков обоих единиц техники.
Правило #2 — обеспечение борьбы с конденсатом
Современные газовые котлы созданы таким образом, чтобы максимальное количество тепла подавалось на теплообменник. Такой высокий КПД способствует получению продуктов горения с относительно невысокой температурой.
В результате на стенках дымохода образуется влага. Повышенное количество конденсата, включающего агрессивные вещества, может оказывать разрушающее воздействие на целостность стен дымоходов.
Для подключения газового котла к дымоходной конструкции используют специальный тройник, на который монтируется устройство для сбора конденсата
В нижней части дымоотвода необходимо присутствие конденсатосборника в виде съемной емкости из пластика или нержавейки. Не запрещен к использованию и стакан из оцинкованной стали, но его придется часто менять.
Для защиты конструкции рекомендуется не только выложить дымоход из кирпича, но и выполнить его гильзование, т.е. вставить внутрь специальную трубу из нержавеющей стали. Такие трубы долговечны и хорошо сопротивляются коррозионному воздействию.
Альтернативным решением для борьбы с конденсатом может стать футерование, т.е. установка специального гибкого дымохода. Для сбора конденсата используют специальную емкость. Ее устанавливают чуть ниже места, где патрубок котла соединяется с дымоходом.
Правило #3 — выбор формы сечения конструкции
Традиционная цилиндрическая форма дымохода считается оптимальной для эффективного удаления продуктов горения. Кроме того, в таком дымоходе легче производить профилактическую очистку.
Вполне допустимыми, хотя и не такими удобными считаются дымоходы с сечением в виде овала. Квадратные конструкции также имеют право на существование, но показатели тяги в них обычно снижены.
Правило #4 — выполнение уклонов, поворотов, уступов
Оптимальным для напольного газового котла считается вертикальный дымоход, не имеющий уступов. На практике добиться такого расположения конструкции удается далеко не всегда.
Отклонение от вертикали допускается не более, чем на 30 градусов. При этом следует убедиться, что размеры сечения наклонного участка соответствует нормативным требованиям.
При этом сама труба, соединяющая дымоход и котел, должна включать строго вертикальный участок высотой от половины метра и более. Разумеется, при необходимости можно некоторые участки дымохода делать горизонтальными, но их не должно быть слишком много.
При установке дымоходной конструкции для газового котла допускается наличие наклонных участков, уклон должен составлять 60° и более градусов относительно горизонта, длина наклонного участка до 1 м
Например, если высота помещения, в котором установлен дымоход, составляет около трех метров, то и суммарная длина горизонтальных отрезков дымохода не должна превышать эти размеры.
Хотя, как упоминалось ранее, чем ближе конструкция дымохода к вертикали, тем лучше. Не допускается, чтобы уклон дымоходной трубы в сторону котла был более 0,1 градуса. Что касается поворотов дымоходной конструкции, то их максимальное количество составляет три поворота, не более.
Правило #5 — корректное соединение труб
Для соединения отдельных частей дымоходной конструкции используют специальные хомуты. Уклон колена дымоходной конструкции может составлять 15-90 градусов. Между соединительными трубами и остальными поверхностями должно сохраняться определенное расстояние.
Оно зависит от того, какими материалами эти поверхности покрыты.
В местах, где используются горючие или даже трудносгораемые материалы, рекомендуется выдерживать расстояние не менее 25 см.
Расстояние от поверхностей, покрытых огнестойкими материалами должно быть не менее 5-10 см. Для защиты дымохода от легковоспламеняющихся материалов используют асбокартон, кирпичную кладку и т.п.
При монтаже дымохода для газового котла все его элементы нужно надежно закрепить, выдержав правильный шаг между креплениями
Особое внимание следует уделить местам соединения отдельных отрезков дымоходной конструкции. Они должны быть выполнены из прочных материалов, которые не прогибаются при внешнем воздействии.
Этими же характеристиками должны обладать все элементы крепления дымохода. Горизонтальные или наклонные участки дымохода не должны находиться под нагрузкой.
Элементы дымохода вставляют друг в друга на глубину, которая равна половине диаметра трубы или превышает этот показатель. Никакие зазоры в этих местах недопустимы, соединение должно быть плотным и герметичным.
В случае нарушения герметичности соединения отдельных элементов дымохода угарный газ может незаметно проникать в помещение. Поэтому состояние дымохода следует периодически проверять, а во всех помещениях, где проложены дымоходные трубы, нужно организовать хорошее вентилирование.
Правило #6 — тонкости расположения трубы на крыше
Дымоходные трубы должны возвышаться над коньком кровли на 50 см или более, при этом расстояние от края парапета до дымоходной трубы должно быть не более 150 см. Если ось дымовой трубы расположена на расстоянии 1-1,5 м от конька крыши, то она должна возвышаться над уровнем конька на 50 см или более.
На этой схеме наглядно продемонстрировано, как в соответствии с техническими нормами определяют высоту дымоходной трубы относительно конька крыши, чтобы он не препятствовал формированию тяги
Если же труда находится от конька еще дальше, то ее можно сделать такой же высоты, как и конек. Труба может быть еще ниже, если ее отделяет от конька крыши расстояние более трех метров.
В этом случае нужно провести условную линию вниз от конька под углом 10 градусов к горизонту. Высота дымоходной трубы должна достигать этой отметки. Получается, что чем дальше расположена труба от конька, тем меньше должна быть ее высота относительно конька крыши.
На плоской кровле дымоход отсутствует, поэтому здесь в соответствии с нормативами возводят дымоходную трубу высотой 100 см. На совмещенной кровле высота дымоходной трубы должна составлять около двух метров.
Участок дымохода, расположенный над кровлей и в пределах неотапливаемого чердака, обязательно утепляют, чтобы улучшить тягу и предотвратить появление конденсата. Один из вариантов для такого утепления – базальтовая скорлупа
Наружную часть дымовой трубы следует обязательно утеплить. Если пренебречь этим моментом, на ее поверхности будет скапливаться конденсат. Влага может проникнуть внутрь дымохода, что приведет к развитию коррозионных процессов и повреждению конструкции.
В утеплении нуждается и та часть дымоходной конструкции, которая расположена на наружной стороне дома.
Недостаточное утепление может также снизить эффективность работы дымохода, уменьшить его тягу.
Если нет возможности вывести дымовую трубу через верхнее перекрытие и кровлю, используют . Этот вариант можно вывести через стену, при этом интенсивность отвода продуктов горения голубого топлива ничуть не сокращается.
Правило #7 — соблюдение норм пожаробезопасности
На этапе монтажа дымохода необходимо учесть требования пожбезопасности. При прохождении канала через стены из разных материалов они отличаются:
- если стена из дерева, нужна вокруг него изоляция из огнестойкого материала, а саму трубу следует обернуть асбестом;
- в кирпичной, бетонной стене достаточно изоляции из монтажной пены.
Конструктивное исполнение дымохода должно соответствовать требованиям, изложенным в инструкции, приложенной к котлу.
Дымоходы котлов, перерабатывающих газ в тепловую энергию, преимущественно насадного конструктивного типа. Согласно насадной схеме канал устанавливается непосредственно на плиту перекрытия отопительного агрегата.
Однако допустимо подключение к стеновым дымоходам посредством патрубков длиной не более 40 см.
В случае подключения к стеновому дымоходу между нижней линией патрубка и возгораемым перекрытием должен остаться зазор в 14 см. Между верхней линией патрубка и возгораемым потолком необходимо оставить 50 см, если нет противопожарной защиты, 40 см, если защита есть.
Проход дымохода через возгораемую конструкцию обустраивается с помощью негорючих теплоизоляционных материалов или устройствами типа песочниц
Участок пересечения возгораемого перекрытия оснащается коробом с песком или уплотнением из невозгораемого утеплителя.
Выбор дымохода в зависимости от типа котла
Газовые котлы укомплектовывают одной из двух видов камер сгорания: открытой или закрытой. Внешне отопительные агрегаты ничем не отличаются, но принцип работы у них разный. Выбор конструкции дымохода осуществляется в зависимости от типа камеры сгорания.
Производители поставляют на рынок множество моделей газовых котлов.
При выборе агрегата для обогрева жилья нужно заранее решить, что больше подходит для конкретного дома — горелка открытого или закрытого типа. Незнание этих тонкостей могут создать проблемы при эксплуатации
Местоположение дымохода также необходимо определить заранее. Он может быть как внутренним, так и выносным. В проектах новых домов обычно предусмотрен монтаж дымоходов внутренних. Когда на газовое отопление переводят старые дома, устраивают выносной дымоход.
Дымоход для котла с горелкой открытого типа
Более простое устройство имеет открытая камера. Она состоит из собственно горелки и змеевика, расположенного под ней. Последний состоит из тонких трубок, по которым циркулирует теплоноситель. Работает устройство только тогда, когда присутствует воздух, поэтому горелку называют атмосферной.
Воздух такой котел получает из помещения, где он установлен, хотя есть модели, которые монтируют на стену и проделывают в ней воздухозаборное отверстие.
Настенный котел не шумит во время работы.
Детали, входящие в его конструкцию практически не подвержены износу. Техобслуживание предельно простое — проверка зажигания, но что касается расхода топлива то эти котлы нельзя назвать экономичными
Для хорошей работы котла с открытой камерой нужна труба, выходящая наружу и отличная тяга, возникающая при движении воздуха по дымоотводящему каналу. Агрегат хорошо подходит, когда требуется отопить дом большой площади, расположенный за городской чертой.
Существует 2 варианта решений:
- Максимально прямую трубу, расположенную горизонтально, проводят сквозь стену, а снаружи направляют ее вверх вдоль стены до нужной высоты. Такой вариант дымохода называют наружным.
- От котла трубу тянут вверх. Она должна пройти через перекрытия и выйти над поверхностью кровли. В таком дымоходе допустимо сделать 2 изгиба по 45⁰.
В исполнении проще первый вариант, но потребуется качественное утепление. Это уменьшит количество конденсата, но избавит от него полностью. На выходе обязательно нужен конденсатосборник и тройник.
Применение второго варианта осложняется тем, что дымоход проходит перекрытие и кровельный пирог. Поэтому в этих местах, в соответствии с требованиями пожаробезопасности, потребуется монтаж потолочно-проходных узлов.
Заводской проходной узел. Его устанавливают, предварительно выполнив теплоизоляцию из фольгированной базальтовой ваты, выдерживающей температуру выше 150⁰. Если пренебречь этим требованием, материал спечется и потеряет свои теплоизоляционные свойства
Существуют такие термины, как монтаж дымохода «по дыму» и «по конденсату». Сборку по первому способу осуществляют при устройстве внутреннего дымохода, а по второму — когда возводят наружный дымоход.
В первом случае уже установленный нижний элемент вставляют в верхний, что предотвратит просачивание газов в помещение. Во втором — делают все наоборот.
Сборка дымохода «по конденсату» не даст влаге проникнуть в утепляющий слой, следовательно, предотвратит коррозию трубы. Мастера печного дела советуют собирать дымоход по 3 — комбинированному варианту: «по дыму» горизонтальные участки, а «по конденсату» те, что проходят через чердак или помещения второго этажа, которые не отапливаются
Если труба выведена на жилой 2 этаж, ее нужно привести в эстетичный вид.
Для этого применяют специальные экраны, которые саморезами крепят к полу. Когда дымоход выходит на чердак, никаких дополнительных работ выполнять не требуется.
Дымоходы для турбированных котлов
Котлы с дутьевой горелкой называют турбированными. Это более прогрессивная конструкция с принудительным нагнетанием кислорода а закрытую камеру с расположенной в ней форсункой. Воздух поступает от установленного извне вентилятора через специальный канал.
Нагревательный блок имеет двойные стенки, между которыми находится вода. Жидкость нагревается, когда горит газ, а продукты горения нагнетатель вытесняет в дымоотвод.
В классическом понимании дымоход как таковой отсутствует — трубу просто просто выводят на улицу, хотя некоторые размещают ее в атмосферном дымоходе
К турбированному котлу подходит коаксиальный дымоход. По одной из его труб удаляются отработанные газы на расстояние до 3 м, а по другой осуществляется приток воздуха, необходимого для процесса горения.
В плане экологии такой агрегат более безопасен, процесс горения контролирует .
Топливо в нем сгорает почти на 100%. Коэффициент полезного действия больше по той причине, что вода контактирует со стенками камеры.
Возможно применение горизонтальных коротких дымоходов. В результате использования двойной трубы, воздух, поступающий с улицы, нагревается за счет отдачи тепла выхлопными газами.
Специфика обустройства дымохода для двух котлов
Каждое устройство, использующее газ в качестве топлива, должно иметь индивидуальный дымоход. В случае острой необходимости, как исключение, допустимо подключение 2 единиц, одновременно работающего, газопотребляющего оборудования. Главное условие — соблюсти между точками врезки труб в дымоход дистанцию минимум 0,7 м.
Если в доме имеется не только газовый котел, но и другая отопительная или водонагревательная техника, следует учитывать следующие нормы:
- К одному дымоходу можно подключать не более двух таких устройств, расположенных на одном этаже или на разных этажах.
- При этом отверстия для отведения продуктов горения для этих устройств должны находиться на разных уровнях.

- Входы в дымоход должно разделять расстояние в 50 см или более.
- Ввод продуктов горения от двух устройств на одном уровне допускается только при наличии специальной рассекающей вставки внутри дымохода.
- При этом высота расположения параллельных вводов в дымоход, снабженных рассекателем, должна быть не менее одного метра.
Конечно, возведение нескольких дымоходов обойдется дороже, чем только одной конструкции, но не стоит пренебрегать требованиями строительных норм и правилами безопасности ради сомнительной экономии.
Строительными нормативами допускается вариант подключения двух отопительных агрегатов к одному дымоходному каналу. В таких случаях устраивается рассечка толщиной 12 см на высоте 1 м от нижней точки соединения труб
При создании дымохода не следует использовать материалы с низкой плотностью и высокой пористостью, которой отличаются пено- и шлакобетонные блоки. Дымоход не должен проходить через жилые помещения.
Не допускается установка подобных конструкций также на закрытых лоджиях или балконах.
Во всех помещениях, где имеется дымоход, необходимо организовать правильное вентилирование.
Предварительные расчеты параметров дымохода
Подбор дымохода следует начинать только после покупки котла, иначе невозможно подобрать его сечение и рассчитать габариты. По форме лучшим является круглое сечение, хотя допустим и прямоугольник.
Ориентировочный список конструктивных элементов дымохода:
- переходник, соединяющий патрубок котла с дымоходной конструкцией;
- тройник с ревизионным отверстием и штуцером, предназначенным для сбора конденсата;
- хомуты для соединения отдельных элементов дымохода;
- кронштейны и другие крепежные элементы;
- конический наконечник;
- телескопические трубы;
- отводы;
- проходной патрубок и т.п.
Следует помнить, что отводы обычно рекомендуется устанавливать на расстоянии не более двух метров от патрубка газового котла. Это позволит обеспечить максимально эффективную тягу.
Отдельные элементы дымоходной конструкции для газового котла можно приобрести в готовом виде.
Главное, правильно просчитать размеры конструкции и выполнить требования техники безопасности
Для правильного монтажа дымохода рекомендуется сначала рассчитать площадь поперечного сечения выходного отверстия.
При этом используют формулу:
F = (K ∙ Q) / (4,19 ∙ √ˉ Н),
где:
- K — постоянный коэффициент, его значение варьируется в пределах 0,02—0,03;
- Q — производительность газового котла, указанная в техническом паспорте устройства;
- Н — расчетная высота дымохода.
После того, как площадь сечения вычислена с помощью этой формулы, необходимо сравнить полученные данные и откорректировать их, если нужно.
Например, согласно требованиям к дымоходу газового котла, для круглых конструкций рекомендуемое сечение зависит от мощности котла и может оставлять:
- 120 мм для котла мощностью 24 кВт;
- 130 мм – для 30 кВт;
- 170 мм – для 45 кВт;
- 190 мм – для 55 кВт;
- 220 мм – для 80 кВт;
- 230 мм – для 100 кВт.

Если монтируется дымоход с прямоугольным сечением, учитывается тепловая мощность газового оборудования:
- для устройств с мощностью менее 3,5 кВт – 140х140 мм;
- для устройств с мощностью 3,5-5,2 кВт – 140х200 мм;
- для устройств с мощностью 5,2-7,3 кВт – 140х270 мм и т.п.
Если используются асбоцементные трубы, сечение дымоходного канала должно быть не менее 100 мм. Вертикальные участки дымохода закрепляют на стене с шагом в 2,5 м, а на участках с уклоном шаг должен быть чаще – 1,5 м.
Дымоходные трубы для газового котла могут иметь круглое или квадратное сечение, но размеры такого сечения должны соответствовать установленным нормам
По высоте дымоход выбирают в зависимости от его расположения по отношению к коньку крыши.
Высота дымохода, приведенная в таблице минимальная. Увеличивать указанный параметр можно, а уменьшать нельзя
Если при подсчете получится, что не выполнено условие, при котором полезное сечение трубы должно быть больше внутренней площади отопительного агрегата, следует взять трубу меньшего сечения, но большей длины./87d272bfa057352.s.siteapi.org/img/dd077192225062aa1444e58f47a22491343f8069.jpg)
Варианты монтажа дымоотводов
Под внутренний дымоход необходимо возводить фундамент. Если добавить еще и защитный кирпичный канал, то это сведет к минимуму количество конденсата. Иногда дымоходы пристраивают снаружи к стене, за которой находится агрегат.
Внутреннее исполнение дымохода
Прежде чем приступить к монтажу дымохода под него выбирают место. Затем размечают места, где он будет проходить через перекрытие и кровлю. Тщательно проверяют точность разметки и делают проемы. Следующий шаг — выполнение подсоединения патрубка котла к дымоходу, а далее монтируют ревизию и тройник.
Закрепляют лист из стали, устанавливают главный кронштейн, трубу наращивают, если требуется, применяют «колени». В районе контакта с перекрытием используют патрубки. Берут лист оцинкованной стали с таким отверстием, чтобы через него свободно проходила труба, крепят его к перекрытию. Для усиления стыков применяют хомуты. Каждые 2 м дымоход закрепляют хомутами, а каждые 4 м — кронштейнами.
Работу завершают проверкой швов на герметичность. Для этого берут мыльный раствор, наносят его на все стыки. Если все выполнено качественно, то при подключении агрегата к дымоходу, пузыри в этих местах не появятся.
Устройство наружной конструкции
Для выносного дымохода в глухой стене делают отверстие такого диаметра, чтобы через него свободно проходила труба с изоляцией. Установив в отверстие первый элемент будущего дымохода, закрепляют его, обматывают изоляцией. Следующие секции добавляют со стороны улицы, контролируя вертикальность при помощи отвеса.
Наружный дымоход — более безопасный, но его нужно хорошо утеплять. У покупной конструкции все элементы хорошо подогнаны, так что сборка не создаст проблем
Трубу к стене фиксируют кронштейнами до достижения ею нужной высоты. Завершают процесс креплением трубы к патрубку котла и герметизацией стыков. Чтобы наружный дымоход прогревался быстро, его по всей длине утепляют базальтовой ватой.
Установка коаксиального дымоотвода
Дымоход этого типа выводит продукты горения наружу и одновременно снабжает горелку котла воздухом, богатым кислородом.
При наличии такой конструкции не нужна дополнительная вентиляция.
Дымоход изготовлен из круглых труб — наружная стальная сечением 10 см и толщиной стенок 0.1 – 0.2 см и внутренняя алюминиевая диаметром 6 см. Трубы не соприкасаются т.к. между ними имеются перемычки.
Монтируют коаксиальные дымоходы для котлов с закрытой камерой сгорания, выполненных для установки на стену и на пол, а также для колонок и других газовых агрегатов.
Такой газоотвод имеет несколько преимуществ:
- конструктивно труба устроена так, что одновременно с нагревом поступающего воздуха, происходит охлаждение отработанных газов;
- дымоход увеличивает КПД оборудования;
- имеет компактные габариты, поэтому используют его не только в частных домах, но и в городских квартирах;
- безопасен — выводящиеся газы не контактируют с воздухом помещения и выходят не через вентиляционный канал а прямо в атмосферу;
- прост в монтаже.
Устанавливают коаксиальный дымоход как горизонтально, так и вертикально.
Независимо от способа установки наибольшая длина дымохода не должна быть больше 4 м. Существуют модели с основательными параметрами, созданные специально для дымоотвода на большое расстояние.
Непосредственно под производители выпускают адаптеры специальной конструкции, используемые для вертикальных переходов через перекрытия и кровлю. Для предохранения системы от осадков и обеспечения герметичности в районе прохождения трубы сквозь перекрытие существуют специальные оголовки.
На рисунке отображены советы и обязательные требования к монтажу дымохода коаксиального типа. Все они касаются газоотводов для котлов, мощность которых не превышает 70 кВт
В случае применения коаксиального дымохода для котла, установленного на стене, его располагают горизонтально. При этом необходимо обеспечить 3-5% уклон, иначе в котел будет попадать конденсат.
Нормы регламентируют не только размеры самого дымохода для газового котла, но и расположение отверстия в стене. Оно должно быть удалено от окна, находящегося рядом, минимум на 50 см и не менее 25 см, если находится над окном.
Как переделать старый дымоход?
Если в давно существующую систему отопления вместо обычной печи включают газовый котел, кирпичный дымоход не обязательно полностью перестраивать. Его можно модернизировать путем гильзирования. Сделать это можно двумя способами.
Способ №1. Установить в основание существующего дымохода трубу из нержавейки.
Трубу следует выбирать так, чтобы ее высота равнялась высоте старого дымохода, а диаметр соответствовал патрубку котла. Зазор между стенками существующего дымохода и трубой заполняют теплоизолирующим материалом типа пеностекла, керамзита или перлита.
Способ 2. Применить технологию Фуран-Флекс. Этот вариант дороже первого, зато остается неизменным диаметр дымохода. Материал морозостойкий, не поддается коррозии, диаметр колеблется в пределах 6 – 100 см.
Технология FuranFlex позволяет выполнить модернизацию или ремонт дымохода, имеющего уклон максимум 30⁰ быстро и эффективно
Сама технология заключается в том, что эластичную трубу помещают внутрь дымохода под давлением.
Труба принимает форму дымохода, затем затвердевает и становится сплошной бесшовной оболочкой, не пропускающей ни дым, ни конденсат.
Выводы и полезное видео по теме
Видео #1. Подробный обзор установки коаксиального дымохода, предназначенного для газового котла, можно посмотреть в этом видео:
Видео #2. Здесь представлена полезная информация о том, как выбрать дымоход, избежав при этом распространенных ошибок:
Видео #3. Ролик об устранении нарушений технологии установки дымохода для газового котла:
Любую бытовую технику, особенно работающую на таком небезопасном энергоносителе, как газ, нужно монтировать с соблюдением всех правил. Устройство отвода продуктов сгорания от газовых котлов требует грамотного подхода. Сначала выполняют инженерные расчеты и только тогда реализуют проект, так что лучше доверить все это специалистам.
Появились вопросы по поводу устройства и монтажа дымоходных труб для газового котла, есть замечания к материалу, хотите поделиться опытом в сфере обустройства дымового канала своими руками? Пишите, пожалуйста, комментарии в расположенном под текстом блоке.
Как сделать дымоход в частном доме
Дымоход в частном доме чаще всего строится невидимым для глаз. Это можно осуществить ещё на этапе планирования строительства дома. Если в доме присутствует несколько дымоходов, то они объединяются в одно или два устройства.
Устройство стального дымохода в частном доме
Вернуться к оглавлению
Содержание материала
Виды дымоходных конструкций
Конструкция дымохода зависит от функциональных особенностей устройств, для которых они предназначены. От их расположения и мощности зависит сложность и конфигурация дымохода.
Типы дымоходов:
- вентиляционные,
- газоотводные,
- дымовые.
Вентиляционные системы
Основной функцией вентиляционных труб является то, что они помогают из помещения выводить загрязнённые воздушные массы.
Оригинально выполненный кирпичный вентиляционный дымоход
Вентиляционные каналы в обязательном порядке должны быть в тех местах, где меньше всего проветривается помещение.
Особенно важно размещать такие трубы в кухонной зоне, ванной комнате, туалете.
Газоотводные системы
Газоотводные дымоходные трубы применяются в том случае, если в доме используется газовая система отопления. Они выводят продукты горения за пределы помещения, и, таким образом, обеспечивают безопасность использования системы обогрева. Трубы должны быть способны выдерживать разнообразные воздействия вредных веществ. Как только продукты горения поступают в дымоходную трубу, то сразу вступают в реакцию с влагой, которая уже есть в трубе. В результате этого осуществляется процесс окисления, который и может вызвать разрушение или внутреннюю деформацию трубы. Также такой дымоход способствует увеличению тяги.
Схема устройства и конструкция газоотводной трубы дымохода
Дымовые трубы
Дымовые трубы применяются в случае установки в доме отопительного оборудования, которое работает на твёрдом топливе – это могут быть печи или камины. В доме их больше всего, именно по этой причине довольно часто их объединяют в одну или несколько.
схема устройства и конструкция кирпичной дымовой трубыВернуться к оглавлению
Трубы дымохода
Устройство дымохода довольно простое, оно подразумевает использования для этого специальных труб, через которые и осуществляется вывод загрязнённого воздуха или продуктов горения за пределы помещения.
Трубы бывают:
- кирпичные,
- металлические,
- керамические,
- полимерные.
Отличительные черты кирпичного дымохода
Несмотря на то, что на сегодняшний день очень большое количество материалов, которые могут быть использованы для сооружения дымохода, всё равно на протяжении многих лет большой популярностью пользуются кирпичные дымоходы.
Кирпичный дымоход
Такой тип дымохода имеет свои преимущества. Его нельзя внутри штукатурить, что поможет сэкономить на отделочных материалах. Также стоит учесть, что кладка кирпичного дымохода должна иметь шов в 1 см. Если внутри помещения рекомендуется использовать цементно-известковый или известковый раствор, то в верхней части строения уже можно использовать для кладки обычную бетонную смесь.
Совет. Для того чтобы в доме использовать кирпичный дымоход, необходимо делать более мощный фундамент строения – кирпич добавит лишнюю нагрузку на стены строения и на его основание.
Кроме преимуществ есть ещё определённый ряд недостатков конструкции. Кирпич из-за своей шероховатой поверхности может накапливать загрязнения. Именно поэтому такая труба очень быстро засоряется сажей.
Так как через кирпичный дымоход выходят продукты горения, образуется кислородный конденсат, от чего кирпичная труба подвержена разрушению. Бывает такое, что кусок кирпича откалывается и падает в трубу. Всё это в значительной степени может сузить канал дымохода и затруднит выход воздушных масс.
Чтобы обеспечить длительный срок эксплуатации кирпичного дымохода, внутрь рекомендуется вставить асбоцементную трубу. Промежуток между кирпичом и трубой заливается бетонным раствором.
Пример использования асбоцементной трубы
Керамические конструкции
Керамические трубы представляют собой готовые конструкции для сооружения дымохода.
Они продаются модульной конструкцией. Её внутренняя труба из кислотоустойчивой, жаропрочной и долговечной керамики.
Керамические дымоходные трубы обладают рядом преимуществ и имеют очень гладкую поверхность. Благодаря этому на ней не собирается сажа, которая образуется в результате прохождения загрязнённых воздушных масс, образовавшихся в процессе горения.
Устройство керамической трубы для дымохода
Как и кирпичные дымоходы, так и керамические обладают довольно большим весом. Именно по этой причине стоит использовать фундамент для конструкции.
Металлические дымоходы
Что касается металлических труб для сооружения дымохода, то они благодаря лёгкости в последнее время стали пользоваться большой популярностью. Также они имеют гладкую поверхность, что исключает накопление сажи. Соответственно, воздух будет проходить гораздо лучше.
Качественная теплоизоляция выполняется довольно просто. Для этого используется базальтовая вата, которая прокладывается внутри трубы.
Только необходимо будет правильно определиться с толщиной материала, так как большая толщина может полностью или частично перекрыть трубу и воздушным массам будут выходить очень затруднительно.
Устройство металлической трубы дымохода
Как правило, металлические дымоходы изготавливаются из нержавеющей стали, которая очень устойчива ко всем климатическим, погодным и другим воздействиям.
Современными трубами для дымохода являются полимерные конструкции. Сама по себе труба очень мягкая и имеет довольно небольшой вес. Дымоход будет отличаться своей практичностью и долговечностью. Монтаж трубы можно осуществить самостоятельно, и справится с этим любой новичок.
Современный полимерный дымоход
Чаще всего используются полимерные трубы в том случае, если в доме есть система газового отопления (котлы или колонки). Такие трубы могут быть только вставленными в дымоход, который выложен из кирпича.
Виды дымоходов
На сегодняшний день есть два типа дымоходных конструкций: конструкция, расположенная внутри строения и дымоход снаружи дома.
Они отличаются не только материалами, из которых могут сооружаться, но и размерами и типами.
Чертежи и конструкция внутреннего и внешнего дымохода в частном жилом доме
Обычно, для того чтобы построить дымоход внутри дома, используется кирпич или керамические трубы. На улице рациональнее использовать металлические дымоходы, так как они устойчивы к перепадам температур и не подвергаются воздействию влаги.
Дымоход внутри дома также можно сделать двумя способами, подробнее об этом – на видео
Дымоход может быть использован как в кирпичном, так и в деревянном строении. Только дымоход в деревянном доме должен быть правильно сооружен, так как дерево очень быстро обугливается. Есть специальная технология строительства дымохода в деревянном строении.
Вернуться к оглавлению
Строительство дымохода в деревянном доме
Чаще всего, в деревянном доме встречается несколько дымоходов.
Но количество таких конструкций в большей степени зависит от количества используемого в доме оборудования. В доме обязательно должна быть система отопления с отдельным дымоходом и может быть камин, который также имеет отдельную дымоходную трубу.
Все дымоходные сооружения в доме должны быть выведены на крыше строения и выполнены с соблюдением всех норм и стандартов.
Дымоход в деревянном доме
Для того чтобы правильно соорудить дымоход в деревянном доме, необходимо составить проектную документацию и обратиться к специалистам в этой области, которые могут правильно составить проект дымохода.
От правильно выстроенного дымохода зависит безопасность жизнедеятельности всех проживающих в доме, также само оборудование будет более качественно работать. Последнее касается котлов газового отопления и труб для каминов.
Дымоход в деревянном доме должен быть только в вертикальном положении. Конечно, есть и исключение из правил. Можно строить его с отклонением, которое от вертикального положения составляет не более 30 градусов.
Если же требуется вывести трубы наружу, и для этого никак не обойтись без переноса дымоходной трубы, то размер такого переноса может быть не более 100 см.
Варианты постройки дымохода в деревянном доме из бруса
Что касается выноса дымохода на крыше строения, то он в значительной степени будет зависеть от типа кровли и вида самой крыши.
Совет. При строительстве дымохода на крыше стоит учесть направленность ветра, который наиболее часто встречается в этом регионе. Это необходимо из-за того, что если труба дымохода будет соединена с котлом для отопления, то ветровые массы могут попадать в трубу, и тем самым вызывать прерывное горение топливного вещества.
Если в деревянном доме есть камин, то труба для отвода дыма должна быть сооружена качественно. Это позволит не попадать дыму внутрь помещения, и дать ему возможность выходить наружу.
В последнее время дымоход для камина в деревянном доме представляет собой довольно сложную конструкцию, в которой используется технология «труба в трубе».
Сама дымоходная труба состоит из трёх составных частей:
- труб из нержавеющей стали;
- слоя теплоизоляционного материала;
- стальной трубы.
Изначально труба из нержавеющей стали обматывается теплоизоляционным материалом, который на ней может быть закреплён при помощи проволоки или любого другого материала. После этого готовая конструкция вставляется в металлическую трубу, которая будет иметь больший диаметр, чем внутренняя.
Способы устройства труб для дымохода в деревянном доме
Кроме такого способа сооружения дымохода есть ещё один способ, для этого используется пластиковый чулок. Основным его преимуществом будет то, что он очень быстро нагревается и быстро остывает. Также его можно использовать тогда, когда необходимо сделать довольно большое количество дымоходных переходов.
Самое сложное – это провести конструкцию через стену, так как дымоход в стене дома из древесины может очень пагубно сказаться на состоянии строительного материала.
В большинстве случаев ту часть стены рекомендуется заменить на пенобетон или кирпич. Эти материалы не подвергаются воздействиям высоких температур и не горят. Таким образом, будет обеспечена безопасность всего строения.
Чертёж и схема вывода дымохода через несущую стену деревянной конструкции
Если же дымоход нужен в качестве газоотвода, и будет использоваться в случае включения отопительной газовой системы, то можно сделать конструкцию, которая выходит наружу через стену. Для организации такого дымохода используются металлические трубы.
В таком случае есть возможность также использовать технологию гильзования («труба в трубе»). Где первая внутренняя труба будет помещена в слой теплоизоляционного материала и только потом – в основную трубу дымохода.
Металлические трубы очень лёгкие не только по весу, но и в установке.
Для этого используются:
- специальные металлические крепления;
- саморезы по металлу;
- шуруповёрт.

Крепления для трубы на деревянном строении представляют собой металлические пластины, которые имеют изогнутую форму, соответствующую диаметру дымоходной трубы.
Очень часто для того, чтобы провести дымоход в стене деревянного строения используется асбестовая труба, которая будет находиться в специальном коробе из кирпича или другого похожего материала.
Совет. Для того чтобы была возможность провести дымоход внутри стены деревянного дома, необходимо обеспечить их достаточную толщину.
Если такой возможности нет, то стоит соблюдать установленные правила безопасности, где труба должна быть на расстоянии от самого материала не менее 25 см. Такие действия обеспечат безопасность древесины, и она не будет возгораться или обугливаться в результате использования конструкции.
Вернуться к оглавлению
Дымоходы в кирпичных строениях
В обычном кирпичном строении также применяется технология сооружения наружных дымоходов. Они очень часто встречают в тех домах, которые имеют газовое отопления, и в качестве батарей используется колонки или специальные конвекторы.
Тогда в стене дома делается отверстие. В него вставляется, как правило, полимерная труба. Между стеной и самой трубой должен быть определённый промежуток, который заполняется бетонным раствором, или используется технология «труба в трубе».
Простой наружный дымоход в кирпичном доме
Для камина правильный дымоход в частном доме из кирпича или любого другого строительного материала возводится вместе со стеной строения.
Выглядит это следующим образом. Есть основная стена, к ней пристраивается камин, а сверху него короб дымохода, который будет выходить прямо на крышу дома. Если дом каменный, то какие-либо изоляционные материалы можно и не использовать.
Но если строение деревянное, то камин и труба дымохода от него должны быть раздельными, чтобы обеспечить безопасность строительного материала (древесины).
Совет. В дымоходе для камина обязательно должна быть заслонка. Она регулирует подачу воздуха в камин и способствует нормальному процессу горения.
Необходимо учесть, что дымоходная труба должна быть защищена от попадания в неё дождя или снега. Для этого на крыше устанавливается специальная защита в виде козырька. Он должен иметь высоту не более 50 см. В противном случае есть возможность неэффективного использования дымохода, так как в него будет попадать любой порыв ветра.
Есть несколько способов очистки такой конструкции, которые необходимо осуществлять каждый год. Только так можно содержать дымоход в надлежащем состоянии. Для этого используется два метода: механический и химический.
При механическом методе применяются металлические щётки с очень жёсткой щетиной. При химическом методе – разнообразные средства, которые представляют собой полено-трубочист, его необходимо сжечь в печи, камине или другой конструкции.
Перед тем как сделать дымоход в доме, нужно чётко определиться, для каких именно целей он будет служить.
Не в последнюю очередь выбирается материал для сооружения дымохода.
Если в кирпичном строении можно использовать любой вид дымоходной трубы, то в деревянном доме есть некоторые ограничения. Что касается количества дымоходов, то оно в значительной степени зависит от используемых в доме приборов или конструкций.
Чтобы дымоход в частном доме работал качественно, его необходимо правильно продумать изначально.
Как сделать дымоход своими руками в частном доме
Главной составляющей отопительной системы, работающей за счет сгорания топлива, является дымоход. К его устройству нужно подходить ответственно и серьезно, ведь от этого зависит не только правильное функционирование отопительного оборудования, но и общая безопасность дома и здоровья жильцов. Дымоход в доме необходимо сделать для отвода продуктов горения и создания тяги для поддержания горения.
Если в частном доме планируется размещение камина или печи, то для правильного возведения конструкции своими руками следует подумать заранее.
Среди множества видов дымовых труб долгие годы высокой популярностью пользуются конструкции из кирпича. Себестоимость дымохода из кирпича относительно невелика, но его конструкция весьма трудоемка.
Требования к конструкции
Устройство дымохода должно включать в себя такие требования:
- дымоход нужно сделать максимально вертикальным, если имеются горизонтальные участки, размер их не должен превышать 1 м согласно требованиям противопожарной безопасности
- если у дома плоская крыша, трубу нужно сделать выше на 1 м, для скатной крыши высота трубы будет зависеть от положения относительно конька
- для хорошей тяги общая высота дымохода должна быть не меньше 5 м
- ширина канала дымохода зависит от мощности отдачи тепла очага, чем мощность выше, – тем канал шире.
Кирпичный дымоход собственноручно
Перед тем как приступать к строительству дымохода своими руками, нужно быть точно уверенным в своих силах и возможностях, лучше заранее проконсультироваться со специалистом или даже полностью поручить ему работу.
Подготовка к работе заключается в составлении подробного чертежа дымохода, во многом выбор подходящей схемы будет зависеть от типа устройства камина или печи:
- дровяным моделям достаточно сделать кирпичную кладку своими руками или двойной вариант из кладки с внутренней металлической трубой
- работающим на газе моделям понадобится изоляционная, кислостойкая стальная или керамическая труба, которую помещают внутрь кладки.
Необходимо определить место расположения камина согласно требованиям (желательно возле несущей стены или стен из негорючего материала).
Важно установить температуру отходящих газов. Дымовая труба из кирпича прослужит дольше, если температура отходящих газов будет высокой, поэтому она идеально подойдет для вариантов отопления частного дома твердым топливом. Низкие температуры приведут к образованию конденсата на стенках дымоотвода.
Вода вступает в реакцию с продуктами горения (особенно газа) и образует едкие соединения, разрушающие устройство печи.
Далее рассчитываются все размеры и расстояния до ближайших построек или легковозгораемых объектов. Также важно правильно подготовить качественные материалы (кирпич, цемент, песок), инструменты и оборудование.
Этапы кладки дымохода
Наиболее распространённым видом считается насадной дымоход, который является продолжением вытяжного отверстия камина или печи для частного дома.
В устройстве дымохода выделяют такие главные этапы:
- Выкладывается насадная труба (шейка печи): кирпичная кладка ровная, но за несколько рядов до перекрытия она останавливается
- Постепенное расширение кладки (распушка) на пересечении трубы и перекрытий. Расширение устройства печи достигается за счет поэтапного смещения кирпича на ¼ длины наружу. Стык распушки и перекрытия легко прокладывается своими руками изолирующим материалом
- После перекрытия делается сужение кладки как у основания, труба опять ровная
- Расширение кладки сделать со стороны улицы (выдра) для защиты от попадания влаги между кровельным материалом и дымоходом, также делается гидроизоляция стыка (фартук) металлом и другими материалами
- После вывода трубы через кровлю кладка снова сужается (шейка трубы), дымоотвод выкладывается ровно.
Высота шейки трубы зависит от типа крыши и строго соответствует требованиям безопасности - Выкладывается оголовок, этот элемент дымоотвода носит декоративный характер
- Установка колпака (зонтика) для защиты от атмосферных осадков.
В случае, когда внутри дымохода будет прокладываться металлическая или керамическая труба, принцип кладки кирпича своими руками практически не меняется. За счет изоляции стальной трубы кладку из кирпича в районе перекрытий можно не расширять. Труба собирается частями, стыки герметично склеиваются.
Преимущества двойного дымохода:
- применяется для всех видов котлов, печей и каминов,
- дым беспрепятственно поднимается по трубе,
- пожарная безопасность выше,
- увеличивается герметичность и срок службы дымоотвода.
Если устройство дымовой трубы будет состоять только из кладки кирпича, то ее необходимо делать правильно и очень аккуратно, поверхность внутри должна быть ровной, углы прямыми, лишний раствор надо сразу счищать, иначе дымоотвод начнет забиваться продуктами горения.
Тяга ухудшается, а вероятность случайного возгорания увеличивается, что небезопасно.
Готовая конструкция, сделанная своими руками, должна пройти экспертную проверку на соблюдение общим требованиям пожарной безопасности. Необходимо регулярно чистить дымоход и проводить профилактику засорения.
На что следует обратить внимание перед тем, как вынуть дымоход
© Virynja / Fotolia
Возможно, вы смотрите на свой старый дымоход и думаете о его удалении. К сожалению, это не так просто, как может показаться на первый взгляд, и прежде чем начать, необходимо учесть множество факторов. Если вы хотите удалить дымоход из чисто эстетических соображений, приложенные усилия могут оказаться больше, чем они того стоят.
Далее следует ряд важных факторов, которые необходимо учесть перед тем, как приступить к сносу старого дымохода.
Два важных термина
Есть два основных термина, которые будут постоянно встречаться в проекте дымохода.
Понимание этих двух терминов необходимо для принятия решения о соответствующих действиях и расчета затрат.
Грудь
Нижняя часть дымохода является одновременно наиболее заметной и важной частью дымохода. Эта кирпичная стена закрывает грипп и другие функциональные части, обеспечивая дополнительную изоляцию и основную структурную поддержку.
К сожалению, грудь имеет обыкновение выступать во все комнаты, через которые она проходит.Если вы хотите освободить это пространство в комнате, можно удалить только эту часть груди, а не весь дымоход.
Обратите внимание, что удаление любой части перегородки дымохода потребует структурного усиления этого пола и верхнего этажа, а также возможного усиления внешней стены.
Стек
Когда люди думают о дымоходе, они обычно представляют себе эту часть. Это часть, которая выступает из крыши и заканчивается крышкой.Утечки и структурные повреждения являются наиболее распространенными причинами удаления дымовой трубы, и в таких случаях у вас будет возможность просто закрыть оставшуюся часть неиспользуемой дымовой трубы, когда вы поднимете крышу над зазором, оставленным дымовой трубой.
Личные соображения
Перед тем, как планировать удаление дымохода за рамками самого проекта, необходимо учесть ряд моментов. К ним относятся как краткосрочные, так и долгосрочные эффекты от удаления, а также постановка целей и информирование соседей о проекте перед началом.
Артефакты
При сносе дымоходов часто можно найти артефакты, оставшиеся от первоначальных строителей. К ним относятся подписанные или датированные кирпичи, безделушки, собранные животными, поселившимися при гриппе, или другие сюрпризы. В некоторых случаях они могут иметь прямую или историческую ценность, поэтому всегда следите за всем необычным.
Финансовые аспекты
Планируя демонтаж дымохода, возможно, вы в первую очередь обращаетесь к оценкам затрат подрядчиков или планируете самостоятельно удалить дымоход, чтобы сэкономить деньги.Однако это также оказывает долгосрочное влияние на стоимость вашего дома.
Это особенно верно в отношении старых домов, в которых дымоходы являются эстетической изюминкой, или вы находитесь в районе, где в большинстве домов есть дымоходы.
В таких случаях может быть лучше заглушить грипп и заменить дымоход и колпачок чисто декоративным искусственным дымоходом.
Реалистичные цели
Вы всегда должны помнить, что удаление дымохода — длительный и сложный процесс, который потенциально может привести к серьезным структурным проблемам.Лучше всего, чтобы над проектом работали сразу несколько человек, а наличие экспертов под рукой может значительно снизить риск осложнений.
Если вы не можете позволить себе подрядчика выполнить эту работу, вы можете нанять консультанта для получения профессиональной консультации по мере необходимости.
Причины снятия
Есть несколько причин для удаления дымохода, в том числе:
- Сильно поврежденная стопка
- Утепление дома
- Местные постановления о загрязнении / Сертификация LEED
- Планы по прекращению использования
- Протечка в крыше
- Восстановление пустого пространства
Все это веские причины, хотя некоторые требуют дополнительных соображений, например, потребуется ли полное удаление или удаление будет стоить больше, чем простой ремонт или обслуживание дымохода.
Постановления о загрязнении более распространены в Великобритании, чем в США, но часто связаны с типом сжигаемого топлива, а также количеством и качеством производимых выбросов.
В гораздо меньшей степени дымоход, который все еще используется, также может оказать незначительное влияние на ваши усилия по получению сертификата LEED при ремонте дома. Это почти всегда связано с выбросами и проблемами отопления. Иногда устранение гриппа или изменение типа используемого топлива решает эту проблему без необходимости дорогостоящего удаления.Наличие дымохода не повлияет на вашу способность получить сертификат LEED.
Временные инвестиции
Независимо от того, выполняете ли вы проект самостоятельно или нанимаете подрядчика, имейте в виду, что удаление дымохода — трудоемкая работа, особенно традиционная кирпичная. Кирпичный дымоход нужно аккуратно разбирать по кирпичику, чтобы не повредить конструкцию. Это не только означает долгое участие с вашей стороны, но и может существенно повлиять на ваш бюджет при найме помощника.
Соображения по проекту
© DragonImages / Fotolia
Удаление дымохода — это полномасштабный проект, поскольку видимая труба — это лишь небольшая часть гораздо большей конструкции.Вы должны спланировать каждый этап проекта, прежде чем начать, чтобы избежать неудач и возможных штрафов.
Проконсультируйтесь, проконсультируйтесь, проконсультируйтесь!
Перед тем, как начать свой проект, вам нужно будет поговорить со многими экспертами. Специалисты по каменщику могут сказать вам, можно ли восстановить дымоход и просто закрыть его или отремонтировать за меньшие деньги, чем удаление.
Необходимо связаться со специалистами по строительным конструкциям, чтобы они объяснили любые возможные проблемы, связанные с удалением груди с одного или нескольких этажей.
В вашем местном отделении по обеспечению соблюдения кодексов вам сообщат, какие документы или разрешения потребуются для проекта.
Наконец, консультация с подрядчиком должна сопровождаться проверкой его репутации и квалификации до приема на работу.
Утилизация
Простое удаление трубы может не привести к образованию большого количества мусора, но если в ваших планах вынуть груду дымохода в одной или нескольких областях, возможно, вы столкнетесь с большим количеством кирпича и плитки.Это не только дорого, но и требует специальных разрешений.
Обязательно изучите местные правила утилизации и посмотрите, есть ли каменщики, которые могут быть заинтересованы в утилизации материалов. В последнем случае утилизация может быть дешевой или даже бесплатной, в зависимости от компании и состояния удаляемых кирпичей.
Полное или частичное удаление?
Снять дымоход не так просто, как избавиться от видимой трубы. Эта часть — лишь крошечная часть реальной конструкции дымохода.
Полное удаление предполагает удаление всей конструкции и часто приводит к лишнему пространству в комнатах, где грудь выступает. Для полного удаления требуется дополнительное структурное усиление, так как это создает большой зазор в вашем доме.
Частичные удаления имеют тенденцию уходить с груди. Они также требуют некоторого нового армирования, но в основном вдоль крыши, чтобы укрепить крышу и предотвратить утечки. Частичное удаление происходит быстрее, дешевле и его достаточно для проектов, в которых предполагается удалить сильно поврежденный стек.
Они также более безопасны при удалении дымохода из внешней стены в отдельно стоящем доме, так как полное удаление значительно ослабит всю стену.
Оформление документов
Перед работой с дымоходом может потребоваться ряд документов и разрешений. Как и в случае с большинством проектов по благоустройству дома, разрешение на строительство стоит на первом месте в вашем списке. Однако от вас может потребоваться наличие ряда других бумаг в зависимости от местных и государственных нормативных требований. Некоторые из них включают:
- Чертежи — Схема дома — ценный инструмент, поскольку он предупредит вас о проблемах конструкции или возможных проблемах с общими стенами в соседнем доме.

- Сертификаты — Если вы нанимаете кого-то другого для выполнения работы за вас, убедитесь, что он должным образом сертифицирован для предстоящей задачи. Сюда входит опыт демонтажа и строительства дымоходов.
- Разрешения на утилизацию — Вам может потребоваться получить специальное разрешение на утилизацию отходов. Это особенно верно, если вы будете отказываться от черепицы во время проекта.
- Страхование ответственности — Любой подрядчик, которого вы нанимаете, должен быть надлежащим образом застрахован, чтобы избежать любой ответственности, которая ложится на вас.
Личная безопасность
Сколоть старую кладку по кирпичу — долгая и опасная работа. Убедитесь, что у вас есть соответствующая защита головы и тела, и имейте в виду, что вы будете создавать высокий уровень пыли, который может повлиять на дыхание или зрение.
Старайтесь всегда иметь хотя бы одного наблюдателя, который будет следить за тем, чтобы лестницы оставались устойчивыми, и никакая незакрепленная кладка не могла упасть на вас.
Связанные
Как сделать камины снова функциональными — Old House Journal Magazine
Восстановленный камин с новой вставкой и двумя залитыми на месте вкладышами дымохода теперь безопасно вентилирует два прибора — водонагреватель и бойлер — в дополнение к потрескивающий огонь.
Когда центральное отопление устанавливалось в домах до викторианской эпохи, зачастую это происходило за счет оригинального дровяного камина. Новая система отопления, работающая на угле, а затем на мазуте, нуждалась в дымоходе для удаления побочных продуктов сгорания. Самым простым решением было проделать отверстие в кирпичном очаге (полу камина), ближайшем к топке или котлу, провести металлический канал через дымоход и замуровать горловину пораженного камина. Вуаля, домовладельцы получили центральное отопление и покончили с утомительным отоплением с помощью каминов.Я уверен, что наши предки считали, что принесение камина в жертву современному удобству центрального отопления вовсе не было жертвой, но сегодняшние энтузиасты старого дома могут с этим не согласиться.
Восстановить дровяной камин, оборудованный центральным отоплением, лучше всего с помощью ряда методических шагов.
Вернемся назад
Когда семья Фридман-Соренсон, владельцы коттеджа рабочих в эпоху греческого возрождения 1860 года, связалась со мной, их компания по обслуживанию котлов только что сообщила им, что система вентиляции их котла стала опасной.Кислотные сточные воды от десятилетий использования котла разъели значительные части кирпичного раствора над линией крыши и в районе третьего этажа дома. Их кирпичный дымоход без футеровки, который был переоборудован для вентиляции котла, становился структурно несостоятельным.
До проекта камин мог безопасно держать только зажженные свечи, а его кирпичный камин не соответствовал архитектуре дома.
Кроме того, дыры, протертые в строительном растворе на третьем этаже, могут позволить потенциально смертельному углекислому газу проникнуть в жилую зону.Фридман-Соренсоны хотели отремонтировать дымоход, и они также надеялись, что камин будет в хорошем рабочем состоянии, так как изменение конфигурации дымохода заставляло камин дымить в комнате всякий раз, когда он использовался.
Каменный дымоход требовал футеровки, и мы решили использовать монолитную облицовку. (Для получения дополнительной информации об облицовке дымоходов см. Разбирательство с вкладышами дымохода.) Первоначальный дымоход был достаточно большим, чтобы вместить 6-дюймовый круглый дымоход для вентиляции котла и нагревателя горячей воды, который защитил бы дымоход из каменной кладки, обеспечил превосходную тягу для дымохода. бытовых приборов и закройте все потенциальные отверстия, через которые может выйти окись углерода.Но заставить камин снова заработать — это совсем другое дело. Хотя мы могли бы разместить еще одну 6-дюймовую круглую облицовку в существующем пространстве шириной 30 дюймов, для нормальной работы камина требовался круглый дымоход диаметром не менее 9 дюймов.
Чтобы решить эту проблему, я предложил установить викторианский чугунный дровяной камин. вставка с возможностью вытяжки через круглый дымоход диаметром 6 дюймов. В качестве дополнительного бонуса задняя панель печи будет закрывать простую и неподходящую кирпичную окантовку камина, которая умаляет первоначальный шарм дома.
Работа
Чтобы восстановить структурную целостность дымохода, моя группа переместила его над линией крыши и заделала дыры в швах раствора на третьем этаже. Чтобы получить доступ к точкам третьего этажа, нам пришлось пробить — а затем отремонтировать — внутреннюю стену, но, к счастью, нам удалось сделать это через чулан. Мы также увеличили соединение механического дымохода с дымоходом в горловине камина, чтобы он не переходил так резко в дымоход. Затем мы сбросили две 6-дюймовые надувные резиновые формы — как большие воздушные шары — в существующий дымоход.Каждая имела 1-дюймовые пружины, обжатые вокруг нее с 24-дюймовыми интервалами вдоль трубы, чтобы удерживать формы от кирпичных стен дымохода и отделить друг от друга.
Новая каминная топка в викторианском стиле хорошо вписывалась в пространство, но ее задняя панель не полностью скрывала старый кирпич.
Первая форма опущена в дымовую трубу и переместилась в дымовую трубу подвального котла.
Вторую форму бросили прямо в камин. Мы удалили анахроничный кирпичный камин 80-х годов и установили викторианскую вставку в камин, чтобы можно было протянуть форму дымохода через отверстие для клапана на задней стороне вставки.Затем мы закрепили и закрепили вставку.
Наша бригада установила насос и миксер и медленно залила огнеупорный раствор для дымоходов SolidFlue вокруг двух форм. (Залитые облицовки дымохода выполняются с использованием легких огнеупорных растворов на основе Портленда.) Мы постоянно вибрировали формы, используя машины, привязанные к формам, чтобы исключить возможность образования пустот, и контролировали подвал, камин и туалеты третьего этажа на предмет утечек . Мы лили в течение трех дней, прежде чем дойти до верха дымохода — увеличение времени заливки оказывает меньшее давление на старый дымоход.Через день после того, как мы закончили заливку, после 12 часов отверждения, мы спустили воздух и удалили формы, оставив после себя два гладких непрерывных дымохода.
Новые дымоходы не только рассчитаны на нулевой зазор до горючих материалов, но и создают легкую армирующую колонну внутри старой каменной трубы.
Последние штрихи
Чтобы создать цельный внешний вид, Чарли нашел восстановленную деревянную каминную доску в стиле греческого возрождения и переработал ее, изменив размеры цоколей и отрегулировав ее высоту и глубину, чтобы они соответствовали оригинальной лепнине и встроенному книжному шкафу, стоящему рядом с ней. .
Затем мы соединили 6-дюймовую насадку бойлера и водонагревателя с новой залитой облицовкой в подвале и проверили викторианскую вставку, чтобы убедиться, что можно безопасно сжигать дрова, используя камеру для дымохода, чтобы проверить наличие без пустот или трещин. Мы убедились, что все в безопасности и в хорошем рабочем состоянии, но наша работа еще не была завершена — нам все еще нужно было заменить кирпичную каминную полку 80-х годов.
Мы нашли восстановленную деревянную каминную панель в стиле греческого возрождения и установите его на спинку викторианской вставки.
Затем мы изменили размеры каминных цоколей, чтобы они соответствовали исходному плинтусу и молдингу, установили деревянную угловую штукатурку и отремонтировали переднюю и обратную стены. Нам пришлось отрегулировать высоту и глубину каминной полки, чтобы она соответствовала размерам существующего встроенного книжного шкафа, который находился справа от него.
Теперь облицованные дымоходы одновременно истощают механические системы дома и сохраняют атмосферу открытого дровяного камина. Неплохое исправление для любимой части старого дома.
Хотите больше информации об исторических очагах? Дополните свой старый дом репродукционным камином.
Сколько отапливались старые дома
Добро пожаловать обратно в Period Dramas , еженедельную колонку, в которой чередуются обзоры исторических домов на рынке и ответы на вопросы, которые мы всегда задавали о старых постройках.
Благодаря современным системам отопления, мы можем наслаждаться уютной живописностью камина, независимо от того, будет ли тепло в наших домах.
Но этого не было в Америке 18-го и начала 19-го веков.
«Примерно до 1800 года дровяной камин — очень популярный среди английских поселенцев — был основным средством обогрева дома», — объясняет Шон Адамс, профессор истории Университета Флориды и автор книги Home Fires: How Americans Согревались в девятнадцатом веке . «Проблема заключалась в том, что зимы в Америке могут быть намного суровее, чем в Англии. Погода быстро показала, насколько неэффективны камины при обогреве комнаты.”
Большая часть тепла в камине уходит вверх и выходит из дымохода. То немногое тепла, которое проникает в комнату, концентрируется прямо перед топкой, оставляя остальную часть комнаты довольно холодной.
Камин с топкой Franklin Stove. Фото Роберта Хедериана
В 1741 году Бенджамин Франклин попытался улучшить эффективность камина. Он представил чугунную вставку для топки, названную «Печь Франклина», в «Записки Бенджамина Франклина», том 2 .
Хотя это принципиально не изменило конструкцию камина, оно затрагивало его теорию о тепле.
«Франклин считал, что тепло похоже на жидкость — он пытался удерживать тепло в комнате как можно дольше, иначе оно вылетело из комнаты», — объясняет Адамс.
Плита Франклина имела ряд перегородок или каналов внутри печи для направления потока воздуха, чтобы удерживать как можно больше тепла, циркулирующего в топке и выходящего в комнату. Однако с дизайном были проблемы.
«Печь должна была быть очень герметичной», — объясняет Адамс. «Если были какие-либо утечки, дым выходил в комнату. Ветер также возвращал дым в комнату. Это не считалось настоящим успехом ».
К концу 19 века изобретатель граф Рамфорд изобрел камин, спроектированный в соответствии с набором пропорций, поэтому его можно было строить в различных масштабах.
«В каминах, которые я рекомендую, — пишет граф Рамфорд в эссе 1796 года, — задняя часть [камина] составляет лишь около одной трети ширины проема камина впереди, и, следовательно, обе стороны или крышки каминов.
.. наклонены к [переднему отверстию] под углом примерно 135 градусов ».
Камин Rumford эффективно сжигал дрова, в то время как его типично неглубокая топка отражала как можно больше тепла в комнату. Удобный дизайн Rumford получил много поклонников.
Томас Джефферсон установил восемь из них в своем загородном доме Монтичелло. Камины Рамфорда стали настолько популярными, что Генри Дэвид Торо написал о них в Walden как об основном качестве дома, наряду с медными трубами, гипсовыми стенами и венецианскими жалюзи.
К 1820-м и 1830-м годам, объясняет Адамс, уголь быстро стал доминирующим видом топлива. Популярными стали печи, которые могли сжигать дрова или уголь (толкаемый тип был антрацитовым или «каменным» углем).
Железные печи не были новой технологией. В то время как английские поселенцы приносили камины, у немецких поселенцев были железные печи, которые хорошо обогревали пространство.
Но то, что было новым, так это вид топлива: уголь.
Адамс объясняет, что, поскольку уголь сильно отличался от привычного вида топлива, древесины, потребовалось некоторое время, чтобы завоевать популярность.
«Впервые уголь продавался аналогично тому, как сегодня продаются некоторые новые технологии», — говорит Адамс. «Вам нужны были ранние инвесторы, готовые пойти на риск. Он был выставлен на счет «топлива модной одежды», которое произвело революцию в домашнем отоплении ».
В соответствии с этим угольные печи стали очень декоративными, с замысловатыми металлическими деталями и декоративными элементами, делавшими их столь же желанными, сколь и утилитарными.
Уголь стал мейнстримом в Америке после Гражданской войны. Более состоятельные семьи могли сжигать уголь в печах в подвале — с отдельными комнатами, предназначенными для хранения угля, — в то время как более бедные семьи могли использовать небольшие печи в отдельных комнатах своего дома.
Архитектура дома также изменилась по мере изменения технологий отопления.
В то время как колониальные дома 18-го века нуждались в больших дымоходах для поддержки нескольких каминов, для домов, построенных во второй половине 19-го века, требовалось только вентиляционное пространство для печных труб. Это превратилось в более тонкие дымоходы.
Внутри иногда оставались накидки, служившие фоном для печей. Хотя технически в них больше не было необходимости, они продолжали действовать в качестве координационного центра в комнате.
Мантия, которая никогда не предназначалась для окружения камина, а скорее служила фоном для угольной печи.
Также в XIX веке в игру вступил паровой нагрев , который впервые появился в 1850-х годах, но приобрел популярность в 1880-х годах. Адамс объясняет, что это просто еще одна форма нагрева углем, поскольку уголь будет использоваться для нагрева воды, которая превращается в пар.
Паровое отопление сначала использовалось в институциональных зданиях, таких как больницы, но затем переехало в жилые дома.
Одним из самых сложных примеров парового отопления в 19 веке был Biltmore Estate, особняк, принадлежащий Вандербильту, в Эшвилле, Северная Каролина.
«Ричарду Моррису Ханту, архитектору Билтмора, потребовалось отапливать примерно 2 300 000 кубических футов пространства для дома площадью 175 000 квадратных футов», — говорит Дениз Кирнан, автор книги «Последний замок: эпическая история любви, потерь и Американские роялти в самом большом доме нации .
Кирнан объясняет, что в подвальном помещении Билтмора, строительство которого было завершено в 1895 году, было три котла, способных вмещать 20 000 галлонов воды по каждый по .Эти котлы производили пар, который циркулировал в радиаторах в сети шахт вокруг дома, система, которая кажется простой в теории, но быстро усиливается, когда понимаешь, что сеть должна была отапливать 250 комнат.
«Конечно — этой системе отопления помогали 65 каминов, одни более утилитарные, другие — чрезвычайно сложные», — добавляет Кирнан.
Отопление самого большого частного дома в Америке было непростым делом: в The Last Castle Кирнан сообщает, что за две недели зимой 1900 года было сожжено 25 тонн угля.Чтобы подготовиться к зиме 1904 года, Вандербильты разместили заказ на отправку 500 тонн угля.
Поместье Билтмор в Эшвилле, Северная Каролина. Предоставлено компанией Biltmore.
Независимо от того, насколько продуманной или примитивной была выбранная система отопления в 19 веке, казалось, что все методы, будь то дрова или уголь, объединены, была зависимость от себя, чтобы зажечь огонь и подать тепло.Что-то, что изменилось в 20-м веке, когда национальные сети электричества и газа коренным образом изменили способ отопления наших домов, — но это уже другая история.
«Очаг становится индустриальным на протяжении 1800-х годов, но люди по-прежнему хотели разводить огонь сами», — теоретизирует Адамс. «Теперь нам очень нравится идея, что мы можем щелкнуть выключателем, чтобы включить тепло, но сто лет назад этого не было.
Они были достаточно близки к той эпохе открытых, ревущих каминов, что люди хотели контролировать собственное тепло! »
Очистка дымохода, футеровка и очистка дымохода
Обязательно прокрутите вниз… на этой странице может быть несколько вопросов!
Уважаемый NH,
Недавно я купил особняк 1912 года в округе Колумбия. Есть 2 дымохода
в доме один для камина и один для отвода газа
горелка. Горелка была установлена в 1996 году, и подрядчик в своем
бесконечная мудрость, не стал устанавливать внутрь новый вкладыш. Итак, газ
горелка выходит в терракотовую облицовку, где использовалась масляная горелка
выпустить воздух. Я понимаю, что это может представлять некоторую опасность пожара и
Мне интересно, насколько просто мастеру самостоятельно установить
«обтягивающий» лайнер из нержавеющей стали.
CT из Вашингтона, округ Колумбия
CT,
Нет опасности возгорания, вызванной выпуском газовой печи в
кладка дымохода.
Выхлоп из газовой печи довольно прохладный по сравнению с масляным
стандарты вытяжки печи или камина. Фактически, во многих домах есть
выхлоп газовой печи выходит из дома на уровне земли без дымохода
вообще за счет использования специальных вентиляторов и, хотите верьте, хотите нет,
Труба ПВХ (пластик)!
Существует реальная вероятность того, что ваш дымоход
«негабаритный».Негабаритный дымоход — это дымоход, превышающий
максимальный размер, рекомендованный производителем печи.
Дымоход правильного размера будет иметь мощный восходящий тяг …
воздуха в хорошо спроектированной трубе, которая вытягивает выхлопные газы и
из! Эффективный дымоход достаточно мал, чтобы
тяга, но достаточно большая, чтобы вместить максимальное количество выхлопных газов
газ, который может генерировать ваша печь. Если дымоход не «тянет» выхлоп
адекватно или если лайнер поврежден, вы
предположительно могут образоваться нездоровые скопления окиси углерода
вызванные нисходящими потоками, выталкивающими выхлопные газы обратно в ваш дом.
Окись углерода не имеет запаха, но очень токсичен.
побочный продукт сгорания. Есть статья об опасности
Пальто
https://www.naturalhandyman.com/iip/infsisters/infco.html
При недостаточной тяге влага и другие выхлопные газы не
быстро выйти из дымохода, что приведет к конденсации воды в дымоходе.
дымовая труба. Дымоход должен достаточно нагревать стенки дымохода.
для предотвращения конденсации влаги в выхлопе.Если не,
влага может вызвать кислотную коррозию, которая разъедает цемент
между секциями кладки облицовки дымохода, что в конечном итоге приводит к
дыры в стенах дымохода и утечка выхлопных газов в ваш дом.
Другая возможная опасность дымохода плохого размера — образование конденсата.
Большая часть побочного продукта сжигания природного газа или пропана — вода.
пар. Если значительный
на кладке конденсируется влага, есть вероятность растрескивания
во время зимних циклов замораживания / оттаивания.
Эта ситуация хуже, если
внутри дымохода есть оголенный кирпич, так как кирпич
абсорбент и, следовательно, такой же уязвимый к растрескиванию, как и цемент.
Дымоходы с терракотовой облицовкой могут иметь оголенный кирпич, если есть
«смещение» … дизайнерский прием, используемый, когда дымоход
не полностью вертикальный, а скорее смещается в сторону. Смещения
часто встречается в дымоходах с несколькими дымоходами, в которых используется один вертикальный
дымоход для раздельного камина и дымохода.
Единственный способ узнать, безопасен ли дымоход
и эффективно, чтобы его проверил профессиональный специалист по HVAC. Этот
pro также может сказать вам, разумно ли или даже необходимо ли
установить вкладыш в дымоход, или даже если альтернативная система вентиляции
может быть дешевле и безопаснее. Изменение размера, конечно, может быть
с футеровкой из нержавеющей стали.
Если дымоход
в остальном конструктивно прочный, лайнер может быть установлен с небольшим
если есть модификация кладки.
Хотя облицовка дымохода нержавеющей сталью, безусловно, находится в пределах
физические способности умелого мастера, я не решаюсь рекомендовать его как
работа своими руками из-за потенциальных опасностей, которые могут быть
присутствует, если работа не выполнена должным образом.
Уважаемый NH,
Два года назад я переехал в 10-летний дом. Это было естественное
газопровод, идущий к камину с искусственными бревнами. Не зная, есть ли
раньше его использовали для сжигания дров, я прочистил дымоход
Решил придерживаться газовых журналов.Как часто мне нужен дымоход
почистили в будущем?
BS
БС,
Тебе повезло! Вам, вероятно, больше не придется его чистить. В
выхлоп из газовых бревен — это в основном водяной пар, немного углекислого газа
и, если горение неэффективно, немного окиси углерода.
Эти
побочные продукты сгорания не вызывают коррозии и не оставляют никаких следов
поэтому они не будут иметь значительного кратковременного воздействия на подкладку
ваш дымоход.
Конечно, разумно время от времени проходить осмотр у профессионала, просто
убедиться, что в облицовке дымохода не образовались трещины или, если
у вас металлический дымоход, чтобы он не заржавел. Утечка
влажный выхлоп в стены вокруг дымохода может привести к
типичные проблемы, связанные с влажностью … снятие краски, гниение дерева,
поражение плесенью и насекомыми. Этот осмотр не должен стоить очень дорого.
много, и это следует делать не реже одного раза в 3-5 лет.
Уважаемый NH,
Я покупаю дом 1922 года. Дымоход у меня вопрос
about — это тот, который используется для вентиляции печи. Владелец сказал мне, что это
внутри нет лайнера. Мне интересно, если еще в 20-х они
даже вкладыши в них кладут.
Что я должен делать? Нужен ли мне один в дымоходе?
Я считаю, что это будет капитальный ремонт, так как он идет вплоть до
подвал. Дымоход в порядке.
SO
SO,
Вкладыши дымохода (огнестойкая или устойчивая облицовка из кирпича, камня или
конструкция дымохода из цементных блоков) не всегда требовалась строительными нормами, поэтому это вполне
Возможно, дымоход не имеет облицовки.Учитывая возраст
дом, также есть большая вероятность того, что добавление лайнера может быть
необходимо для вашего здоровья и безопасности!
При определении типа работ, которые могут потребоваться дымоходу, необходимо учитывать одно важное
вопрос в том, какое топливо вы сжигаете … дрова, уголь, масло или природное
газ? Если вы сжигаете уголь или дрова, вы обязательно должны получить
дымоход проверен профессионалом, чтобы убедиться, что он безопасен в использовании.
Если вы используете нефть или природный газ для нагрева воды, ситуация может быть
менее критично, поскольку ни один из них не выделяет столько тепла в выхлопе, а
при условии, что профессиональная проверка не обнаружит утечки газа! Это не
то, что вы должны сделать сами . .. на карту поставлено очень многое.Оба эти
у топлива есть еще одна потенциальная опасность … а именно окись углерода в
выхлоп. С природным газом возникает дополнительная проблема:
конденсации, так как большая часть выхлопных газов от сжигания природного газа
водяной пар. Если дымоход прикреплен к дому и имеет ЛЮБЫЕ трещины или
разрывы в блоке, кирпиче или строительном растворе, окись углерода (CO) может
просачиваться в ваши стены. Даже если суммы не опасны для жизни, воздействие
к CO может вызвать легкие и разрушительные последствия для здоровья в долгосрочной перспективе.В качестве
упоминалось ранее, влага от сжигания природного газа просачивается в
стены могут поднимать внутреннюю или внешнюю краску и даже начать гнить
в стенах!
В настоящее время используются два метода замены футеровки дымохода. Требуется
вставка гибкой стальной или алюминиевой трубки, которая действует как новый
вкладыш для дымохода. Второй метод включает покрытие внутренней части вашего
существующий дымоход из специального материала, который герметизирует и восстанавливает
существующий лайнер.
У вас может быть другой вариант… альтернативная вентиляция.Если вы используете натуральный
газ, например, местный строительный кодекс может разрешить вам выпускать
наружу вашего дома в любом месте над уровнем земли … и не
вообще использовать дымоход!
В любом случае вы должны проконсультироваться с местным инспектором по дымоходам (или с двумя или более, если
вы предпочитаете), чтобы получить «худой» от состояния дымохода. С
разные подрядчики предложат разные решения (и, возможно, разные
цены) стоит иметь хотя бы пару мнений. В знаниях
сила!
NH
Вам нужно разрешение? — SDCI
Получение разрешения на ваш проект дает несколько преимуществ, в том числе увеличение стоимости при перепродаже, гарантия того, что ваша страховая компания покроет расходы на ремонт, и избежание комплиментов по поводу неразрешенных работ.
Для большинства проектов в Сиэтле требуется разрешение. Краткий справочник по часто необходимым разрешениям см .:
Для некоторых небольших проектов разрешение не требуется.
Список работ, на которые не требуется разрешение, можно найти в:
Даже если вам не нужно разрешение, ваш проект должен соответствовать всем требованиям кодекса и стандартам разработки. Вы можете найти информацию о разрешениях на электричество, водопровод, боковую канализацию, строительство и землепользование на странице Типы разрешений.
Если вы не находитесь в экологически критическом районе, для следующих проектов обычно не требуется разрешение.
Мелкий ремонт или переделка. Вам не нужно разрешение на мелкий ремонт или переделку, стоимость которых составляет 6000 долларов или меньше, в течение любого 6-месячного периода. Лимит в 6000 долларов основан на справедливой рыночной стоимости рабочей силы и запчастей, даже если вы выполняете работу самостоятельно.
Вам необходимо разрешение на любые работы с несущими опорами, изменения ограждающей конструкции здания и работы, которые уменьшают выход, свет, вентиляцию или огнестойкость , независимо от того, насколько мал проект .
Разные работы. Эти проекты обычно не требуют разрешения:
- Внутренний дворик и бетонные плиты на земле (на уровне)
- Покраска или уборка здания
- Перетяжка дымохода
- Установка кухонных шкафов
- Обшивка или другая отделка поверхности существующих стен и потолков
- Изоляция существующих зданий
- Борьба с опасными материалами
- Ограниченный ремонт или аналогичная замена изношенных частей конструкции
Строительство и ландшафтный дизайн. Обычно разрешение на
не требуется.
- Одноэтажное отдельно стоящее вспомогательное здание, такое как оранжерея, сарай для инструментов или хранения, игровой домик или подобное здание, если проектируемая площадь крыши составляет менее 120 квадратных футов, а фундамент здания представляет собой только плиту на земле
- Некоторые подпорные стены и рокарии высотой не более 4 футов, измеренной от нижней части основания до верхней части стены
- Заборы высотой менее 8 футов без бетонных или каменных элементов высотой более 6 футов
- Беседки или другие открытые ландшафтные конструкции площадью не более 120 квадратных футов
Платформы, дорожки и проезды.
Для них разрешение не требуется, если они находятся на высоте менее 18 дюймов над уровнем земли, а не над подвалом или другим этажом здания.
Замена кровли и сайдинга. В отдельно стоящих одно- и двухквартирных домах разрешение на замену существующей обшивки крыши или ремонт крыши не требуется, только вы не вносите изменения в ограждающую конструкцию здания, и работа выполняется так же хорошо, как и существующая конструкция.
Антенны тарелочные и панельные. Для установки тарелок и панельных антенн 6 шт. Разрешение не требуется.56 футов (2 метра) или меньше в диаметре или по диагонали.
Резервуары подземные. Вам не нужно наше разрешение на удаление или замену подземных резервуаров для хранения, которые регулируются государственным или федеральным агентством. Для удаления, замены и вывода из эксплуатации подземных резервуаров для хранения требуется разрешение Департамента пожарной охраны Сиэтла.
Решая, когда его заменить — когда этот старый котел снят?
Как и на многие другие вопросы, ответ будет «в зависимости от обстоятельств».
«Многие люди думают о котле 20 или 30 лет так же, как они думают о 10 или 15-летнем автомобиле:« Возможно, скоро его нужно будет заменить, поэтому я не буду тратить много денег в теме. Я просто подожду и посмотрю, что произойдет ». Когда машина проработает еще несколько лет, люди начинают думать:« Если она продержалась так долго, неизвестно, как долго я смогу ее продержать, поэтому я собираюсь позаботьтесь об этом ». То же самое происходит с котлами, когда они доживают до 40 или 50. Уловка состоит в том, чтобы знать, будет ли котел работать долгие годы.
Есть несколько факторов, которые следует учитывать при принятии решения о сохранении существующей
котел или установить новый, но главным фактором является состояние металла
котел сделан из. К другим относятся состояние дверей, кирпичной кладки,
горелку и средства управления, а также пригодность существующего оборудования для применения.
Если котел не того размера, возможно, стоит заменить его независимо от
его состояние.
Визуальный осмотр металла внутри котла — самый надежный
способ оценки состояния котла, и это следует делать, когда это возможно.Стальные котлы мощностью более 100 лошадиных сил, которые обычно можно найти в многоквартирных домах.
здания, оборудованы люками, которые можно снять, чтобы можно было
осмотрел визуально. Однако чугунные котлы и многие стальные котлы не работают.
иметь условия для осмотра изнутри. Выключение котла и слив
открыть его — не повседневное мероприятие, поэтому необходимо использовать другие методы.
использовал. Если местные нормы или правила страхования требуют ежегодных внутренних проверок,
Проверка состояния котла один раз в год, как правило, является хорошей мерой.
Избавление от ржавчины
Как уже упоминалось, состояние металла, из которого сделан котел, является первичным.
рассмотрение вопроса о ремонте или замене котла.
Как металл начинает портиться
на первом месте?
Некоторые котлы используются в системах водяного отопления, которые,
теоретически это замкнутые контуры без потери воды из системы.Прочие котлы
никогда не нагревайте одну и ту же воду дважды. Например, опреснительный котел на подводной лодке.
кипятит морскую воду, чтобы отделить воду от соли и образовавшийся пар может
конденсироваться в питьевую воду. Соль остается в котле, который
часто очищается продувкой водой или паром под давлением, и
механическая очистка. Большинство котлов находятся где-то между этими двумя крайностями,
используя смесь новой и оборотной воды.
Если система, к которой подключен котел, должна быть замкнутой,
или в основном замкнутый контур, но есть утечки, затем течет жидкая вода или пар
out заменяется новой водой, содержащей новый кислород и новые минералы.Если
котел подключен к системе парового отопления, вода поглощает кислород из
воздух, который пар выталкивает из радиаторов и трубопроводов каждый раз, когда
система наполняется паром.
Если котел каким-то образом не защищен, кислород
и минералы в воде в конечном итоге разрушат котел. Это наверное
самая частая причина выхода из строя котлов многоквартирного дома.
Кислород в воде и металл, из которого сделан котел, образуют
ржавчина на внутренней поверхности, где вода и металл соприкасаются, независимо от
будь то котел чугунный или стальной.Эта деградация продолжается
пока металл не станет настолько тонким, что он выйдет из строя и из бойлера не потечет вода или пар.
Меры защиты
Очевидно, незащищенный котел, в который было залито большое количество новой воды.
будет в худшем состоянии, чем если бы он был защищен или имел мало
или в него не подается новая вода. Существуют различные стратегии защиты
бойлеры от повреждения кислородом и минералами в воде. К ним относятся
химическая обработка, аноды и нагреватели питательной воды.
Химическая обработка обычно используется для уменьшения проблем, связанных с
кислород и минералы в котловой воде.
Две типичные процедуры состоят из:
«¢ Использование веществ, предназначенных для удержания минералов, растворенных в воде, чтобы они
покинуть котел из-за протечек или после опорожнения котла, вместо того, чтобы оставаться
позади и наращивания масштаба.
«¢ Использование химикатов, предназначенных для реакции с кислородом в питательной воде для предотвращения
кислород от реакции с металлом, из которого сделан котел.
Химические вещества, называемые хроматами, очень эффективны и использовались годами, пока
они были запрещены за причинение вреда здоровью. Местные поставщики могут предоставить меньше
опасные химические вещества, оптимизированные для использования с водой в определенной области. Что бы ни
используемые химикаты будут потеряны из-за любых утечек в предположительно замкнутом контуре
системы, поэтому к химикатам обычно добавляют цветные красители, чтобы помочь обнаружить их
потеря.
Мы предполагаем, что если краситель все еще виден в котловой воде, химикаты
не просочилась, и, если краситель исчез, химикаты тоже.
Доступны расходные аноды для котлов. Это куски металла, которые
окисляется легче, чем бойлер, тем самым защищая его. Тип резервуара для хранения
водонагреватели, обычно используемые в домах, обычно содержат аноды, а водонагреватели
с более длительной гарантией обычно имеют второй или больший анод.Периодический
замена анода (ов) может продлить срок службы водонагревателя или бойлера,
хотя новые котлы часто не оснащены анодами.
Нагреватели питательной воды, которые защищают котел, нагревая питательную воду для отвода
кислород, растворенный в питательной воде, также доступен. Подогреватели питательной воды
используется на больших котлах, потребляющих большое количество питательной воды, например, пара
котлы, используемые в крупных промышленных предприятиях и на электростанциях.
Подогреватели питательной воды обычно не используются с отопительными котлами, установленными в квартире.
комплексы или односемейные дома.
Уменьшение количества новой воды, поступающей в котел, лучше защищает котел
чем любые химикаты или аноды. Если в бойлер не поступает новая вода, а вода
не поглощает кислород при контакте с воздухом, кислорода очень мало
для ржавления котла и отсутствия минералов, образующих накипь.Котел, который получает
можно ожидать, что только небольшого количества новой воды хватит на десятилетия. Следовательно,
один из способов оценить состояние котла — узнать, сколько новой воды
вошел в нее.
Есть ли утечки?
Самый очевидный способ — просто обойти здание в поисках утечек.
чтобы предотвратить повреждение котла. Однако многие утечки найти не так-то просто.
Например, подземные трубопроводы часто протекают там, где никто не видит
утечка.
Системы парового отопления в многоквартирных домах имеют «трубы возврата пара».
бег по цокольному этажу или под ним, чтобы вернуть воду в
котел. Если эти возвратные линии заглублены, они вступают в реакцию с почвой и ржавчиной.
быстро, иногда возникающие утечки, когда им меньше пяти лет. Возвращаться
линии, частично покрытые грязью и цементом, также уязвимы для сокращения срока службы.
Если обратные линии выходят на поверхность пола, они должны оставаться в таком положении.
Если трубопровод зарыт в землю, предполагается, что он протекает, и заменить его на
надземный трубопровод.
Системы парового отопления могут терять значительное количество воды из любой из
множество воздушных клапанов по всей системе, которые могут выйти из строя в открытом положении. Горячей
системы водяного отопления теряют воду из-за уплотнений клапанов и насосов, которые
сливать воду слишком медленно, чтобы утечка была видна.
Существует множество подсказок, помогающих определить количество питательной воды,
вошел в бойлер.
Иногда дальновидный человек устанавливает водомер
для измерения питательной воды.Периодические показания счетчика показывают, сколько воды в котле.
проигрывает. Что еще более важно, увеличение показаний показывает увеличение
потребление и может предупредить людей о поиске проблемы. К сожалению, типичный
котельные установки не включают счетчики воды и историю потребления.
Осмотр предохранительного клапана котла или его нагнетательного трубопровода может выявить
свидетельство утечки в клапане. Ржавчина или масштабирования на выпускном трубопроводе указывает
вода, вероятно, выходила из котла через этот трубопровод.Многие закрытые
петлевые системы, такие как системы водяного отопления, имеют недостаточное расширение
емкость бака, в результате чего давление превышает давление предохранительного клапана.
настройки, что, в свою очередь, заставляет предохранительный клапан выталкивания выполнять свою работу и выпускать
воды. Новый предохранительный клапан — это признак того, что старый клапан, вероятно, разрядился.
поливайте регулярно, и что новый может делать то же самое, если исходная проблема
не решена.
Пятна ржавчины на полу под напорным трубопроводом — верный признак
котла поврежден чрезмерным количеством питательной воды.Один трюк, который я использую, — продвигать бизнес
карту в нагнетательный трубопровод. Если я когда-нибудь вернусь в ту же котельную, я
могу проверить, не намокла ли карта с тех пор, как я был там последний раз. Продувки и
стоки можно проверить на наличие подтеков и ржавых пятен, которые являются признаками
слива воды. Некоторым людям не нравится водосток на пол, и
настаивайте на подключении их непосредственно к сливным трубам, так как они могут скрыть утечки. Я видел
один котел в 70-квартирном многоквартирном доме на Бродвее в Манхэттене полностью
сгнили, потому что кто-то оставил сливной клапан частично открытым на несколько месяцев, но никто
заметил, потому что труба шла прямо в канализацию.
Подающие клапаны обычно имеют сетчатые фильтры, которые забиваются и требуют замены или очистки.
Подающий клапан или сетчатый фильтр, которые забиваются или требуют замены чаще, чем
другие в аналогичных системах — признак избытка питательной воды. Если вы видите несколько
в углу котельной валяются старые кормушки или подающие краны
это верный признак того, что бойлер протекает. Еще одна подсказка — ржавчина на поверхности
клапана подачи, что указывает на охлаждение большого количества питательной воды
подающий клапан, достаточный для конденсации влаги из воздуха и образования ржавчины на
поверхность подающего клапана.
Могут присутствовать и другие признаки того, что бойлер обслуживается на предмет утечек.
Использованные заглушки, валяющиеся вокруг котельной, обычно указывают на то, что кто-то забит
пробки были сняты и оставлены для использования в будущем.
Размеры трубок, написанные мелом на стене, указывают на человека, заменяющего трубки.
ожидает вернуться. Очевидно, выброшенные трубы или чугунные секции в
котельная свидетельствует о ремонте котла.
Замена негерметичных секций
Когда одна секция чугунного котла повреждена настолько, что произошла утечка воды или
steam люди иногда заменяют только этот раздел. К сожалению, все разделы
с такой же скоростью страдают от питательной воды, так что хороший аргумент может
производиться для замены всех секций при утечке. То же самое можно сказать
стального котла.
Затраты на рабочую силу, связанные с заменой всех секций, иногда составляют всего лишь
немного больше, чем стоимость замены одного раздела, потому что другие разделы обычно
необходимо разобрать, чтобы удалить протекающую секцию.В реальном мире краткосрочные
мышление и отсутствие денег часто убеждают людей заменить только утечку
раздел. Когда стальной котел протекает, утечка обычно происходит в трубе, потому что
трубы сделаны из более тонкой стали, чем остальная часть котла, для увеличения нагрева
передача. При утечке трубок их можно заменить или временно закрыть. Обычно
когда течет только одна или две трубки, их разумно закрыть, чтобы отложить
стоимость замены на более позднее время, когда предположительно большее количество трубок может
можно заменить за один раз.
В то время как трубки ржавеют и заменяются на протяжении многих лет, остальные
котел тоже ржавеет, но повреждения других частей котла не так заметны
потому что из более толстого металла, из которого сделана остальная часть котла, требуется больше времени, чтобы
ржавчина насквозь. Если в котел поступает достаточно кислорода, со временем более толстые части
получить достаточное повреждение, чтобы вызвать структурные проблемы или утечки. Котлы низкого давления
(с максимальным давлением 15 фунтов на кв. дюйм) обычно устраняются путем сварки новых стальных пластин.
на месте поврежденной стали, но котлы высокого давления становятся небезопасными, если их конструктивно
поврежден.
Если в стальном котле низкого давления ремонтировались детали, кроме труб, такие
как кожух или трубные решетки, разумно предположить, что котел близок к концу
своей жизни. Аналогичным образом, если в чугунном котле были заменены некоторые секции,
разумно предположить, что остальные разделы необходимо будет заменить
скоро. В случае стального котла, котел, его органы управления и горелка
обычно снимаются и заменяются при замене котла из соображений экономии
а некоторые коды запрещают установку бывших в употреблении деталей.В случае чугуна
котлов не редкость замена всех секций котла на идентичные
замены при сохранении элементов управления, горелки и трубопроводов на месте. Это спасает
время и стоимость ремонта и подключения котла, что может сэкономить деньги.
оформления разрешительной документации, если работа рассматривается как ремонт.
Дополнительные сведения Размер . Если котел слишком мал из-за прошлых ошибок или замены
load нет смысла держать его. Горелки. Если горелку необходимо заменить, но она устарела, и детали
больше не доступны, это может стать решающим фактором при выборе
бойлер или заменить его. Во многих случаях целесообразно оставить котел и
заменить горелку и элементы управления. Старые горелки типа «вращающаяся чашка» могут производить
больше загрязнения и может быть менее безопасным и менее эффективным, чем новые горелки.
Однако легко переоценить выигрыш в топливной эффективности, связанный с
с заменой котла или горелки.Одна из распространенных ошибок — сравнивать горение
эффективность существующего, не настроенного котла на новый котел, который предположительно
настроен идеально. Было бы более реалистично сравнить эффективность
существующий котел после настройки на КПД предлагаемого нового котла.
Большая часть повышения эффективности обычно отдается замене котлов.
следует отдать должное настройке, новым элементам управления и тщательным настройкам элементов управления.
сделано во время установки котла, все это можно было сделать до
существующий котел.
Трубопровод. Если трубопровод котла установлен неправильно и образует влажный пар,
(грохот труб) или трудности с подачей тепла, может быть стимул для
поменять бойлер.
Однако проблемы с трубопроводом можно исправить, не меняя котел. Много
люди быстро осуждают котел из-за проблем, связанных с его
и ожидайте, что эти проблемы будут устранены новым котлом. Но затем
часто означает замену оборудования, установленного кем-то, кто вырос на строительстве
и чинить вещи с помощью оборудования, установленного кем-то, кто вырос на видео
игры.Замена котла не является гарантией того, что проблемы с трубопроводами или элементами управления
станет лучше. На самом деле они могут ухудшиться.
Двери и крышки для чистки. Многие котлы можно сохранить и заставить работать
хорошо если установка и другие проблемы решатся. Например, когда сталь
из дверей котла начинают течь горячие дымовые газы, утечки можно закрыть
керамическая канатная прокладка и высокотемпературная герметизация. Однако, если утечка продолжается
достаточно долго, неравномерный нагрев приведет к слишком сильной деформации дверцы, и прокладки не смогут ее закрыть
Это.Когда двери перекручиваются и котельная непрерывно снабжается продуктами
от горения помещение становится неприятным, грязным, опасным (из-за угарного газа),
и коррозионный конденсат из продуктов сгорания начинает разъедать
на каком бы металле он ни конденсировался, например, в электрических коробках.
Вскоре комната выглядит и пахнет так плохо, что люди, в том числе работающие
на котле, хочется проводить в нем как можно меньше времени. Готовность собственника
потратить деньги на котел и энтузиазм людей, которые на нем работают
уменьшаются, пока в конце концов котел не перестанет работать, и все участники
выступает за замену.
Разумная альтернатива замене котла — покупка новых дверок котла.
и плотно заклеить, затем очистить котельную и установить дополнительные
освещение. У котла были разумные шансы на исправную работу для многих
годы.
У чугунных котлов аналогичные проблемы с утечкой. Крышки для чистки и дымовые газы
коллекторы обычно крепятся к котлу с помощью специального оборудования, которое разъедает
и его трудно использовать после многократного снятия для обслуживания и очистки.Если никто
требуется время для специального заказа оборудования, герметичных крышек, дымовых коллекторов
перекоситься и протечь, и котел устареет раньше срока. К сожалению, мало котлов
обращаются к новым дверям или крышкам для чистки, и многие котлы заменяются, когда
утечки дымовых газов ухудшаются.
Резюме
Обдумывая, отремонтировать или заменить котел, сначала оцените
состояние металла, из которого изготовлен котел, любыми доступными способами.Если котел почти проржавел, его, вероятно, вскоре следует заменить. Если
состояние металла не свидетельствует о ближайших проблемах, хорошее следующее
Шаг заключается в оценке стоимости нового котла по сравнению со стоимостью внесения достаточного количества улучшений.
к существующему котлу, чтобы он работал так же, как новый. Тогда решение
оставить котел или заменить его можно.
Генри Гиффорд — владелец здания и пенсионер / оператор отопления.
системная подрядная компания, специализирующаяся на ремонте неисправного отопления
системы.Перепечатано с любезного разрешения HPAC Engineering на сайте www.hpac.com.
FAQ’s — ProCom Heating
Для вентилируемого отопления требуется вентиляция наружу, либо через трубопровод, либо через заслонку в существующем камине.
Без вентиляции, также известное как безвентиляционное отопление, вентиляция не требуется. ProCom не гарантирует, что их продукты без вентиляционных отверстий будут правильно работать на высоте более 4500 футов. над уровнем моря. Заказчики могут столкнуться с перебоями в работе пилотного проекта и проблемами с производительностью продукта.
Оба типа обогрева безопасны при условии, что конкретный блок был сертифицирован и установлен в соответствии с инструкциями производителя.
Да, в большинстве штатов США разрешена продажа и установка «дополнительных» газовых обогревателей без вентиляции.
Продукты ProCom Ventless оснащены пилотным узлом ODS, высокоточными горелками для чистого горения и нерегулируемым регулятором для предотвращения чрезмерного воспламенения. Назначение ODS — перекрыть подачу газа в обогреватель / камин, когда уровень кислорода упадет ниже 18%.
Все основные строительные нормы и правила определяют отсутствие вентиляции как «дополнительное отопление». Местные коды могут отличаться. Калифорния в настоящее время не разрешает использование установки без вентиляции. Для получения дополнительной информации посетите: www.ventfree.org
Голубое пламя
Обогревает как система центрального отопления — сначала нагревая воздух, а затем циркулируя тепло по комнате, горячий воздух поднимается вверх
Может потребоваться больше времени для обогрева помещения, так как он работает на «конвекцию» всей площади.
Обычно лучше работают в изолированных помещениях
Инфракрасный (пластинка)
Нагревается подобно солнцу, излучая тепло, сначала непосредственно нагревая предметы в комнате, а наружу.
Больше похоже на то, что стоишь перед огнем
Обычно лучше работает в неизолированных помещениях, поскольку они нагревают предметы раньше, чем воздух.
Чем отличается специальный газовый продукт от двойного топлива?
Специальные продукты производятся из деталей, разработанных специально для природного газа или пропана (LP) и не могут быть преобразованы с одного газа в другой.
Двухтопливные продукты позволяют выбрать использование природного газа или пропана (LP)
Могу ли я преобразовать свой безвентиляционный (Vent-Fee) топливный блок для одного типа газа в другой?
ProCom не предлагает комплекты для переоборудования, и переоборудование может привести к аннулированию гарантии производителя на продукты для конкретных газов.
Какие ограничения для Ventless NG?
Природный газ из земли без запаха.Характерный «газовый» запах добавляется впоследствии поставщиком под названием «меркаптан», содержащий серу, который придает ему характерный запах «тухлого яйца».
Установки
NG не могут быть подключены к частной (не коммунальной) газовой скважине, также известной как «устьевой» газ. Обычно они находятся в сельской местности, где нет доступа к газовым линиям, принадлежащим коммунальным предприятиям. Этот газ не имеет запаха, поэтому опасен, поскольку утечку невозможно быстро обнаружить.
Какой тип регулятора требуется снаружи для прибора LP?
Размеры регуляторов
соответствуют прибору, а не контейнеру, к которому вы подключаетесь.Есть три (3) ключевых элемента информации:
- BTU Нагрузка прибора
- Рабочее давление устройства (водяного столба 11-14 дюймов водяного столба)
- Требуемый размер входного и выходного патрубков. (См. Раздел «Поиск и устранение неисправностей»)
«Интегральная двухступенчатая система» является наиболее распространенной для жилых помещений. Если баллон с пропаном находится на расстоянии 15 футов или более от прибора, рекомендуется «Двухступенчатая система», поскольку пропан необходим для правильной и эффективной работы прибора.
Интегральные близнецы
Двухступенчатая система
Какой размер резервуара LP необходим для безвентиляционных газовых продуктов?
Минимальное требование — бак на 100 фунтов. Если используется резервуар меньшего размера, пропановая жидкость не имеет достаточного давления для испарения, нагреватель может начать работать неправильно. Это также может повредить внутренний регулятор.
Количество пропана, готового к использованию, из пропановых баллонов варьируется.Эту сумму определяют два фактора:
- Количество пропана в баллоне (ах)
- Температура бака (ов)
Чем ниже температура наружного воздуха, тем медленнее скорость испарения пропана, LP внутри резервуара не будет испаряться достаточно быстро для работы прибора и создаст иней на внешней стороне резервуара и вызовет отключение устройства из-за отсутствие топлива.
ВАЖНАЯ ИНФОРМАЦИЯ: Единственным исключением является нагреватель ProCom Ice House, который использует минимум 20 фунтов.бак.
Что означает термин «БТЕ»?
«BTU» — британская тепловая единица. БТЕ — это количество энергии, необходимое для подъема одного (1) фунта воды на один градус по Фаренгейту.
- 1 БТЕ = тепло, выделяемое 1 зажженной спичкой.
- БТЕ на основе кубических футов воздуха, доступного в зоне.
- Давление в коллекторе и размер отверстия определяют мощность горелок в БТЕ.
Ограничения
Настенные обогреватели и печи:
Чтобы рассчитать максимально допустимые БТЕ для площади, воспользуйтесь следующей формулой:
Ширина помещения x длина помещения x высота помещения x 20
Пример: 10 футов.x 20 футов x 8 футов = 1600 кв. футов
1600 кв. Футов x 20 = 32000 (максимум)
Вставки для газовых бревен и каминов:
Максимальные БТЕ для камина или топки варьируются в зависимости от того, является ли агрегат вентилируемым или вентилируемым.
Максимально допустимый набор БТЕ зависит от: Ширина спереди — Глубина — Высота
Ширина спереди: 24 дюйма (ширина сзади: 18 дюймов) — Глубина: 15 дюймов — Высота: 18 дюймов
Место для набора вентилируемых бревен 18 ″
PFA, GFA, для строительства и верхних обогревателей:
Cu.Ft. площади x 0,33 x желаемая температура. Рост ° F = Требуемый размер БТЕ
Пример: Площадь: 50 x 25 x 10 = 12500 Cu. Ft.
Желаемая темп. Подъем: 30 ° F 12500 (Cu. Ft.) X 0,133 (коэффициент) = 1662,5
1662,5 x 30 = 49 875 (50 000)
Что такое топка без вентиляции?
Топка без вентиляции имеет «нулевой» зазор, что означает следующие единицы:
- Можно ставить на пол без опор.
- Можно закончить до лицевой стороны камина, чтобы не было видно металла после завершения установки
Требования к установке и дополнительную информацию см. В Руководстве по эксплуатации и установке.
Каковы требования к установке безвентиляционного отопления?
Для того, чтобы установка соответствовала федеральным кодексам, все блоки ProCom должны быть установлены лицензированным подрядчиком по отоплению в соответствии со всеми местными правилами. В Руководстве для владельца указано, что только квалифицированное агентство должно устанавливать и заменять газовые трубопроводы, оборудование или аксессуары для утилизации газа, а также проводить ремонт и обслуживание оборудования.
Термин «квалифицированное агентство» означает любое физическое лицо, фирму, корпорацию или компанию, которые лично или через своего представителя задействованы и несут ответственность за:
- Установка, проверка или замена газопровода
- Подключение, установка, проверка, ремонт или обслуживание оборудования; опыт в такой работе; знаком со всеми необходимыми мерами предосторожности; и выполнил все требования компетентного органа.
Примечание: Массачусетс требует одобрения Государственной экзаменационной комиссии сантехников перед установкой. Для конкретных кодов ProCom см .: http://license.reg.sate.ma.us/pubLic/pl_products
Где я могу установить безвентиляционный обогреватель?
Никогда не устанавливайте обогреватель:
- Более 10 000 британских тепловых единиц / час в ванной комнате
- Более 6000 БТЕ / час в ванной (см. Местные коды).
- В транспортном средстве для отдыха
- Если шторы, мебель, одежда или другие легковоспламеняющиеся предметы находятся на расстоянии менее 36 дюймов от передней, верхней или боковых сторон обогревателя.
- В местах с высокой проходимостью
- В ветреных или сквозняках
Важно: Пожалуйста, ознакомьтесь с местными правилами и нормами штата для установки прибора без вентиляции.
Просмотрите руководство по установке для конкретной модели в руководстве владельца / оператора.
Какие существуют ограничения по высоте для отопления без вентиляции или без вентиляции?
Производители устройств без вентиляции, как правило, не рекомендуют использовать свою продукцию выше 4500–5000 футов. Чем выше высота, тем больше может возникнуть отказ пилота из-за неполного сгорания газа из-за низкого уровня кислорода. Вентилируемые обогреватели адаптированы для использования на большей высоте.
Какой тип сертификации требуется?
Безвентиляционные нагревательные изделия
ProCom сертифицированы Службой производства продуктов (PFS) и соответствуют национальному стандарту безопасности ANSI Z21.11.2-2002 и ANSI Z21.11.2a-2003. Компании, которые завершили это тестирование для ProCom:
- Канадская ассоциация стандартов (CSA) — Канада и США
- Служба производства продукции (PFS)
- Omni — испытательные лаборатории (O-TL)
Этот сертификат можно найти на лицевой стороне инструкции по эксплуатации, на ярлыках продукта или на этикетках на устройствах. Примечание: Underwriters Laboratory (UL) не сертифицирует газовые продукты. Они сертифицируют только электрические изделия.
Что такое «Давление водяного столба» (W.C.)?
Низкое давление — это любое давление ниже 1 фунта на квадратный дюйм (PSI). При работе с давлением ниже 1 фунт / кв. Дюйм вы увидите термин «дюймы» или «дюймы водяного столба». Это относится к количеству давления, которое требуется, чтобы поднять столб воды на 1 дюйм. Давление в 1 фунт / кв. Дюйм составляет 27,7 дюйма водяного столба (W.C.).
W.C. измеряется «манометром» (манометром), который измеряет давление газов и паров.
- 7,0 ″ вод. = прибл. ¼ фунт PSI
- 13,5 ”вод.ст. = прибл. ½ фунта PSI
Регулятор с плунжером
- Для LP: Для блока требуется 11,0–14,0 дюймов водяного столба.
- Для NP: Для блока требуется 6,0–10,5 дюймов водяного столба.
Бесшаговый регулятор
- Для LP: Для блока требуется 11,0–14,0 дюймов водяного столба.
- Для NP: Для блока требуется 5,0–9,0 дюймов водяного столба.
Примечание. Максимальное давление в жилом доме составляет 2 фунта на квадратный дюйм.Агрегаты ProCom — это системы низкого давления. Для NG может потребоваться дополнительный счетчик, если в доме установлена система с давлением 2 фунта на квадратный дюйм.
Что такое «датчик кислородного истощения» (ODS)?
Все устройства без вентиляции или без вентиляции оснащены пилотным узлом ODS. Назначение ODS — перекрыть подачу газа в обогреватель / камин, когда уровень кислорода упадет ниже 18%.
Во время работы, если пилотное пламя погаснет по какой-либо причине, термопара или термобатарея охладятся и закроют газовый клапан, который подает питание на горелку, отключив нагреватель.Для правильной работы агрегатов должна быть соответствующая вентиляция.
Система
ODS содержит прецизионную диафрагму. Этот ОРВ имеет «рубиновое» отверстие и предназначен для разрушения при любой попытке высверлить его для увеличения пилотного пламени. Кроме того, он не взаимозаменяем с обычным стоячим пилотом. Попытка сжечь газ при чрезвычайно низком уровне кислорода может вызвать смертельные газы и высокий уровень окиси углерода.
Нормальная работа 20,9% кислорода
Пилотное пламя охватывает кончик термопары, создавая милливольт, необходимый для удержания предохранительного пилотного клапана в открытом состоянии.
Падение уровня кислорода 19% кислорода
Пламя начинает поднимать прецизионную пилотную горелку, вызывая охлаждение термопары.
Защитное отключение 18% кислорода
Нестабильное пилотное пламя движется от термопары, в результате чего термопара перестает вырабатывать электричество, необходимое для удержания подпружиненного предохранительного клапана в открытом состоянии. Подача газа прекращается
Что такое «Окись углерода»?
Окись углерода (CO) измеряется в миллионных долях (ppm). Средняя сигарета излучает 60 ppm затягивания или затягивания.Продукты без вентиляции выделяют только 8 частей на миллион CO в течение трех (3) часов. Ассоциация по охране труда и технике безопасности (OSHA) считает, что качество воздуха при концентрации CO 200 ppm небезопасно. Устройства без вентиляции имеют КПД 99,9% и безопаснее в эксплуатации, чем газовые плиты.
Уровень токсичности окиси углерода:
- 200 ppm> Легкая головная боль в течение 2-3 часов.
- 400 ppm> Фронтальная головная боль через 1-2 часа, широкое распространение через 3 часа
- 8400 ppm> Слабость, тошнота, судороги в течение 45 минут, потеря чувствительности в течение 2 часов.
Изделия без вентиляции одобрены AGA, следовательно, сертифицированы в соответствии с национальными стандартами выбросов. Детектор угарного газа не требуется для установки продукта.
Что такое «водяной пар» и его отношение к безвоздушному отоплению?
Водяной пар является побочным продуктом сгорания газа. Комнатный обогреватель без вентиляции производит приблизительно одну (1) унцию. (30 мл) воды на каждые 1000 БТЕ (0,3 кВт) газа в час. Комнатные обогреватели без вентиляции рекомендуется использовать в качестве дополнительного источника тепла, а не в качестве основного источника тепла.В большинстве случаев дополнительного нагрева водяной пар не создает проблем. В большинстве случаев водяной пар усиливает атмосферу с низкой влажностью в холодную погоду.
Следующие шаги помогут убедиться, что водяной пар не станет проблемой:
- Нагреватель рассчитан на применение, включая достаточное количество воздуха для горения и циркуляции воздуха.
- Испытывайте повышенную влажность, можно использовать осушитель для снижения содержания водяного пара в воздухе
- 8400 ppm> Не используйте комнатный обогреватель без вентиляции в качестве «основного источника тепла».
Пример: пар (пот) на окнах или стенах — установка слишком велика для этой площади.
Что вызывает сильный «запах» при горении моего устройства?
Изделия без вентиляции обычно выделяют запах при первом запуске. Это исчезнет через 2-8 часов горения. Определите, какой запах (чаще всего это не утечка газа, а примеси в воздухе). Ниже приведены примеры, которые могут повлиять на новую и существующую установку:
ЗАПАХ КЕРОЗИНОМ:
Неправильное размещение бревна
- Химические примеси, внесенные в окружающую среду, например:
- — Краска
- — Полироль для мебели
- — Запах гаража
- — «Отключение» газовыделения от строительства нового дома
- — Елки
- — Запах из подвала
- — Освежители воздуха
- — Чистящие химикаты
- — Крем для обуви
ЗАПАХ ГРИНОВЕННЫХ ЯЙЦ:
Утечка газа: Выключите установку.Лицензированный сантехник или газовая компания должны проверить все соединения с газовым клапаном, пилотным узлом, горелкой и регулятором.
Регулятор: Установщик может сломать регулятор, затянув соединение
.
Нагреватели зубного налета: Сколы или трещины — замена не требуется (гарантия — возврат)
Газовый клапан: Утечка вокруг ручки — Замените клапан
Горелка: Замены не подлежит (Гарантия — возврат)
Что означает термин «сажеобразование»?
«Сажа» представляет собой мелкодисперсный порошок от черного до коричневого цвета, образующийся в результате неполного сгорания.Чтобы объект загорелся, его нужно сжечь при низкой температуре с ограниченным запасом кислорода. Использование любых химических веществ в воздухе может вызвать образование пленки на окнах, стенах и потолке в результате процесса горения.
Пример. Поднесите термостойкий стакан к зажженной свече, от точки контакта появится черная полоса.
Основными причинами образования сажи продуктов являются:
- Устройство не очищается и не обслуживается, по крайней мере, ежегодно
- Потолочный вентилятор работает слишком высоко или в неправильном направлении
- Зажигание ароматических свечей при горении агрегата.
- Низкое давление газа в горелке.
Где я могу найти модель и серийный номер?
Модель:
- Оригинальная коробка
- Руководство пользователя — верхний правый угол
- Настенные обогреватели: повесьте бирки на стальной трос или наклейку сбоку.
- Газовые журналы — подвесьте бирки на стальном тросе под решеткой.
- Камины — повесьте бирки на стальном тросе на задней части устройства или внутри зоны жалюзи.
Серийный номер: Белая наклейка прибл.½ «x 2½»
- Оригинальная коробка
- Карточка регистрации гарантии
- Настенные обогреватели: повесить бирки на стальной трос или наклейку сбоку
- Газовые журналы — Подвесить бирки на стальной трос под решеткой
- Камины — подвесьте бирки на стальном тросе на задней стороне устройства или внутри зоны жалюзи на двери
Как связать блок приемника и пульт дистанционного управления на моем устройстве без вентиляции?
Подключение пульта ДУ к приемнику:
- Пилот и установите ручку управления в положение «включено».
- Переключатель на коробке приемника «вкл / выкл»: горелка должна включаться и выключаться.
- Установите ползунковый переключатель приемника в положение «дистанционное».
- Нажмите кнопку «LEARN» (справа), чтобы получить (1) звуковой сигнал.
- Шаг назад 3+ Ft. и нажать «on» на пульте — серия звуковых сигналов (приемник и пульт связаны)
Установка температуры:
- Нажмите «режим» (отображается «Комната»)
- Нажмите «установить» для температуры
Что делать, если горелка не зажигается от пульта ДУ?
Если слышен «щелчок» и горелки не горят, проверьте батареи и повторно соедините пульт и приемник.
