Схема электропроводки в квартире | elesant.ru
Вступление
Здравствуй Уважаемый читатель! Схемы электропроводки в квартире являются основными документами для электрика. На основе схем электропроводки выполняются все работы по организации электропитания квартиры. Вся электрика в квартире должна выполняться в соответствии со схемами электропроводки, которые в свою очередь делаются в строго соответствии с нормативными документами.
Для электрики в квартире делается несколько различных схем электропроводки. Все они относятся к одному виду схем-электрические схемы, но различаются по типу. Каждый тип электрических схем имеет свою информационную нагрузку и, соответственно, различный внешний вид.
Типы электрических схем электропроводки в квартире
Все электрические схемы электропроводки отображают основные функциональные части проводки (розетки, светильники, автоматы защиты, УЗО и т.п.) и основные взаимосвязи между ними.
К основным типам электрических схем электропроводки в квартире относятся:
- Структурная схема;
- Функциональная схема;
- Принципиальная схема;
- Расчетная схема;
- Монтажная схема (соединений).
На диаграмме ниже я отобразил типы электрических схем с небольшими примерами.
Разберем каждый тип электрических схем в отдельности.
Структурная схема электропроводки квартиры
Структурная схема электропроводки делается самой первой. На ней в виде прямоугольников иллюстрируются взаимосвязи между распределительным щитом, электрическим вводом в квартиру и всеми планируемыми электроприборами, которые в квартире будут установлены.
Графическое построение структурной схемы должно максимально полно отобразить все электрические взаимосвязи. Связи на структурной схеме желательно отобразить в виде стрелок. НА всех элементах схемы нужно проставить их номиналы: можность, напряжение, сила тока. Все это нужно для функциональной электрической схемы квартиры.
Функциональная(принципиальная) схема электропроводки квартиры
В этой схеме электрические связи между элементами электропроводки и сами элементы иллюстрируются в виде специальных обозначений. Смотрите рисунок ниже. Здесь же представляю пример функциональной схемы электропроводки квартиры с заземлением и двумя УЗО(устройства защитного отключения)
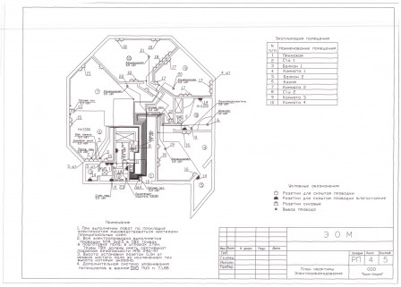
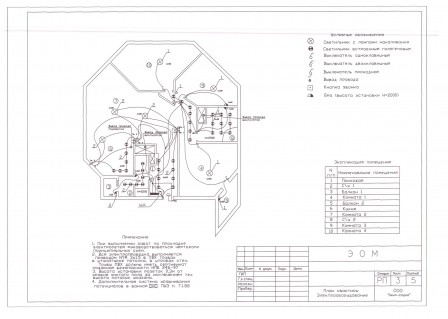
Электромонтажная (Полная принципиальная) схема электропроводки квартиры
Это наиболее полный тип схемы электропроводки. На этой схеме обозначаются все электрические элементы (розетки, светильники и т.п.) и бытовые устройства (плита, джакузи, теплый пол, кондиционеры). Точно отображаются линии прокладки всех кабелей электропроводки. Расположение распаячных коробок, шин соединения на входах и выходах электрических цепей. Пример принципиальной схемы электропроводки смотрите ниже.
Однолинейная расчетная схема электропроводки квартиры
Очень важная схема электропроводки квартиры. Делаются расчетные схемы для электрических квартирных щитков. На ней указываются все вводные автоматы защиты, автоматы защиты для отдельных групп электропроводки. Изображаются они специальными условными обозначениями. Также на расчетной схеме обозначаются все потребители и кабели электропроводок.
Все элементы схемы нанесены с расчетными номинальными характеристиками. Для автоматов защиты указываются ток срабатывания в Амперах. Для кабелей указывается количество жил, их сечение и марка. Например: кабель ВВГнг 3х2.5,обозначает кабель с тремя медными жилами в виниловой изоляции с сечением жил 2,5 квадратных миллиметра, причем изоляция нг-негорючая. Об электрических кабелях и их маркировках читайте отдельную статью на сайте.
На основе именно расчетной схемы покупаются материалы для выполнения работ по электрике. Также по расчетной схеме электропроводка квартиры разбивается на группы.
По расчетной схеме любой электрик может собрать электрический квартирный щит и поэтому в электропроекты квартир обычно не включают следующий тип электрической схемы. Это монтажная схема или схема соединений.
Монтажная схема (схема соединений) электропроводки в квартире
Монтажная схема иллюстрирует все электрические соединения в квартире.
Делается она в виде подробной таблицы с указанием, от какого устройства и куда идет кабель, к какой клемме он подсоединяется и какие характеристики имеет. Для электропроектов квартир монтажные схемы делаются редко, В основном схемы соединений делаются для промышленных предприятий с большими распределительными щитами, а также для главного распределительного щита (ГРЩ) жилых домов.
Нормативные ссылки
- ГОСТ 2.701,Виды и типы схем
- ПУЭ (Правила Устройства Электроустановок) изд.7
- ГОСТ 2.702-75,Правила выполнения электрических схем
©Elesant.ru
Другие схемы электропроводки и электропроекты
мая 2012
июня 2012
октября 2012
ноября 2012
Схемы электропроводки квартир (69 схем и 15 электропроектов)
Вступление
В этом списке собраны самые разнообразные схемы электропроводки квартир и комнат. Отмечу, что в этих схемах нет никакого определенного подбора. Схемы собраны без системы и их объединяет только одно, все они относятся к электропроводке квартир и комнат, включая схемы освещения, схемы разводки розеток, схемы уравнивания потенциалов и схемы квартирных электрических щитков.
Замечу, что схемы не являются инструкцией к исполнению, а всего лишь пример работ различных авторов.
Схемы электропроводки квартир дают представление о электропроводке квартиры и являются основанием для выполнения электромонтажных работ. По назначению и по исполнению схемы электропроводки квартир делятся на принципиальные и монтажные.
- Принципиальные схемы электропроводки квартир дают самое общее представление об электропроводке квартиры.
- Монтажные схемы электропроводки показывают технологические особенности электромонтажных работ, содержат описание материалов, способы электропроводки, расположение розеток, выключателей и т.п.
Схемы электропроводки квартиры и дома
Все схемы должны открываться в новом окне
Схема Электроввода квартиры БЕЗ заземляющего провода
Схема Электроввода квартиры с заземляющим проводом
Схема Электропроводки Двух-комнатной квартиры
Схема Электроввода квартиры с отдельной защитой для сантехкабины
МОНТАЖНАЯ СХЕМА ЭЛЕКТРОПРОВОДКИ БОЛЬШОЙ ДВУХКОМНАТНОЙ КВАРТИРЫ
Схема Электроввода квартиры с электроплитой и заземляющим проводом
Электроразводка для новой кухни
Простая почти рукописная монтажная схема электропроводки
Принципиальная и монтажная схемы электропроводки 2-х комнатной квартиры (389×599)
Монтажная Схема Электропроводки Большой однокомнатной квартиры (Размеры: 783 × 565)
Схема Электроплиты (Размеры: 1449 × 880)
СХЕМА ЭЛЕКТРОПРОВОДКИ БОЛЬШОЙ ДВУХКОМНАТНОЙ КВАРТИРЫ (Размеры: 3176 × 1774)
Электросхема кухоной электропроводки для подключения бытовой техники (Размеры: 900 × 636)Монтажная электросхема распаячной коробки (Размеры: 669 × 277)
Электросхема освещения большой современной квартиры (Размеры: 1024 × 724)
Электросхема подключения электрощитка
Монтажная схема Электропроводки 2х комнат с с/у (Размеры: 1024 × 724)
Монтажная электросхема электропроводки освещения 1комнатной квартиры
Монтажная Электросхема освещения тамбура
Расчетная однолинейная схема квартиры на 5 Групп (Размеры: 600 × 450)

Электрическая схема освещения 1-комнатной квартиры (2232 х 1679)
Электрическая схема розеток 1-комнатной квартиры.(1024 ×724)
Простой электропроект 2-х комнатной квартиры (Размеры: 1024 × 674)
Схемы-электропроводки:Деление нагрузки на группы
Схемы-электропроводки Ввод в комнату
Схемы-электропроводки квартирной групповой сети
Схемы-электропроводки при небольшой мощности электроприборов
Схемы-электропроводки квартиры без зануления
Схемы-электропроводки квартиры с занулением
Схемы-электропроводки:Условные обозначения на электрических схемах
Схемы-электропроводки:установка розеток в 2-х комнатной квартире
Схема уравнивания потениалов
Схема системы уравнивания потенциалов ванной и с/у 1го этажа
Система уравнивания потенциалов ванной 2й этаж
Системная Схема варавнивания потенциалов
Электрическая схема освещения 1-комнатной квартиры
Электрическая схема розеток 1-комнатной квартиры
Схемы-электропроводки:Деление нагрузки на группы (340 х 340)
Схемы-электропроводки Ввод в комнату ( 450 × 223)
Схемы-электропроводки квартирной групповой сети (Размеры: 450 × 334)
Схемы-электропроводки при небольшой мощности электроприборов (Размеры: 450 × 332)
Схемы-электропроводки квартиры без зануления (Размеры: 450 × 336)
Схемы-электропроводки квартиры с занулением (Размеры: 450 × 331)
Условные обозначения на электрических схемах (Размеры: 336 × 373)
установка розеток в 2-х комнатной квартире (Размеры: 350 × 322)
Подключение электросчетчика (404 × 334)
Монтажная электросхема электропроводки освещения 1комнатной квартиры (Размеры: 1024 × 724)

Электросхема подключения электрощитка (450× 604)
ПРИНЦИПИАЛЬНЫЕ ЭЛЕКТРИЧЕСКИЕ СХЕМЫ РАСПРЕДЕЛИТЕЛЬНЫХ ЭЛЕКТРОЩИТОВ(22 схемы)
Все схемы должны открываться в новом окне
1.Распределительный щит скрытого образца
2.Схема электрическая принципиальная ОЩВ-12(12 модулей для автоматов защиты)
3. Схема электрическая принципиальная ОЩВ-6(6 модулей для автоматов защиты)
4.Схема электрическая принципиальная квартирного группового учетно-распределительного щита на 3 отходящих линии.
5. Схема электрическая принципиальная квартирного группового распределительного щита на 3 отходящих линии.
6. Схема электрическая принципиальная квартирного группового распределительного щита на 5 отходящих линии.
7. Схема электрическая принципиальная квартирного группового распределительного щита на 9 отходящих линий.
8. Схема электрическая принципиальная квартирного группового распределительного щита на 9 отходящих линий.
9. Схема электрическая принципиальная учетно-распределительного щита для индивидуального дома, на 10 отходящих линии, с одним трехфазным автоматом для потребителей.
10. Схема электрическая принципиальная учетно-распределительного щита для индивидуального дома на 9 отходящих линии.
11.Схема электрическая принципиальная шкафа учета потребления электроэнергии-ЩУ1.
12. Схема электрическая принципиальная шкафа учета потребления электроэнергии-ЩУ1./Т
13. Схема электрическая принципиальная шкафа учета потребления электроэнергии-ЩУ2./Т
14.Схема электрическая принципиальная ЩАП 12(Щит автоматического переключения электропитания)
15, Схема электрическая принципиальная ЩАП 23(Щит автоматического переключения электропитания)
16. Схема электрическая принципиальная ЩАП 33(Щит автоматического переключения электропитания)
17. Схема электрическая принципиальная ЩАП 43(Щит автоматического переключения электропитания)
18, Схема электрическая принципиальная ЩАП 53(Щит автоматического переключения электропитания)
19.Электрическая принципиальная схема щита вводного трехфазного на 20 автоматов
20. Электрическая принципиальная схема щита вводного трехфазного на 4 автомата
21. Электрическая принципиальная схема щита вводного трехфазного на 8 автоматов
22. Электрическая принципиальная схема щита вводного трехфазного на 10 автоматов
Электропроекты
Специально для сайта: Все про ремонт квартиры
Другие статьи сайта по теме
55.61953237.741349
Поделись ссылкой:
Схема электропроводки квартиры | elesant.ru
В этой категории представлены различные,общие схемы электропроводки квартир.Совмещенные схемы электропроводки розеток и освещения. Схемы электропроводки теплого пола. Схемы электропроводки кондиционирования и вентиляции.
Схемы электропроводки в квартире являются основными документами для электрика. На основе схем электропроводки выполняются все работы по организации электропитания квартиры. О типах электрических схем, их различиях и правилах выполнения пойдет речь в этой статье.
Подробнее…
Любые работы по электрике в квартире и доме производятся на основе схем электропроводки и подключения. Все виды проводок и планируемое к установке электрооборудование, на схемах изображаются в виде условных обозначений. Именно об условных обозначениях розеток, выключателей и оборудования на схемах пойдет речь в этой статье.
Подробнее…
Схема электропроводки это основной документ, по которому мастер сможет смонтировать электропроводку квартиры или дома. На схеме электропроводки отображаются места расстановки розеток и выключателей. Обозначаются места установки источников освещения и электровыводов для электрооборудования. Но лучше один раз увидеть, чем много раз услышать.
Подробнее…
Представляю вашему вниманию простую схему электропроводки однокомнатной квартиры. Формат схемы 783×565 точек.
Подробнее…
Здравствуйте! В разделе «Схемы электропроводки квартиры» представляю схему электропроводки розеточных групп в большой почти круглой квартире. Формат 2250×1614 точек.
Подробнее…
Предлагаю вашему вниманию несложную схему электропроводки большой 4-х комнатной квартиры. Схема электропроводки совмещенная. Проводка розеточных групп обозначена схематично. Освещение представлено только местами размещения светильников и выключателей. Формат схемы 3176×1774 точек.
Подробнее…
Здравствуйте! Сегодня представляю схему электропроводки стандартной двухкомнатной квартиры. На схеме совмещены электропроводка освещения и электропроводка розеточных групп. Формат схемы 2315×1524 точек.
Подробнее…
Здравствуйте! Сегодня не совсем стандартная схема. Хочу предложить схему размещения электрического оборудования и электрической фурнитуры в интерьере большой современной квартиры. Схема выполнена в цвете, очень наглядна и понятна.Формат схемы 1280× 905 точек.
Подробнее…
Продолжаю представлять схемы электропроводки. Представляю схему электропроводки первого этажа частного дома. Площадь этажа 188 кв. метров. На схеме отображается вся разводка розеточных групп этажа. Электропроводка розеток разделена на 16 групп по 10 комнатам этажа. Формат схемы электропроводки 1600×1280 точек.
Подробнее…
Три основные схемы электропроекта квартиры
Основные схемы электропроекта квартиры
Электропроект это основа электроснабжения квартиры. Без проекта невозможно получить разрешение на подключение новой квартиры к электросети, невозможно сделать новую электропроводку с подключением новых, дополнительных мощностей.
Все страницы типового электропроекта важны, от титульного листа, до описи документов и нормативных ссылок. Но есть три основные схемы электропроекта, но которых базируется, не только весь проект, но и вся будущая работа электромонтажников или электриков. Эти схемы называются так:
- Однолинейная расчетная схема электроснабжения квартиры;
- Схема электрооборудования;
- Схема электроосвещения.
Конечно, в разных проектах словосочетания в названиях могут меняться, но суть остается именно такой. Правда, если схему электрооборудования можно заменить на схему силового оборудования или схема размещения силовых розеток, то однолинейная расчетная схема, не может назваться по-другому.
Однолинейная расчетная схема
Однолинейная расчетная схема это «мозг» проекта. На ней указано все, что нужно электромонтажнику для устройства электропроводки квартиры, кроме привязки розеток и светильников по месту установки.
На однолинейной расчетной схеме вы видите, вводную группу электропитания квартиры, включая счетчик учета.
На схеме показаны все планируемые потребители сети с указанием их мощности. Все потребители разделены на группы розеток и группы светильников. Для каждой группы запланированы устройства защиты (автоматические выключатели и УЗО). Обозначены марки и сечения кабелей электропроводки.
То есть, на однолинейной расчетной схеме есть вся информация необходимая для ввода электропитания в квартиру, сборки квартирного щита и распределения электропроводки по группам освещения и группам розеток.
Однолинейная схема, называется так потому что, делается только для одной фазы электропроводки, но применяется для всех фаз при трехфазном электропитании. На схеме это обозначается условными обозначениями, линия, перечеркнутая тремя или четырьмя палочками.
Визуально, однолинейная расчетная схема, делается в виде таблицы.
Примеры однолинейных расчетных схем








Схема электрооборудования квартиры
Схема электрооборудования или план расположения розеток в квартире, делается в гостированных условных обозначениях. На правильной, схеме электрооборудования, показываются все розетки квартиры, указывается их высота от пола и обозначается трассировка электропроводки от квартирного электрощита или распределительного этажного щита. В пояснении к схеме указывается, какой тип проводки должен быть выполнен: скрытая проводки или открытая проводка. Иногда, точную привязку розеток к помещению выносят в дизайнерский проект, где показана расстановка мебели.
Примеры схем электрооборудования квартиры






Схема электроосвещения квартиры
Схема электроосвещения показывает расположение всех светильников квартиры и выключателей к ним. На схеме показывается трассировка электропроводки от распределительного щитка или этажного щита. В пояснении к плану, указывается высота выключателей и способы электропроводки.
Примеры схем освещения квартир








На этом все! Внимательно читайте три основные схемы электропроекта квартиры.
©Ehto.ru
Другие статьи раздела
Похожие посты:
Электросхема квартиры | ehto.ru
Вступление
Электросхема квартиры должна делаться до проведения электромонтажных работ. Однако бывают ситуации, когда необходимо сделать схему уже готовой или старой электропроводки. По- хорошему, электросхема квартирной электропроводки должна быть в любой квартире. Это избавит от проблем при ремонте электропроводке, а также не приведет к повреждению проводов и короткому замыканию при сверлении стен квартиры.
Начнем знакомиться с электросхемой квартиры с вводной электрической цепи.
Вводная электрическая цепь
Под вводной электрической цепью понимаем, обеспечивающие подвод электропитания, учет расхода электроэнергии и защиту всей электропроводки квартиры. А именно, это
- Вводной автоматический выключатель, который защищает электропроводку квартиры от сверхтоков и перегрузки сети, а также выполняет роль механического расцепителя (выключателя) отключающего всю квартиру от электропитания;
- Счетчик учета расхода электроэнергии, а проще электросчетчик квартиры;
- Устройство защитного отключения (УЗО) для всей квартиры, номиналом 100 mA или 300 mA. Отмечу, что УЗО на ввод электропитания ставятся не так уж давно и вполне возможно, что у вас такого УЗО нет.
Где расположена вводная электрическая цепь
Все перечисленные устройства вводной электрической цепи, находятся в водном или этажном электрощите. От этажного электрощита, питающий кабель прокладываются в квартиру, где разводится на групповые цепи, распределяясь по ним в квартирном электрощите или в распределительных коробках.
Электросхема вводной электрической цепи
В качестве примера вводной электроцепи квартиры приведу часть однолинейной расчетной схемы квартиры с трехфазным электропитанием. про однолинейную расчетную схему читайте статью: Как создается проект электроснабжения квартиры.


На схеме вы видите ее элементы:
- ВА S1E 29/3 -63: Это автоматический выключатель, с номинальным током 63 Ампера и селективной задержкой отключения.
- Меркурий 230 ART -50А: Это электросчетчик, рассчитанный на работу в сети с током 50 ампер, с учетом активной и реактивной составляющих, в трехфазных, четырех проводных сетях.
- УЗО ВАД 2 -32-4-100: Это четырехполюсной (цифра 4) выключатель автоматический с защитой от дифференциальных токов (дифференциальный автомат защиты), с рабочим током 32 Ампера и дифференциальным током отключения 100 миллиампер.
Все электротехнические устройства вводной электрической цепи смонтированы в электрическом щите ЭЩ УЭРМ. А это электрический щит, типа устройство этажное распределительное модульное, а по сути, это секция в этажном щите.
Конечно, у вас вводная электрическая цепь может быть другой, могут быть установлены другие электротехнические устройства, но принцип от этого не меняется, вводная электрическая цепь у вас есть или, по крайней мере, должна быть.
Передвигаемся к электросхеме квартиры
Электросхема квартиры – пример
Для предметного разговора приведу пример электросхемы стандартной двухкомнатной квартиры. Я специально взял упрощенную электросхему квартиры, где на одном листе нанесены и схема освещения квартиры, и схема силовой сети (розетки). Это стандартная квартира, если с кухней и двумя изолированными комнатами. Особенность электропроводки, а, следовательно, электросхемы квартиры, что в квартире есть квартирный щиток.


В квартирный электрощит устанавливаются автоматы защиты групп электропроводки и устройства защитного отключения для групповых цепей квартиры. Можно сказать и, наоборот, в квартирном щите вводное электропитание квартиры, распределяется по квартирной электропроводке, правда это не совсем корректно.
Некоторые элементы электросхемы квартиры
На электросхеме прекрасно представлены все элементы квартирной электропроводки:
1-Светильник;
2-Розетка;
3-Выключатель;
4- Распределительная коробка.
Данная схема не является полной в проектном плане. На электросхеме квартиры должны быть сделаны разъяснения по типу проводки, маркам проводов (кабелей) и способам электромонтажа. Также проектировщики делают свои пояснения. В качестве примера, покажу такую электросхему освещения квартиры с пояснениями.


Про распределительные коробки
Не могу, не остановиться на распределительных, иначе распаячные коробки, которыми наполнены наши квартиры. Такой тип разводки электропроводки называется распределительным. В коробку подводится электропитание группы (освещения и/или розеток) и распределяется по комнатам или по отдельным приборам комнаты.
Распределительные коробки могут монтироваться для групп освещения и для групп розеток, суммарной мощностью не более 2,5 кВт.
Приведу пример, самой простой распределительной коробки для новой запитывания новой розетки. Провода в коробке соединяются опрессовкой, разъемами WAGO или использовать любое доступное соединение проводов электропроводки.
На этом все! Электросхема квартиры разобрана.
©Ehto.ru
Другие статьи по теме
Похожие посты:
Схема электропроводки в квартире: своими руками (типовые примеры)
При покупке жилплощади в многоэтажных новостройках или уже эксплуатируемых домах возникает вопрос организации правильного электроснабжения. Схема электропроводки в квартире является одним из ключевых моментов в процессе ремонта. Это важно потому, что число потребителей, требующих подключения, постоянно растет (в основном за счет бытовой техники), а существующие сети морально и физически устарели для подобных нагрузок.
Нормативами десятилетней давности, действующие на электроснабжение жилых домов и определявшие схему разводки электропроводки в квартире, подразумевалось, что максимальная суммарная мощность потребляемой одним абонентом электроэнергии не превышает 1-1,5 кВт. Впоследствии нормы для однокомнатных квартир были увеличены до 6-10 кВт, однако они мало соответствуют современным реалиям: только кухонные электроприборы могут потреблять электроэнергии в два, а то и в три раза больше.
Необходимость, причины и следствия
Схема проводки в квартире необходима, по крайней мере, из двух соображений:
- Она позволяет добиться четкого понимания при составлении плана работ по электроснабжению дома,
- При проведении ремонта, замены/модернизации существующей электропроводки, она дает возможность быстро, точно определить местоположение, характеристики существующих элементов (провода, выключатели, розетки, приборы и т. д).
Иллюстрация разметки проводки в квартире
Это базовый этап, миновать который нельзя. Он критически важен при постройке или покупке нового жилья, поскольку позволяет предопределить план, фронт работ, правильное их выполнение, подключение потребителей. Кроме того, грамотно подготовленная схема электропроводки позволяет определить количество комплектующих (автоматы, выключатели, розетки и т. д), расходных материалов, а также их характеристики.
Основные требования к проекту разводки квартиры
Самостоятельное проектирование начинается с определения на плане помещения мест расположения потребителей электроэнергии (бытовых электроприборов) и источников искусственного освещения.
В проекте следует учитывать следующие моменты:
- Правильная схема должна иметь минимум пространственных «перехлестов» с другими инженерными коммуникациями (отопительные и вентиляционные системы, системы водоснабжения и канализации). По идее пересечений не должно быть вообще.
- В современном жилище, особенно на кухне, розеток много не бывает!
- Традиционно розетки размещаются таким образом, чтобы они не бросались в глаза (за мебелью). В однокомнатной квартире это сделать не так уж сложно – но при этом ко всем электроустановочным изделиям обязательно должен обеспечиваться оперативный доступ.
- При монтаже с использованием разветвительных коробок к ним также необходимо предусмотреть свободный доступ.
- В панельных домах проект должен максимально использовать имеющиеся в железобетонных плитах пустоты.
- Не следует забывать о безопасности эксплуатации монтируемой проводки – по плану розетки и выключатели не стоит помещать в сырых или сильно нагревающихся местах.
- Освещение помещения, особенно большого, одной расположенной по центру люстрой малоэффективно – намного лучше будет, хоть и несколько дороже, если добавить к ней зональные источники света. Это правило может нарушаться в однокомнатных квартирах, но в комнатах с высокими потолками нарушение недопустимо.
- В соответствии с современными нормативами правильно выполненная схема должна включать раздельные линии питания освещения и розеточные. Причем от одной розеточной линии допустимо запитывать не более четырех электроприборов, от одной линии освещения – не боле пяти светильников. Все мощные потребители электроэнергии – электроплиты, микроволновые печи, стиральные машины, водонагреватели – по проекту должны подключаться к распределительному щиту отдельной линией, каждый из этих электроприборов – своей, «персональной».
Что такое схема разводки, как строится и какой бывает?
План электропроводки квартиры или частного дома должен включать пять основных видов схем:
- Структурная. Это чертеж или точнее схематическое отображение взаимосвязей ключевых элементов и цепей электроснабжения от щитка, ввода в квартиру и до планируемых или существующих точек подключения (бытовой техники). Для большей информативности используются стрелки-указатели, а также наносятся номинальные характеристики элементов (напряжение, ток, мощность),
- Функциональная. Это графическое изображение фактических электрических связей между элементами с использованием принятых в государственных стандартах обозначений,
- Принципиальная. Это максимально подробный чертеж с нанесением на план квартиры с обозначением всех существующих элементов сети от проводников до точек разбора (розетки, выключатели) и потребителей (различная техника). Он предусматривает точные места, размеры расположения проводки, соединительных коробок, шин для подключения,
- Расчетная. Это отдельная схема подключений для электрических вводных щитков. На ней отображаются используемые автоматические выключатели (вводные, защитные), а также исходящая и входящая электропроводка. Она является базой для разбивки на группы – формирования однолинейной или групповой компоновки. Каждый провод должен иметь обозначение марки, сечения и количества жил, а выключатель – номинальный ток срабатывания,
- Монтажная. На плане указывают места выходов, направление прокладки кабелей электропроводки, расположение соединительных клемм, характеристики проводников. В практике обустройства электросетей монтажа используется редко, особенно, если работы ведутся профессиональным специалистом.
Типовые схемы проводки
Эффективность действий в той или иной области зависит от уровня профессионализма, наличия определенных базовых знаний/навыков. Если, к примеру, человек является электриком, то составление схемы, ее практическая реализация не составит для него большого труда. Когда таких познаний нет, равно, как и желания выкладывать деньги за работу профессиональных проектировщиков, можно и нужно использовать типовые схемы проводки. Это своего рода эталонное решение, в котором учтены действующие перспективные нормы и от которого следует отталкиваться, проектируя индивидуальные решения.
Ориентиром может служить следующее наглядное типовое решение проводки в квартире панельного или кирпичного многоэтажного дома (также можно использовать в частной застройке):
Как можно видеть, все точки потребления в квартире разбиты на несколько групп. К каждой группе от вводного автомата и УЗО подводится питающий кабель с разным сечением (цифра в оранжевом квадратике). Кроме того, на каждое ответвление электропроводки предусмотрено подключение собственных элементов защиты, каждый из которых имеет разный номинал тока (зеленый прямоугольник).
Разбивка на группы питания является очевидной современной тенденцией. Она происходит в соответствии с суммарной мощностью потребителей. Номинальные значения тока для каждой из веток указаны, опираясь на технические характеристики современной быт техники и перспективу расширения ее парка.
Практическая реализация схемы
Когда базовые чертежи, планы электропроводки составлены, нормы расходных материалов, комплектующих определены, то можно приступать к осуществлению задуманного на практике.
Первым делом на стены, перекрытия наносится разметка. Делается это в строгом соответствии с действующими строительными и пожарными нормами. К примеру, в панельном доме категорически запрещается штробление перекрытий и несущих стен в горизонтальном направлении, а также выполнение диагональной прокладки. Расположение кабелей должно быть строго горизонтальным и вертикальным, с учетом минимальных отступов от существующих ограждений и ограничителей поверхности (дверные, оконные проемы, линии стыков стен, перекрытий и т. д).
Примерный план зон проводки можно видеть на следующей иллюстрации:
Способы монтажа проводки
Второй этап создания проекта – принятие решения, как сделать разводку с учетом материала, из которого построено здание. В соответствии с планом выбирается способ монтажа проводов, розеток, выключателей, регуляторов и распредкоробок. Таких способов всего три:
- Скрытая электропроводка,
- Открытая электропроводка,
- Комбинированный монтаж.
Скрытый тип монтажа
Все без исключения ответвительные и магистральные провода маскируются всеми возможными способами – вмуровываются в стены, заливаются устраиваемой на полу бетонной стяжкой, закладываются в пустоты плит панельных домов, при наличии подвесных потолков – прячутся в запотолочном пространстве.
Скрытый монтаж
Видимыми при таком проекте монтажа остаются только розетки выключатели и светильники. Распределительные коробки при скрытом монтаже устанавливаются крайне редко – обычно провода от каждой «точки» сводятся в один большой распределительный щит, где они и соединяются друг с другом в соответствии с планом работы электрооборудования.
Открытый монтаж
Открытая электропроводка, по сравнению со скрытой, подразумевает визуальную доступность большей части проводов. В декоративных целях и для облегчения монтажа они обычно укладываются во внутрь пластиковых коробов (другие названия – электрокороба, кабель-каналы), все соединения делаются в доступных для обслуживания распределительных коробках.
Пример открытого монтажа
Из-за своей технологической простоты это самый распространенный способ монтажа электропроводки, однако он требует тщательного продумывания плана трассировки проводов – если они будут пересекаться друг с другом, то место перехлеста будет очень трудно «окультурить»
Комбинированный монтаж
Комбинированный монтаж в проектах используется сравнительно редко. Суть его следующая: основная масса проводов прячется в запотолочном или подпольном пространстве. Видимыми делаются только спуски (с потолка) и подъемы (с пола) проводов к розеткам, выключателям и светильникам.
Такая разводка используется обычно в подсобных и хозяйственных помещениях – в случаях, когда требования к красоте интерьера в комнате минимальны.
Выбор провода
Если разводка электрики в квартире делается самостоятельно – следует уделить особое внимание подбору марки и сечения проводов.
На отечественном рынке наиболее распространены два типа провода: ВВГ и ПУНП (ПУГНП). Главная разница между ними не только в качестве изоляции (ВВГ в этом отношении вне конкуренции), но и в отношении производителей к заявленным техническим характеристикам проводов. Дело в том, что по жестким ГОСТовским нормам изготавливается только ВВГ, диаметр и сечение жил провода ПУНП определяются техническими условиями, допускающими отклонение 20% и даже более. В реальности же несоответствие заявленного сечения и фактического может достигать 50%!
Таблица оптимального выбора сечения кабеля
В проектах домашней электропроводки однокомнатной квартиры обычно закладываются провода следующего сечения:
- Для линий освещения – 1,5 кв. мм,
- Для розеточных линий – 2,5 кв.мм,
- Для линий с повышенной нагрузочной способностью (электрообогреватели, стиральные машины, электроплиты) и магистральных используют провод с сечением жил не менее 4 кв. мм.
Читайте также:
Выбираем сечение кабеля по току с помощью таблиц ПУЭ и ГОСТ, особенности расчетов
Выводы
Замена старой, прокладка новой проводки в квартире – одна из самых ответственных задач при самостоятельном выполнении. При этом от правильности составления схемы и выбора материалов и устройств зависит надежность работы и перспективный план развития энергосистемы квартиры.
Принципиальная Электрическая Схема Дома — tokzamer.ru
В верхней части стать даны рекомендации по разработке плана проводки в частном доме. Монтажные работы и подключения от узла учета, распределительного щита по всему дому можно несложно выполнить своими руками.
Дачные домики находятся, как правило, за городской чертой.
На схеме разводки электропроводки должны быть указаны все защитные аппараты и потребляемый ток на контуре, который запитан с каждого из них. Линии электропередач в такой местности имеют свои особенности.
Компрессор кондиционера. Электрическая схема, подключение. Днепр
В этом случае клиенты также напрямую подключаются к электрощиту, но они формируются в группы, от которых и тянется провод. Идущие на них провода нигде не должны пересекаться или соединяться между .
Стоит она дороже, а нужна далеко не всегда. С ее помощью можно подсчитать длину провода, количество розеток и выключателей, распределительных коробок, обозначить места разметки.
Далее следует разделить всю электропроводку по группам потребления. От качества приборов и от внимательного отношения к процессу проведения проводки зависит безопасность.
Также следует запомнить, что все автоматы в итоге подключаются к одному, который рассчитан на высокую мощность.
Схема электропроводки в частном доме Схема проводки в частном доме состоит из следующих частей: электрический щиток. В схеме вычерчивается каждый провод, ему присваивается номер, указывается цвет провода, показано подключение всех приборов электрического щита.
Схема работы солнечной электростанции
Выбор типа
Это не говоря о глупости установки в ЩУ ещё шины N, добавляющей ни чем не оправданных 2-ва контактных соединения. Примечание: для выбора автоматического выключателя воспользуйтесь нашим онлайн калькулятором расчета автоматического выключателя по мощности. Скрытая проводка подразделяется на сменяемую и несменяемую. В приведенном электрощитке вводной автоматический выключатель установленный до электросчетчика , а так же УЗИП и PE шинка должны иметь устройства для возможности их опломбировки представителем энергоснабжающей организации с целью исключения возможности хищения электроэнергии.
В этом случае провода и кабели укладывают в специальные штробы, прорезанные в стенах, полах или потолке, после чего они замуровываются цементным раствором или другими строительными материалами.
Вернуться к содержанию Как правильно выполнить разводку электрической проводки Если вы решили, что правильная разводка электрики в квартире вам по плечу, то для начала необходимо выбрать тип разводки, который подойдет под нужды хозяев жилья. Схема электрической разводки в квартире Проектирование электропроводки в квартире практически ничем не отличается от тех же работ, выполняемых для частного дома.
В том случае, если Вы решили сделать схему проводки в доме трехфазной на В , придется выбрать другие элементы сети по характеристикам, однако принцип разводки кабеля по комнатам останется таким же.
После этого можно выбирать все составляющие и комплектующие, покупать их, а также счетчик, автоматы и кабели.
А максимально для этого варианта предоставляется 15 килоВатт.
Она не позволит запутаться при выполнении работ по монтажу и ошибиться в выборе комплектующих изделий по техническим характеристикам.
Схема электропроводки в квартире. Архитектура электропроводки.
Разводка электропроводки в частном доме своими руками
На мощное оборудование рекомендуется выделять свою линию питания, а на остальных количество потребителей не стоит делать выше 5—6 розеток.
Эта схема электрического щита начерчена для примера. Приблизительно также мало сейчас потребляют телевизоры, компьютеры и иная используемая в быту техника.
В этом случае, если у вас будет неисправность в зале и отключится соответствующий автоматический выключатель, в остальных помещениях все будет функционировать.
Ограничивает возможности по заезду на участок габаритной строительной техники. Аналогичная схема используется и для жилья с большим жилищем. Немало потребляет также вентиляция в частном доме , если она сделана приточно-вытяжной и с подогревом воздуха без рекуператора. Данная программа является бесплатным графическим редактором, с помощью которого легко можно создать чертеж проводки квартиры.
Особенно важно это в случае, если работа будет проводиться хозяином дома самостоятельно. Мы обязательно Вам ответим. Ввод электричества в дом В отдельных случаях электрощит разделяется на два — вводный и распределительный. Подключиться к сетям своими руками не получится, все условия обязательно согласовываются с энергетиками, должностными лицами организаций, на балансе которых находятся электросети, это предусмотрено проектом.
Каждая линия защищена автоматическим пакетным выключателем или плавким предохранителем так называемой пробкой. Поэтому будем придерживаться плана для медного провода, сеть с одной фазой, напряжение В. Итак, начнем с перечисления того, что должно находится в электрическом щите. Не допускается закладывать в план электроразводки использование проводов и кабелей из разных металлов. Хочется надеяться, что информация в этой статье будет полезна.
Поэтому будем придерживаться плана для медного провода, сеть с одной фазой, напряжение В. В этом случае разводку следует делать так, чтобы распределить нагрузку по разным фазам, а не оставлять ее всю лишь на одной. Вернуться к содержанию Типовые схемы Теперь вы, наверняка, хотели бы увидеть пример разводки электрики в квартире, поэтому остановимся на данном пункте.
Схема проводки в частном доме бывает таких видов: открытая проводка, скрытая проводка, ретро и электропроводка в деревянном доме. Схема электропроводки двухэтажного дома предусматривает такие виды сетей, как кабель и провод. Детальный план позволит реализовать оптимальное распределение мощностей сети.
Однолинейная схема электроснабжения предприятия. Часть 2.
Составление схемы
Таким образом, при возникновении короткого замыкания в одной линии квартира не будет полностью обесточена. Трубы и конструкции для подземной электропроводки Этот вариант предусматривает земляные работы и проделывание отверстия в фундаменте или стене.
Если случится поломка одного из элементов, то все остальные смогут нормально функционировать.
Производится расчет необходимого сечения кабелей, количества комплектующих и материалов, необходимых для монтажа электропроводки в целом.
Вся сеть делится на следующие линии: для освещения, питания розеток, силовую, уличную и для хозпостроек. Последовательность плана выполнения монтажных работ Расчет потребляемой мощности Выбор сечения кабеля по длине и мощности Установка контура заземления Схема распределения проводки по группам Выбор кабеля для проводки в помещениях Последовательность плана выполнения монтажных работ Для того чтобы система электроснабжения работала надежно надо грамотно составить проект, рассчитать все параметры и подобрать необходимые материалы. К примеру, если к одной цепи на кухне подключены бытовые приборы общей мощностью 4. При этом надо учесть, что В на трех фазах могут потребоваться в будущем.
Содержание статьи
Так как на кухне и любом помещении дома возможно подключение дополнительного электрооборудования каждое мощностью до ватт, остальные розетки в помещениях дома устанавливаю 16 амперные, подключаю каждую проводом сечением 2,5 кв. Провода в двухэтажном доме можно провести как скрытым, так и открытым способом.
В данном случае каждый элемент замкнутой цепи должен подключаться к предыдущему, при этом схема не предусматривает наличия узловых контактов. В качестве горизонтальных элементов можно использовать уголок 50х50х5 мм, вертикальными элементами служит стальная планка 40х4 мм. Это не говоря о глупости установки в ЩУ ещё шины N, добавляющей ни чем не оправданных 2-ва контактных соединения. Схема электропроводки в частном доме Схема проводки в частном доме состоит из следующих частей: электрический щиток. Данная программа является бесплатным графическим редактором, с помощью которого легко можно создать чертеж проводки квартиры.
В одну их которых входит потребители кухни и ванной, а во вторую жилая комната и прихожая. Провода сменяемой проводки прокладываются внутри винило-пластиковых труб, а несменяемой — непосредственно под слоем штукатурки.
Этот графический редактор позволяет не только составлять однолинейные чертежи проводки, но и самостоятельно создать чертеж печатной платы. ВДТ 10 мА с таким рабочим током сложно приобрести. Электропроводку в ней разделим на такие основные группы потребителей: — освещение прихожая, комнаты, кухня ;. Также читают:.
УЗО или ДИФ автомат, что выбрать? Секреты качественного электромонтажа
Принципиальная схема
— узнайте все о принципиальных схемах
Что такое принципиальная схема?
Принципиальная схема — это визуальное отображение электрической цепи с использованием основных изображений частей или стандартных промышленных символов. Использование символа зависит от аудитории, просматривающей диаграмму. Эти два разных типа принципиальных схем называются графическими (с использованием основных изображений) или схематическими (с использованием стандартных символов). Принципиальная схема в виде принципиальной схемы используется для визуального представления электрической цепи электрику.Принципиальная схема в графическом стиле будет использоваться для более широкой, менее технической аудитории.
Условные обозначения на принципиальных схемах
На принципиальной схеме можно использовать сотни различных символов. К ним относятся простые изображения объектов, таких как батарея или резистор, для принципиальной схемы в графическом стиле или стандартные символы для таких объектов, как конденсаторы или катушки индуктивности.
В сочетании с символами принципиальной схемы существует также ряд различных типов стилей линий для соединения объектов.В случае пересечения линий используйте переходы, чтобы показать пересечение линий. Важно понимать, кто будет просматривать принципиальную схему, чтобы гарантировать использование правильных типов символов.
Как создать принципиальную схему
Существует много разных способов создания принципиальной схемы. Их можно создавать вручную, но более эффективным способом является использование программного обеспечения для построения диаграмм, такого как SmartDraw, которое предназначено для этой цели.
Программное обеспечение для построения диаграмм, специально разработанное для создания принципиальных схем, имеет несколько преимуществ.
- Быстрая и простая конструкция.
- Предоставляет доступ к тысячам символов.
- Легко поделиться в электронном виде.
- Обеспечивает точное размещение предметов.
- Легко редактировать.
SmartDraw позволяет быстро, точно и легко создать принципиальную схему.
Он также позволяет создавать собственные библиотеки символов, которые вы обычно используете.Посмотрите это краткое руководство по созданию схем электрических цепей.
Узнайте больше о том, как сделать принципиальную схему, прочитав это руководство по принципиальной схеме.
Примеры схем
Лучший способ понять принципиальные схемы — это посмотреть на некоторые примеры принципиальных схем.
Щелкните любую из этих принципиальных схем, включенных в SmartDraw, и отредактируйте их:
Просмотрите всю коллекцию примеров схем и шаблонов SmartDraw.
.
Электрическая схема — Простая английская Википедия, бесплатная энциклопедия
Электрическая схема — это путь, по которому текут электроны от источника напряжения или тока.
Точка, где эти электроны входят в электрическую цепь, называется «источником» электронов. Точка, в которой электроны покидают электрическую цепь, называется «возвращением» или «землей». Точка выхода называется «возвращением», потому что электроны всегда попадают в источник, когда они завершают свой путь в электрической цепи.
Часть электрической цепи, которая находится между начальной точкой электронов и точкой, где они возвращаются к источнику, называется «нагрузкой» электрической цепи. Нагрузка электрической цепи может быть такой же простой, как нагрузка на бытовые приборы, такие как холодильники, телевизоры или лампы, или более сложной, например, нагрузка на выходе гидроэлектростанции.
В цепях используется два вида электроэнергии: переменный ток (AC) и постоянный ток (DC).Переменный ток часто питает большие приборы и двигатели и вырабатывается электростанциями. Постоянный ток питает автомобили, работающие от батарей, а также другие машины и электронику. Преобразователи могут преобразовывать переменный ток в постоянный и наоборот. Для передачи постоянного тока высокого напряжения используются большие преобразователи.
Экспериментальная электронная схема
В электронных схемах обычно используются источники постоянного тока. Нагрузка электронной схемы может быть такой же простой, как несколько резисторов, конденсаторов и лампы, соединенных вместе, чтобы создать вспышку в камере.Или электронная схема может быть сложной, соединяя тысячи резисторов, конденсаторов и транзисторов. Это может быть интегральная схема, такая как микропроцессор в компьютере.
Резисторы и другие элементы схемы можно подключать последовательно или параллельно. Сопротивление в последовательной цепи — это сумма сопротивлений.
Цепь или электрическая схема — это визуальное отображение электрической цепи. Электрические и электронные схемы могут быть сложными. Чертеж соединений всех компонентов в нагрузке схемы упрощает понимание того, как соединяются компоненты схемы.Чертежи электронных схем называются «принципиальными схемами». Чертежи электрических схем называют «электрическими схемами». Как и другие диаграммы, эти диаграммы обычно рисуются чертежниками, а затем распечатываются. Диаграммы также могут быть созданы в цифровом виде с использованием специализированного программного обеспечения.
Схема — это схема электрической цепи. Схемы — это графические изображения основных соединений в цепи, но они не являются реалистичным изображением цепи. На схемах используются символы для обозначения компонентов в цепи.Условные обозначения используются в схеме, чтобы обозначить путь электричества. Мы используем обычное соглашение: от положительной клеммы к отрицательной. Реалистичный путь перетока электричества — от отрицательной клеммы к положительной.
На принципиальных схемах используются специальные символы. Символы на чертежах показывают, как соединяются между собой такие компоненты, как резисторы, конденсаторы, изоляторы, двигатели, розетки, фонари, переключатели и другие электрические и электронные компоненты. Диаграммы очень помогают, когда рабочие пытаются выяснить, почему схема работает некорректно.
Ток, протекающий в электрической или электронной цепи, может внезапно возрасти при выходе из строя компонента. Это может вызвать серьезные повреждения других компонентов цепи или создать опасность возгорания. Для защиты от этого в цепь можно подключить плавкий предохранитель или устройство, называемое «автоматический выключатель». Автоматический выключатель размыкает или «разрывает» цепь, когда ток в этой цепи становится слишком большим, или предохранитель «перегорает». Это дает защиту.
Прерывание от замыкания на землю (G.F.I.) устройства [изменить | изменить источник]
Стандартный вывод для электрических и электронных цепей — заземление. Когда электрическое или электронное устройство выходит из строя, оно может размыкать обратную цепь на землю. Пользователь устройства может стать частью электрической цепи устройства, обеспечив обратный путь для электронов через тело пользователя вместо заземления цепи. Когда наше тело становится частью электрической цепи, пользователь может быть серьезно шокирован или даже убит электрическим током.
Для предотвращения опасности поражения электрическим током и возможности поражения электрическим током устройства прерывания замыкания на землю обнаруживают обрыв цепи на землю в подключенных электрических или электронных устройствах. При обнаружении обрыва цепи на землю G.F.I. устройство немедленно открывает источник напряжения для устройства. G.F.I. устройства похожи на автоматические выключатели, но предназначены для защиты людей, а не компонентов цепей.
Короткие замыкания — это цепи, которые возвращаются к источнику питания неиспользованным или с той же мощностью, что и отключенная.Обычно они перегорают, но иногда этого не происходит. Выполнение этого с аккумулятором может вызвать электрический пожар.
.
Стандартные электрические символы для электрических схем
Стандартные электрические символы являются интеллектуальными, промышленными стандартами , и являются векторными для электрических схем.
Электрические символы фактически представляют компоненты электрических и электронных схем. В этой статье показаны многие из часто используемых электрических символов для построения электрических схем. Хотя эти стандартные символы упрощены, описание функций поможет вам понять.
Ниже перечислены наиболее часто используемые электрические и электронные символы, которые помогут вам быстро начать работу.
| Имя | Электрический символ | Альтернативный символ | Описание |
| земля / земля | ![]() | Этот символ обозначает клемму заземления, используемую для точки отсчета нулевого потенциала и защиты от поражения электрическим током. | |
| эквипотенциальный | ![]() | Это символ, обозначающий детали с одинаковым напряжением (т. Е. С одинаковым электрическим потенциалом или равным потенциалом). Поскольку все эквипотенциальные поверхности имеют одинаковое напряжение, вы не будете шокированы, если коснетесь двух таких поверхностей, если вы также не коснетесь другой части с потенциалом, отличным от первых двух частей. | |
| заземление | ![]() | ![]() | Это связующее звено между различными металлическими частями машины, обеспечивающее электрическое соединение между ними. Его не следует рассматривать как связь с землей. |
| аккумулятор | ![]() | ![]() | Это устройство, которое состоит из одной или нескольких электрохимических ячеек с внешними соединениями для питания электрических устройств и генерирует постоянное напряжение. |
| резистор | ![]() | ![]() | Это электрический компонент, который снижает электрический ток, например, для ограничения тока, проходящего через светодиод. В цепи синхронизации используется резистор с конденсатором. |
| аттенюатор | ![]() | ![]() | Это электронное устройство, которое снижает мощность сигнала, значительно искажая его форму волны, что является противоположностью усилителя. |
| конденсатор | ![]() | ![]() | Это устройство с двумя выводами, которое накапливает электрическую энергию. Эффект конденсатора известен как емкость. Его также можно использовать в качестве фильтра для блокировки сигналов постоянного тока, но пропускания сигналов переменного тока. |
| аккумулятор | ![]() | Это устройство хранения энергии, которое принимает, накапливает и высвобождает энергию, увеличивая или сбрасывая давление в системе. | |
| антенна | ![]() | Антенна, также известная как антенна, представляет собой устройство, предназначенное для передачи или приема электромагнитных (например, теле- или радиоволн). | |
| рамочная антенна | ![]() | Рамочная антенна — это радиоантенна, состоящая из петли (или петель) из провода, трубки или других электрических проводников, концы которых соединены с симметричной линией передачи. | |
| кристалл | ![]() | ![]() | Кварцевый генератор использует механический резонанс колеблющегося кристалла пьезоэлектрического материала для создания электрического сигнала с точной частотой. |
| автоматический выключатель | ![]() | Автоматический выключатель — это автоматический выключатель, предназначенный для защиты электрической цепи от повреждений, вызванных перегрузкой или коротким замыканием. | |
| предохранитель | ![]() | ![]() | Предохранитель — это устройство электробезопасности, которое обеспечивает защиту электрической цепи от перегрузки по току. |
| идеальный источник | ![]() | ![]() | Идеальный источник напряжения — это двухконтактное устройство, которое поддерживает фиксированное падение напряжения на своих выводах.Он часто используется в упрощенном процессе анализа реальной электрической цепи. |
| общий компонент | ![]() | ![]() | |
| преобразователь | ![]() | ![]() | Преобразователь — это устройство, преобразующее энергию из одной формы в другую.Обычно преобразователь преобразует сигнал одного типа мощности в сигнал другого типа. |
| катушка индуктивности | ![]() | ![]() | Катушка с проволокой создает магнитное поле, когда через нее проходит ток. Внутри катушки может быть железный сердечник. Его можно использовать как преобразователь, преобразующий электрическую энергию в механическую, если потянуть за что-нибудь. Это пассивный двухконтактный электрический компонент, используемый для хранения энергии в магнитном поле. |
| половина индуктора | ![]() | ||
| пикап | ![]() | ![]() | |
| пульс | ![]() | ![]() | |
| зуб пилы | ![]() | ||
| ступенчатая функция | ![]() | ![]() | |
| пиропатрон | ![]() | Взрывной пиропатрон часто используется на сцене и в кино для запуска различных спецэффектов. | |
| пиропатрон чувствительного звена | ![]() | ||
| пиропатрон воспламенитель | ![]() | ||
| сетевые фильтры | ![]() | ![]() | Сетевые фильтры защищают вашу электронику от скачков напряжения в вашей электрической системе. |
| инструмент | ![]() | ![]() | Например, вольтметр — это прибор, используемый для измерения разности электрических потенциалов между двумя точками в электрической цепи. Ваттметр — это прибор для измерения электрической мощности в ваттах любой данной цепи. |
| материал | ![]() | ![]() | |
| элемент задержки | ![]() | ![]() | Элемент задержки обеспечивает заданную задержку между срабатыванием пороховых устройств. |
| постоянный магнит | ![]() | Постоянный магнит — это материал или объект, создающий магнитное поле. | |
| магнитный сердечник | ![]() | ||
| ферритовый сердечник | ![]() | ![]() | |
| вилка воспламенителя | ![]() | ||
| колокол | ![]() | ![]() | Электрический звонок находится в обычном дверном звонке дома, и при активации он издает звонкий звук. |
| зуммер | ![]() | ![]() | Электрический зуммер похож на звонок, который издает постоянный гудящий звук вместо одиночного тона или звука звонка. |
| тепловой элемент | ![]() | ||
| термопара | ![]() | ![]() | |
| термобатарея | ![]() | ||
| фонарь | ![]() | ![]() | Преобразователь преобразует электрическую энергию в свет, используемый для лампы, обеспечивающей освещение, например, автомобильной фары или лампы фонарика. |
| флюоресцентная лампа | ![]() | ![]() | |
| оратор | ![]() | Громкоговоритель может принимать цифровой вход и преобразовывать его в аналоговые звуковые волны — одну из самых важных частей широкого спектра электротехнической продукции, такой как телевизоры и телефоны. | |
| микрофон | ![]() | ![]() | |
| осциллятор | ![]() | Он генерирует повторяющийся электронный сигнал, часто синусоидальный или прямоугольный. | |
| Источник переменного тока | ![]() | ![]() | Переменный ток, постоянно меняйте направление. |
| Источник постоянного тока | ![]() | ![]() | Постоянный ток, всегда течет в одном направлении. |
Каждый электрический компонент может иметь множество изображений, поскольку в настоящее время электрические символы могут отличаться от страны к стране. Некоторые электрические символы практически исчезли с развитием новых технологий.В случаях, когда существует более одного универсального электрического символа, мы попытались дать альтернативное представление.
Как найти и использовать электрические символы
Откройте EdrawMax и обширную коллекцию шаблонов электрических схем можно найти в категории Электротехника . Щелкните значок Basic Electrical , чтобы открыть трафарет, содержащий все символы для создания принципиальных схем. Создание электрической схемы становится простым, если у вас под рукой есть доступ к тысячам электрических шаблонов и символов.
Находясь в рабочей области EdrawMax, перетащите нужный символ прямо на холст. Вы можете изменить размер выбранного символа, перетащив маркеры выбора. Двусторонняя стрелка показывает направление, в котором вы можете переместить мышь, и вы можете перемещать символ, только когда появляется четырехсторонняя стрелка.
В EdrawMax вы также можете изменить форму символа через плавающее меню. Он показывает, когда символ выбран или когда указатель находится над символом.Например, резистор может иметь 12 разновидностей. Посмотрите видео ниже, чтобы увидеть различные электрические символы и создать свою собственную принципиальную схему за считанные минуты!
Когда ваша электрическая схема будет завершена, вы можете экспортировать ее в JPG, PNG, SVG, PDF, Microsoft Word, Excel, PowerPoint, Visio, HTML одним щелчком мыши. Таким образом, вы можете делиться своими рисунками с людьми, которые не используют EdrawMax, без необходимости искать способы преобразования форматов файлов.
Дополнительные электрические символы
Условные обозначения принципиальной схемы
Символы логических вентилей
Символы переключателей
Символы полупроводников
Символы пути передачи
Соответствующие символы
Обозначения компонентов интегральной схемы
Обозначения клемм и разъемов
Символы схемы технологического процесса
Обозначения технологического процесса и чертежей КИПиА
.
электрическая схема | Схемы и примеры
Электрическая цепь , путь для передачи электрического тока. Электрическая цепь включает в себя устройство, которое передает энергию заряженным частицам, составляющим ток, например батарею или генератор; устройства, использующие ток, такие как лампы, электродвигатели или компьютеры; и соединительные провода или линии передачи. Два основных закона, которые математически описывают характеристики электрических цепей, — это закон Ома и правила Кирхгофа.
Принципиальная электрическая схема с выключателем, батареей и лампой. © Открыть индекс
Британская викторина
Тест по электронике и гаджетам
Что из этого не телефон?
Электрические цепи классифицируются по нескольким признакам. В цепи постоянного тока проходит ток, который течет только в одном направлении.В цепи переменного тока проходит ток, который пульсирует вперед и назад много раз каждую секунду, как и в большинстве домашних цепей. (Для более подробного обсуждения цепей постоянного и переменного тока, см. Электричество: Постоянный электрический ток и электричество: Переменные электрические токи.) Последовательная цепь представляет собой путь, по которому весь ток протекает через каждый компонент. Параллельная цепь состоит из ветвей, так что ток разделяется, и только часть его течет через любую ветвь.Напряжение или разность потенциалов на каждой ветви параллельной цепи одинаковы, но токи могут отличаться. В домашней электрической цепи, например, одно и то же напряжение подается на каждый светильник или прибор, но каждая из этих нагрузок потребляет разное количество тока в соответствии с требованиями к мощности. Несколько одинаковых батарей, подключенных параллельно, обеспечивают больший ток, чем одна батарея, но напряжение такое же, как и у одной батареи. См. Также интегральная схема; настроенная схема.
- последовательная цепь последовательная цепь. Encyclopædia Britannica, Inc.
- параллельная цепь Параллельная цепь. Encyclopædia Britannica, Inc.
Сеть транзисторов, трансформаторов, конденсаторов, соединительных проводов и других электронных компонентов в одном устройстве, таком как радио, также представляет собой электрическую цепь. Такие сложные схемы могут состоять из одной или нескольких ветвей в комбинациях последовательного и последовательно-параллельного расположения.
- амперметр Две схемы, показывающие амперметр, подключенный к простой цепи в двух разных положениях. Encyclopædia Britannica, Inc.
- Схема с вольтметром Схема, показывающая вольтметр, подключенный к простой цепи. Encyclopædia Britannica, Inc.
.









































































