минимальные нормы по ГОСТу, стандартные габариты совмещенных санузлов в жилых домах
Наличие четких правил и рекомендаций в строительстве дает возможность создавать объекты правильно, рационально планировать габариты каждого помещения.
Помимо жилых комнат, немаловажное значение имеет ванная и туалет, размер которых должен быть определен по ГОСТу и соответствовать ему.
Если строительство идет своими силами, то необходимо изучить законодательную базу и в соответствии с ней отводить определенные кубометры под санузел.
Принятые стандарты
Комфорт проживания в квартире или в жилых домах зависит не только от количества комнат и их величины, но также и от габаритов санузла, которым пользуются все домочадцы.
Чтобы данное помещение было удобным, его размер должен соответствовать нормам. Как для процесса строительства, так и на этапе планировки есть четко определенные правила, которые регламентируют, сколько квадратных метров должно отводиться для каждого помещения в квартире или доме.
Свод правил, на который ориентируются строители, это ГОСТ и СНиП, по которым:
- минимальными показателями высоты потолка санузла может быть 2.5 м;
- глубина комнаты должна составлять не менее 1.2 м;
- в мансардном помещении расстояние от ската крыши до унитаза должно составлять 1.05 м;
- минимальными показателями ширины туалета будет 80 см.
Двери санузла должны выходить в коридор или прихожую, открываясь при этом наружу. Не разрешается выводить санузел в кухню или жилую комнату.
Если габариты квартиры небольшие, то оптимальным вариантом в этом случае будет общий санузел, а не раздельный.
СНиП содержит рекомендации и для подобных помещений, которые сводятся к следующим правилам:
- до ванны или душевой кабинки должно быть не менее 70 см свободного пространства, перед унитазом – 60 см;
- биде рекомендуется ставить в 25 см от унитаза, если конструкция изделия не предполагает другие варианты;
- по бокам от сантехники должно быть минимум по 25 см свободного места.
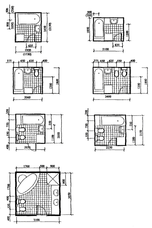
Стандартными габаритами санузла для многоквартирного дома считается 1200 на 800 или 1500 на 800 см, современные здания возводят с улучшенной планировкой, где ширина санузла доходит до 1 метра.
В случае соблюдения принятых правил для планировки туалета и ванной, эргономика помещений не нарушается, что дает возможность удобно ими пользоваться.
Минимальные
Квартиры и частные дома могут иметь самую разнообразную жилую площадь, от чего зависят габариты кухни, а также санузла. При небольшом размере жилища необходимо уметь правильно распределить место для туалета с ванной. Площадь комнаты будет зависеть от того, что именно в ней будет расположено.
- В комнате с унитазом минимальная ширина должна составлять 80 см, а глубина 1.2 м.
- В помещении, где есть унитаз и раковина, минимальная ширина составляет 1 м, а глубина 1.5 м.
- Для комнаты, в которой совмещается душ и туалет, минимальные размеры будут зависеть от габаритов сантехники. В помещении с унитазом, раковиной и душевой кабинкой минимальной шириной комнаты будет 1.6 м, а глубиной – 1.4 м.
- Если в совмещенном санузле находится унитаз, раковина и ванная, то минимальная ширина равна 2.
5 м, а глубина – 1.5 м.
При проектировании данного помещения важно ориентироваться на габариты сантехники и ее расположение внутри. Особое внимание стоит уделить проектированию уборной для людей с ограниченными возможностями, чтобы они могли без труда сами себя обслуживать.
Габариты санузла в этом случае будут иными.
- Ширина туалета может остаться в пределах 80 см, так как инвалидная коляска должна пройти в подобное помещение. Глубина комнаты должна быть не менее 1.2 м, чтобы в ней нормально помещался человек на коляске и сантехника. Высота раковины не должна быть выше 85 см.
- Ширина ванной комнаты не может быть меньше 1.6 см, с учетом размера самой ванной, на которую выделяют 80 см, свободного места для коляски и удобной транспортировки из нее в ванную.
- Для душевой кабинки ширина помещения должна составлять 1.
7 м, так как сама сантехника будет занимать более 80 см и человеку с ограниченными возможностями необходимо комфортно перебраться в нее.
При наличии минимального свободного места под санузел необходимо тщательно изучить место и распланировать его так, чтобы обеспечить максимальный уровень комфорта для любого жителя квартиры или дома. В этом случае рекомендуется делать общее помещение, в котором вместо ванной желательно устанавливать боковую душевую кабинку, монтировать частично встроенный в стену унитаз, а стиральную машину располагать под рукомойником.
Максимальные
Если квартира или дом имеют приличные габариты, то под туалет с ванной можно выделить больше места.
Если минимальным показателем является санузел в 2.5 метра, то более просторные комнаты могут иметь 4 кв. м и 7 кв. м. В таких условиях можно разместить дополнительную мебель, в которой поместятся все необходимые в быту вещи, а также бытовая техника.
В комнате 4 кв. м нет необходимости ставить душевую кабинку, так как свое место займет удобная ванна, а стиральную машинку есть смысл установить там, где ею удобнее всего пользоваться.
Ввиду больших габаритов помещения, в него рекомендуют устанавливать вытяжки, чтобы эффективно и быстро освобождать комнату от пара или неприятного запаха.
Ванну лучше всего устанавливать в дальнем углу, чтобы создать определенное ощущение уединения.
Туалет зачастую монтируют прямо напротив входной двери, а возле него устанавливают раковину.
В санузле на 7 кв. м есть возможность создать любую обстановку и расставить сантехнику, мебель и бытовую технику по собственному вкусу. В столь объемном помещении можно установить джакузи, а при желании еще и душевую кабинку.
Наличие свободного места позволяет укомплектовать помещение специализированной мебелью для ванных комнат, куда войдет все необходимое.
Помимо унитаза, есть возможность поставить рядом биде. В случае больших санузлов нет четко зафиксированных норм, которых стоит придерживаться, потому хозяин такого помещения может реализовать любую свою фантазию.
Размеры и планировка
В каждой квартире планировка создается с учетом площади помещения, от этого значения определяется норма для размеров санузла.
Стандартные размеры туалета или ванны рассчитываются исходя из ширины двери и габаритов сантехники. В «хрущевке» данное помещение комплектуется ванной, раковиной и унитазом, минимальными габаритами будет 1.65 на 2 метра или 1.45 на 2.2 м. Для раздельного санузла комната с ванной будет иметь размеры 1.35 на 1.65 м.
В панельном доме санузлы строят уже более габаритные, площадью от 4 кв. м, где нет необходимости делать общую ванну с туалетом.
Для каждой комнаты есть возможность подобрать подходящую сантехнику, мебель и бытовую технику. В ванной комнате есть возможность установить ванну или душевую кабинку или же небольшое угловое джакузи. Туалет рекомендуется делать с раковиной для удобства использования, кроме того, в нем должен быть унитаз, а по возможности еще и биде.
Для раздельного
В зависимости от даты постройки дома высота потолков здания и габариты комнат будут существенно отличаться.
Санузел может быть раздельным и совмещенным, что диктуется не только желанием самих жильцов, но и территорией, которая отводится для данной комнаты.
Для раздельного санузла имеются четко заданные нормы, по которым туалет не может быть меньше, чем 80 см на 1.2 м или же в более новой планировке – 1 на 1.5 м. Ванная комната с учетом своего наполнения должна иметь большие габариты, потому минимальными показателями является размер 165 на 120 см.
В том случае, если квартира планируется в новостройке, то размер санузла может быть достаточно большим, а значит, проблем с четким следованием нормам СНиП и ГОСТ не должно быть. Каждый хозяин сможет создать индивидуальный проект для ванной и туалета.
Для совмещенного
Квартиры, размер которых минимален, зачастую располагают совмещенным санузлом с ограниченным пространством внутри.
Чтобы пользоваться таким помещением было удобно, важно выделять для него не менее 2 на 1.7 м, где не получится установить ванну, но можно вполне комфортно пользоваться душевой кабинкой.
Современные постройки имеют большую территорию, выделяемую под туалет с ванной. В этом случае минимальной площадью будет 5 кв. м, а максимально удобной – 8 кв. м. В зависимости от размеров помещения, можно приобрести ту или иную сантехнику и расположить ее в комнате так, чтобы всем домочадцам было удобно ею пользоваться.
Нестандартные параметры
Если старые дома не могут похвастаться разнообразием планировки, то новостройки дают полную свободу своим хозяевам в реализации планов по дизайну каждой комнаты, в том числе и санузла. Площадь данной комнаты зачастую достаточно большая, потому есть возможность экспериментировать с формой самого санузла, с сантехникой, которая будет в нем установлена и с декором всего помещения.
Если ширина стандартного дверного проема для туалета и ванной составляют 60 или 70 см, то в современных постройках есть возможность поставить дверь с шириной 80 и 90 см, использовать не только дерево или ДСП, но и матовое стекло.
Если габариты комнаты позволяют, можно создать нестандартный дизайн помещения, совместив в нем душевую кабинку и ванную так, чтобы они составляли единый ансамбль.
Когда санузел планируется в нестандартном месте, то и планировка у него может быть нетипичная. Например, ванна с эркером или другие территориальные особенности санузла, которые позволят максимально рационально использовать пространство помещения.
Как выбрать?
Чтобы правильно определить площадь под санузел, стоит определиться с его типом, решить, будет ли он совмещенным или раздельным, а также учесть такие моменты, как:
- габариты унитаза;
- использование душевой кабинки, ванной или джакузи;
- размер раковины.

Если взять для расчета средние значения каждого из параметров, можно рассчитать оптимальную площадь под санузел, где будет все необходимое для комфортного его использования.
В следующем видео вы узнаете, как сделать ремонт маленького санузла площадью всего 2 кв.м.
минимальная площадь уборной и ванной комнаты в квартире по ГОСТу, стандартные габариты санузла в «хрущевке» и в частном доме
Часто при покупке квартиры или строительстве нового дома хозяева почти не обращают внимания на размеры уборной.
Это является ошибкой – человек проводит большое количество времени в данной комнате, пусть даже и незаметно. Многие пытаются увеличить другие комнаты за счёт уменьшения санузла. Это тоже неправильно – площадь помещения должна быть достаточной для расположения всех элементов интерьера.
Принятые нормы
В попытке сэкономить пространство за счёт уборной, многие люди слишком увлекаются этим, не замечая того, как свели площадь туалета к критическому минимуму. Всем должно быть известно, что существуют общепринятые минимальные размеры туалета, они регулируются ГОСТами и СНиПами.
Основные параметры уборных, регламентируемые СНиПами:
- ширина – более 0.
8 м, длина – от 1.2 м, высота потолков – от 250 см; - при расположении туалета в мансарде, расстояние от унитаза до наклонной поверхности должно быть не менее 105 см;
- двери в туалет открывают только наружу, установка дверей внутрь строго запрещена;
- выход из туалета следует обустроить так, чтобы попадать в коридор, а не в жилую зону или на кухню;
- высота коридора при выходе из туалета должна составлять не менее 210 см.
Также в СНиПах регламентируется и установка сантехники.
Если, кроме унитаза, в уборной будут установлены биде, умывальник или душевая кабина, то необходимо знать и соблюдать следующие нормативы:
- перед душевой кабиной или ванной должно быть пространство более 70 см;
- биде должно устанавливаться на расстоянии примерно в четверти метра от унитаза;
- от унитаза по левую и правую сторону должно быть расстояние не менее 25 см;
- перед унитазом должно быть более 60 см свободного места;
- перед раковиной свободное пространство должно составлять не менее 70 см.
Реальные планировки
Размеры уборных в многоэтажных домах всегда были продиктованы СНиПами. Так как основные нормативы не изменялись десятилетиями, то и размеры туалетных комнат не будут сильно различаться.
Жилье старого образца
Во многих квартирах старого образца уборные имеют минимальный размер по всем параметрам.
Однако это не помешает сделать из этой комнаты удобное помещение с наличием свободного пространства.
Для этого необходимо следовать некоторым правилам:
- Составить план помещения. При размещении туалета и других сантехнических приборов необходимо понять, достаточно ли свободного места остаётся вокруг.
- Обустроить ниши в стене. Это позволит сделать пространство на несколько сантиметров шире, и тут можно спрятать трубы или организовать полки для нужных мелочей.
- Выбирая унитаз, помните, что для огромной модели в «хрущёвке» просто не будет места. Все элементы должны быть в меру маленького размера.
Новостройки
В современных панельных домах уборные имеют габариты больше, чем минимальные значения по СНиПам. В маленьких квартирах размеры туалета составляют 4 кв. м, в средних по размеру – до 6 кв. м. В элитных квартирах туалетная комната может иметь площадь до 9 кв. м – это позволяет обустроить территорию с полным комфортом.
Также в новостройках учитывают некоторые последние требования СНиПов, которые в «хрущёвках» не соблюдены. В современных однушках при планировке заложен совместный санузел – унитаз, раковина и ванна. В 2-х или 3-х комнатных квартирах делается раздельный санузел – туалетная комната отдельно от ванной комнаты. В четырехкомнатных квартирах должно быть спланировано два совместных санузла. Данные нормативы созданы для обеспечения удобства и благополучия жильцов.
Индивидуальное строительство
При строительстве большого частного дома или маленького помещения на даче необходимо учитывать наличие туалета. Его размеры должны соответствовать СНиПам, также должны быть полностью соблюдены правила размещения. Ничто не помешает поместить уборную в пространство под лестницей, если высота позволяет и выходить из комнаты придётся в коридор.
Для дачного участка не обязательно иметь туалет с выходом в канализацию. По СНиПам РФ достаточно иметь биотуалет или тамбур-шлюз.
Как рассчитать оптимальный вариант?
Во многих случаях изменить размер туалетной комнаты практически невозможно: проводить такую операцию в квартире мало кто захочет, да и слом стен не стоит того. Данный вопрос обычно возникает при строительстве дома с нуля и создании плана будущего дома.
Естественно, при расчёте площади необходимо учитывать, будет ли санузел раздельный или совмещённый, и что будет находиться в данном помещении. Такие решения не должны быть спонтанными, а требуют холодного расчёта. После того как составлен план комнат, можно заняться планировкой туалетной комнаты более детально.
При переезде из маленькой квартиры в большой дом у многих появляется соблазн сделать каждое помещение максимально объёмным. Стоит отметить – большой зал или просторная спальня являются прекрасным решением, но огромный санузел – неразумная трата пространства.
Учитывая строительные нормативы и законы эргономики, можно посчитать, сколько площади необходимо для правильного размещения того или иного сантехнического прибора:
- для душевой кабины необходимо 2-2.5 кв. м;
- ванна – от 2 до 3.5 кв. м;
- унитаз – до 2 кв. м;
- раковина – 1 кв. м.
Также для грамотной планировки нужно знать:
- стандартные габариты для унитаза – 440х650, 600х400, 650х360 мм;
- биде – 60х40 см;
- размеры ванн – ширина 75 или 80 см, длина 150, 160 или 170 см;
- угловые ванны имеют размеры 150х150 см или 160х160 см;
- душевые кабины имеют площадь 80х80, 90х90 или 100х100 см;
- минимальный размер умывальника – 400 мм в ширину.
Идеи дизайна
Часто вопрос интерьера не затрагивается, когда дело касается уборной. Ошибочное мнение, что туалет должен быть простой комнатой без элементов декора. Существует большое количество шкафчиков, полочек, аксессуаров, которые смогут украсить внутреннее пространство комнаты.
В редких случаях в квартирах или частных домах уборные имеют форму не четырёхугольника. Обычно это происходит в ситуациях, когда такое решение продиктовано задумкой дизайнера. Такие варианты не очень популярны в силу того, что неудобно располагать что-либо в углах, которые не равны 90 градусам.
Однако стоит обратить внимание на вариант создания треугольного туалета. Данный вариант отлично подходит для украшения приусадебного участка. Его строительство не требует огромных вложений сил, средств и времени, но эффект будет потрясающий. Такая конструкция обычно делается из дерева и металла, однако также могут применяться различные композитные варианты.
Выбор высоты, длины и ширины такого туалета является делом создателя. Для удобства необходимо всё померить и рассчитать количество материала. Уличный туалет будет особенно популярен летом, когда заходить домой лишний раз не хочется.
Наглядные примеры для вдохновения
Выбор цветовых решений для оформления уборной полностью зависит от вкуса владельца. Существует огромное количество обоев, плитки для стен, потолочных панелей и напольных покрытий. При желании всё можно выдержать в светлых тонах, подбирая белоснежную сантехнику. С этим цветом отлично сочетается красный – в данном случае получится в меру яркая комната.
В санузле отлично смотрятся рельефные стены. Они помогают скрывать то, что помещение в действительности небольшое. Интересно смотрятся тёмные полы. Они создают нужный контраст, и комната перестает быть скучной и однообразной.
При строительстве дома необходимо точно знать, что будет находиться в уборной комнате – это позволит правильно рассчитать ее площадь. В многоквартирных домах увеличить площадь туалета невозможно, однако можно сменить дизайн и придать помещению новых красок. Обустройство туалета – очень важный шаг, ведь эта комната является необходимой в любом жилом помещении.
О том, как оформить интерьер в туалете небольшого размера, смотрите в следующем видео.
минимальные габариты стандартного совмещенного санузла, эргономика туалетной комнаты в жилых домах
Хотя санузел и не является жилой комнатой вашей квартиры, все равно его размеры играют значительную роль в удобстве его использования. Помимо личного комфорта использования этого пространства, существуют еще и нормы СНиП, которым должна соответствовать ванная комната. У каждого санузла есть определенный минимум по площади, он зафиксирован специальными правилами и влияет на эргономичное использование этого помещения, так как каждый санузел должен вмещать в себя все необходимое количество техники и мебели.
Особенности и нормативы
Перед планировкой санузла необходимо учитывать, как будут размещены коммуникационные и сантехнические приборы.
Основные параметры ванной комнаты в жилых домах, офисах или в квартире:
- Если санузел расположен в мансардном помещении, то независимо от площади необходимо придерживаться расстояния от наклонной поверхности крыши до унитаза должно составлять не меньше 1, 05 м.
- Выход из уборной не должен располагаться в жилую или кухонную зону, а должен быть только в коридор или прихожую.
- Двери должны открываться только наружу.
- Высота потолка помещения, расположенного до входа в туалет, должна быть не менее 2,1 м.
Нормативные размеры санузла:
- ширина должна быть не меньше 0,8 м;
- длина – не меньше 1,2 м;
- высота необходима не менее 2,4 м.
Существуют такие типы туалетов, которые могут посещаться людьми с ограниченными возможности.
Нормативы санузлов для инвалидов:
- ширина должна быть более 1,6 м;
- длина – не менее 2 м;
- при совмещенном варианте в помещении должны располагаться специальные поручни для ванн;
- двери должны открываться наружу.
Есть и определенные нормы для маленького санузла. Проблема нехватки места в уборной преследует многих жителей домов советской планировки, где туалету уделялся минимум пространства. Однако сейчас существует множество путей решения этой проблемы.
Рекомендуется встроить все коммуникации в специальные ниши в стенах уборной, в них же можно обустроить и полки для различного рода принадлежностей.
Всю сантехнику нужно выбирать максимально компактную. Это несложно, например, многие современные унитазы частично встраиваются в стену.
Раковину нужно выбирать небольшой и имеющей каплевидную форму. Вместо ванны можно установить душевую кабину, которая занимает значительно меньше места. Пространство под каплевидной раковиной стоит использовать по максимуму, в пустое место можно разместить полки, корзину для белья или стиральную машинку. Еще не стоит забывать про визуальное расширение пространства. Для этого ванную комнату следует оборудовать зеркалами, глянцевой и светлой плиткой, а также хорошим освещением.
Стандартные параметры
Санузел может быть разных типов: совмещенным (ванная комната и туалет находятся в одном помещении) или раздельным.
Раздельные
Типовые санузлы могут быть минимальных размеров около 150 х 80 см в домах со старой планировкой и 100 х 150 см в панельных домах с улучшенной планировкой. Размер же отдельной ванной комнаты должен иметь размер от 165 х 120 см.
Совмещенные
Санузлы, в которых имеются и ванна, и унитаз, также имеют определенный минимум в размерах. Размер такого типа уборной должен составлять 200 х 170 см. При такой площади не получится разместить какую-то габаритную ванну, однако, в этом случае оптимальна будет установка душевой кабины.
В основном такой минимальный размер предоставлен в «хрущевках», в домах же новой планировки, этому помещению выделяется уже от 5 кв. м. Оптимальным по эргономике и удобству вариантом будет совмещенный санузел размером 8 кв. м и больше. При таких условиях появляется полная свобода в размещении и планировке.
Расстояние между сантехникой
Также существуют и определенные нормы размещения в уборной сантехники, должны соблюдаться все необходимые расстояния.
СНиП предусматривает такие нормативы к расположению:
- Перед каждой раковиной необходимо минимальное расстояние до других сантехнических приборов не меньше 70 см.
- Перед каждым унитазом свободное пространство – от 60 см.
- С обеих сторон от унитаза – от 25 см.
- Перед душевой кабинкой или ванной должно быть пустое пространство не менее 70 см.
- Биде следует располагать, как минимум в 25 см от унитаза.
Нормы СНиП других стран (Беларуси, Украины) могут отличаться от норм Российской Федерации.
Как определить оптимальные габариты?
Для каждого оптимальные размеры санузла могут быть абсолютно разными, но самое главное – это найти золотую середину. Потому что маленькое помещения для такого большого скопления сантехники, техники и различных бытовых приспособлений не подойдет и не будет соответствовать эргономике, но и тратить огромное количество квадратных метров на уборную – тоже не очень правильное решение. Для того чтобы найти эту необходимую середину нужно учитывать абсолютно все факторы и особенности.
Для душевой кабины понадобится площадь размером около 2–2,5 кв. м, для ванны – 2,5 –3,5 кв. м, для раковины нужно около метра, для унитаза – 1,2–1,8 кв. м. Получается, что для обычной семьи, состоящей из 4–5 человек, оптимальный размер санузла составляет около 8 «квадратов».
Если возникает необходимость в использовании гостевого санузла, тогда учитывается частота, количество посетителей и возможность использования уборной инвалидами.
Необходимо учитывать:
- Существуют разные модели унитазов в среднем 40 х 65 см.
- Размеры средних ванн составляют 80 х 160 см. Угловые ванны обычно около 150 х 150 см. Средняя высота ванн – около 50 см, высота ванны с ножками – 64 см.
- Душевые кабины бывают абсолютно разнообразными, но основные размеры – это 80 х 80 см, 90 х 90 см, 100 х 100 см.
- Полотенцесушитель должен располагаться в 70–80 см от ванны.
- Оптимальные размеры биде – 40 х 60 см.
- Оптимальный размер умывальника – около 50–60 см в ширину.
Еще необходимо учитывать все особенности оптимальных габаритов санузлов для людей с ограниченными возможностями. Размеры учитываются исходя из габаритов инвалидной коляски. Минимальный размер ванной должен быть не меньше 230 кв. см, туалета около 150 кв. см. Таким образом, ширина уборной должна быть 1,65 кв. м, длина – 1,8 кв. м.
Максимальных размеров санузла нет, поэтому при законной перепланировке вы можете выбрать себе уборную размером и 7, и 8, и 9 кв. м.
Примеры и варианты: рекомендации
Планировка собственного санузла очень важное занятие, ведь необходимо подстроить все под собственные удобства. Заниматься перепланировкой следует только при помощи специалистов, в противном случае изменение планировки собственными руками грозит нарушению структуры дома и дальнейшими проблемами со стенами. Не исключен и вариант обвала стены, поэтому такая перепланировка является незаконной и небезопасной.
В начале планирования необходимо учесть все факторы заранее, потому что в дальнейшем может не влезть сантехника и коммуникации. Далее необходимо рассмотреть все варианты отделки и размещения. Затем нужно выбрать подходящий именно для вас вариант из возможных.
Минимальное помещение размером от 2,5 метра
В зависимости от особенности использования помещения необходимо выбрать совмещенное или раздельные помещения вам нужны. При таких размерах санузла лучше использовать совмещенные ванную комнату и туалет, так как перегородочная стена занимает место, которого, итак, мало. Здесь надо использовать компактную сантехнику, угловую ванну или душевую кабинку, частично встроенный в стену унитаз.
Стиральную машину нужно расположить около входа или под раковиной. Санузел не стоит загромождать лишними приспособлениями. В таком помещении лучше располагать зеркала средних размеров, чтобы помещение казалось больше.
Санузел размером 4 кв. м
Такое помещение уже считается просторным, поэтому всю сантехнику и стиральную машинку можно расположить у стен по собственному желанию. В таком помещении желательно установить вытяжку, так как в таком помещении может скапливаться пар.
Ванну следует расположить в дальнем углу, заслонив ее брызгозащитным экраном, это добавит немного приватности. В соседний угол следует расположить небольшие шкафчики для бытовых принадлежностей. Стиральную машину можно расположить около входа и шкафов.
Вариант размером 7 кв. м
Такой санузел является очень просторным, поэтому здесь можно «творить» и создавать все условия для отдыха и быта. Здесь можно установить как ванну, так и душевую кабину. В первом случае купель следует отгородить полупрозрачным экраном, чтобы можно было нескольким членам семьи одновременно использовать санузел.
В такой уборной можно установить две раковины и биде. Стиральную машину также лучше разместить в нише, рядом с ней можно расположить сушку для белья. Все свободное пространство используется для различных полезных шкафчиков.
Последние напутствия
Санузел является очень важным помещением для каждой квартиры, дома или общественного места. Так как размеры этого помещения могут быть разнообразными, стоит правильно подобрать варианты отделки и использовать все квадратные метры по максимуму. При необходимости в маленьком санузле можно провести перепланировку, но делать это нужно под контролем профессионалов. Также не стоит забывать, что при любой отделке уборной нужно придерживаться всех норм СНиП.
Выбирать санузел по вкусу очень важно, чтобы можно было использовать его с полной пользой и возможностью хорошего отдыха. Если воспользоваться приведенными выше рекомендациями, сделать это будет очень легко.
О том, как планировать санузел, смотрите в видео ниже.
Как разместить сантехнику в ванной и туалете согласно нормам и здравому смыслу
Какое напольное покрытие выбрать
Для эргономичности санузла очень важно правильно подобрать напольное покрытие. Пол не должен быть скользким, так как это может привести к несчастным случаям
Основные виды материалов, которые используют в ванных и туалетных комнатах такие:
Плитка в туалете
- Нескользкая керамическая плитка;
- Ламинат;
- Линолеум.
Выбирать необходимо очень тщательно. Она должна иметь чуть шероховатую структуру, чтобы не было скольжения при намокании. Обычно итальянская керамическая плитка намного качественней отечественной и срок службы у нее больше. У напольного покрытия из плитки много преимуществ:
- Такое покрытие стойкое к истиранию, его можно без опаски мыть и чистить;
- Влагостойкость;
- Долговечность;
- Красивый внешний вид.
Недостаток всего один – керамическая плитка боится механических повреждений, на нее нельзя ронять различные предметы, так как она может безвозвратно испортиться.
Выбрав для ванны ламинат, получают красивое напольное покрытие, которое может имитировать дерево дорогих пород. Уложить в санузле ламинат сможет даже начинающий мастер, главное хорошо подогнать стыки. Если стыки плохо подогнаны, то в них может попадать влага и ламинат будет деформирован и испорчен. Поверх ламината желательно стелить специальные коврики, такое покрытие становится скользким при попадании воды.
Линолеум санузла
Можно застелить в санузле линолеум. Это напольное покрытие недорогое, красивое, не боится влаги, его легко настелить на пол. Однако при намокании линолеум очень скользит, поэтому также необходимо использовать специальные коврики для ванных комнат.
Хорошо зарекомендовали себя теплые полы в санузлах, особенно это актуально для совмещенных туалетов с ванной. На такие полы приятно становиться босыми ногами и при этом не требуется дополнительный источник отопления в помещении.
Как рационально оборудовать ванную комнату
В современном жилище, будь это типовая квартира или частный дом, всегда предполагается как ванная, так и туалетная комната, или их совмещенный вариант. В большинстве случаев они не слишком велики, однако вполне возможно выделить необходимое место для санитарной зоны и зоны купания. Прежде чем приобретать сантехнику, нужно измерить площадь комнаты и определить места под раковину, ванну и другую технику, учитывая рекомендуемые правила и нормы при их установке.
Биде рекомендуется устанавливать рядом с унитазом, на расстоянии не меньше 60 см.
Организуя пространство в ванной, следует учитывать эргономику и соблюдать рациональность размещения. Необходимо заранее и точно определить максимально комфортное расстояние между унитазом и биде. Четкие регламентации по величине этого расстояния отсутствуют, выбор его достаточно произволен, но надо учитывать, что расстояние от стояка канализации до унитаза делают 1 м, а остальную сантехнику располагают не далее 3 м.
Свободное расстояние перед каждым устройством желательно сделать не меньше 60 см (удобнее будет площадка 70х100 см), а с каждой боковой стороны нужно оставить 25-30 см. Непосредственно расстояние между биде и унитазом, по советам специалистов, можно делать от 30 см до 45 см. Меньшего растояния для использования сантехники будет недостаточно, а при большем это будет не очень удобно. От приборов до умывальника, если он предусмотрен в санитарной зоне, выделяют промежуток не меньше 25 см.
Расстояние от стенки до унитаза оптимальная планировка
На протяжении ремонта туалета и ванной комнаты при замене сантехники появляется неприятность верной планировки санузла. Один из наиболее серьёзных параметров удобства – это расстояние между унитазом и стеной, поскольку если оно выбрано неправильно, пользоваться прибором будет некомфортно.
Мы рассмотрим нормативные требования и узнаем, какие конкретно основные расстояния определяет инструкция.
Перепланировка санузла
Отдельное размещение туалета
Начнем с более несложного случая, в то время, когда туалет отделен от ванной комнаты. Несложнее он вследствие того что в таком туалете, в большинстве случаев, расположен один прибор. В большой комплектовке возможно добавлено биде, в случае если разрешают размеры помещения.
Мы сходу озвучим нормы расстояния от стенки до унитаза, принятые в СНиП 2.08.01-89* «Жилые здания»:
Обратите внимание! Официальные нормы обязательны для исполнения при государственном и частном постройке объектов. Хозяева квартир смогут их не делать и размещать устройства на свое усмотрение, поскольку их эксплуатация и обслуживание выполняется ими же
направляться заявить, что эти нормы актуальны в том случае, в то время, когда туалет достаточно просторный, и вы не понимаете, где лучше поставить тот либо другой прибор. Но в большинстве постсоветских квартир таковой неприятности не появляется, поскольку габариты туалета минимальны, и унитаз ставят посередине кабинки у задней стенки.
Обратите внимание! Большая часть туалетных кабинок советской эры имеют такие габариты, при которых установка компакта ровно посередине помещения у задней стенки дает те самые минимальные расстояния до боковых стен и входной двери. Совмещенный санузел
Совмещенный санузел
Если туалет и ванная находятся в одном помещении, задача мало усложняется тем, что вам нужно рационально разместить пара сантехнических устройств в довольно малый комнате.
Дополнительные неприятности может привести к необходимости установки бытовой техники – стиральной машины, бойлера и т.д. Наряду с этим наиболее приемлемый вариант планировки предполагает не только рациональное и эргономичное, но и гармоничное с позиций дизайна размещение всех объектов.
Это еще одна особенность современности: люди желают жить комфортно и красиво, а этого, как мы знаем, не запретишь.
В случае если ванная большая, тогда нужно поделить ее помещения на территории: территорию душевой кабины либо ванны, территорию умывальника, территорию туалета и т.д. Но в большинстве советских и многих современных квартирах для того чтобы раздолья нет, и задача сводится к исполнению минимальных требований по расстоянию между соседними устройствами, устройствами и стенками и наличию проходов.
Довольно часто компакт и биде, а время от времени и умывальник располагают в линию у стенки. В этом случае между соседними устройствами должен быть зазор не меньше 20 см, лучше – 30 см. Имеется в виду расстояние от края до края.
В случае если рядом с унитазом расположена раковина, наряду с этим подход к ней осуществляется со стороны прибора, тогда нужно не забывать о пространстве для наклона: на протяжении умывания человек наклоняется к раковине и отходит мало назад. Минимальное пространство для этого должно быть не меньше 70 см.
Обратите внимание! Размеры расстояний до боковых стен принимаются без трансформаций – 38 – 45 см от средней оси чаши до стенки. Аналогично не изменяется требование по расстоянию перед унитазом – оно образовывает как минимум 53 см, для комфортного применения – 76 см
Тут возможно вносить коррективы лишь в громадную сторону.
Для совмещенных санузлов очень актуально поднимается вопрос экономии пространства. Одним из примеров таковой экономии есть унитаз с бачком в стенке. Монтаж данной модели своими руками пара усложнен, но применение современных инсталляций и комплектов с рамами упрощает и эту задачу.
При перепланировках ванных и уборных направляться учитывать расстояния между соседними устройствами, и не забывать про отступы от стенку (см.кроме этого статью «Унитаз биде: назначение и особенности конструкции»).
Эргономика ванной и туалетной комнат
13.03.2009 17:54
Просмотров: 128932
(60 оценок, средняя: 4.17 из 5)
В Мой Мир
Каждый раз, когда планируется ремонт, необходимо начинать его с, так называемых, мокрых зон — это ванная, туалет и кухня.Эти помещения самые сложные при планировании и расчете эргономичного пространства.
При реконструкции (ремонте) ванной комнаты учитываются необходимые условия, а именно:
- Унитаз необходимо располагать вблизи стояка канализации, если это не учитывается, тогда унитаз ставится выше уровня пола.
- Раковину необходимо размещать на высоте 85-90 см от уровня пола.
- В маленьких ванных комнатах (меньше 15 м2) по технике безопасности запрещено устанавливать розетки и выключатели, они располагаются перед входом в комнату.
- В случаях, когда ванная комната больше 15 м2 можно устанавливать розетки для различной техники: полотенцесушителей, фенов, саун, телевизоров и даже електро-каминов.
- Полотенцесушители располагают рядом со стояком для подключения к горячей воде. Электрические полотенцесушители устанавливают на любой высоте от пола и рядом с розеткой.
Вентиляция
В санузлах, особенно в ванных комнатах, чтобы не образовывалась плесень и грибки, необходима хорошая вентиляция. Возможно подключение принудительной вентиляции.
Теплые полы
Могут быть как электрические, так и из гибких труб с горячей водой. Панели подключения и управления у электро-полов выносят перед дверью в ванную комнату.
Унитазы
Бывают напольные с бачком (компакты), напольные со встроенным бачком, подвесные, а также комбинированные с биде. Для навесных унитазов требуется дополнительное пространство для встраивания в стену смывного бачка.
| Оптимальные размеры напольного унитаза | Оптимальные размеры умывальника |
Биде
Бывают напольные и подвесные. Лучше покупать в комплекте с унитазом, для соблюдения стиля и формы, одинаковой конструкции (в подвесных комплектах все коммуникации должны быть скрыты под одной панелью). Биде устанавливается рядом с унитазом на расстоянии 15-20 см.
Раковины
Бывают керамические, стеклянные, стальные, акриловые, каменные и деревянные. По виду крепления их разделяют на прикрепляемые к стене кронштейнами раковины-консоли, стоящие на подставке (типа «тюльпан») и встраиваемые раковины.Стандартная глубина раковины — 45 см. Длина двойных раковин — 120-150 см. Расстояние между раковиной и душевой кабиной или ванной должно быть минимум 30 см.
| Необходимые оптимальные размеры для умывания в ванной комнате |
| Необходимые оптимальные размеры для вытирания полотенцем в ванной комнате |
Ванны
Существует богатое разнообразие ванн, изготовленных из различных материалов: Чугунные. Они быстро нагреваются и долго держат тепло. Такие ванны не подвержены коррозии. Ограничение есть только в дизайне, не бывает других форм, кроме как прямоугольных. Стальные. Прочная поверхность, но плохо держит тепло.Акриловые (пластиковые). Такие ванны долговечные, но не держат тепла. Бывают разнообразных форм и размеров.Куариловые (смесь акрила с порошком из кварца). Хорошо держат тепло, прочные и устойчивые к царапинам. Также бывают Деревянные, ванны из Оникса, Мраморные и Стальные.За функциональными возможностями — бывают обычные и гидромассажные ванны.Выбор ванны зависит от размеров ванной комнаты. Существует прямая зависимость между высотой и длинной ванн — чем они длиннее, тем меньше у них высота. Распространенные размеры ванн — 170х70 см. Также существуют сидячие ванны длиной 150х70 и 120х70 см.
| Стандартные размеры прямоугольной ванны | Стандартные размеры круглой ванны |
| Стандартные размеры угловой ванны | |
Душевые кабины
Существуют различные по форме и размерам душевые кабины. Их разделяют на простые и комбинированные. Простые бывают с поддоном различной формы и стекленными или пластиковыми стенками-дверцами. Поддоны в душевых кабинах могут быть: керамические, стальные, чугунные, акриловые, из мраморной крошки. Минимальный размер поддона душевой кабины — 80х80 см. Комбинированные душевые кабины — это объединенные гидромассажные ванны с душевой кабиной. Они значительно экономят место в ванной комнате.
| Различные варианты размещения сантехники в душевых и туалетных комнатах | ||
Обновлено ( 14.03.2009 20:50 )
Нормы СНиП 2.08.01-89
До недавнего времени в Российской Федерации в основном использовались нормативы советского государства, уделявшего огромное внимание строительной, производственной, эпидемиологической и производственной безопасности своих граждан
Признавая целесообразность приведенных в этих документах данных, полученных не просто опытным путем, но и на основании научных исследований, нормы и правила все же использовались на уровне рекомендаций.
Суд принимал их во внимание при разрешении споров, но мог и проигнорировать. Создание государственного реестра нормативных рекомендаций, норм и правил, а также методических указаний привело к тому, что разработанные нормы и правила в области строительства, производства и народного хозяйства обрели статус официальных и законодательно закрепленных
Основное условие принятия состояло в соответствии нормам российского закона
Создание государственного реестра нормативных рекомендаций, норм и правил, а также методических указаний привело к тому, что разработанные нормы и правила в области строительства, производства и народного хозяйства обрели статус официальных и законодательно закрепленных. Основное условие принятия состояло в соответствии нормам российского закона.
Санитарно-гигиенические нормы (СанПиН) не только не устарели, а стали еще более актуальными из-за ухудшившейся эпидемиологической и экологической обстановки. Ни один из принятых сводов правил, согласно законам РФ и постановлениям Министерства здравоохранения, не должен вступать в противоречие с нормами санитарии и гигиены.
размеры и расстояния
Дизайнеры, медики и производители оборудования для ванной давно уделяют внимание
эргономике ванной комнаты. Результаты многочисленных исследований позволили определить подходящие 90% людей размеры оборудования и рациональное его размещение
Оставшимся 10%, имеющим более крупные габариты, приходится либо терпеть неудобства, либо увеличивать цифры, приобретая более просторные душевые кабины и оставляя больше места между элементами ванной комнаты.
К сожалению, санузлы зачастую настолько малы, что об эргономике остается лишь мечтать. Однако стоит хотя бы приблизительно придерживаться правил с учетом имеющихся возможностей. В идеале между каждым предметом сантехнического оборудования, а также между оборудованием и стеной/дверью нужно оставлять 75 см свободного пространства.
Это не относится к унитазу и биде.
должно составлять примерно
от 35 до 45 см
. Если оставить большое расстояние, это может доставлять неудобства.
Расстояние от душевой кабины или от ванны до раковины
тоже может быть сокращено
до 30 см
, но не менее того. Чаша умывальника должна находиться над полом
на высоте 80-110 см
. В идеале – 90 см, если, конечно, ванной пользуются люди среднего роста.
Такой же в принципе должна быть и
высота столешницы мебели для ванной
(столики, тумбы, комоды, мойдодыры и т.п.).
Если у детей нет своей ванной, нужно позаботиться об удобной скамеечке, чтобы ребенок мог беспрепятственно совершать гигиенические процедуры, глядя на свое отражение в зеркале.
Умываясь над раковиной, человек наклоняется, а это значит, что перед умывальником должно быть достаточно места для этого. Нельзя монтировать умывальник в тесный закуток, если от края раковины до ближайшего препятствия (стены или другого сантехнического оборудования) нет свободного пространства, равного
хотя бы 55 см
.
Впрочем, должно быть достаточно места и для того, чтобы человек, умывая лицо и чистя зубы, не упирался локтями в стены.
Что касается унитаза
, то справа и слева от него должно быть
не менее чем по 35-45 см
– неважно, стены ли там или другие предметы оборудования.
Спереди от унитаза должно быть не менее 50 см
в независимости от того, что там расположено – дверь, душевая кабина или раковина. Лучше, если
перед унитазом
будет оставлено
не меньше 75 см
Если это
туалетная кабинка
, то средний ее размер должен быть
168 на 92 см
Лучше, если
перед унитазом
будет оставлено
не меньше 75 см
. Если это
туалетная кабинка
, то средний ее размер должен быть
168 на 92 см
.
Нужно монтировать немного
впереди от края унитаза (на 20-30 см)
.
Высота держателя туалетной бумаги
от пола –
60-70 см
.
Если оборудуется
стационарный душевой уголок
, то его размер должен быть
не менее 75 на 75 см
, и это при условии, что принимать душ будут люди средней комплекции. В идеале же
душевой уголок или душевая кабина
должны быть
не менее 90 на 90 см
.
СНиП Жилые здания о нормах расстояния
Правила, содержащиеся в нормативном документе, обязательны при строительстве любого типа зданий – производственных, общественных, лечебных, образовательных и жилых. Однако существует негласное мнение, что владельцы помещений в жилых домах и частных постройках могут отступать от продиктованных норм, если они сами совершают их обслуживание и эксплуатацию.
В основном такое отступление делают владельцы помещений с санузлами, совмещенными или откровенно небольшими. Если туалет достаточно просторный, лучше придерживаться установленных правил, чтобы пользоваться специальными помещениями с удобством и безопасностью:
- до передней (фронтальной) стенки или стены с дверью, если речь идет о небольшом туалете, минимальное расстояние составляет 53 см. Этого достаточно, чтобы не чувствовать стеснения в области коленного сустава;
- максимальная необходимая удаленность от фронтальной плоскости, расположенной перед сидящим – 76 см;
- максимальное удаление спереди не особенно нуждается в нормировании, и если есть возможность, функциональная зона для человека может составлять и более метра;
- от средней оси унитаза до стены сбоку установленный минимум равен 40 см. В некоторых источниках его определяют в 38 см;
- оптимальная дистанция от центральной оси унитаза – 45 см. Этого достаточно для комфортной эксплуатации сантехнического приспособления. Но никто не запрещает устанавливать и на большей дистанции, если это позволяют параметры отведенного помещения;
- в отдельном туалете расстояние между унитазом и стеной слева в зданиях типовой постройки обычно равняется дистанции до стены сбоку справа;
- расположение унитаза в туалетной комнате – обычно центр помещения, потому что сюда подводится канализационная труба. Это же определяет положение остальных унитазов на стояке на этажах сверху и снизу;
- второй вариант размещения сантехнического оборудования – ближе к задней стене. Это не дает возможности оборудовать подобие полочек или стеллажа, но характерно для минимальных габаритов туалета в квартирах типовой застройки, где санузел раздельный;
- кабинка туалета в домах советской эпохи строилась по размерам, когда центральное размещение давало необходимые расстояния до боковой стенки и фронтальной поверхности с расположенной в ней входной дверью.
При обустройстве совместного санузла есть определенные условия, которые необходимо соблюдать. Это нормы удаленности унитаза от других предметов интерьера, которых следует придерживаться, пусть даже минимально.
Но это неподходящий вариант, если габариты кого-то из членов семейства не соответствуют тем усредненным цифрам, на которые рассчитаны нормативы строительных правил и норм.
Другие детали монтажа
Как видите, немало нюансов и проблем кроется в установке унитаза. Расстояние от стены в этом случае не менее важный показатель, чем другие, потому эксперты рекомендуют заранее планировать такого рода работы, чтобы ни о чем не забыть, и сделать все в соответствии с нормами.
Обратите внимание, что при подъеме унитаза над основанием пола не рекомендовано использовать в этих целях древесину, так как этот материал поддается гниению в результате неблагоприятного влияния конденсата. Отодвинув сантехприбор на допустимое расстояние от стены до унитаза сбоку (цифры указаны выше) и смонтировав устройство, рекомендовано заливать бетонную стяжку, дополнительно предполагающую использование шурупов, дюбелей и специальных креплений для сантехники
Только так устройство будет надежно закреплено, а вы можете наслаждаться комфортным использованием сантехники, не беспокоясь о поломке
Отодвинув сантехприбор на допустимое расстояние от стены до унитаза сбоку (цифры указаны выше) и смонтировав устройство, рекомендовано заливать бетонную стяжку, дополнительно предполагающую использование шурупов, дюбелей и специальных креплений для сантехники. Только так устройство будет надежно закреплено, а вы можете наслаждаться комфортным использованием сантехники, не беспокоясь о поломке.
Теперь вы знаете, какими стоит пользоваться правилами и нормами. Расстояние от стены до унитаза – важный показатель, делающий ежедневное посещение туалетной комнаты более легким и комфортным. При столкновении с необходимостью перепланировки, изучение подобного рода материала поможет избежать распространенных ошибок, которые так часто делают ремонтники, затеявшие перепланировку собственными силами.
Почему санузел должен быть эргономичным
Туалет – это одно из самых востребованных помещений в любом доме. Пользование различными сантехническими устройствами должно быть безопасным и практичным, а общая обстановка туалетной комнаты должна радовать глаза. Если соблюдены все правила расстановки сантехники и ремонт выполнен в соответствии с нормами, то пользование санузлом будет комфортным и удобным.
В процессе ремонта санузла для того, чтобы в результате эта комната была функциональной и удобной необходимо соблюдать определенные правила, определяющие минимальные размеры сантехники и расстояния между отдельными частями оборудования. Пространство в этом помещении при этом будет организовано таким образом, что в нем поместятся все запланированные устройства, кроме того, вы сможете использовать их свободно и комфортно. Главные и незаменимые устройства, безусловно – это унитаз и раковина. Вы должны правильно спланировать размещение мебели и полок. Часто в этой комнате необходимо также найти место для стиральной машины.
Если вы уже решили, какие элементы мебели, сантехника и оборудование будут размещены в ванной комнате, можно приступить к планированию их местоположения с учетом правильных дистанций. Прежде чем приступать к планировке дизайна интерьера ванной комнаты необходимо знать расстояние от унитаза до стены, нормы, которые установлены для того, чтобы соблюдать санитарно-гигиенические требования, а также для обеспечения удобства при использовании сантехники.
Освещение санузла
Эргономичный туалет или совмещенный санузел характеризуются хорошим и практичным освещением. Хорошо смотрятся встроенные лампочки, а также дополнительные источники света, которые освещают отдельные зоны. Около умывальника обязательно должен быть небольшой светильник, который будет хорошо освещать умывающегося человека. Над ванной свет должен быть более рассеянным и мягким, чтобы можно было расслабиться после тяжелого рабочего дня. Хорошо когда в санузле предусмотрено экономичное ночное освещение, которое позволит пользоваться комнатой без включения основного света.
Усредненные социальные нормативы
Нормы установки унитаза от стены – результаты проведенных измерений, исследований, социальных и статистических опросов, которые позволяют вырабатывать нормативы для поточного производства. Некоторые из них вошли в ГОСТы и СанПиН, стали типовыми стандартами в реализации промышленной продукции на строительных рынках и супермаркетах строительных материалов.
Детский унитаз разрабатывался по нормам, полученным в педиатрии, где есть стандартные нормативы для каждого возраста – вес, рост. Детям, которые не соответствуют возрастным стандартам, приходится приспосабливаться в любом ДОУ – будь то детский сад или школа.
В домашних условиях далеко не у всех есть лишние квадратные метры и средства, чтобы осуществлять монтаж специального приспособления. Гораздо рациональнее использовать специальную подставку для унитаза. Социальные нормативы касаются стандартизированного оборудования и размера помещений.
Если есть люди, не соответствующие этим параметрам, они испытывают неудобства или (при наличии значительных средств) создают туалетные комнаты и покупают унитазы нестандартного типа. Усредненные нормы габаритов выглядят следующим образом:
- Самый распространенный размер унитаза: высота чаши – 40 см, бачок – 81,5 см, сливной патрубок возвышается на 185 см. Сам компакт в длину чаще всего 65 см, а в ширину – 35 см. Отсюда выходит, что от центральной оси устройства до его края может быть минимум – 17,5 см, если это взрослый, а не детский вариант. Тогда понятно, из каких соображений на строительном форуме на вопрос, сколько сантиметров должно составлять минимальное расстояние, пишут, что оно может быть 38 см, а расстояние от унитаза до стены сбоку в минимуме равно 20 см. В сумме 17,5 см (почти 18 см) от центральной (продольной) оси чаши и 20 см, рекомендованные до стенки, и дают те 38 см (минимальных). А если следовать нормативам СНиП и сделать 45 см от оси до стены, то это и будет оптимальный усредненный параметр, удобный для большинства людей.
- Для туалетной комнаты в строительных нормативах достаточным для комфортного пребывания и отправления естественных надобностей считается 80 см ширины и 1 м 20 см длины. При переоборудовании старого вторичного жилья нередко делают и меньше длину и ширину. Иногда таким образом выигрывают метры в прихожей или кухне. При этом обычно сближают ванную и туалет или расширяют пространство за счет изменения схемы ванной и установки душевой кабинки. Но в домах массовой типовой застройки с отдельно расположенным туалетом часто встречается габарит, определенный ГОСТом и СНиП, соответствующий нормам СанПиН и обеспечивающий максимальное удобство людям, проживающим в квартире.
Нюансы установки унитаза
Минимальное расстояние от унитаза во фронтальной части не может быть меньше 53 см, иначе отправление естественных надобностей станет проблемным и нанесет вред здоровью. Оптимально функциональное пространство во фронтальной части – 75 см. В сторону увеличения его не ограничивают, но если в совмещенном санузле такой возможности нет, то применяют унитаз с бачком в стене или подвесной.
Оборудование совмещенного санузла согласно имеющимся потребностям представляет особые сложности в малогабаритной квартире. В этом случае прибегают к установке душа вместо ванны и составляют схему, при которой ни одно из приспособлений не будет закрывать доступ во время эксплуатации к другому или, по крайней мере, причинять незначительные неудобства.
Эти нормативы легко выполнимы при использовании стандартных конструкций и типов раковины, биде, унитаза, умывальника. Но если приобретается необычное, экзотической формы или непривычных габаритов, нужно провести тщательные измерения, чтобы не испытывать сложностей при установке или не остаться с новым оборудованием, монтаж которого в существующих условиях будет невозможен.
Расстояния между элементами сантехники
Для того, чтобы безопасно и удобно использовать ванную комнату надо соблюдать определенные минимальные промежутки между ее элементами.
Расстояния между элементами сантехники:
- между раковиной шириной более 40 см и другой раковиной – 30 см;
- между унитазом и умывальником, а также ванной и душем – 20 см;
- раковиной и биде, а также кабиной душа – 30 см;
- от унитаза до биде – 30 см;
- между ванной и умывальником – 20 см;
- от ванной до биде – 30 см;
- от душа до биде – 30 см;
- между стеной и раковиной – 30 см;
- расстояние от унитаза до стены – 20 см;
- от стены и биде – 30 см.
Учитывая эти рекомендации, вы сможете эргономично обустроить свою ванную комнату, чтобы использование сантехники было комфортным, за ней было легко ухаживать и поддерживать ее в чистоте. Различные дизайнерские приемы помогут реализовать эти планы даже в самой маленькой комнате, например, можно посмотреть, как разместить стиральную машину (под столешницей раковины или в нише), выбрав удобную конфигурацию ванной или умывальника для экономии площади.
Соблюдать указанные параметры в санузле очень важно, несмотря на кажущуюся простоту этого вопроса. На самом деле, практически невозможно без соблюдения этих параметров организовать такое помещение с соблюдением всех санитарных норм и техники безопасности
Кроме того, такие нормы обеспечивают достаточно комфортное использование всей сантехники для всех членов семьи, а также для ваших гостей независимо от их телосложения. Такие стандарты обеспечивают также возможность провести тщательную уборку в санузле и обработку специальными средствами, если в этом есть необходимость.
Поэтому перед тем как приступить к планированию, следует собрать все размеры сантехники и оборудования, которые мы планируем установить. При этом вам необходимо пройтись по магазинам и записать все габариты планируемого оборудования. Заранее желательно присмотреть альтернативы и записать все данные для нескольких вариантов. Затем необходимо правильно снять размеры помещения и на листе бумаги начертить план размещения всех элементов. Для этого удобно использовать миллиметровую бумагу, но если ее нет под рукой, то подойдет и простой листок в клеточку из школьной тетради.
https://youtube.com/watch?v=NJuU1zZiAGQ
как обеспечить комфортное помещение для семьи
ПОДЕЛИТЕСЬ
В СОЦСЕТЯХ
Выбирая жильё, многие обращают внимание на размеры санузла в последнюю очередь, что считается крайне неправильным. Если площадь комнаты будет совсем маленькой, то расставить предметы первой необходимости будет непросто, тем более не останется места на размещение бытовых приборов и мебели. Размер туалета не может быть огромным, но как минимум там должно быть достаточно пространства, чтобы удобно установить унитаз, на котором будет комфортно располагаться.
В туалете должно быть достаточно пространства, чтобы было комфортно располагаться на унитазе
Особенности планировки и размеры туалета в квартире
Объём работ по оформлению туалета в первую очередь зависит от того, в каком состоянии находится помещение, потому как это может быть комната с черновой отделкой или вовсе с кирпичными стенами, если речь идёт о новостройке. В любом случае, в каком бы состоянии ни находился туалет в квартире или доме, следует начать ремонт с планировки интерьера. При этом требуется учитывать размеры комнаты и особенности отделки. В зависимости от размеров туалета в доме потребуется решить такие вопросы:
При планировке туалета необходимо учитывать размер и отделку помещения
- Рассчитать количество необходимых сантехнических приборов, которые хочется установить. Например, если это просто туалет, то здесь достаточно будет унитаза и хотя бы небольшой раковины, если же речь идёт о совмещённом санузле, то дополнительно нужно предусмотреть место для ванны и минимального набора мебели.
- Продумать, как спланировать разводку коммуникаций, чтобы разместить все необходимые элементы. Если место ограничено, можно приобрести многофункциональные приборы, например, унитаз с функцией биде или душевую кабину с вместительным поддоном.
- Подобрать варианты оптимальной отделки. Так, в маленьком туалете не следует использовать гипсокартонные стенки, которые отнимут полезную площадь. Также нужно понимать, что если стены потребуется штукатурить, то от каждой поверхности отнимется минимум по 2-10 см.
Полезный совет! Вычислять площадь туалета следует на этапе чистовой отделки и не раньше, потому как в соответствии с выбранным материалом может изменяться и площадь. Например, гипсокартонный каркас отнимает до 10 см, а штукатурка, в зависимости от отсутствия или присутствия армирующей сетки, забирает 2-15 см от каждой стены.
Если размер помещения позволяет, то желательно в туалете установить хотя бы раковину
Какими должны быть размеры туалета в квартире по ГОСТу и СНиПам
На этапе ремонта в доме или квартире многие стараются увеличить площадь именно за счёт размеров туалета и очень часто на эту комнату оставляют совсем мало места. Чтобы не ошибиться с площадью и потом не иметь проблем с государственными службами, нужно учитывать принятые по СНиПу стандартные размеры туалета в квартире.
В нормативно-правовых документах России существует большой перечень правил, регулирующих параметры санузлов, а также определяющих минимальные размеры туалета в квартире, доме или любом другом общественном помещении.
Также нормы устанавливают не только размеры, но и месторасположение санузла. Например, согласно правилам БТИ, если в результате перепланировки туалет оказался над жилой зоной или кухней, в оформлении такой квартиры откажут, а значит, придётся все переделывать. Иногда снисхождение делают лишь при проектировании двухуровневых квартир. В любом случае при расчёте размеров туалета в квартире панельного дома следует предварительно продумать все нюансы.
По нормативам СНиП минимальный размер туалета должен быть – 0,8х1,2х2,5 м
Единственное, когда можно не обращать внимания на принятые нормы и правила, – при планировании расположения и размеров туалета в частном доме, если не используется подключение ни к центральной канализации, ни к водоснабжению. И все-таки, прежде чем отказываться от установленных параметров, нужно принять во внимание стандартные размеры туалета, регламентируемые СНиПом:
- ширина – не менее 0,8 м;
- длина – от 1,2 м;
- высота стен – от 2,5 м.
Согласно нормам, выделяют стандартные размеры туалета в квартире, которые указаны в данной таблице:
| Тип помещения | Ширина, м | Длина, м | Площадь, м² |
| Санузел с установленным унитазом и умывальником | 1 | 1,5 | 1,5 |
| Совмещённый туалет и ванная | 1,98 2,5 2,5 | 1,73 1,6 2,35 | 3,42 4 5,9 |
| Совмещённый санузел с душевой кабиной (вместо ванны) | 1,4 | 1,6 | 2,24 |
При планировании туалета в частном доме эти стандарты можно округлить и сделать более просторное помещение, в котором свободно разместятся все предметы сантехники, при этом останется достаточно места для комфортного перемещения.
Полезный совет! Если под санузел отведена большая площадь, например, 6-7 м2, и в семье проживает большое количество людей, можно его разделить на два полноценных обособленных помещения. Рекомендуется в одной комнате установить не ванну, а душевую кабину, но унитаз с раковиной лучше монтировать в обоих помещениях. При оформлении таких санузлов можно использовать двусторонние инсталляции. Минимально рекомендованный размер туалета с раковиной в частном доме – 2-2,5 м2.
Минимальные размеры туалета, которые нужно учитывать при планировании пространства
Отдельно следует сказать о том, что согласно принятым нормам, если туалетная комната располагается на мансардном этаже, то расстояние от унитаза и до наклонного потолка не должно быть меньше 105 см. Другие важные правила, которые необходимо соблюдать при планировании размеров туалета в квартире:
Биде должно располагаться на расстоянии минимум 25 см от унитаза
- Дверь комнаты должна открываться строго наружу. Устанавливать дверь, которая распахивается внутрь, категорически не рекомендуется.
- Выход из санузла должен быть организован только в коридор или прихожую. Располагать дверь туалета вплотную к жилой зоне, а тем более к кухне, нельзя.
- При выходе из коридора высота потолка не должна быть меньше 210 см, что актуально в том случае, если планируется сделать в коридоре антресоль.
Нормами ГОСТа и СНиПа также регламентируется установка сантехники. Поэтому, если в санузле планируется установить не только унитаз, но и биде, умывальник или душевую кабину, нужно учитывать следующие показатели:
- Перед душевой кабиной или чашей ванны должно быть не менее 70 см свободного пространства.
- Биде нужно удалить от унитаза на расстояние не меньше 25 см. Располагать прибор при этом можно с любой стороны.
- Оптимальная дистанция от средней оси чаши и до боковой стены составляет 45 см.
- От передней стороны унитаза и до ближайшей стены должно быть 60 см свободного пространства, по сторонам рекомендуется оставить по 25-35 см.
- Если установлен умывальник, расстояние от него до ближайшей поверхности не должно быть меньше 70 см.
Умывальник желательно устанавливать на расстоянии не меньше 70 см от унитаза
Следует отметить, что предложенные стандарты больше подходят в том случае, если речь идёт о туалете, имеющем большую площадь, когда сложно определиться, как разместить все предметы сантехники. Зачастую площадь туалета в хрущевке не превышает нескольких квадратов. В таком случае унитаза устанавливают у задней стенки посредине кабинки, а на другие элементы редко находится дополнительное место. Также нужно отметить, что приведенные нормы в большей степени касаются планировки отдельного туалета. При оформлении совмещённого санузла столь строгие правила не действуют – при перепланировке нужно основываться на личном комфорте.
Полезная информация! Минимальная площадь туалета, которую можно встретить, – 1,8-2 м². При грамотном подходе даже в таких условиях получится создать комфортный уголок, правильно расположив мебель и использовав современную функциональную сантехнику.
Стандартный размер туалета для людей с ограниченными возможностями
Отдельно при обсуждении нормативов следует упомянуть о размерах туалетной кабинки для людей с ограниченными физическими возможностями. Так, нормы СНиП 2.08.02-89, касающиеся общественных зданий, которые прописаны в пункте 4.36, регулируют стандартные размеры санузлов для инвалидов. Согласно требованиям выделяют такие размеры туалетов для инвалидов:
Дверь в туалете для людей инвалидов должна открываться только наружу
- ширина комнаты – 1,65 м;
- глубина – 1,8 м.
Обязательным условием считается тот факт, что дверь должна открываться строго наружу, чтобы не мешать свободному перемещению инвалидной коляски. По нормам необязательно наличие дополнительного оборудования, такого как писсуары или биде, но их установка считается крайне желательной.
Помимо того, что следует учитывать размеры кабинки туалета, нужно подбирать и оптимальное место её расположения, чтобы человек с инвалидностью мог с лёгкостью туда попасть без дополнительной помощи. Обязательным считается и наличие поручней как возле унитаза, так и возле раковины. Оптимальная высота размещения поручня – 75 см. При этом необходимо, чтобы с той стороны, с которой человек будет пересаживаться на унитаз с кресла, он был откидным.
Важно! Размеры дверей в ванную и туалет должны быть такими, чтобы человек в коляске мог спокойно в них проехать.
План туалета стандартных размеров для людей с ограниченными возможностями
В уборной, предназначенной для человека с инвалидностью, раковина должна устанавливаться на уровне не выше 80 см, а зеркало – на высоте 1 м. Обязательно требуется, чтобы зеркало было оборудовано системой, позволяющей регулировать угол наклона на 10°, что обеспечит дополнительное удобство инвалиду-колясочнику. На удобной высоте должна монтироваться и кнопка слива, лучше всего, если она размещена на одном из поручней.
Если человек имеет проблемы с тазобедренными или коленными суставами, то высота унитаза в туалете должна быть выше стандартной – около 45-60 см. В этом случае нужно обратить внимание на размеры инсталляции туалета. Инсталляция позволяет отрегулировать высоту установки унитаза и при этом не требует монтажа лишних подиумов или оснований другого типа. Минимальными размерами туалета в частном доме или квартире, предназначенного для людей с инвалидностью, считаются:
- ширина санузла с установленной раковиной – 1,6, а длина – 2,2 м;
- туалет, совмещённый с ванной, – 2,2х2,2 м.
Минимальные размеры туалета для людей инвалидов: глубина – 180 см, ширина – 165 см
Если санузел для инвалидов располагается в общественном месте, на двери должен быть размещён специальный значок, а внутри на удобной высоте устанавливается тревожная кнопка.
Какие туалеты считаются стандартными в старых и новых квартирах
Площадь туалета в квартире всегда определялась по нормам СНиП. В последние десятилетия эти показатели не менялись, по крайней мере минимальные размеры точно остались неизменными. Квартиры старого фонда редко могли похвастаться большими параметрами санузла, однако даже на ограниченной площади можно оформить комфортное и удобное пространство с достаточным количеством свободного места.
При планировании интерьера туалета маленьких размеров специалисты рекомендуют придерживаться следующих правил:
В старых квартирах редко попадаются туалеты с большой площадью
- Сделать тщательные замеры комнаты и нарисовать схему помещения с учётом всех размеров, ниш и проёмов.
- Продумать детально план помещения, нарисовать все сантехнические приборы с учётом размеров и посмотреть, все ли поместится в комнате и достаточно ли останется свободного пространства для беспрепятственного перемещения. На этом этапе можно определить и количество приборов, чтобы понять, от чего можно отказаться.
- Обустроить ниши и углы. Для правильной организации помещения небольшой площади советуют по максимуму использовать встроенные и навесные конструкции. Чтобы сэкономить пространство, в нише можно оформить инсталляцию для унитаза или сделать встроенный шкаф для мелочей.
Статья по теме:
Ремонт туалета в квартире или доме: как создать красивый дизайн
Особенности, преимущества и стоимость услуги под ключ. Как сделать красивый ремонт своими руками: рекомендации и поэтапное руководство.
Важно также заранее продумать и габариты выбранной сантехники. Если туалет маленького размера, не следует приобретать унитаз глубиной больше 60 см, потому как на большим и неправильно установленным прибором будет неудобно пользоваться.
В новостройках встречаются туалетные комнаты площадью 4 м² и более
Что касается современных планировок в новостройках, то здесь, как правило, на санузел выделяется большая площадь. Современные квартиры маленькой площади обычно отличаются присутствием туалета размером около 4 м², в то время как квартиры больше 60 м² могут похвастаться либо раздельным санузлом, либо большим туалетом, совмещённым с ванной, размер которого достигает 6 м².
Также современное элитное жилье может дополнять туалет, размер которого равняется 9 м². Такой площади будет достаточно, чтобы оформить наиболее комфортное помещение со всей бытовой техникой, вместительными шкафчиками для белья и бытовой химии. В некоторых случаях в таком большом санузле устанавливается встроенная гладильная доска, на которой удобно утюжить белье.
Если говорить о новостройках, то при любой площади квартиры здесь соблюдаются определённые правила, касающиеся размеров санузла. Так, в новых однокомнатных квартирах площадь данного помещения позволяет свободно разместить все необходимые элементы: ванну, унитаз, раковину. Зачастую остаётся уголок для установки стиральной машины или корзины для грязного белья.
Просторный туалет можно оборудовать всем необходимым для комфортного использования
В двух- и трёхкомнатных квартирах чаще всего планируется размещение раздельного санузла. Планировка квартир размером 80-100 м², в зависимости от общей площади жилья, предусматривает два санузла различных габаритов. Рекомендуемыми размерами дверей в туалет считаются проёмы 55-60 см без учёта ширины косяков.
Как рассчитать параметры уборной, которой будет комфортно пользоваться всем членам семьи
Расширить границы небольшого туалета в условиях многоэтажки или любого другого общественного дома в большинстве случаев считается нереальным, потому как для этого потребуется не только забрать площадь у другого помещения, но и продумать снос стен и их возведение на новом месте. Совсем по-другому этот вопрос стоит при организации туалетной комнаты в условиях частного дома, когда спланировать оптимальный размер санузла можно еще на этапе строительства и создания схемы размещения комнат.
Перед тем как создать план дома, необходимо заранее решить вопрос о том, какой нужно оформить санузел: совместный или раздельный, а также можно заранее продумать и наличие нескольких туалетов. В этом случае чаще всего делают отдельный небольшой туалет с раковиной и унитазом, а во второй комнате оформляется полноценный совмещённый санузел.
Создавать комфортный санузел для всей семьи необходимо еще на этапе проектирования
Полезный совет! Каждому на этапе строительства собственного дома хочется сделать все комнаты максимально большими. Это желание лучше реализовать при планировании большой спальни или кухни, а вот выделять на санузел больше 6-7 м² не считается разумным. Такая площадь была рассчитана с учётом нормативов и особенностей размещения сантехнических приборов.
В таблице указана оптимальная площадь, которой достаточно для установки той или иной сантехники:
| Название прибора | Количество свободной площади, м² |
| Душевая кабина | 2-2,5 |
| Ванна | 2-3,5 |
| Унитаз | 1-2 |
| Раковина | 0,7-1 |
Прежде чем планировать обстановку, следует ознакомиться со стандартными габаритами сантехники, например, длина унитаза, в зависимости от модели и размера, варьируется от 460 до 605 мм, ширина – от 300 до 400 мм, а высота достигает 40 см. Отдельно стоит выделить детские приспособления и компактные унитазы уменьшенных размеров, а также чаши, имеющие увеличенные параметры, рассчитанные на очень крупных людей и инвалидов с ограниченными физическими возможностями.
Биде обычно имеет стандартные габариты – 60х40 см. Наиболее распространённой шириной ванны считается 70-85 см, а высота, в зависимости от отсутствия или присутствия ножек, меняется от 48 до 64 см. По длине выделяется много вариантов чаш, например, существуют маленькие сидячие ванны размером до 120 см. Оптимальной длиной является 150-170 см, которой достаточно для размещения человека средней комплекции. Душевые могут быть как квадратными, так и любой другой формы. Умывальники имеют разную ширину, а глубина обычно равняется 40-60 см.
Как провести ремонт в туалете малых размеров: фото готовых интерьеров
Прежде чем оформить дизайн туалета маленького размера в панельном доме или любом другом жилье, следует для начала продумать особенности ремонта. Туалет и ванная, даже если разделены на разные помещения, тем не менее считаются единым санузлом, при отделке которого следует использовать один стиль, цвет, фактуру и одинаковые отделочные материалы. Также до начала ремонта нужно определиться с количеством и типом сантехники, потому как инсталляцию под подвесной унитаз или биде следует крепить до проведения отделки стен.
Уютный и удобный интерьер туалета можно создать даже в маленьком помещении
Полезный совет! В совместном санузле любых размеров рекомендуется на всех поверхностях, кроме потолка, использовать керамическую плитку, которая продолжительное время сохраняет внешний вид и не подвергается воздействию влаги. В небольшом отдельном туалете для отделки стен при желании можно использовать обои, но все равно керамика считается лучшим вариантом.
Визуально расширить границы даже небольшого санузла можно с помощью светлой отделки, а вот при создании дизайна туалета 4 кв. м уже можно проявить больше фантазии и применить любые сочетания цветов. Здесь уже получится, помимо раковины и туалета, предусмотреть дополнительную сантехнику, бытовую технику, небольшую мебель, например, можно установить навесной шкаф со сдвижными или распашными дверями для хранения бытовых мелочей.
Актуально оформить туалет очень маленькой площади в стиле лофт, потому как направление приемлет наличие открытых коммуникаций, а также минимальное количество отделки на стенах. Характерной чертой лофта считается присутствие кирпичной кладки, поэтому можно сэкономить на отделке как минимум одной стены. При этом нужно быть уверенным, что открытые кирпичи в маленьком туалете не станут причиной травмирования.
Сделать помещение визуально больше можно с помощью отделки
Если просматривать фото дизайнов туалетов для маленькой площади, зачастую можно отметить наличие угловой мебели и встроенной сантехники. Такой прием позволяет по максимуму занять невостребованные площади вокруг угла и освободить больше свободного пространства в центральной части комнаты. В интернете представлена большая подборка фото интерьеров туалетов маленьких размеров, доказывающая, что даже небольшое пространство можно сделать необычным и удобным.
Как правильно расположить дачный туалет: размеры и чертежи
Изготовление небольшого уличного дачного туалета планируется в том случае, когда в доме выполнить туалет довольно сложно. Помимо того, что нужно разобраться с размерами туалета в частном доме на улице, следует уделить большое внимание выбору места, потому как в этом случае тоже есть некоторые нормы и правила. Крайне плохой идеей считается установка уличного туалета в центральной части придомовой территории или же вблизи соседского участка. Оптимальным местом считается дальний внутренний угол дачи, находящийся в 1 м от задней и боковой разграничительной линии.
Помимо выбора удобного месторасположения постройки, следует также придерживаться и санитарных норм СНиП, прописанных в разделе № 42-128-4690-88. В соответствии с правилами, которые касаются частной застройки и территории садово-дачных объединений, необходимо:
Проект деревянного дачного туалета с размерами
- Выполнять выгребную яму не меньше, чем на расстоянии 10-12 м от ближайшей жилой застройки.
- Не располагать место скопления нечистот ближе, чем на 25 м до питьевого колодца или стационарного источника воды.
- Устанавливать кабинку для туалета минимум на расстоянии 1 м от забора.
- Продумать постройку так, чтобы она не располагалась ближе, чем на 12-13 м к подвальному помещению или погребу.
- До ближайших плодовых деревьев от туалета должно быть не меньше 4 м.
От некоторых правил можно отходить, особенно это касается дачных товариществ, расположенных вдоль рек или озёр. В этом случае рекомендуют вместо выгребной ямы организовать герметический септик, который не нанесёт вреда окружающим водохранилищам. Ёмкость с отходами должна располагаться так, чтобы к ней беспрепятственно могла подъезжать машина-ассенизатор. При планировании сточной ямы необходимо учитывать и розу ветров, чтобы постоянный запах канализации не мешал нормальному отдыху.
Как правильно определиться с оптимальными размерами туалета
Чтобы правильно определиться с размерами уличного туалета, следует для начала продумать тип конструкции. Это может быть обычный распространённый вариант «деревенского» туалета с глубокой выгребной ямой или же современный «люфт-клозет», при строительстве которого продумывается обустройство септика с полноценной гидроизоляцией, предупреждающей заражение почвы и грунтовых вод. Другим, менее распространённым вариантом считается биотуалет, который просто устанавливается внутри возведённой кабинки, но сложность ухода за ним не способствовала его популярности. Стандартными размерами дачного туалета считаются следующие:
Минимальными оптимальными размерами уличного туалета считается ширина 1,2 и глубина 1,5 м
- Обычный прямоугольный домик, имеющий четыре параллельные стены, со стульчаком или обычной дыркой в полу должен иметь глубину не менее 1,5 м, удобной считается ширина минимум 1,2 м.
- При планировании туалета, имеющего треугольную форму шалаша или избушки, глубину следует продумать на уровне 1,5 м, а ширину ‒ не менее 1 м. Чтобы в туалете было удобно находиться, от головы до наклонных стен в стоячем положении должно оставаться больше 40 см пространства.
В целом оптимальной высотой уличного туалета считается 2-2,5 м, чего вполне достаточно для людей среднего роста. Если в качестве сиденья планируется разместить стульчак, то здесь также придерживаются норм установки унитазов в квартире, высота которых не превышает 50 см. Главное преимущество монтажа туалета-шалаша – хорошая устойчивость конструкции и меньшая подверженность к расшатыванию под воздействием ветра по сравнению со стандартным прямоугольным туалетом.
Туалет своими руками: чертежи с размерами, основные этапы возведения конструкции
Создание схемы и чертежа постройки выполняется на этапе планирования уличного туалета. Помимо того, что предварительная схема поможет в выборе правильных размеров, но также с её помощью можно рассчитать расход строительного материала, который понадобится в процессе изготовления, и уберечься от лишних покупок.
Полезная информация! На плане детально изображается конструкция с учётом необходимых размеров, форм и типа постройки. Можно попробовать разработать чертёж самостоятельно или же найти готовые проекты дачных туалетов в интернете.
Чертеж дачного туалета в форме шалаша для изготовления своими руками
Проще всего возвести традиционную деревянную будку, которую в случае необходимости будет легко переустановить на новом месте. В качестве основных материалов здесь применяют вагонку, доску, листы ДСП или фанеру. Быстрее всего сделать туалет из дощатых щитов. При возведении обычного односкатного туалета следует учитывать такие параметры:
- высота задней стенки – 2 м;
- высота передней стенки – 2,3 м;
- ширина 100-150 см.
Оптимальным размером основания считается 150х150 см, которого будет достаточно для человека любой комплекции. Не следует при строительстве рассчитывать на глазомер – лучше устанавливать панели с помощью уровня. В целом возведение дачного туалета состоит из таких этапов:
- Заливается небольшой фундамент в виде бордюрного перекрытия, его располагают не ближе, чем на 20 см к краю выгребной ямы.
- В случае создания капитальной постройки из кирпича между основанием и каркасом рекомендуют положить слой изоляции в виде нескольких листов рубероида. При строительстве обычного деревянного домика этот этап можно пропустить.
- Затем выполняется возведение каркаса с его последующей обшивкой.
- На завершающем этапе в полу вырезается отверстие диаметром 28-30 см и устанавливается дверь.
Для воздухоотвода в туалете используется пластиковая труба
Кровлю можно сделать из традиционного листа шифера или стали, но более лёгким, практичным и безопасным считается рубероид, который даже в случае сильного урагана не сможет причинить сильный вред. Чтобы конструкция была прочнее, на боковой и задней стенке делают диагональные укосины. Впереди обычно оформляют окошко. Размер окна в туалете в частном доме должен быть таким, что оно не только могло обеспечивать дополнительную вентиляцию, но и не мешало спокойно уединиться. Значительно продлить срок службы постройки можно посредством покрытия деревянных стенок лаком или краской. Нелишним будет обработать деревянное основание противопожарными растворами.
Даже при самостоятельном возведении дачного туалета не следует забывать о вентиляции, главная цель которой – отвод воздуха из ямы в атмосферу. В качестве воздуховода используется пластмассовая труба большого диаметра – минимум 10 см. Нижняя часть стояка погружается под крышку выгребной ямы на глубину 10-20 см, а верхнюю часть трубы следует вывести над крышей туалета на 20-25 см.
Размер туалета имеет большое значение, поэтому на этапе планировки не следует значительно урезать площадь санузла, чтобы увеличить соседние комнаты. При небольших размерах туалета необходимо правильно разместить унитаз, чтобы им было комфортно пользоваться. Также нелишним считается установка в помещении маленького рукомойника. Все остальные сантехнические предметы монтируются по возможности и при наличии большого количества свободного пространства.
Размеры туалета и санузла: стандартная и минимальная ширина
. Совершая покупку квартиры, мало кто обращает внимание на его площадь туалета. А ведь эта комната одна из часто пользуемых в квартире. Я расскажу вам о том, какими должны быть оптимальные размеры туалета для удобства вашей семьи.
Принятые стандарты размера туалета и ванной
Существуют квартиры различных типов. Каждая квартира в зависимости от типа планировки имеет свои габариты ванной.
Существуют стандарты минимальных габаритов санузлов, эти стандарты определяются «Санитарными нормами и правилами» (СНиП).
Наименьшие габариты раздельных санузлов, оснащенного унитазом и раковиной, рассчитываются в соответствии с методом открывания дверей. Общепринятые замеры двери: 75х210 см с шириной около 60 см. Минимальная площадь комнаты, с дверью открывающейся наружу составляет 0,9х 1,15 м. Для санузла с дверью, открывающейся внутрь, нужны большие размеры, так как она занимает дополнительное место, габариты такого туалета должны быть не менее 0,9х 1,45 м.
Минимальные габариты стандартного санузла
Стандартный — в хрущёвке в основном укомплектован раковиной, душевой и унитазом. Наименьшие площадь — 1,65х 2 м, либо 1,45х 2,2 м. Если санузел раздельный, площадь ванной составляют 1,35х1,65 м. Если же помещение оснащено резервуаром – ванной, с учётом расположения сантехники, кабинки для душа, нормы составляют 2,1х2,1 м, либо 2,35х1,7 м (2,35х2,5 м).
При постройке жилых помещений, обязательно должны учитываться стандарты габаритов санузлов в соответствии с СНиП.
Важно не только размеры унитаза, но и его способность выдерживать вес до 500 кг
Типовые габариты в жилых домах
Рассмотрим типовые параметры разных санузлов:
- В многоквартирных домах есть два типа постройки уборной: обычная и обновлённая. Отличие их состоит в том, что в обновленной планировке площадь туалета позволяет вместить раковину и стиралку. Соответственно площадь обычного туалета 1200*800 мм, 1500*800 мм и обновлённого 100*1500 мм. Если же ванная, совмещенная, то минимальное место составляет 1650-2000*1200-2500 м.
- В домах хрущевской постройки совмещенных построек 3,3 – 3,8 м2.
- Размеры уборных в постройках нового панельного типа от 4 кв.м.
- Улучшенные новостройки имеют площади санузлов 5-6 кв. м.
- Если речь идёт об индивидуальном строительстве, частном доме, то для масштабов санузла ограничений нет.
Заниматься перепланировкой следует только при помощи специалистов
Как выбрать оптимальный размер санузла
Главное в этом деле найти середину и сделать свой санузел оптимальных масштабов. Ведь в такой комнате, как в этой, очень много сантехники и техники необходимой для повседневной жизни. Чтобы всё это рационально вместить, не выделяя на туалет большую часть жилья, нужно взять к сведению все факторы и особенности.
Для каждого оптимальные размеры санузла могут быть абсолютно разными, но самое главное – это найти золотую середину
Во первых нужно учесть, сколько места понадобится для унитаза, душевой и ванны.
Также стоит подумать о наличии сантехники и учесть их замеры
Учитывая эти данные можно сказать, что для семьи, допустим из 4 человек, будет достаточно 8 кв. метров санузла.
Средние размеры сантехники:
- унитаз, в основном 40 х 65 см;
- габариты обыкновенной ванны 80 х 160 см, с высотой 64 см учитывая ножки;
- ванна углового типа 150 х 150 см;
- средние замеры душевых 80 х 80 см, 90 х 90 см, 100 х 100 см;
- если вы хотите биде, то вам придётся выделить 40 х 60 см;
- ширина средней раковины для умывания 50–60 см.
Еще необходимо учитывать все особенности оптимальных габаритов санузлов для людей с инвалидностью
В основном мы говорим о минимальных размерах уборной, если есть законное разрешение о перепланировке, то вы можете сделать туалет и 9 кв. м.
Если вы решили сделать планировку своей ванной комнаты, то отнеситесь к этому серьёзно.
Нужно учесть все особенности планирования такой комнаты, чтобы в итоге в ней вместились все необходимые для вас коммуникации.
Есть несколько решений для планировки маленькой комнатушки. Для экономии пространства вы можете использовать ниши. Ниши — это как бы отверстия в стене, где может разместиться, к примеру, стиральная машина. Такое решение поможет вам сэкономить пространство квартиры не ущемляя себя в бытовых удобствах.
В начале планирования необходимо учесть все факторы заранее, потому что в дальнейшем может не влезть сантехника и коммуникации
Если же вы решились на перепланировку, то такие меры проводятся только с разрешением коммунальных служб. Если вы решите сделать перепланировку без помощи специалиста, это может привести к обвалу стены.
Как выбрать унитаз
Выбор нового унитаза для ванной может стать огромным испытанием. Благодаря такому множеству опций, конфигураций и стилей на выбор вы хотите быть уверены, что выбираете правильный унитаз, отвечающий всем вашим потребностям.
При выборе нового унитаза для ванной учитывайте свои желания, бюджет и образ жизни. Правильно подобранный унитаз может значительно улучшить впечатления от ванной, и мы здесь, чтобы помочь вам сориентироваться во всех аспектах, которые необходимо принять во внимание, прежде чем сделать окончательный выбор.
Вот восемь главных вещей, которые следует учитывать:
Шаг 1. Узнайте об инновациях
Постоянно появляются новые инновации, которые заставляют туалеты работать больше, служить дольше и оставаться более чистыми, чем когда-либо прежде.
Самоочищающийся унитаз , например, позволит вам сэкономить время и избавит от необходимости выполнять одну из самых нежелательных работ по дому! Наш новый самоочищающийся унитаз ActiClean — идеальное решение, в котором используется очищающий раствор в сочетании с нашей мощной промывочной системой VorMax, а также с циклами быстрой и глубокой очистки чаши, которая становится полностью чистой одним нажатием кнопки.
American Standard предлагает широкий выбор унитазов с нашим уникальным покрытием EverClean® Surface . Это ультра-гладкая глазурь с антимикробными свойствами, которая наносится поверх обычной глазури и обжигается на всех застекленных поверхностях унитаза. Это придает унитазу супер гладкую зеркальную поверхность, которая остается более чистой, потому что почве труднее прилипать к ней. Поверхность EverClean® также препятствует росту бактерий, вызывающих пятна и запах, плесени и грибка на поверхности.
Шаг 2. Выберите унитаз, который поможет сэкономить воду
Экономия воды не только важна для окружающей среды, но и помогает ежемесячно экономить деньги на счетах за воду. Стандартные туалеты теперь смывают со скоростью 1,6 галлона на смыв (gpf), что составляет менее 50% воды, используемой старыми туалетами 3,5 gpf. Благодаря достижениям в гидравлических конструкциях, эти унитазы 1,6 галлонов на фут также работают, а в некоторых случаях даже лучше, чем старые туалеты, с точки зрения удаления больших объемов и уменьшения засорения.
Высокоэффективные туалеты (HET) смывают со скоростью 1,28 галлона на смыв, экономя на 20% больше воды, чем их аналоги с 1,6 галлона на фут. Производительность смыва наших HET не хуже, чем у унитазов 1,6 галлона на фут, что позволяет легко экономить воду.
Посмотреть все высокоэффективные туалеты
Унитазы со сверхвысокой эффективностью (UHET) смывают со скоростью всего 1,0 г / фут без ущерба для производительности. Они идеально подходят для водосберегающих туалетов.
Унитазы с двойным смывом объединяют в себе лучшее из обоих миров, с возможностью полного или частичного слива.
Посмотреть все туалеты с двойным смывом
В разных частях страны существуют разные проблемы с экономией воды. Использование унитаза с двойным смывом, HET или UHET может дать вам право на скидку в вашем районе. Вы не только сэкономите деньги, не жертвуя производительностью, но и даже получите за это деньги!
Шаг 3. Выберите правильную конфигурацию для вашей ванной комнаты
Существует несколько различных конфигураций унитазов для различных нужд.Правильный выбор конфигурации гарантирует, что унитаз будет иметь правильный вид и дизайн для вашей ванной комнаты.
Моноблочные унитазы на самом деле представляют собой от шести до десяти отдельных частей, вылепленных в единый цельный блок с уже прикрепленными баком и унитазом. В результате получается гладкий унитаз ручной работы без щелей между баком и унитазом для сбора грязи и запахов.
Посмотреть все сплошные туалеты
Унитазы , состоящие из двух частей, имеют отдельный бак и чашу, которые при установке скрепляются болтами.Все чаши American Standard имеют «санитарную заслонку» — приподнятую опору из фарфора в задней части чаши, к которой резервуар прикручивается. Приподнятая область гарантирует, что вредные материалы могут быть удалены, и они не будут накапливаться и вызывать запахи между дежой и баком.
Круглый унитаз отличается более компактной чашей, которая идеально подходит для небольших ванных комнат и дамских туалетных комнат.
Удлиненные унитазы имеют расширяющуюся чашу с дополнительным пространством спереди для дополнительного комфорта.Доступны компактные удлиненные унитазы удлиненной формы, которые вписываются в то же пространство, что и круглый передний унитаз.
Шаг 4. Определение требований к грубости и размеру
Туалеты бывают разных размеров, поэтому обязательно проверьте ширину, глубину и высоту доступного пространства.
Большинство туалетов крепятся болтами к полу на расстоянии 12 дюймов от стены (не считая плинтуса). Это известно как «грубое» измерение.
Посмотреть все 12-дюймовые туалеты с грубым покрытием
Шаг 5. Рассмотрите высокий унитаз для дополнительного комфорта
Традиционная высота края унитаза составляет около 15 дюймов от пола.Кольцо седла добавляет еще от ½ до 1 дюйма в высоту. Многие люди считают, что более высокий унитаз более удобен. American Standard предлагает унитазы с правильной высотой с высотой обода 16-1 / 2 дюйма от пола.
Шаг 6: Выберите правильную систему промывки
American Standard предлагает различные системы промывки, различающиеся по цене и функциональности.
Система промывки VorMax ™ оснащена мощной струей, которая очищает всю чашу, удаляя все на своем пути.Доказано, что технология VorMax Flush очищает в два раза лучше, чем обычные унитазы.
* Источник: Отчет об испытаниях № 109-141486-002, в котором VorMax сравнивается с обычными унитазами с водораспределением по краю, предлагаемыми крупными розничными торговцами.
Система промывки Champion® 4 имеет самый большой сифонный сифон (диаметр 2-3 / 8 дюйма), а самый большой сливной клапан (диаметр 4 дюйма) практически не засоряется, поэтому вам больше никогда не придется погружаться. Он наполнен инновационными функциями, которые делают его идеальным для занятых и / или больших домов.
Промывочная система Cadet®3 имеет больший сифонный сифон (диаметр 2-1 / 8 дюйма) и больший промывной клапан (диаметр 3 дюйма) для более высокой производительности и меньшего количества засоров. Более того, его легкоочищаемый дизайн делает его идеальным для ванных комнат со средней и высокой посещаемостью. Вариантом этой системы является система промывки LXP, которая имеет стандартный сифонный сифонный сифон диаметром 2 дюйма с большим промывочным клапаном (диаметр 3 дюйма), который также обеспечивает более высокую производительность при меньшем количестве засоров.
Шаг 7. Подберите унитаз к стилю дизайна ванной комнаты
При выборе туалета учитывайте стиль дизайна вашей ванной комнаты. Если у вас более традиционный, переходный или современный стиль, у вас есть унитазы для любого образа.
Традиционные ванные комнаты , как правило, представляют собой двухкомпонентные туалеты в классическом стиле, создающие неподвластный времени вид.
Шаг 8: Оцените эффективность туалета
Ванная комната используется каждый день очень часто — выбирая новый унитаз, вы должны быть уверены, что он соответствует самым высоким стандартам.Выбор унитаза с высокой производительностью смыва поможет устранить засорения и грязь в унитазе.
Характеристики унитаза оцениваются по шкале MaP , которая представляет собой количество граммов отходов, которые удаляются из унитаза за один смыв. Унитаз с показателем от 1000 до 600 грамм считается отличным смывом и удаляет до 35 унций. отходов за один смыв.
Унитазы
по американскому стандарту полностью протестированы, чтобы гарантировать высочайшее качество и долговечность.Это включает в себя фактическое тестирование промывки каждой чаши на заводе перед ее помещением в контейнер. Каждый компонент должен соответствовать ведущим в отрасли стандартам долговечности продукции American Standard.
Стандартные правила и рекомендации для ванной комнаты с размерами — Engineering Feed
Уважаемые читатели, мы представляем вам Стандартные правила для ванной комнаты и рекомендации с измерениями, которые ответят на общие вопросы при проектировании ванной стандартного размера.
Специалисты по планированию ванных комнат должны разработать стратегию использования этих рекомендованных дизайнов для решения проблем, с которыми люди сталкиваются каждый день при использовании ванной комнаты.Каждая деталь ванной комнаты имеет значение, чтобы обеспечить идеальный дизайн и максимальную функциональность.
Сюда входят оптимальные размеры для установки элементов ванной комнаты и наиболее подходящее расположение каждого элемента: стандартная высота ванны, стандартный размер унитаза, размеры двери в ванную, размеры зазора унитаза, стандартная высота ванны и минимальный размер душа.
Дверной проем в ванную Рекомендация : 32 ″
Для получения минимального проема в 32 дюйма требуется дверь шириной не менее 34 дюймов.Минимальная ширина в свету 34 дюйма — это универсальный дизайн. Абсолютно наименьшее допустимое отверстие — 24 дюйма, но только если существующие стены запрещают любые модификации.
Как измерить проем двери? Если вы измеряете расстояние от дверного косяка до дверного проема, когда дверь открыта, это измеряет проем двери, но не проем двери clear . Для расчета проема измерьте расстояние от внутренней части двери до другой стороны проема, пока дверь открыта. Обычно размер дверного проема будет примерно на 2 дюйма меньше, чем размер дверного проема .При выполнении этих измерений не обращайте внимания на дверные ручки.
Рекомендация по размеру комнаты туалета : 36 на 66 дюймов
Рекомендуемый размер для отдельных туалетных кабин (также называемых туалетными отсеками) с распашными дверцами или дверцами с карманами составляет не менее 36 на 66 дюймов. Это также рекомендуемый размер для отделения для биде. Измените эту минимальную рекомендуемую ширину на 60 дюймов, если стойло должно быть доступно для инвалидных колясок.
Абсолютный минимум, который соответствует требованиям Строительных норм IPC 405.3.1, требует размера 30 на 60 дюймов. Однако рекомендуемый размер идеален.
Эта рекомендация относится только к туалетной кабине с дверью. Однако на самом деле больше коммерческих туалетных комнат строят без дверей, чем с дверьми.
Можно использовать дверь кабинки в ванную, которая распахивается внутрь, если к длине купе прибавить ширину двери. Если длина качающейся двери составляет 24 дюйма, и вы хотите иметь рекомендованную длину стойла 66 дюймов, добавьте два, чтобы получить новую общую длину 90 дюймов.
Что делать, если в отсеке должен находиться и унитаз, и писсуар? Или унитаз и биде? В этом случае рекомендуемое расстояние 18 дюймов между центром унитаза и стеной или другим приспособлением для ванны, например писсуаром. В зависимости от ширины этого другого приспособления для ванны это увеличивает минимальную рекомендованную ширину на дополнительные 26–29 дюймов, а общая ширина составляет от 62 до 65 дюймов.
Рекомендация по расположению управления душем / ванной
Органы управления душем в ванной должны быть доступны, когда пользователь стоит внутри и за пределами струи душа.Кроме того, он должен располагаться на расстоянии от 38 ″ до 48 ″ от пола душа. Насадку для душа необходимо разместить на высоте от 66 до 81 дюймов над полом. Эти размеры могут быть изменены в соответствии с ростом домовладельца.
Органы управления в ванне должны быть доступны как изнутри, так и снаружи ванны. Он должен располагаться между краями краев ванны (в идеале — в центре) и на высоте не более 33 дюймов над полом.
Сиденье для душа, стул для душа и скамейка для душа Рекомендация : сиденье для душа глубиной 15 дюймов установлено от 17 до 19 дюймов над полом душа.
Абсолютный минимум и требование строительных норм IRC P 2708.1 заключается в том, что сиденье для душа не должно нарушать минимальный внутренний размер душа в 900 квадратных дюймов.
Хотя сиденье для душа не требуется, это хорошая идея, и многие домовладельцы ее просят. При переделке душа следует учитывать сиденье или скамейку для душа.
Многие местные строительные нормы и правила требуют, чтобы сиденье для душа располагалось за пределами круга диаметром 30 дюймов. Край этого круга касается места расположения насадки для душа.Это дает достаточно места, когда вы стоите и не садитесь на сиденье.
Сиденья и скамейки для душа трудно установить в душевых небольших размеров. Одно из решений, позволяющих уменьшить площадь сиденья при ремонте маленькой душевой кабины, — это использовать складывающееся сиденье. В сложенном состоянии сиденье все еще должно находиться за пределами 30-дюймового круга, упомянутого выше.
Рекомендация по высоте унитаза и умывальника : Высота может варьироваться от 32 до 43 дюймов в зависимости от предпочтений пользователя.
Раньше стандартная высота умывальника 32 ″ выбиралась как лучшая высота в основном для детей, но сейчас она устарела. После того, как дети вырастут, взрослые, к сожалению, на десятилетия остаются с очень низким тщеславием.
Текущий и лучший метод — установить умывальник 36 дюймов по заводскому стандарту. Дети добираются до раковины с подставки для ног. Однако для многих он по-прежнему либо слишком низкий, либо слишком высокий.
Лучший способ — установить умывальник на высоте, запрошенной пользователем.Это может быть от 32 дюймов до 43 дюймов в зависимости от роста человека.
Рекомендации по размещению унитаза / раковины : Расстояние от центра раковины до стены, шкафа или другого приспособления должно быть не менее 20 дюймов.
Строительный кодекс IRC 405.3.1 требует минимального расстояния 15 дюймов между стеной и центром туалета со столешницей. Это на 5 дюймов меньше рекомендуемого расстояния.
Строительный кодекс IRC R 307.2 требует минимального расстояния 4 дюйма между стеной и краем отдельно стоящего или подвесного туалета. Это требование заключается в том, чтобы было достаточно места для мытья стенок раковины. Отдельно стоящие и подвесные туалеты также должны соответствовать требованиям 15 ″.
Обратите особое внимание на размер раковины при ремонте маленькой ванной комнаты. В противном случае необходимое минимальное расстояние до стены может не соблюдаться. Производители раковин предлагают раковины, предназначенные для небольших ванных комнат.
Рекомендация по размещению двойного туалета / раковины : Расстояние не менее 36 дюймов между центрами двух раковин.
Строительный кодекс IPC 405.3.1 требует минимального расстояния 30 дюймов между центрами двух туалетов, а строительный кодекс IRC R 307.1 требует минимального расстояния 4 дюйма между краями двух отдельно стоящих или подвесных туалетов. Также двойные туалеты должны отвечать всем требованиям, предъявляемым к одиночным туалетам.
Добавление дополнительных 6 дюймов к требуемому минимальному расстоянию, в сумме 36 дюймов, улучшает функциональность.
При ремонте ванной комнаты меньшего размера важно знать, насколько важна ширина умывальника для обеспечения минимального расстояния смещения.
Рекомендация по свободному пространству пола : Между передней частью каждого туалета / умывальника, ванны, душа, унитаза или биде и противоположным объектом или стеной должно быть не менее 30 дюймов свободного пространства.
Строительный кодекс IRC R 307.1 требует, чтобы перед каждым туалетом / умывальником, ванной, туалетом или биде было не менее 21 дюйма. Обратите внимание, что душа отсутствует в этом списке. Для душевых кабин IRC P 2705.1.5 требуется 24 ″ площади пола перед входом в душ.
Эти минимальные требования 21 ″ и 24 ″ недостаточны для большинства людей. Рекомендуемый зазор в 30 дюймов следует использовать при ремонте ванной комнаты, так как это лучше для функциональности. Конечно, старые ванные комнаты, построенные много лет назад, могут быть всего 1,5 метра в поперечнике, а рекомендуемая площадь пола может оказаться невозможной.
Кроме того, оставьте расстояние 4 дюйма между любой стеной и ванной на ножках или отдельно стоящей ванной. Таким образом, можно получить доступ к задней и боковым сторонам ванны для очистки.
Один из способов добиться рекомендуемого зазора в маленькой ванной — использовать туалеты и раковины меньшего размера. При планировании можно установить небольшие угловые мойки или уменьшить глубину умывальника с 21 до 15 дюймов.
Кроме того, в небольших ванных комнатах всегда следует использовать дверь, которая распахивается наружу, а не внутрь, если соседняя комната не запрещает это каким-либо образом.
Рекомендация по высоте потолка в ванной комнате : Высота ванной комнаты от пола до потолка не менее 80 ″. Если в душе или ванне есть насадка для душа, то минимальная высота от пола до потолка 80 дюймов должна быть выше области не менее 30 на 30 дюймов у насадки для душа.
Строительные нормы и правила IRC R305.1 совпадают с рекомендацией.
Это означает, что минимальный размер душа 30 ″ x 30 ″ x 80 ″, что слишком мало для большинства людей.Более подходящий минимальный размер — 32 на 32 дюйма.
Для ванных комнат с наклонным потолком необходимая площадь пола должна иметь высоту потолка не менее 60 ″, где люди не могут ходить. Это важно при ремонте ванных комнат в подвалах, на чердаках или в зонах с воздуховодами или трубами, уменьшающими высоту потолка. Если это безопасно, официальные лица могут разрешить еще более низкий наклонный потолок.
Рекомендация по размещению дверей в ванных комнатах : Входные двери и двери душевой кабины не должны мешать использованию раковин, туалетов, сантехники, ящиков, шкафов или других дверей.
Для этой категории нет требований Международного жилищного кодекса, но эти рекомендации уместны.
При открытии двери не должны задевать другой неподвижный предмет или кого-либо, стоящего перед раковиной или сидящего на унитазе.
Чтобы полностью исключить помехи от дверей, входная дверь должна открываться наружу, а не внутрь. Это особенно полезно для добавления столь необходимого пространства при ремонте небольших ванных комнат. Освободилось свободное пространство на полу там, где бы внутренняя дверь распахнулась.
Найдите поставщиков и производителя размеров унитаза на yoybuy.com
Найдите поставщиков и производителя размеров унитаза на yoybuy.com
Размеры унитаза
Узнать сейчас
4.6
1852 г.
Узнать сейчас
4.4
371
Узнать сейчас
4.7
100
Узнать сейчас
4.5
66
Узнать сейчас
5.0
1
Узнать сейчас
4.5
66
Узнать сейчас
4.4
51
Узнать сейчас
4.0
23
Узнать сейчас
4.2
401
Узнать сейчас
5.0
4
Узнать сейчас
4.0
462
Узнать сейчас
5.0
2
Узнать сейчас
4.7
14324
Узнать сейчас
4.7
4573
Похожие Запросы:
как использовать свежий дезодорант для унитаза Поставщики, избавиться от пятен жесткой воды в туалете Китай, избавиться от пятен жесткой воды в туалете Оптовики, как содержать в чистоте унитаз с жесткой водой Производители, как избавиться от кольца унитаза Источник как избавиться от кольца унитаза Китай, как удалить стойкий известковый налет с унитаза Китай, как удалить стойкий известковый налет с источника унитаза, как удалить пятна от колодезной воды из туалета Китай, как удалить пятна от колодезной воды от туалетов Производители, как удалить пятна от колодезной воды из унитаза Источник, как удалить минеральные отложения из унитаза на заказ, как очистить темные пятна в унитазе Экспорт, как очистить темные пятна в унитазе Китай, как очистить кольцо в унитазе Китай, как очистить кольцо в унитазе Экспорт, как избавиться от накипи на ободке унитаза, как избавиться от пятен на кольце унитаза, как очистить от минеральных отложений с унитаза Поставщики, как удалить минеральные отложения с унитаза E xports, как очистить унитаз с пятнами, как избавиться от ржавчины в унитазе, как удалить водяное кольцо с унитаза Экспорт, как удалить водяное кольцо с унитаза Custom, как удалить твердые пятна с унитаза Китай, как удалить твердые пятна с унитаза Поставщики, как очистить желтые пятна на сиденье унитаза Оптовики, как избавиться от стойких пятен унитаза На заказ, как очистить желтые пятна на сиденье унитаза Китай, лучший способ избавиться от пятен унитаза Китай
СВЯЗАТЬСЯ С НАМИ
+86 10 84847953 — 6117
сервис @ yoybuy.com
ВРЕМЯ ОБСЛУЖИВАНИЯ
09:30 — 18:30
пн-вс
Разделители для ванных комнат | Типовые размеры туалетной кабины и перегородок
Планы этажей и размеры киосков
Туалетные перегородки и кабинки обеспечивают уединение и доступность общественных туалетов, но каждая ванная комната немного отличается. Знание типичных размеров стандартных стойл и стойл, соответствующих требованиям ADA, может помочь вам найти правильные разделители для вашего проекта реконструкции или нового строительства.Точные измерения упрощают установку, увеличивая мобильность и безопасность пользователя. Все наши перегородки для ванных комнат можно настроить в точном соответствии с вашими размерами. Свяжитесь с нашей командой экспертов по продажам, чтобы получить помощь с планом этажа.
В туалетной кабинке должно быть место для пользователей, которые могут удобно перемещаться, с достаточным зазором между дверью и туалетом. Стандартная туалетная кабина будет иметь ширину 36 дюймов, глубину 60 дюймов и дверь шириной 24 дюйма.
В соответствии с Законом об американцах с ограниченными возможностями (ADA) для ванных комнат обычно требуется одна большая кабинка, предназначенная для размещения инвалидных колясок.Эти киоски ADA имеют ширину 60 дюймов и глубину 60 дюймов с дверью шириной 36 дюймов и находятся в конце ряда.
Туалеты часто имеют концевую кабину, которая достигает стены до стены, создавая угол 90 градусов с другими отсеками. Это называется конфигурацией ниши и обычно имеет общую ширину 108 дюймов со стандартной дверью 24 дюйма или дверью ADA 36 дюймов.
Высота дверей, пилястр и панелей
Самый распространенный стиль туалетных перегородок — напольные с накладными распорками.Он будет состоять из пилястр высотой 82 дюйма, прикрепленных к полу, с подвесным рельсом, прикрепленным вверху для дополнительной устойчивости. Стандартные дверные и боковые перегородки имеют высоту 58 дюймов и устанавливаются на высоте 12 дюймов от пола. (Прочные пластиковые перегородки будут включать 55-дюймовую боковую перегородку, установленную на высоте 14 дюймов от пола.)
Также доступны перегородки для ванных комнат с повышенным уровнем конфиденциальности с большими панелями и дверцами, а также различные стили монтажа. Свяжитесь с нашими сотрудниками сегодня, чтобы узнать о размерах, опциях и ценах.
Толщина материала
Каждый материал имеет свои преимущества с точки зрения стоимости, влагостойкости, долговечности и даже антивандальной устойчивости.Правильный выбор материала поможет сэкономить время и деньги, а также добавит стильной отделке вашей уборной. Различные материалы также имеют очень большую толщину от ½ «до 1-¼». В таблице ниже представлены различные размеры обожженной эмали, твердого пластика, твердого фенола, пластикового ламината и нержавеющей стали.
Приобретайте стандартные и нестандартные разделители для ванных комнат и экономьте на них
.



5 м, а глубина – 1.5 м.
7 м, так как сама сантехника будет занимать более 80 см и человеку с ограниченными возможностями необходимо комфортно перебраться в нее.
8 м, длина – от 1.2 м, высота потолков – от 250 см;