на металлическую и не только, схема, инструкция и видео
Качественный и правильно установленный доводчик двери позволяет не только продлить срок её службы, но и сохранить тепло в помещении благодаря обеспечению автоматического плавного и бесшумного закрывания. Процесс монтажа может отличаться в зависимости от типа самого устройства или двери, но, как правило, не вызывает больших затруднений. Именно поэтому его можно выполнить своими руками.
Назначение доводчиков
Установленный на двери доводчик
Доводчики – это механико-гидравлические устройства, в основе которых находится механизм с пружиной в металлическом каркасе, заполненном маслом. Чаще всего они устанавливаются в помещениях с большой проходимостью, так как имеют целый ряд бесспорных преимуществ и обеспечивают:
- безопасность при ежедневном использовании двери;
- защиту помещения от шума и негативных погодных явлений;
- экономию энергоресурсов благодаря надежной теплоизоляции и отсутствию сквозняков.
Между тем, успех выполнения доводчиком всех этих функций зависит от правильности его монтажа.
Ввиду наличия индивидуальных особенностей строения того или иного дверного доводчика, устанавливать его нужно, чётко следуя стандартной инструкции, а также рекомендациям самого производителя.
Виды
В зависимости от типа дверной конструкции и её функций подбирают определённый вид доводчика
Современные дверные доводчики различают по дизайну, типу конструкции и мощности. К тому же, все они условно делятся на:
- Верхние, которые предназначены для крепления в верхней части дверного полотна. Они, в свою очередь, могут разделяться на доводчики с зубчатым приводом, которые приводятся в движение специальным зубчатым штифтом и характеризуются надёжностью и простотой эксплуатации. А также доводчики со скользящим стержнем, принцип действия которых основан на работе кулачкового сердцеобразного вала.
Нередко их называют накладными, исходя из способа крепления.
На сегодняшний день самыми надёжными и менее громоздкими среди верхних доводчиков считаются именно устройства со скользящим стержнем, однако наиболее распространёнными всё же остаются те, в основе которых – механизм с зубчатым приводом.
- Напольные – это незаменимые дверные доводчики в тех помещениях, в которых особенно остро стоит вопрос дизайна двери. Их уникальность – в отсутствии рычагов, приводящих в движение ось, так как сама дверь устанавливается непосредственно на ней. Между тем, основным недостатком таких конструкций считается невозможность их эксплуатации с дверьми массой 300 кг. и выше.
- Скрытые, механизм которых также прячется в корпусе петли, в массиве дверного полотна или дверной коробке. Это доводчики разделяют по типу механизма. Они бывают со скользящим стержнем, как и верхние дверные доводчики, а также с петлёй доводчиком. В данном случае речь идёт о миниатюрном устройстве, которое прячется непосредственно в самой петле. Его преимущество – в отсутствии необходимости лишний раз сверлить дверное полотно для монтажа, а недостатки – в невозможности установки на массивную дверь и сложности самой установки, а также сравнительно небольшом сроке эксплуатации ввиду своей миниатюрности.
Самыми сложными в монтаже считаются напольные доводчики, так как они требуют наличия абсолютно ровного пола и точного расчёта траектории открывания двери. А самыми простыми – верхние. Они могут быть установлены практически на любой двери, кроме стеклянной. Для неё и были предусмотрены напольные устройства.
В случае неполного прилегания двери или низкой скорости срабатывания механизма возможна установка двух доводчиков одновременно. Установка дверных доводчиков на двери с шириной полотна более 1600 мм. нежелательна.
На что нужно обращать внимание при выборе
Таблица классности дверных доводчиков
- Классность.
Одним из основных свойств дверного доводчика считается усилие, которое он способен развивать при закрывании двери. Оно позволяет условно разделять доводчики на 7 классов. Выбор оптимального должен основываться на таких показателях, как вес двери и ширина дверного полотна. При этом на самые лёгкие и узкие двери (например, дверцы шкафа) должен устанавливаться доводчик 1 класса, а на самые тяжёлые и широкие – 7 класса. Если габариты и вес двери соответствуют разным классам, лучше отдавать предпочтение высшему, обеспечивая тем самым запас прочности и долговечности. Нежелательно устанавливать невероятно мощный доводчик на лёгкую дверь. Он будет создавать лишнюю нагрузку на петли, провоцируя их преждевременный износ и выход из строя. - Наличие дополнительных функций. У простых и бюджетных моделей они, как правило, отсутствуют. А более дорогие могут быть оснащены функцией тормоза открывания и закрывания, фиксации двери в открытом положении, возможности регулировки дохлопа и т.д.
- Способность работать при экстремальных температурах без дополнительных регулировок, например, ниже -45 и выше +70.
- Тип двери. На противопожарные двери можно монтировать лишь специальные устройства, в которых есть электрогидравлические или электромагнитные элементы.
- Рабочий ресурс и наличие защиты от неправильного использования. Первый определяется минимальным количеством циклов открывания и закрывания двери, которые устройство должно отрабатывать без ухудшения своих рабочих характеристик. Современный качественный дверной доводчик может отрабатывать 500 тыс. циклов и более. Нередко он может быть оснащен специальным клапаном, который обеспечивает защиту доводчика от неправильного использования.
Варианты установки
2 варианта установки доводчика
Простота установки и надёжность делают верхние накладные дверные доводчики наиболее популярными. Вне зависимости от типа их модели, они состоят из рычага, крепежей и схемы, которая выполняется в натуральную величину.
Последняя, как правило, и отображает рекомендации производителя по установке того или иного типа устройства.
Верхние доводчики могут устанавливаться снаружи и внутри помещения на металлическую, пластиковую и межкомнатную дверь, выполненную из массива или МДФ.
Процесс разметки и установки доводчика
При стандартной технологии установки накладного дверного доводчика необходимо:
- Выбрать место и определиться со способом его монтажа – снаружи или изнутри. Второй вариант всегда предпочтительней, так как позволяет защитить устройство от неблагоприятных погодных условий. Кроме того, имеет значение направление открывания двери. Если она открывается «на себя», корпус дверного доводчика устанавливается в верхней части дверного полотна со стороны петель, а если «от себя» — на дверную коробку. В свою очередь, к дверному полотну крепится рычаг.
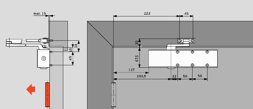
- Приложить монтажную схему в масштабе 1:1, которая идёт в комплекте с выбранным доводчиком, одновременно к косяку и дверному полотну и разметить места для будущих отверстий непосредственно сквозь бумагу.
- Просверлить отверстия нужного диаметра в коробке и дверном полотне.
Для двери из алюминиевого профиля или тонкостенного металла нужно использовать специальные крепежи – бонки, предназначенные для защиты материала от деформации в местах крепления элементов.
- Закрепить корпус доводчика и башмак рычага или реечную планку на дверном полотне или коробке с помощью саморезов. К корпусу устройства, посредством использования специального винта, который идёт в комплекте, прикрепить вторую часть рычага и соединить рычаг в колене.
Схемы нестандартных вариантов установки доводчика
В случае невозможности монтажа доводчика по стандартной технологии, например, если он должен осуществляться на калитку или необычную дверь, можно прибегнуть к помощи специальных монтажных планок или уголков, конструкция которых в каждом отдельном случае разрабатывается индивидуально.
- Монтажный уголок может использоваться в случае невозможности закрепления рычага к коробке. При этом сам рычаг крепится к уголку изнутри.
- Корпус доводчика может монтироваться на уголок, установленный за верхний откос коробки, а рычаг – на дверное полотно.
- На дверь может устанавливаться монтажная пластина, которая в данном случае должна выходить за её верхнюю кромку. Впоследствии на неё будет закреплен корпус доводчика. Рычаг можно будет прикрепить к дверной коробке.
- Корпус доводчика можно прикрепить к дверному полотну по стандартной технологии, а рычаг – к монтажной пластине, увеличив тем самым площадь дверного откоса.
- Монтажную подвесную пластину можно будет прикрепить к коробке, установив на неё корпус доводчика, а рычаг – к дверному полотну.
Регулировка
Процесс регулировки рычага с дохлопом и без
Процесс регулировки установленного дверного доводчика является чрезвычайно важным и включает в себя, как правило, регулирование силы и скорости закрытия двери. Осуществляется он в несколько этапов:
- Регулировка коленного рычага таким образом, чтобы он был закреплен под углом 90 градусов к поверхности дверного полотна в 2 режимах работы – с дохлопом и без него.
- Регулировка усилия закрывания двери. Она осуществляется посредством использования специальных регулировочных винтов, которые закручиваются до такой степени, при которой скорость закрывания двери становится оптимальной.
- Процесс регулировки доводчика в режиме «с дохлопом», который устанавливается на двери с кодовым замком или защёлкой, предусматривает чёткое регулирование усилия и скорости закрывания двери в 2-х зонах. Первая – начальная, диапазон которой колеблется в пределах 180–15 градусов. Вторая – конечная, которая приходится на оставшиеся 15–0 градусов. При этом скорость и усилия во второй зоне должны быть немного большими для того, чтобы дверь захлопнулась.
Осуществляя регулировку доводчика, крайне важно правильно производить выкручивание винтов.
Излишнее усердие в этом случае может стать причиной разгерметизации корпуса доводчика, в результате чего случится утечка масла, которая приведет к поломке устройства.
- Осуществление регулировки торможения двери при необходимости.
Видео о монтаже доводчика
[embedyt]http://www.youtube.com/watch?v=6wKSVbaVRq0[/embedyt]
Установить дверной доводчик своими руками вполне реально. Для этого достаточно прислушаться к советам профессионалов и проявить немного терпения и усердия. В конечном итоге они будут вознаграждены не только отличной теплоизоляцией и продлением срока эксплуатации самой двери, но и максимальным удобством при её использовании.
Как установить дверной доводчик на металлическую или деревянную дверь своими руками: Пошаговая инструкция +Видео
Многие, наверное, помнят различные хитроумные приспособления, которые использовались для полного и плотного закрытия дверей. Что только не придумывалось для этого!
Это и простые пружины, и целые системы противовесов с блоками и тросиками, и даже части старых покрышек и резиновые жгуты.
Сегодня проблема решается гораздо проще и эффективнее. Уже давно разработан и успешно используется специальный дверной доводчик.
[contents]
Устройство может иметь самые разные конструкции, они представлены на рынке множеством различных моделей. Однако купить такое приспособление недостаточно – его нужно еще смонтировать. Можно обратиться к услугам специалистов, а можно попробовать разобраться и сделать это самостоятельно.
Виды дверных доводчиков
Что представляет собой доводчик?
Это специальное приспособление, которое при открытии двери накапливает энергию для ее плавного и плотного закрытия. Своеобразным аккумулятором этой системы часто служит тугая сжатая пружина.
Прототипом такого доводчика являлась пружина, одним концом прикрепленная на двери, а другим – на ее коробке или рядом, на столбе. Отрегулировать такое устройство была практически невозможно, поэтому обычно дверь туго открывалась, и с грохотом захлопывалась.
Современные приспособления бесшумные, дверь закрывается с их помощью без рывков, очень плавно. Различают их по способу действия, по месту установки и по типу механизма. Скрытые механизмы встраивают обычно в дверное полотно, накладные монтируют на верхней части дверной коробки или непосредственно двери.
Существуют также механизмы нижней установки, которые чаще применяют для стеклянных дверей. Механизм в таком случае будет располагаться на двери, в точке ее нижней опоры.
Более популярны и просты в монтаже верхние накладные доводчики, с реечной или скользящей шиной. Такое устройство состоит из механизма в закрытом силуминовом корпусе, скользящего прутка, рейки, крепежного башмака и рычага. С помощью специальных регулировочных винтов настраивается скорость и сила закрывания двери. Нередко с доводчиком в комплекте поставляется монтажный шаблон для нанесения разметки, который упрощает процесс установки.
Внутренний рабочий механизм доводчика — это сжимающаяся при открывании двери пружина, кулачковый механизм или шестерня с зубчатой рейкой. Доводчики, которые приобретаются в комплекте с цифровым замком, используют чаще второй тип механизма, для которого характерно повышенное усилие в самом конце закрывания: это нужно для надежного защелкивания замка. Кулачковые механизмы обычно используют в реечных доводчиках, они обеспечивают более плавное закрывание.
Установка дверного доводчика
Доводчик выбирают по массе и ширине двери, ориентируясь по специальной таблице стандарта. Например, если дверь весит двадцать килограмм и имеет ширину 75 см, для достаточно механизма класса EN-1, при показателях 40 кг и 85 см — EN-2, далее аналогично. В паспорте прибора указан его класс.
Чтобы подобрать устройство для тяжелой двери, можно установить два доводчика. Таким образом, нагрузка распределится равномерно.
Варианты стандартной установки
Накладной доводчик может быть установлен снаружи или внутри помещения. В случае с межкомнатными дверями предпочтителен стандартный метод установки. Со стороны открытия на дверь монтируют корпус доводчика, а на дверную коробку – пруток с башмаком.
Если речь идет о двери, соединяющей с улицей, доводчик лучше установить изнутри, чтобы защитить от пыли, влаги и перепадов температур. К тому же, если зимой механизм замерзнет, дверь вообще нельзя будет открыть. Поэтому если есть такая возможность, то внутренняя установка всегда предпочтительнее.
Монтаж устройства будет зависеть от направления открывания двери, а также от его конструктивных особенностей. Согласно установленным правилам, внешние двери всегда открываются наружу. Значит, корпус доводчика придется устанавливать или на дверной косяк, или дополнительную планку (по параллельной схеме).
Последовательность работ
Изначально определяем место установки механизма и его тип.
Для этого необходимо оценить, куда открывается дверь:
- если «на себя», корпус приспособления крепят на самый верх двери со стороны петель;
- если же дверь открывается «от себя», т.е. в обратном направлении, то корпус монтируют на коробку, а рычаг крепят к дверному полотну.
Независимо от вида тяги, рычажной или канальной, накладные доводчики устанавливаются по единой технологии.
Монтажную схему в натуральном масштабе прикладывают к косяку и дверному полотну одновременно, сквозь бумагу отмечают точки расположения отверстий. Схема обычно идет вместе с доводчиком.
В коробке и полотне двери сверлят отверстия нужной величины. Для двери из алюминиевого профиля или тонкостенного металла полагается использовать специальные приспособления для крепления – бонки. В месте крепления фиксирующих элементов они не дают металлу деформироваться.
Крепят через готовые отверстия реечную планку (или башмак рычага) и непосредственно корпус приспособления с помощью саморезов.
К корпусу специальным винтом (он идет в комплекте) присоединяют ответную часть рычага: в колене рычаг соединяют.
Коленный рычаг должен быть отрегулирован: к плоскости полотна двери он должен быть расположен под прямым углом. Требуемое усилие для закрывания дверей регулируется помощью специальных винтов. Для этого дверь открывают, оценивают скорость, с которой она закрывается, и доводят ее до требуемой.
Если доводчик нужно отрегулировать в режиме с «дохлопом», который применяют на двери с кодовым замком или защелкой,
то усилие закрывания и его скорость регулируются в двух зонах. Это начальный диапазон, от 180 градусов до 15, и конечный диапазон, от 15 градусов до 0. В конечной зоне оба эти показателя (усилие и скорость) должны быть немного выше. Но лучше избегать весьма заметной разницы между скоростями.
Важно! Если при регулировке винтов переусердствовать, корпус механизма может разгерметизироваться, из него вытечет масло, и он станет непригодным.
Некоторые модели обладают дополнительными опциями, такими как торможение открытия. Они тоже регулируются, и доводятся до нужных величин.
Варианты нестандартной установки
Иногда ситуация складывается таким образом, что по стандартной схеме установить приспособление никак не представляется возможным. Тогда приходится прибегать к монтажу дополнительного уголка или специальных планок. В каждом конкретном случае их конструкцию приходится разрабатывать на месте, с учетом исходных данных.
Могут быть следующие варианты установки.
- Если рычаг невозможно прикрепить к коробке, монтируется специальный уголок, который в горизонтальной плоскости фиксируется саморезами. Изнутри к уголку крепят рычаг.
- На уголок, смонтированный на верхний откос коробки, устанавливают корпус устройства, а к двери крепят его рычаг.
- К коробке двери крепят подвесную монтажную пластину, на которую устанавливают доводчик, а к дверному полотну фиксируют рычаг.

- Сам механизм прикрепляется стандартным способом к двери. Рычаг крепится к монтажной пластине, которая увеличивает площадь откоса.
Используя один из перечисленных способов, вы сможете закрепить механическое приспособление на любых видах нестандартных калиток и дверей. При этом их функциональность и надежность ничуть не пострадают.
Советы по эксплуатации механизма
Можно ли продлить срок службы механизма?
Если строго соблюдать перечень этих простых требований, то механизм доводчика будет служить длительное время.
- Не рекомендуется при закрывании двери прикладывать усилия: сдерживать ее или, наоборот, торопить. Если дверь нужно заблокировать (когда через нее носят мебель, например), то для этого лучше отсоединить рычаг от доводчика.
- Не стоит вставлять распорки и кирпичи.
- Находящийся на уличной стороне двери доводчик следует беречь от промерзания масла, защищать от атмосферных осадков.
Установка доводчика на пластиковую дверь —
Основные способы монтажа доводчика, варианты правильной установки на пластиковую и металлическую дверь
В наше время установка доводчика на дверь, прежде всего входную, становится необходимостью, ведь он экономит тепло в доме, снижает уровень шума, оберегает людей и стены от ударов. Проще обратиться к услугам специалиста, но если есть необходимые инструменты и небольшой опыт монтажных работ, установить такое устройство нетрудно и своими руками. Важно тщательно подготовиться, изучить инструкцию, разобраться с конструктивными особенностями и аккуратно установить и отрегулировать механизм.
В продаже имеется большое число моделей, различающихся по месту установки, механизму, мощности и другим параметрам.
Наиболее популярны недорогие реечные устройства, которые крепятся на верхней части двери и возвращают ее в исходное положение с помощью рычагов. Кроме традиционных, торчащих из стены рычагов, имеются эстетичные, менее подверженные вандализму, но и более дорогие системы с параллельной или скользящей тягой.
Мощность устройства должна соответствовать весу и размеру дверного полотна. Доводчики делятся на 7 классов. Механизмы 1-го класса устанавливаются на двери шириной до 750 мм и массой до 20 кг. Самые мощные устройства 7-го класса рассчитаны на полотно шириной до 1600 мм и массой до 160 кг. На более широкое или более тяжелое полотно ставят два доводчика.
Необходимо обратить внимание на условия эксплуатации. Все механизмы доводчиков основаны на комбинации наполненных маслом емкостей и пружины, которая аккумулирует энергию открывания. Устройство закрывает дверь, когда пружина распрямляется, постепенно выталкивая масло через небольшие отверстия.
Если устройство установлено в неотапливаемом помещении, при низких температурах масло загустевает и закрывание замедляется. Доводчик, не рассчитанный на эксплуатацию в таких условиях, может в этом случае выйти из строя. В то же время есть устройства, у которых при низких температурах автоматически расширяются отверстия, восстанавливая нормальную скорость закрывания.
У многих доводчиков предусмотрены дополнительные опции, например торможение открытия, фиксация в положении «открыто», задержка на некоторое время перед началом закрывания и другие.
Более сложные и совершенные кулачковые механизмы могут крепиться в разных местах. Иногда их уже на заводе встраивают в полотно. Возможна также установка под порогом или внутри дверной коробки. Но такие работы более сложны и выполняются специалистами.
Установка доводчика на дверь: способы и виды монтажа
Готовясь к установке доводчика на дверь своими руками, проведите тщательную ревизию состояния дверной коробки, петель, запорных механизмов.
Дверное полотно не должно качаться, упираться в косяк, язычок защелки должен срабатывать без излишнего усилия. Качественная регулировка упростит установку и обеспечит надежную и продолжительную безаварийную работу устройства.
Схема установки доводчика зависит от конструкции механизма, дверной коробки и направления открывания. При открывании внутрь доводчик ставится на полотно, а рычаг крепится на коробку над ним. При открывании наружу устройство, наоборот, устанавливается на косяке, а рычаг — на полотне.
Доводчик не следует использовать в качестве ограничителя открывания. Для этого применяют специальные приспособления в виде упоров, которые устанавливают на пол или на стену.
Как установить
Для правильной установки доводчика на дверь к устройству прилагаются шаблоны, на которых отмечены места крепления самого механизма и рычага. В зависимости от крепления двери (правое или левое) и других особенностей, если они предусмотрены моделью, выберите соответствующий шаблон. Его следует приложить к полотну, развернув в соответствии с выбранным способом установки, и закрепить скотчем. Учтите, что винты регулировки, расположенные в торцевой части механизма, всегда должны быть повернуты в сторону петель.
Места крепления шурупов (4 для самого доводчика и 2 для кронштейна рычага) отмечаются по шаблону. Затем сверлом, диаметр которого указан в инструкции, просверливают отверстия под доводчик и кронштейн. После этого устанавливают механизм и рычаги. Жесткое колено рычага крепится к механизму на шлиц и затягивается гайкой. Чтобы она не раскручивалась в процессе эксплуатации, применяют стопорящую жидкость. В домашних условиях используют масляную краску.
Кронштейн с регулируемым коленом устанавливается отдельно. Длина этого колена изменяется заворачиванием винтовой части. После предварительной регулировки оба колена соединяются.
Варианты правильного монтажа
Иногда установить доводчик на дверь можно разными способами.
Например, треугольник, образуемый полотном и двумя коленами рычажной системы, влияет на силу прижимания к коробке. Чтобы закрывание двери происходило плавно, регулируемую часть укорачивают так, чтобы она составляла прямой угол с полотном. Для увеличения силы закрывания регулируемый рычаг удлиняют, в этом случае прямой угол образуется жестким коленом.
При установке механизма на деревянную дверь может потребоваться применение монтажных планок или уголков, не входящих в комплект, но выпускаемых для всех моделей. Если коробка глубокая, а открывание происходит наружу, устройство крепится на монтажный уголок, установленный на косяке таким образом, чтобы обе части механизма располагались на одном уровне относительно дверного полотна.
Если на коробке нет плоского участка для фиксации кронштейна или доводчика, их устанавливают на предварительно закрепленную монтажную планку. При установке механизма на дверь планка также позволит вынести его за край полотна в том случае, когда иное крепление невозможно, неудобно или неэстетично.
На пластиковую дверь
Установка дверного доводчика на пластик производится таким же образом. Отличие состоит в меньшем весе полотна. Возможно, придется искать компромисс между классами мощности доводчика, соответствующими размеру и массе. Принято считать, что следует выбирать наибольший из двух классов, однако излишне мощный доводчик способен разрушить пластик.
Если установка доводчика на пластиковую дверь выполнена правильно и аккуратно, он будет способствовать продлению ее эксплуатации.
На металлическую
При установке доводчика на металлическую дверь класс мощности выбирают в соответствии с ее массой. Чтобы при подготовке отверстий сверло не уходило с требуемого места, его предварительно намечают кернером. В зависимости от толщины металла для крепления используют саморезы по металлу или винты. Во втором случае перед тем как поставить устройство, придется нарезать резьбу метчиком.
Регулировка
Последний и не менее важный этап установки — регулировка. С помощью двух регулировочных винтов устанавливаются скорости движения двери:
- в начале закрывания;
- на последнем этапе.
Еще один винт позволяет увеличить усилие закрывания. Это важно сделать, если устройство устанавливается на входную дверь.
Кроме того, модели могут иметь различные опции, для которых также предусматриваются соответствующие регулировки.
Самостоятельная установка и регулировка дверного доводчика
Чтобы двери не оставались открытыми, раньше использовали банальную пружину, сегодня ставят дверной доводчик. В основе его конструкции тоже лежит пружина, но она более мощная, спрятана в металлический корпус и залита маслом — для «торможения» при закрывании. Установка доводчика на дверь — задача несложная. Самостоятельная установка займет минут 20-30. Вряд ли больше. Так что берем дрель и ставим своими руками.
Самая популярная модель
Классификация
Согласно мировым стандартам EN 1154 дверные доводчики классифицируются по усилию закрывания, которое они могут создавать. Делятся они на 7 классов, которые обозначаются EN1- EN7. При выборе класса обращают внимание на инерционность двери, то есть на ширину ее полотна и массу одновременно. Если разные параметры двери отвечают различным классам, ставят устройство более высокого класса.
| Класс доводчика для двери | Ширина дверного полотна, мм | Масса дверного полотна, кг |
|---|---|---|
| EN1 | до 750 мм | до 20 кг |
| EN2 | до 850 мм | до 40 кг |
| EN3 | до 950 мм | до 60 кг |
| EN4 | до 1100 мм | до 80 кг |
| EN5 | до 1250 мм | до 100 кг |
| EN6 | до 1400 мм | до 120 кг |
| EN7 | до 1600 мм | до 160 кг |
Например, ширина двери отвечает классу EN2, а масса — EN4.
Ставят 4-й класс, так как более слабое усилие с нагрузкой не справится.
Есть дверные доводчики, относящиеся к одному классу. В характеристиках тогда указывается класс с одной цифрой — EN5. Они имеют небольшой диапазон регулировки усилий — в пределах одного класса. Есть устройства, усилие на закрывание которых регулируются в пределах нескольких групп. В таком случае в маркировке ставят диапазон через дефис — EN2-3, например. Последние более удобны в эксплуатации — можно настроить скорость закрывания в зависимости от погоды. Но стоимость таких моделей выше.
Конструкции и устройство тяги
Основной элемент конструкции доводчик для двери — пружина, которая толкает рычаг. По способу передачи усилия от пружины к рычагу бывают устройства двух типов:
- С рычажной тягой. Такие модели имеют характерный вид — перпендикулярно к поверхности дверного полотна торчат рычаги. Те же доводчики называют еще с коленной или шарнирной тягой. Конструкция работает надежно, но торчащие рычаги непривлекательны, к тому же, при желании, их легко сломать. Есть еще один недостаток: по мере открывания двери требуется прикладывать все большее усилие. Для детей и пожилых людей это может стать проблемой.
С рычажной тягой
Со скользящим каналом
Оба эти типа состоят из двух частей: корпуса, в котором спрятана пружина и передающий усилие механизм и рычаг. Монтируются они вверху двери: одна часть на полотно, вторая — на коробку. Какая-куда, зависит от направления открывания. Если двери открываются «на себя», на дверное полотно устанавливается корпус с механизмом, при открывании «от себя» — крепится рычаг. На фото изображен доводчик рычажного тип, но аналогичные правила установки и для моделей со скользящим каналом.
Установка доводчика на дверь в зависимости от направления открывания
Как понимаете, они подходят не на все типы дверей — на стеклянные поставить их проблематично. Для них есть другая конструкция — напольная.
Корпус с механизмом монтируется в пол, сверху выступает лишь пластина-держатель. Аналогичный держатель устанавливается и вверху, но механизм там есть далеко не всегда, только для тяжелых дверных полотен.
Напольный доводчик для стеклянных дверей
Есть, кстати, напольные модели и для деревянных и металлических дверей. Они также имеют рычажную передачу или со скользящим каналом. Они меньше бросаются в глаза, но при таком расположении чаще повреждаются.
Напольный доводчик для стеклянных дверей
Где ставить
В основном доводчики ставят на внешние или входные двери, могут они устанавливаться на ворота или калитку. В случае с дверьми их располагают так, чтобы корпус был в помещении. Хоть есть и морозоустойчивые модели, предназначенные для эксплуатации холода, лучше чтобы корпус был защищен от воздействия погодных условий. Также такое расположение гарантирует большую сохранность.
Установка доводчика на дверь: инструкция с фото
Для монтажа доводчика на двери необходимы только дрель, линейка, карандаш и отвертка. Сверло обычно требуется «3» (тройка), но надо смотреть на диаметр крепежа, который обычно идет в комплекте.
Что необходимо для монтажа дверного доводчика
Большая часть производителей, для облегчения самостоятельной установки доводчика на двери, комплектует изделия установочными шаблонами. На этих шаблонах схематически изображены части доводчика в полную величину. Также на них нанесены монтажные отверстия для каждого элемента. В моделях, которые могут создавать усилие на открывание разного класса, отверстия прорисовываются разными цветами, дополнительно они подписываются — рядом ставится класс доводчика.
Пример шаблона для установки дверного доводчика
Шаблон напечатан с обоих сторон листа. На одно стороне — для открывания дверей «на себя» — со стороны петель (на фото выше), на другой — «от себя».
Установка шаблона
На шаблоне имеется две перпендикулярные красные полосы.
Горизонтальную совмещаем с верхним краем дверного полотна, вертикальную — с линией оси петель.
С верхним краем дверного полотна все понятно, а вот чтобы при монтаже не ошибиться, линию оси петель необходимо прорисовать. Если устанавливается доводчик со стороны петель, проблем нет — при помощи длинной линейки и карандаша переносите линию середины петель вверх. Если монтаж будет осуществляться с другой стороны, замеряете расстояние от края полотна до середины петли. Отмечаете это расстояние с другой стороны и рисуете линию.
Отверстия под доводчик
На шаблоне находим отметки под отверстия согласно выбранному классу. При помощи сверла или шила переносим их на дверное полотно и на раму.
Переносим отметки под отверстия на полотно и раму
Обычно в комплекте идут два типа крепежа: для металла (металлопластика) и древесины. Выбираем сверло подходящего размера и дрелью сверлим отверстия в обозначенных местах.
Дверные доводчики комплектуются двумя типами крепежа — для металлических и деревянных дверей
По отметкам сверлим отверстия
Далее собственно и начинается установка доводчика на дверь. Обратите внимание, что для монтажа необходимо чтобы корпус и рычаги были разъединены. Если они собраны, их разделяют (откручивается шайба, вынимается винт, соединяющий рычаги и корпус).
Монтаж
Прикладываем части к проделанным отверстиям, устанавливаем крепеж. На схеме находим тот класс усилия на открывание, который нам необходим (в данном случае EN2) и устанавливаем части так, как показано на рисунке.
Схема установки доводчика на двери
Для открывания «на себя» корпус ставим на дверное полотно, на коробку устанавливаем тягу.
Теперь к корпусу надо подсоединить рычаг тяги. В нижней части корпуса имеется специальный выступ. Надеваем на него рычаг, затягиваем винтом.
Устанавливаем рычаг тяги
Теперь осталось соединить рычаг с тягой.
Есть два варианта.
Соединить рычаг с тягой
Само соединение рычага с тягой происходит очень просто: совмещаются две части, немного придавливаются пальцами. С легким щелчком они фиксируются. Весь фокус в том, как расположить их относительно двери. От этого зависит темп движения дверного полотна на завершающей стадии закрывания. Положение может изменяется благодаря тому, что тяга состоит из двух частей и может регулироваться по длине — одна из частей тяги — длинный штифт с резьбой. Вращением штифта и укорачивают или удлиняют ее.
Если необходима просто плавная доводка, тягу ставят так, чтобы она была перпендикулярна дверному полотну. Для этого немного уменьшают ее размеры (на фото слева).
Расположение рычага и тяги для выставления финишного усилия
Если в двери установлена защелка, необходимо солидное усилие, чтобы преодолеть ее сопротивление. Для такого варианта перпендикулярно двери ставят плечо (тягу раскручивают, делая длиннее).
Выставив части соответствующим образом, их совмещают и соединяют. Собственно все, установка доводчика на дверь закончена. И с ней можно справится своими руками, причем без особого труда. Остался финишный этап — настройка скорости закрывания. Для этого надо разобраться в регулировках дверных доводчиков.
Как поставить на калитку
Для установки на калитку подходят морозоустойчивые модели, которые могут эксплуатироваться снаружи. Но не все калитки имеют верхнюю перекладину. Зато боковые стойки есть у всех. В этом случае тягу крепят к боковой стойке, развернув крепежную пластину вдоль стойки.
Установка доводчика на калитку без верхней перекладины
Но гидравлические устройства (о них шла речь в этой статье) не очень хорошо чувствуют себя на морозе. Масло, которое заливается в корпус и служит для «торможения» дверного полотна, становится более вязким, калитка закрывается медленнее. С этой точки зрения лучше для калитки выбрать пневматическую модель (о выборе и установке читаем тут).
Как установить на металлическую дверь
Монтаж доводчика на металлические двери отличается только типом используемого крепежа и размером сверла. Так как полотно обычно более тяжелое, выбираются мощные модели не ниже 5 класса (смотреть надо по таблице). Соответственно, на монтажном шаблоне понадобится разметка для другого класса.
Доводчик на входную металлическую дверь ставиться аналогично
Также может понадобиться более мощная дрель, но это все — детали. В остальном же, ставить доводчик на металлические двери, надо точно также, как и деревянные или металлопластиковые.
Регулировка доводчика для двери
Доводчики, которые устанавливают на двери имеют разную конструкцию и регулировочные винты располагаются в разных местах. Точно все указано в паспорте или инструкции по установке. Но, в общем и целом, методика одна:
- вращая винт по часовой стрелке скорость/сила увеличивается;
- поворачивая против часовой стрелки — тормозим/уменьшаем силу.
При регулировке доводчика, не крутите винты сразу на несколько оборотов. Часто достаточно всего четверти оборота, может, чуть больше. Сбив баланс слишком закрутив или выкрутив винты, настроить все снова очень сложно. Можно даже сломать устройство или добиться того, что изнутри потечет масло.
Регулировки скорости открывания двери и «прихлопывания» находятся на корпусе. Чаще всего они или на лицевой части под защитной крышкой или на боковой его поверхности.
Отодвигаем крышку, находим винты
В округлых или многогранных корпусах регулировки находятся сбоку на корпусе
Как установить доводчик на пластиковую дверь своими руками
В настоящее время доводчики для пластиковых дверей пользуются популярностью. Они нашли широкое применение на участках с большой проходимостью посетителей. Главная функция доводчика – плавное закрытие дверей и увеличение за счет этого, срока службы фурнитуры дверей.
Плюс конструкции в том, что она обеспечивает бесшумное закрытие двери.
Можно установить и обычную пружину, но это не обезопасит вас от удара по спине в момент ее закрытия, если вы вдруг потеряете бдительность.
Монтаж доводчика не составляет особого труда. Основное требование – соблюдение рекомендаций производителя, правильно собрать конструкцию, соблюдая все этапы.
Виды доводчиков и способы их установки
Рассмотрим все виды дверных доводчиков:
- Стандартный доводчик. Характеризуется верхней установкой. Существует два метода такой установки. В первом – монтируем доводчик на дверную коробку, к полотну крепим рычаг. Во втором – доводчик крепим на полотно, рычаг к дверной коробке. Доводчик крепится по направлению открытия двери:
- от себя – на коробку;
- на себя – на дверное полотно.
Третий вариант заключается в установке доводчика на дверное полотно, а рычаг монтируем специальной пластиной к коробке.
- Напольный доводчик. Используется для установки дверей, в которых петли не предусмотрены. Монтаж этого вида доводчика осуществляется в самом полу, в приготовленном заранее углублении. По такому же принципу производится крепеж верхней части двери. Сравниваем их по уровню, несовпадение сулит быструю поломку.
- Встраиваемые доводчики со скрытой установкой. Представлены петлями-доводчиками, монтируются по принципу обычных навесов, скрытые доводчики верхнего монтажа, нуждаются во врезке в дверное полотно. Это не составит особого труда, устанавливать механизм нужно в два паза: в верхней и нижней части дверной коробки. Важным моментом будет размер ширины зазора, между дверной коробкой и полотном.
Прежде чем рассмотреть, как установить доводчик на пластиковую дверь, мы разобрались с их видами. Самым распространенным является верхний доводчик, его и будем разбирать в дальнейшем.
Пошаговая инструкция установки доводчика на пластиковую дверь
Обычно пластиковая дверь открывается на себя. Разобравшись в методике, можно не только монтировать доводчик, но и поставить подобное устройство на любую другую дверь, индивидуальным способом. Отличия в установке совсем незначительные. Распишем процесс установки поэтапно:
- Рассмотрим с комплектом приобретенного дверного доводчика. В составе идет доводчик, рычаг к нему, крепеж, шаблон, который служит помощником начинающему мастеру.
- Размещаем по схеме шаблон на закрытой двери, фиксируем с помощью скотча. Просверливаем отверстия по шаблону. Сняв его, приступаем к установке.
- Прикручиваем рычаг к коробке, используя саморезы, регулировать ничего не нужно.
- С помощью винта соединяем рычаг и доводчик. Нужно проследить, чтобы винты, которые регулируют доводчик, были расположены в одном направлении – в сторону дверных навесов.
- На следующем этапе выполняется регулировка тяги рычага доводчика. Это производится таким образом, чтобы отверстия на доводчике совпали с уровнем отверстий на двери, при закрытом положении двери он должен располагаться перпендикулярно к дверной коробке.
- Если все условия соблюдены, прикручиваем механизм и проверяем его работу. Если возникают какие-либо вопросы (туго открывающаяся дверь, сильно хлопает, когда закрывается), то проблемы устраняются путем проведения элементарных манипуляций.
Выполнив правильно все пункты инструкции пошагово, вопрос «Как установить доводчик на пластиковую дверь своими руками?» отпадет сам по себе. Только если с приобретенным комплектом не будет шаблона, следует выполнять монтаж, придерживаясь чертежа, который прилагается к паспорту устройства, все размеры прилагаются.
Выполняем регулировку доводчика своими руками
Установив доводчик, нужно освоить азы регулировки устройства. При установке конструкции нельзя обойти стороной два винта, регулирующие работу устройства:
- первый предназначен для регулировки общей скорости дверей, при их закрывании;
- второй – направлен на плотность прилегания двери к коробке.
Во избежание большого удара двери о коробку, следует подкрутить второй винт. Это производится плавными движениями, через каждые пару оборотов, необходимо проверять степень готовности. Замедляем движение двери, путем подкрутки винта по часовой стрелке, ускоряем – против часовой стрелки. Закрывание отлаживаем по такой же схеме.
Отдельные виды доводчиков содержат большое количество винтов для регулировки. Это бывает в тех случаях, когда имеют место дополнительные функции. Их бывает всего четыре: два дополнительных винта выполняют регулировку тормоза при открывании, ограничивает слишком резкое открытие дверей, фиксация двери в открытом виде, открывая на уровне определенного угла, дверь не закрывается, что очень удобно в нужном случае.
Когда все регулировки закончены, режим работы отлажен, можно пользоваться удачно установленным механизмом доводчика.
В дальнейшем необходимо просматривать исправность механизма и осуществлять периодически смазку элементов шарниров для бесперебойной работы устройства.
Установка доводчика на дверь: 3 способа на все случаи жизни
1. ПЕРПЕНДИКУЛЯРНЫЙ РЫЧАГ (СТАНДАРТНАЯ УСТАНОВКА)
Классическая схема монтажа доводчика. Корпус устройства закрепляется на дверном полотне, а подошва рычага – на верхнем брусе дверной коробки. Обратите внимание: доводчик крепится «из коридора», то есть с наружной стороны двери. При этом дверь должна открываться на себя, а когда она закрыта, рычаг располагается под углом
Этот способ рекомендован для межкомнатных дверей при условии, что позволяют габариты полотна и вас не смущает выпирающий рычаг.
Плюсы:
+ 100% сохранение номинальной мощности. При такой фиксации дверной доводчик будет работать на 100% от своих возможностей. Это важно, если масса двери близка к предельной нагрузке доводчика. Угол открывания будет максимально возможным для вашей модели.
Минусы:
— Выступающий рычаг. Это портит интерьер и особенно бросается в глаза в узких коридорах. Кроме того, конструкция открыта для вандализма: хулиган может захотеть испытать рычаг на прочность, обхватив ее руками и повиснув. Поэтому в школах, больницах и других общественных помещениях доводчик лучше устанавливать методом параллельного рычага.
— Не для всех полотен. Стандартная установка не подходит, если у вас стеклянные или тонкие двери (алюминиевые, облегченные «финские» и др.). Также иногда может помешать верхняя обвязка полотна (если есть).
2. УСТАНОВКА НА КОСЯК ДВЕРИ (ВЕРХНЯЯ УСТАНОВКА)
Зеркальный предыдущему способ монтажа. При нем доводчик с рычажной чагой фиксируют изнутри помещения (петли не видны, дверь открывается от себя). Корпус закрепляют на горизонтальной поверхности дверного косяка (притолоке), подошву рычага – вверху полотна.
Этот способ рекомендован для входных групп и дверей, а также внутренних дверей (если невозможна установка доводчика первым способом). Но, опять же, нужно смириться с выступающим рычагом.
Плюсы:
+ Мощность, близкая к номинальной. Потери эффективности в сравнении со стандартным способом монтажа – не более 5-10%. Угол открывания полотна почти такой же, что и при фиксации первым способом.
+ Подходит для входных дверей. Стандартный способ подразумевает крепление доводчика с улицы, что не рекомендовано даже в теплых регионах России и даже при условии, что доводчик морозостойкий. При установке же на косяк доводчик остается изнутри и всегда пребывает в сухости и тепле.
+ Подходит для тонких и/или легких дверей. Поскольку основную нагрузку несет не полотно, а верхний брус дверной коробки. Исключение – стеклянные полотна, с ними лучше установить напольный доводчик.
Минусы:
— Выступающий рычаг. Он все так же портит интерьер, только уже не коридора, а самого помещения. Его по-прежнему легко сломать, если повиснуть всем телом.
— Требования к проему. Притолока и/или потолок должны быть достаточной высоты, чтобы закрепить на косяке корпус доводчика.
3. УСТАНОВКА С ПОМОЩЬЮ КРОНШТЕЙНА ПАРАЛЛЕЛЬНОГО РЫЧАГА
Этот способ подразумевает крепеж доводчика изнутри помещения (дверь открывается от себя, петли не видны). Корпус крепят к полотну, а подошву рычага – через кронштейн (монтажный уголок) под верхний брус коробки. Когда дверь закрывается, рычаг из двух прутков складывается и «ложится» почти параллельно полотну.
Такой монтаж дверного доводчика рекомендован, если нужно сделать устройство незаметным и недоступным для рук хулигана. В первую очередь это актуально для школ, больниц, торговых центров и других общественных помещений.
Плюсы:
+ Аккуратный вид. В сложенном состоянии рычаг не бросается в глаза и не представляет большого интереса для хулигана.
+ Больше возможностей для монтажа. К варианту «параллельный рычаг» прибегают, если невозможно закрепить доводчик иначе: мешает боковая стена (при стандартной фиксации) или потолок (при фиксации на косяк).
+ Подходит для квартир с двумя входными дверьми. В некоторых квартирах стоят две входные двери: основная металлическая и вторая деревянная (для теплоизоляции). Способ «параллельный рычаг» позволяет установить доводчик на основную дверь. Главное, чтобы радиус поворота рычага был меньше глубины проема между дверьми.
Установка доводчика на пластиковую дверь своими руками
В повседневной спешке не всегда есть возможность придержать за собой дверь, чаще всего человек либо торопится, либо его руки заняты другими предметами. В результате дверь громко хлопает, а со временем такое обращение приводит к поломке.
Именно поэтому в офисных помещениях и в жилых домах в том числе хозяева стремятся установить доводчики. Чаще всего встречаются верхние наружные доводчики, хотя существуют напольные варианты.
Как устанавливаются доводчики?
Процесс самостоятельного монтажа не вызывает трудностей, особенно если ознакомиться с инструкцией и видео материалами.
Основные особенности установки.
- Угол открытия двери составляет 90, 120 и 180 градусов и зависит от установки доводчика.
- Корпус прибора можно установить на дверной короб, а ножка крепится на полотно двери.
- Корпус прибора монтируется к дверному полотну, а ножка устанавливается в короб.
Наиболее популярным является вариант внутреннего монтажа. Считается, что рычаг в меньшей степени изнашивается. Поэтому такой способ крепления популярен в офисах, где доводчик на двери чаще всего подвергается внешним воздействиям.
Область применения
Доводчик устанавливается на межкомнатные и входные двери. Как правило, материал двери бывает различным. Для деревянного варианта потребуется только просверлить отверстия, чтобы закрепить механизм. Установка на металлическую дверь более трудоемкая – необходимо выполнить резьбу для шурупов, и обойдётся дороже.
Область применения доводчиков достаточно широкая. Принято устанавливать их на дверцы шкафа. Так пользоваться мебелью будет намного комфортнее.
Необходимые материалы
Для оптимизации процесса рекомендуется подготовить все инструменты заранее:
- Строительный уровень.
- Карандаш и линейка для разметки.
- Отвёртка, шуруповерт.
- Шестигранник.
- Сверло и дрель.
Если внимательно изучить теорию, на практике установка не займет много времени, а механизм будет надёжно и крепко зафиксирован. Основные этапы монтажа.
Первый этап: подготовка
В приобретённом наборе имеется шаблон, который необходимо вырезать. С помощью скотча зафиксируйте его на месте установки – это поможет правильно сделать разметку. Переведите точки отверстий и уберите шаблон.
Теперь можно проделать отверстия для саморезов.
Второй этап: крепление «тела»
После подготовки отверстий, можно крепить корпус и рычаг. Для стандартных изделий понадобится 4 шурупа. Обратите внимание, что винты для регулирования должны направляться внутрь (смотреть на петли) двери. Рычаг устанавливается на поворотную ось доводчика, закрепляется винтом.
Башмак необходимо крепить к поверхности коробки (дверному косяку), отходящий от него пруток регулируют по длине, задают положение перпендикулярно двери и соединяют винтом с главным основным рычагом.
Третий этап: завершение
Все винты ещё раз проверяются, работа механизма тоже. В комплекте есть декоративный колпачок, который необходимо прикрепить для эстетического вида. Таким образом, процесс установки завершен.
Как установить напольный доводчик?
Напольный доводчик встречается реже и процесс его установки более сложный. Основное отличие заключается в том, что тело монтируется в пол. Если вы производите ремонт в помещении, подумайте заранее о разновидности, так как этап ремонта наиболее подходящее время для монтажа.
Комплектация напольного механизма включает в себя две части гарнитура: верхнюю и нижнюю. Зачастую нижняя часть не выступает над уровнем пола, она монтируется в него и только одевается на хвостик механизма. Удобный вариант для стеклянных дверей офиса.
Верхний гарнитур в свою очередь делится на две части: одна крепится к коробке, вторая – к самой двери. С помощью регулировочного болта можно настроить все параметры. Во время монтажа двери болт закручивают, штифт прячут, а дверь устанавливают на нужное место. Далее процесс двигается следующим образом: болт выкручивают, а штифт попадает в нужное отверстие, так как полностью выходит наружу. Отверстие расположено в дверном гарнитуре, и теперь все детали надёжно зафиксированы.
Установка скрытых доводчиков
Для тех, кто ценит эстетику и не приемлет наличие разных механизмов в помещении на виду, существует вариант скрытого доводчика. Его устанавливают сверху в дверной коробке. При самостоятельном монтаже необходимо подготовить стамеску, так как придётся вырезать отверстие в торцевой части двери.
Монтировать скрытый доводчик можно до того, как дверь установят, либо на уже установленную дверь. Сам процесс не вызовет трудностей, но ознакомиться с инструкцией необходимо: в ней прилагаются все размеры. Как правило, основной механизм монтируется в торец, а рычаг и нога крепятся к полотну двери.
Установить доводчик достаточно просто. Можно практиковать различные виды устройства и способы его монтажа. Главное – чётко следовать инструкции, внимательно рассчитывать размеры и надёжно фиксировать все элементы.
Регулировка усилия закрывания дверного доводчика своими руками: видео, инструкция
Дверной доводчик – устройство, действие которого направлено на тихое закрытие двери. Функционирует механизм так: к двери прикладывается физическая сила, при этом возникает импульс, который передается на устройство и действует так, что дверь открывается и закрывается без резких движений и шума. При желании создать дверной доводчик своими руками потребуются детали, назначение которых не связано с принципом действия двери.
Так выглядит дверной доводчик
Вернуться к оглавлению
Содержание материала
Типы доводчиков
Дверные доводчики различны. Все отличаются по различным габаритам и цветам, а также устройством механизма.
В зависимости от места применения установка для дверей бывает:
- мебельной – используются доводчики в купе-двери в шкафу, выдвижных элементах мебели, на кухне и так далее;
- дверной доводчик – фиксируется на основные, межкомнатные двери, а также в двери купе в кладовые и гардеробные.
Существующие варианты дверных доводчиков
Мебельные варианты доводчика встраиваются в конструкцию при её создании. А вот дверные доводчики можно установить самому, создав устройство своими руками.
Конфигурация доводчиков по устройству:
- устройство с приводом и зубцами;
- применение кулачкового вала.
Дверные доводчики устанавливаются вверху, внизу, а также монтируются в дверные элементы.
Верхний доводчик
Это типовой вид механизма. Есть варианты установки доводчиков вверху:
- Рычаг устройства прикреплен к самой двери, а механизм зафиксирован на недвижимой коробке.
- Рычаг доводчика фиксируется на стене или верхней части дверной коробки, а механизм на самой двери.
Установка доводчика выбирается, отталкиваясь от функций открытия двери.
Если двери открываются от входящего человека, тогда доводчик ставится первым способом, в противном случае применим 2 метод.
Есть еще 1 вариант установки механизма, он применим, когда двери открываются во все стороны.
Пример доводчика для двери открывающейся в обе стороны
Параллельная установка проводится следующим образом – механизм крепится на дверь, рычаг монтируется на основание дверной коробки при использовании специальной пластины.
Нижний доводчик
Этот дверной механизм применяется, если нет дверной коробки. То есть, если присутствуют петли на дверях, нижний механизм не применяется, поскольку доводчик в этом случае играет роль петли.
Нижний доводчик устанавливается в отверстие в полу, которое заранее следует изготовить для этих целей.
Вариант конструкции нижнего доводчика
Этот механизм имеет верхнюю часть, которая устанавливается в потолок. Без этой составляющей нижний доводчик будет работать короткий промежуток времени.
Скрытые дверные доводчики
Механизмы полностью скрыты в дверном полотне. Есть 2 вида:
- Петля-доводчик – по своей функциональности служит дверной петлей.
- Скрытый верхний доводчик, врезаемый в двери.
Конструкция скрытого дверного доводчика
Вернуться к оглавлению
Правильный выбор дверного доводчика
Прежде чем выбрать дверной механизм, требуется ознакомиться с его функциями. Принцип работы дверного доводчика заключается в тихом, плавном закрытии двери. Это отражается на таких факторах:
- Экономия тепла в помещении.
- Отсутствует шум при движении двери.
- Шумоизоляция. При плотно прилегающей двери к коробке нет посторонних звуков с улицы или другой комнаты.
Принцип работы дверного доводчика
Для правильной и продолжительной работы дверного механизма требуется сделать верный выбор доводчика.
Для правильного функционирования дверного доводчика, а также его длительной эксплуатации по назначению, существует несколько правил, руководствуясь которыми можно избежать ошибок при производстве механизма или его покупке.
- Значение имеет ширина двери. При широких дверных полотнах требуется устанавливать 2 механизма.
- Вес двери. При монтированных тяжелых дверных полотнах требуется использовать нижние доводчики, поскольку верхние устройства не будут работать в полную мощь и есть вариант быстрого выхода из строя. Данный вид доводчика является самым надежным, если дверь мощная и имеет большой вес (300 кг).
- Внешний вид двери. Доводчики имеют различные цветовые оттенки, а также формы. Это позволяет выбрать доводчик под внешний вид дверного проема и полотна.
Схема работы дверного доводчика
В зависимости от внешнего вида, функционирования, а также типа – доводчики имеют различную ценовую политику.
Вернуться к оглавлению
Установка дверного доводчика своими руками
Дверной доводчик можно произвести и установить, отрегулировать из разных средств. Как установить верхний доводчик?
Подробная инструкция по установке дверного доводчика
Пошаговая инструкция
- Требуется приобрести набор доводчика. В него входят: само приспособление для двери, рычаг, элементы крепежей, макет для установки.
- Далее, нужно чтобы дверь была закрыта. Фиксируется макет так, как указано в схеме.
Схема установки дверных доводчиков
- Насквозь, через макет надо дрелью сделать отверстия в местах, указанных на макете.
- После этого макет убирается с двери.
Чертёж для крепления доводчика
- К основанию (дверная коробка) необходимо прикрепить рычаг. Регулировку при этом делать не надо.
- Механизм доводчика надо одеть на рычаг и зафиксировать винтами.
Крепление винтами механизма доводчика
- Теперь надо отрегулировать тягу рычага до тех пор, пока отверстия не совпадут.
- Рычаг должен стоять под углом 90 градусов к дверной коробке.
- Теперь можно прикрутить корпус устройства и сделать проверку работы механизма.
Если в наборе отсутствует макет, тогда в техническом паспорте указаны точные размеры и замеры, по которым можно монтировать дверной доводчик.
Вернуться к оглавлению
Регулировка дверного доводчика
После монтажа доводчика в дверь нужна проверка. В случае если дверь туго открывается, закрывается или хлопает – можно отрегулировать дверной доводчик своими руками.
На устройстве доводчика есть 2 винта. Они берут на себя основные функции по работе механизма. 1 винт – скорость при закрывании двери, 2 – регулировка плотности закрывания двери и прилегания её к раме. Если дверь хлопает, нужно отрегулировать второй винт. Его надо медленно покрутить (немного – пол-оборота), после проверить закрытие двери. Так нужно делать, пока дверь не перестанет хлопать.
Варианты регулировки дверного доводчика
Для закрытия двери немного медленней, требуется винт прокручивать по часовой стрелке, чтобы была скорость – против часовой стрелки.
Доводчик, где есть больше 2 винтов
Существуют дверные доводчики с винтами регулировки больше 2 штук. В таком случае в техническом паспорте указывается предназначение каждого винта. Кроме стандартных винтов регулировки двери (скорость и хлопок) есть еще винты, отвечающие за другие функции механизма.
Один винт служит тормозом двери при открытии. То есть открыть двери резким движением не получиться. Второй винт оставляет двери открытыми. То есть, если дверь широко распахнуть, тогда она останется в этом положении и не закроется.
Чертеж и схема для регулировки дверного доводчика
Регулировка винтов проводится также медленно и на пол-оборота.
Вернуться к оглавлению
Пружинный дверной доводчик
Использование пружины – простой вариант доводчика. Здесь есть некоторые факторы, которые будут влиять на мягкость открытия, закрытия двери. Это: длина пружины, жесткость. Пружина должна иметь эффект замедления при движении, спокойно притягивать дверь.
Схема устройства пружинного доводчика
Фиксируется пружина возле петель. Один конец требуется закрепить на коробке, а другой на полотне.
Вариант конструкции пружинного доводчика
Доводчик, сделанный из пружины своими руками, работает по принципу – при открытии двери она не дает сделать резких движений, а при закрытии пружина притягивает дверь к своему основанию.
В видео показан принцип работы пружинного дверного доводчика.
Вернуться к оглавлению
Магнитный дверной доводчик
Для магнитного доводчика нужно собрать некоторые материалы и инструменты:
Так выглядит магнитный доводчик
- шуруповерт или отвертка;
- саморезы по металлу или дереву. В зависимости от материала дверного полотна и рамы;
- клей;
- стамеска для дерева;
- пластина из тонкого, но прочного металла;
- магнит.
Для плотного закрытия двери детали требуется ставить заподлицо. До начала монтажа требуется сделать разметку, в каких местах будут находиться элементы доводчика. Магнит требуется прикрепить к дверному проему, а металлическое полотно к двери.
Пример смонтированного магнитного доводчика на двери
При закрытой двери магнит должен быть на пластине. Стамеской следует сделать выемки в дереве, на такой глубине, чтобы элементы крепления прятались. Магнит монтируется на клей, пластина крепится с помощью шурупов. После высыхания клея, можно проверить функциональность конструкции.
Как установить доводчик на дверь
Возможно, не так часто приходится сталкиваться с необходимостью установки доводчика на дверь. Тем не менее, если возникла такая ситуация, стоит предварительно ознакомиться с некоторыми рекомендациями, чтобы последующая эксплуатация механизма не вызывала нареканий. В данной статье мы рассмотрим, как установить доводчик на дверь своими руками.
Правила установки
Виды доводчиков
В процессе монтажа соблюдайте ряд правил:
- Система крепежа для дверного доводчика и штанги должна быть максимально прочной. Это необходимо, поскольку на доводчик оказывается постоянное вибрационное давление при воздействии на него усилий.
- Доводчик двери должен устанавливаться в точном соответствии со схемой и соблюдении геометрии. Какие-либо отклонения не допустимы.
- Как только доводчик установлен, следует проверить точность монтажа. Движению двери не должны препятствовать перекосы, а петли не должны заедать. Если в закрытом виде дверь отходит назад, это необходимо исправить. Это бывает от того, что петли перекосились в ходе установки, либо дверь имеет большую массу. При неукоснительном исполнении всех этих правил, эксплуатационный срок механизма будет максимально долгим. В противном случае вам потребуется выполнять периодический ремонт из-за чрезмерной нагрузки на дверной доводчик.
- Немаловажное значение имеет и выбранное усилие, так как его регулирование осуществляется на доводчике двери. При небольшой массе межкомнатных дверей для обеспечения работоспособности механизма вполне хватит небольшого усилия. Соответственно, чем больше вес дверного полотна, тем больше усилие.
Процесс установки
Элементы доводчика
Для того чтобы правильно осуществить монтаж доводчика двери, необходимо строго следовать инструкции, прилагаемой к нему в комплекте. При неправильном выполнении установки, спустя немного времени вам придется выполнить ремонт или замену данного устройства. Итак, работа по монтажу требует выполнения следующих шагов:
- Разметка отверстий, необходимых для фиксации штанги и доводчика, согласно шаблону.
- В местах разметки следует просверлить отверстия для крепежа.
- Установка и регулировка дверного доводчика и штанги.
В принципе эти действия не должны вызвать никаких трудностей, но необходимо разобраться более подробно в каждом из них.
Виды монтажа дверного доводчика
Установка скрытого доводчика
- Устройство механизма на дверь с верхним расположением. То есть осуществляется крепеж штанги к поверхности дверной коробки, а доводчик подсоединяется к двери через штангу. Это способ отличается тем, что доводчик монтируется с наружной стороны, а открытие двери происходит вовнутрь.
- Классическая установка доводчика на дверь выполняется с использованием четырех винтов (саморезов), которыми фиксируется штанга на верхнюю часть двери, в то время как доводчик крепится на дверную коробку. Выбрав этот способ монтажа необходимо строго соблюдать схематические указания. Однако учтите, что каждая модель имеет свои индивидуальные замеры.
- Далее произведите регулировку длины штанги в соответствии с требуемым усилием двери. Как правило, необходимый вариант указан в прилагаемой инструкции. Различают две разновидности штанги:
- Телескопическая штанга, имеющая два подвижных элемента, один из которых выходит из первого и фиксируется крепежными винтами;
- Винтовая – регулировка происходит при изменении размера выкрученного элемента. Эта разновидность является более прочной и отличается длительным эксплуатационным сроком. То же самое нельзя сказать о телескопической штанге, так как она может поменять положение в случае ослабления винтов.
- Бывают случаи, когда проблемы с монтажом возникают из-за слишком низкого дверного проема, которые делает затруднительным даже установку доводчика. Такая ситуация решается с помощью установки доводчика на боковую сторону дверного полотна путем увеличения длины крепежной системы штанги.
Порядок выполнения установочных работ
Напольный доводчик
Обратите внимание!
Как правило, дверные доводчики, фиксируемые на полу, предусматриваются на стадии проекта здания.
Чтобы установка доводчика была выполнена в соответствии со всеми требованиями, первоначально вам необходимо сделать специальную нишу в поверхности пола прямо под дверью. Далее установите направляющий механизм, таким образом, чтобы ось дверной петли совпала с осью штока.
Видео
Если вы выбрали скрытую установку, то монтаж будет выполняться прямо в поверхность двери. Для этого дверь должна иметь достаточную ширину для вмещения механизма доводчика двери. Данный способ монтажа подходит при использовании на массивных и тяжелых дверях.
Стоимость установки дверного доводчика
Устройство доводчика
Если у вас есть необходимый опыт или минимальные навыки в процессах такого рода, вы можете выполнить монтаж доводчика двери самостоятельно. Если же у вас нет опыта, либо времени можно обратиться за помощью к специалистам. Стоимость работы определяется ее сложностью и способом установки. Если вами выбран скрытый или напольный способ установки доводчика, то готовьтесь тому, что и заплатить придется гораздо больше, чем в случае с классическим вариантом. Поэтому отправляясь в магазин за устройством, решите, сколько вы готовы отдать за его установку.
Установка доводчика двери своими руками: порядок работ
Категория: Двери, проемы, арки
Дверной доводчик не относится к числу обязательных аксессуаров. Когда речь идет об обычной межкомнатной двери, то ее закрывание не вызывает затруднений. А вот если дело касается металлической входной створки, которую попросту тяжело двигать, возможность переложить проблему на плечи механического приспособления, кажется весьма соблазнительной.
Конечно, установка доводчика на металлическую дверь, не обеспечивает автоматическое открывание и закрывание, но позволяет продлить срок эксплуатации изделия: при плавном закрывании створка не ударяется о косяк и плотно прилегает к раме.
Приобрести доводчик для двери не сложно, благо цена на такой механизм не слишком большая, но его еще ведь нужно правильно смонтировать. Можно конечно же обратиться к услугам профессиональных мастеров, однако если тщательно разобраться в вопросе установки дверного доводчика, то данную работу вполне можно провести своими руками, а видео к уроку наглядно покажет все нюансы монтажа.
Принцип действия устройства
Принципиальным отличием от обычной дверной пружины, также обеспечивающей закрывание, является наличие в доводчике масла. Схема работы устройства такова:
- когда створка открывается, рычаг приводит в движение шестерню;
- шестерня двигает поршень, который в свою очередь сжимает пружину – на этот момент работа доводчика ничем не отличается от действия пружины;
- при открытой створке масло перемещается в противоположную сторону от сжатой пружины;
- при закрывании пружина разжимается, но при этом масло не просто перетекает в другую часть корпуса, а проходит сквозь каналы с клапанами, что и замедляет движение створки.
Масло изменяет плотность в зависимости от температуры, поэтому зимой и летом скорость открывания створки будет разной. Чтобы компенсировать этот эффект, дважды в год рекомендуется проводить регулировку. Инструкция содержит описание таких процедур.
Установка доводчика дверей своими руками более чем возможна, а вот ремонт устройства реален лишь тогда, когда повреждены внешние механические части. При вытекании масла устройство необходимо заменить.
Скорость закрывания и скорость прилегания регулируется своими руками с помощью регулировочных винтов. Первый параметр определяет, как быстро будет закрываться створка, второй – как быстро захлопываться при достижении угла прихлопа – 0–15 градусов. Насильственным образом закрывать дверь с доводчиком нельзя.
Классификация изделий
Установка доводчика на пластиковую или металлическую дверь обязательна, когда речь идет о противопожарных и эвакуационных выходах. В этом случае плотное прилегание створки к раме является вопросом принципиальным: таким образом предотвращается распространение дыма и огня.
Изделия классифицируются по величине момента инерции, то есть совокупного действия массы и ширины створки. Описывается он стандартом EN 1154 и включает семь классов. Первый предназначен для установки на легкую межкомнатную дверь, последние – на металлическую входную. Стоимость механизмов заметно отличается.
По способу передачи вращающего момент устройства разделяются на:
- рычажные – традиционный вариант, в котором рычаг состоят из двух соединенных осей, он отличается надежностью и долговечностью. Установка такого доводчика на дверь своими руками очень проста. Но так как рычаг оказывается полностью на виду и легкодоступен, то устройство часто становится жертвой вандализма;
- со скользящим каналом – конец рычага двигается по каналу и недоступен, но при этом открывание требует большего усилия;
- напольные – устанавливаются в пол, монтаж скрытый, осуществить его своими руками сложно;
- рамные – имеют такое же строение, но закрепляются на раме двери. Такой способ установки доводчика двери чаще используются в магазинах.
Правила выбора
Инструкция по установке доводчика на дверь предоставляет всю информацию об ограничениях.
- Масса полотна определяет класс изделия. Устройство на пластиковую створку, установленное на тяжелую металлическую, очень быстро придет в негодность.
- Если ширина створки составляет более 1600 мм, установка доводчиков двери запрещается.
- При недостаточно полном прилегании или скорости срабатывания возможен монтаж двух приборов на створку.
- Фиксация в открытом состоянии – функция только некоторых устройств. Такая опция является востребованной в медицинских учреждениях, например.
- Класс изделия, механизм передачи момента, дополнительные функции и так далее влияют на стоимость как доводчика, так его установки на дверь.
Инструкция по монтажу устройства
Самым простым в установке своими руками является прибор накладного типа с шарнирной передачей. Для жилых и рабочих помещений – это самый распространенный вариант. Для тяжелых стеклянных и металлических дверей предпочтительнее напольные доводчики.
- Устройство рекомендуется монтировать внутри помещения – квартиры, подъезда, магазина, для того чтобы защитить прибор от действия погодных факторов.
- При открывании створки внутрь корпус прибора закрепляется на дверном полотне, а рычаг – на раме. При отрывании наружу схема монтажа противоположная: на полотно устанавливается рычаг точно перпендикулярно плоскости двери, а на дверную раму – корпус.
- Инструкция к устройству содержит монтажную схему установки доводчика двери масштабом 1:1. Схему прикладывают к выбранному участку и размечают сквозь бумагу, например, керном.
- В полотне и раме высверливаются отверстия.
- Саморезами через отверстия закрепляются корпус и реечная планка рычага. Затем к корпусу монтируется ответная часть, а рычаг соединяется в колене.
- Коленный рычаг своими руками регулируется до тех пор, пока не занимает положение перпендикулярное плоскости дверного полотна.
- Правильная установка доводчика двери включает регулировку скорости закрытия, прихлопа, задержки открывания и так далее. Выкручивать винты нужно осторожно, так как это чревато утечкой масла.
О том, как правильно поставить доводчик на дверь, подробно рассказано на предлагаемом ниже видео.
Доводчик избавляет от необходимости самостоятельно прижимать створку для прилегания, захлопывать дверь или следить за тем, насколько плотно она закрыта. При этом устройство обеспечивает плавное движение створки, благодаря чему закрывание не сопровождается шумом. Установку доводчика двери можно осуществить своими руками, что снижает стоимость приспособления. Обслуживание механизма сводится к смазыванию рычага в колене и регулировке скорости закрывания.
Установка доводчика двери своими руками: видео
Установка доводчика на пластиковую дверь своими руками
При пользовании дверьми мало кто задумывается над тем, как следует использовать их, чтобы сохранить её механизмы в целостности. Часто наблюдаем за тем, как двери хлопают от сквозняка или наоборот не закрываются.
Добиться плавного движения двери при закрытии и при этом обеспечить плотный прижим можно с помощью уже всем известного устройства – дверного доводчика. А вот как выбрать необходимое устройство и установить его самостоятельно, попробуем разобраться.
Назначение механизма
Устройство доводчика
Разберёмся более подробно, как устроен доводчик, и какую функцию он выполняет. Это устройство, которое обеспечивает постепенное плавное закрывание двери вплоть до полного её прижима. Это создаёт много удобств и приоритетов:
- бесшумное движение полотна;
- всегда плотное закрывание двери;
- выполнение функции сохранения тепла в холодное время;
- в отдельных случаях обеспечивает автоматизацию конструкции.
В изделиях, которые были произведены недавно и являются усовершенствованными, предусмотрены функции проветривания и блокировки.
Разделение на виды
Виды доводчиков
Существует множество типов устройств, различающихся по определённым характеристикам. Если разбираться с ними по принципу монтажа, то получаем:
- Устройства, которые накладываются на полотно двери (накладные). Обычно их размещают вверху и соединяют либо с коробкой, либо со стеной.
- Если изделие размещается в нижней части двери и соединяется с полом, то его называют напольным.
- Существуют и такие изделия, которые размещают внутри полотна или в напольном устройстве. Их не видно, поэтому называют скрытыми. Такой механизм установить самостоятельно почти невозможно.
Также их различают по принципу работы:
- рычажный. Это один из самых простых устройств. Состоит из пружины и гидравлической системы;
- слайдовый. Работает за счёт возникновения силы трения, которая и уменьшает скорость закрывания полотна.
По устройству внутреннего механизма подразделяют доводчики на кулачковые и зубчатые. Постепенное движение полотна обеспечивает механизм перового типа, поэтому приоритетно его устанавливают на слайдовые доводчики. Зубчатый более грубый по своему устройству, поэтому его устанавливают на тяжёлые металлические полотна.
Как правильно выбрать
Правильно рассчитайте нагрузку на доводчик
Выбирая доводчик, необходимо учитывать множество факторов. Обязательно берём во внимание ширину полотна и его вес. В зависимости от этих показателей устанавливается его класс. В противном случае, механизм может не выдержать нагрузки и очень скоро придёт в негодность. Также следует твёрдо решить, какие функции необходимо обеспечить для правильной работы двери. Чем больше их будет, тем дороже обойдётся механизм.
Ассортимент доводчиков на пластиковые двери довольно широк. Поэтому необходимо тщательно ознакомиться со всеми его характеристиками, и только потом сделать выбор.
Способ монтажа доводчика
Монтаж
Установка доводчиков на пластиковую дверь – несложный процесс, но требующий некоторых знаний по принципу его установки, поскольку в зависимости от особенностей установки дверной конструкции выбирается способ монтажа механизма.
В первую очередь обращаем внимание на то, какое открытие имеет дверное полотно: от себя или на себя.
Накладные устройства являются универсальными, поэтому их можно устанавливать как с одной, так и с другой стороны.
Итак, если конструкция открывается на себя, то механизм следует расположить со стороны размещения петель. При открывании от себя следует его установить на коробке, а к полотну прикрепляется рычаг.
Инструкция монтажа классического доводчика
Данная инструкция поможет определиться, как правильно установить доводчик на дверь:
- Для начала необходимо разметить места для крепежей, с помощью которых будет монтироваться коробка. Очень часто в комплекте есть шаблон разметки, который нужно приложить к дверному полотну и отметить необходимые точки.
- В отмеченных местах просверливаем отверстия.
- Монтируем коробку, используя шурупы.
- По такому же принципу монтируем рычаг на дверную коробку.
- Следующим этапом является соединение корпуса с рычагом. Этот процесс выполняется так, чтобы при закрытых дверях между этими полотном и рычагом образовался прямой угол.
- Далее приступают к регулировке установленного устройства. Производят его с помощью винтов, которые размещены в торце корпуса. С помощью такой регулировки устанавливают необходимую скорость закрывания двери и вариант прижима: с захлопыванием или без него, блокирование открытия и прочее.
После монтажа доводчика его можно замаскировать. Для этого в продаже имеются специальные накладки.
Монтаж напольного механизма
Напольные механизмы очень удобны
Процесс монтажа доводчика на полу немного сложнее. Сам механизм устанавливается на полу и подсоединяется к нижней части дверного полотна.
- очень часто напольный доводчик укомплектован только инструкцией, самим изделием и несколькими ключами. Все элементы фурнитуры и креплений комплектацией не предусмотрены. Поэтому приходиться приобретать недостающие элементы самостоятельно;
- учитывать следует и то, что его толщина около 4 см, поэтому, чтобы не спотыкаться постоянно об него, необходимо устройство утапливать в пол. Это лучше всего предусмотреть во время строительства. В противном случае придётся выполнить ряд работ по подготовке ниши в полу для механизма;
- для напольного доводчика на его нижнюю и верхнюю часть предусмотрена разного типа фурнитура. Для нижней части фурнитура монтируется в пол, а затем прикрепляется к устройству. Верхняя имеет две части, одна из которых присоединяется к коробке, а вторая к дверному полотну;
- для беспрепятственного монтажа предусмотрен регулировочный болт. Работает он по такому принципу: вначале болт подкручивают, при этом штифт утапливается, а после установки полотна болт отпускают, и штифт соединяется с устройством на двери. Таким способом и происходит соединение нижней и верхней части.
В основном доводчик такого типа устанавливается в офисных зданиях. Их можно применять для стеклянных, пластиковых и деревянных дверей. Обзор популярных напольных доводчиков смотрите в этом видео:
Монтаж скрытого механизма
Самый сложный процесс – это поставить скрытый доводчик. Он встраивается вовнутрь дверного полотна, поэтому требует дополнительных усилий и инструментов. Они нужны для устройства углубления в дверном полотне.
Далее механизм устанавливают в подготовленную нишу, а вторую часть прикрепляют к коробке. Это достаточно трудоёмкий процесс, и многие предпочитают обращаться к специалистам. Подробнее о монтаже доводчика на дверь смотрите в этом полезном видео:
Альтернативные способы установки
Как установить доводчик, если приложенная инструкция к нему по каким-либо причинам не подходит. Выходят из положения, используя следующие способы:
- Монтируя накладной доводчик, используют дополнительный уголок, который прикрепляют к коробке, а уже к нему монтируют рычаг. Можно и наоборот, к уголку присоединяют коробку механизма, а рычаг прикрепляют к дверному полотну.
- Использование специальной пластины для монтажа. Применение её имеет три вариации:
- Пластину крепят к верхнему торцу двери так, чтобы некоторая её часть выступала. К ней прикрепляют коробку доводчика, а рычаг прикрепляют к коробке.
- Пластину монтируют вместе с механизмом к коробке, а рычаг к двери.
- Коробку крепят к двери. Пластиной увеличивают ширину откоса, а затем к нему крепят рычаг.
Как видим, способов установки дверного доводчика существует множество. Вам остаётся только правильно подобрать устройство и установить его тем способом, который оптимально подходит с учётом монтажа дверной коробки и самой двери.
Как установить пневматический дверной доводчик
Пневматические дверные доводчики предотвращают захлопывание двери из-за элементов (например, ветра) или маленьких детей, которые входят и выходят из дома. Пневматические дверные доводчики чаще используются в домах, в отличие от больших коммерческих гидравлических доводчиков, которые мы видим повсюду в школах и торговых центрах. Пневматические доводчики не ограничиваются только дверьми; Вы также можете установить их на решетчатые двери и двери патио. Их можно купить в любом магазине товаров для дома, и их относительно легко установить.Вот пошаговое руководство для вашего проекта.
Шаг 1 – Выбор места установки доводчика
Выберите модель и цвет, которые хорошо сочетаются с деревянной отделкой вашего интерьера. Затем начните процесс установки, убедившись, что дверца полностью закрыта, обеспечивая максимальное натяжение. Выберите место, где вы собираетесь установить доводчик. Стандартный пневматический доводчик двери обычно устанавливается в верхней части двери или в центре.
Шаг 2 — Установите монтажный кронштейн для косяка
Расположите монтажный кронштейн для косяка открытой стороной примерно на дюйма от двери.Не перемещайте скобу косяка более чем на дюйма от двери, иначе вы не сможете открыть дверь должным образом.
Шаг 3 — Соедините шайбу
Наденьте стопорную шайбу на стержень. Присоедините шайбу к монтажному кронштейну косяка с помощью короткого соединительного штифта. Теперь вам нужно прикрепить дверной кронштейн к переднему отверстию доводчика с помощью длинного соединительного штифта. Когда доводчик и дверной кронштейн будут на одном уровне с дверью, отметьте и просверлите два направляющих отверстия 1/8 дюйма.Помните, что нельзя просверливать дверь полностью. Если вы хотите более плавное и тихое закрывание, вместо этого прикрепите дверной кронштейн к заднему отверстию доводчика (если таковой имеется).
Шаг 4 — Дверной кронштейн с защелкой
Зафиксируйте дверной кронштейн на двери короткими винтами. Затем откройте дверцу и переместите стопорную шайбу на стержне. Установка дверного доводчика завершена. Вы можете регулировать скорость закрывания двери, поворачивая регулировочный винт в нижней части трубки доводчика.
Шаг 5 — Воспользуйтесь преимуществами
Теперь, когда ваш дверной доводчик установлен и работает, вы можете наслаждаться тишиной и покоем, не отвлекаясь от постоянного хлопанья и захлопывания двери. Дополнительным преимуществом является то, что доводчик помогает продлить срок службы вашей двери. Он также предотвращает физический урон от постоянных ударов. Дверной доводчик может выступать в качестве меры предосторожности, особенно когда рядом находятся младенцы и дети ясельного возраста. Дверь, внезапно закрывающаяся, когда проходят маленькие дети, может причинить им большой вред.Доводчик предотвращает это, давая детям время безопасно пройти через дверь.
Prime-Line KC10HD Дверной доводчик с предохранительной пружиной — Простота установки для преобразования распашных дверей в самозакрывающиеся — Литая конструкция (4-1 / 4 дюйма, белый, без ручки) —
Описание продукта
Превратите свою распашную дверь в самозакрывающуюся с помощью предохранительного пружинного доводчика KC10HD. Установка очень проста благодаря поверхностному монтажу доводчика и пластиковой скользящей пластины — вы можете получить самозакрывающуюся дверь за несколько минут! Используйте этот пружинный дверной доводчик на дверях весом до 150 фунтов.Его также можно использовать как для левых, так и для правосторонних дверей. Дверные доводчики имеют регулируемое усилие и скорость закрывания. Изготовленный из литых под давлением материалов с белой краской, этот дверной доводчик с предохранительной пружиной может дополнить дверь любого стиля. Они U.L. указаны с классом огнестойкости ½ часа и имеют основание шириной 1 дюйм, расстояние между центрами отверстий 4-1 / 4 дюйма и плечо 4-3 / 4 дюйма. Эти доводчики работают по принципу «закрытие при нажатии», а не при закрытии на вытягивание, и у них нет функции удержания в открытом положении. Расстояние перемещения: рычаг доводчика этого предохранительного пружинного доводчика может поворачиваться на полные 180 градусов, но как только он будет установлен на место, расстояние поворота двери будет уменьшено до точки, в которой она вступает в контакт с пулей. фасонный корпус доводчика.Для защиты от ржавчины и погодных условий рассмотрите модели с номерами KC50HD (белый) и KC57US (коричневый), которые подходят для наружного / наружного использования, предназначены для использования с легкими воротами и дверями-сетками. Все крепления и инструкции по установке прилагаются к этому товару. Другие цвета / варианты отделки: черный, коричневый, хромирование и матовое хромирование. Обязательно просмотрите видеоролик производителя с инструкциями по установке, также связанный с этой страницей, в верхнем левом углу. Может быть желательно нанесение белой литиевой смазки на внутренние пружины сжатия, но вам следует избегать использования смазок, таких как WD-40, которые разрушают консистентную смазку.
От производителя
Эти безопасные дверные доводчики с пружинным приводом изготовлены из литых материалов и окрашены в белый цвет. Они U.L. указаны с огнестойкостью 1/2 часа и могут использоваться для закрытия дверей весом до 150 фунтов. Эти доводчики имеют регулируемую скорость закрывания и не являются ручными, что позволяет использовать их как на левой, так и на правой распашной двери. И доводчик, и пластиковая скользящая пластина устанавливаются на поверхность и легко устанавливаются.Эти доводчики работают по принципу «закрытие при нажатии», а не при закрытии на вытягивание, и у них нет функции удержания в открытом положении. Расстояние перемещения: рычаг доводчика этого предохранительного пружинного доводчика может поворачиваться на полные 180 градусов, но как только он будет установлен на место, расстояние поворота двери будет уменьшено до точки, в которой она вступает в контакт с пулей. фасонный корпус доводчика. Для защиты от ржавчины и погодных условий рассмотрите модели с номерами KC50HD (белый) и KC57US (коричневый), которые подходят для наружного / наружного использования, предназначены для использования с легкими воротами и дверями-сетками.Все крепления и инструкции по установке прилагаются к этому товару. Другие цвета / варианты отделки: черный, коричневый, хромирование и матовое хромирование. Обязательно просмотрите видеоролик производителя с инструкциями по установке, также связанный с этой страницей, в верхнем левом углу. Может быть желательно нанесение белой литиевой смазки на внутренние пружины сжатия, но вам следует избегать использования смазок, таких как WD-40, которые разрушают консистентную смазку.
√ Как установить и отрегулировать доводчик штормовой двери: Пошаговые инструкции
опубликовано
Установите доводчик штормовой двери за четыре простых шага.В этой статье рассказывается об установке штормового доводчика в наиболее распространенной конфигурации.
Правильная регулировка также важна для обеспечения плавного и мягкого закрывания двери, как и установка доводчика для летних дверей-сеток или дверей для зимних штормов.
Сломанная дверь шторма (Как установить доводчик двери шторма: установка доводчика двери шторма)
Как установить и отрегулировать доводчик двери шторма
Установка доводчика двери шторма, включая регулировку для использования зимой и летом.Узнайте, как установить доводчик для штормовых дверей и дверей-сеток. Сначала прикрепите кронштейн косяка, а затем стержень доводчика двери.
Подсоедините цилиндр к дверному кронштейну и прикрепите дверной кронштейн к двери. Отрегулируйте винт для меньшей скорости и выкрутите для большей скорости. Переместите штифт из летнего и зимнего положения, чтобы переключить дверь с экрана на функцию шторма.
Читайте также:
Обзор установки доводчика штормовой двери
Несколько лет назад кому-то пришла в голову идея прикрепить пружину между дверью и дверным косяком и изобрел доводчик штормовой двери.Но это не всегда срабатывало, и слишком часто дверь просто захлопывалась, что могло привести к разбиванию стекла.
Введите пневматический доводчик двери. Пневматический дверной доводчик по-прежнему приводит в действие отпрыск, но воздушная подушка заставляет дверь плавно закрываться. Установите доводчик для штормовой двери, чтобы аккуратно закрыть штормовую и защитную дверь. Обязательно ознакомьтесь с инструкциями производителя, поскольку установка для разных моделей может отличаться.
Установите скобу косяка
Кронштейн косяка прикрепляет дверной доводчик к дверному косяку.Закройте штормовую дверь и отмерьте 1/4 дюйма от двери на косяке, к которому крепятся петли штормовой двери.
Отметьте косяк вверху и на расстоянии 1/4 дюйма от штормовой двери. Удерживая кронштейн косяка на месте, отметьте карандашом центры отверстий под винты.
Установка доводчика штормовой двери (Как установить доводчик штормовой двери)
Просверлите направляющие отверстия 1/8 дюйма для винтов. Снова установите кронштейн на дверной косяк и прикрутите его к дверному косяку с помощью прилагаемых винтов и крестовой отвертки.
Подсоедините стержень доводчика двери
Установите стопорную шайбу на стержень, выступающий из цилиндра доводчика дверцы. Лучшая часть шайбы должна указывать на цилиндр.
Поместите плоскую часть стержня в скобу косяка и удерживайте ее так, чтобы отверстие в стержне совместилось с отверстиями в скобе косяка.
Вставьте штифт в отверстие в верхней части кронштейна косяка, через отверстие в стержне и наружу нижнее отверстие кронштейна косяка.
Потяните цилиндр от кронштейна косяка до тех пор, пока два небольших выступа на штоке не окажутся за пределами трубы.Наденьте более тесную шайбу на неровности и вплотную к цилиндру.
Это будет удерживать шток и цилиндр в правильном положении для крепления дверного кронштейна к штормовой двери и прикладывать необходимое усилие к внутренней пружине.
Также читайте: Чертовы обзоры лучших дверных ручек https://toolsandgears.com/best-door-knobs-reviews/
Установите дверной кронштейн
Поместите дверной кронштейн над отверстием на конце цилиндра. Ближайшее к концу кронштейна отверстие — это «зимнее» отверстие.Проденьте штифты доводчика на длину через зимнее отверстие дверной скобы и отверстие цилиндра доводчика.
Закройте штормовую дверь и защелкните ее. Удерживайте дверной кронштейн напротив штормовой двери цилиндром доводчика и штоком на уровне. Отметьте отверстия для винтов на штормовой двери.
Откройте штормовую дверь. Осторожно просверлите два направляющих отверстия 1/8 дюйма в штормовом люке для дверного кронштейна. Металл на двери обычно довольно мягкий и легко сверлится.
Запустите дрель на медленной скорости и не торопитесь.Дверь очень легко просверлить полностью, а вы этого не хотите.
Закройте дверь снова и прикрепите дверной кронштейн к штормовой двери с помощью прилагаемых винтов.
Регулировка
Отрегулируйте скорость закрывания двери, поворачивая регулировочный винт на конце доводчика двери. Поворот винта по часовой стрелке замедлит дверь, а против часовой стрелки — ускорит ее.
Дверь должна закрываться, почти остановиться в нескольких дюймах от закрывания, а затем плавно закрываться.
Сетчатая дверь закрывается с меньшим усилием, чем штормовая дверь. Удерживая дверь приоткрытой, приподнимите распиновку «зимнего» отверстия дверного кронштейна, переместите цилиндр в «летнее» отверстие (самое дальнее от цилиндра) и снова вставьте штифт.
Когда наступит осень, просто переместите штифт обратно в «зимнее» отверстие, чтобы закрыть дверь со стеклянными панелями на месте.
Кредиты и ресурсы
Советы по установке и обслуживанию доводчика верхнего косяка
Пример установки доводчика верхнего косяка.У слесаря, который установил, все прошло удачно, потом плотник обвел насухо стеной. Удачи в ремонте или замене!
Слесари и дверные доводчики неразрывно связаны между собой, как механики и автомобили. Почему слесари являются основными установщиками дверных доводчиков? Возможно, это потому, что большинство из нас отлично с этим справляется. Или, может быть, дело в ассоциации. Доводчики, такие как замки и замки с засовом, являются дополнениями к обычным дверям, и притом наиболее важными. Дело в том, что за дверные доводчики можно получить хорошие деньги.Помимо прибыли от оборудования, есть еще и оплата труда.
На минутку рассмотрим обычный доводчик с верхним косяком. Изо дня в день он делает именно то, что должен:
- Поддерживайте противодавление, препятствуя быстрому неконтролируемому открытию.
- Открыв дверь, подметайте ее до полного закрытия.
- Закройте дверь.
- Приложите достаточно силы, чтобы он защелкнулся.
Четвертая настройка, вероятно, одна из самых важных с точки зрения пожарного кодекса.Это связано с тем, что при возникновении пожара, в некоторых случаях, когда лестничные башни и другие зоны находятся под давлением, внутренние и / или внешние двери могут распахнуться, если они еще не надежно заперты.
Девятьсот девяносто раз или тысяча, они делают свою работу хорошо. Многие из них делают свою работу без сбоев в течение всего срока службы двери, в то время как другие где-то терпят неудачу.
Когда дверные доводчики выходят из строя
К сожалению, бывают случаи, когда эти старые стойкие выходят из строя из-за проблем с установкой или неправильного обращения.Иногда они действительно падают с двери, обычно не причинив травм. Однако бывали случаи, когда кто-то пострадал. Это худший кошмар слесаря, который потенциально может свести на нет все его сбережения, отключив при этом его бизнес.
«Ручные дверные доводчики широко распространены. Мы пользуемся их услугами ежедневно, обычно не замечая, что они находятся в каком-то месте или что они правильно выполняют свою работу. Когда с этими доводчиками что-то серьезно не так, они становятся явно заметными и потенциально опасными », — говорит эксперт-свидетель Майкл Пэниш, Nationwide Inspection and Testimony of Woodland Hills, Калифорния.
Согласно статье «Дверные доводчики с ручным управлением, у вас есть чемодан для открывания и закрывания?» Паниш говорит, что основными тремя причинами отказа доводчика являются: 1. неправильное использование, 2. недостаток знаний со стороны тех, кто использует их каждый день, и 3. неправильная установка. Все три могут привести к тому, что дверной доводчик не только сломается, но и упадет с верхней части двери.
Проблемы при установке
Одна из проблем, связанных с выходом из строя дверных доводчиков с верхним косяком, связана с ослаблением сквозных болтов и анкерных гаек, что может вызвать неисправность.В некоторых случаях это явно недостаточный момент затяжки гаек и болтов. При использовании саморезов часто приходится вырезать отверстия, скорее всего, из-за чрезмерной затяжки во время установки.
Многие слесари используют универсальные саморезы. Один слесарь (пожелавший остаться неизвестным) говорит, что не все производители приближения включают в себя саморезы. Он говорит, что из-за самозахватчиков его люди могут закрыть дверь в рекордно короткие сроки. В заключение он сказал, что «время — деньги», что абсолютно верно.
Однако не все согласны. Роб Коваль, владелец Liberty Locksmiths & Security Products в Апопке, Флорида. говорит: «Я не большой поклонник саморезов в этом приложении, потому что их можно вытащить. Все используют аккумуляторные шуруповерты или дрели на батарейках. Если вы не будете осторожны, вы можете вырезать эти дыры, даже не подозревая об этом. Если вы подберете ближе хорошего качества, это может быть нормально, но эти импортные, они становятся все дешевле и дешевле ».
Коваль говорит, что суть в том, что если вы можете хорошо перекусить, он согласен.Но он по-прежнему сверлит и пробивает эти отверстия для сквозных болтов 1 / 4-20, когда это возможно. А там, где его нет, он сверлит 3/8 дюйма. отверстия и устанавливает секс-гайки для укороченных 1 / 4-20 винтов.
Регулировки и углы работы
Другой вопрос — как слесари устанавливают доводчики верхнего косяка. Например, большинство, если не все доводчики предоставляют две настройки, которые определяют угол, на который открывается дверь. Две настройки включают 110 и 180 градусов. Ковал говорит, что настройка 110 градусов, которая обычно является заводской настройкой по умолчанию, может вызвать снятие нагрузки на доводчик, рычаг доводчика и дверь, что увеличивает вероятность преждевременного выхода из строя.
« Вы всегда можете установить доводчик на 180 градусов, и он никогда не окажет слишком большого давления на дверную коробку», — говорит Коваль. «Вы можете полностью открыть дверь, и это никогда не вызовет проблем. Этим производителям не следует даже предлагать настройку на 110 градусов, потому что 180 градусов будут работать каждый раз ».
До четырех дополнительных настроек необходимо сбалансировать, прежде чем вызывать его на рабочий день. Вот основные три с кратким описанием каждого из них. Их:
- Swing Speed: Управляет скоростью закрытия от точки полного открытия до 5 градусов закрытия.
- Скорость фиксации: Управляет скоростью закрытия последних нескольких дюймов до полного закрытия.
- Backcheck: Реализует степень отталкивания, когда кто-то открывает дверь.
- Натяжение пружины: Четвертая регулировка регулирует натяжение пружины внутри доводчика.
Третья настройка, вероятно, одна из самых важных, потому что она должна быть настроена точно так, чтобы соответствующая дверь не только закрывалась, но и защелкивалась.Как упоминалось в начале этой статьи, правила пожарной безопасности требуют, чтобы эти двери надежно защелкивались, поэтому при приложении давления воздуха в здании — будь то нормальная система отопления, вентиляции и кондиционирования воздуха или повышение давления на лестничной башне — эти двери остаются закрытыми, потому что двери в здании работают. как задумано.
Некоторые говорят, что регулировка дверного доводчика — это само по себе искусство. Лучший совет, который можно дать в этом отношении, — получить инструкции по установке доводчиков, используемых в вашем магазине, и обращаться к ним при регулировке.Как говорится, «практика ведет к совершенству».
Другой аспект доводчиков верхнего косяка связан с соблюдением требований ADA (Закона об американцах с ограниченными возможностями). ADA — это федеральный закон, призванный обеспечить доступность и безопасность лиц с ограниченными возможностями. Например, для открытия межкомнатных дверей не требуется силы более 5 фунтов. Это требование важно по двум причинам. Во-первых, инвалиды часто ограничены в силе, которую они могут приложить для открытия двери, особенно когда дверной доводчик установлен неправильно.Регулировка «обратного хода» регулирует отталкивание.
Вторая причина связана с входными дверями, которые могут отличаться в зависимости от штата. Там, где одни разрешают 5 фунтов, другие — 6 фунтов, а третьи — до 8,5 фунтов. Перед тем, как продолжить, проконсультируйтесь с начальником пожарной охраны вашего штата, чтобы получить эту информацию. Вам нужно будет приобрести прижимной инструмент, чтобы проверить, какое давление требуется, чтобы открыть двери, над которыми вы работаете.
Установка доводчика скрытой двери
Установка автоматического доводчика двери важна для дверей, которые отделяют зоны, где пожар может начаться от других жилых помещений.
Скрытый доводчик состоит из пружинно-цепного механизма в металлическом корпусе и двух металлических пластин, которые крепятся к раме и двери. Металлический корпус, скрывающий пружину и цепь, должен быть встроен в дверь, а пластина, прикрепленная к цепи, прикреплена к раме.
При открытии дверцы цепь вытягивается из ствола и сжимает или растягивает пружину. Затем пружина заставляет дверь закрываться, когда она возвращается в нормальное состояние.
Шаг 1 — Просверливание отверстия
Отметьте положение доводчика на кромке петли открытой двери. Убедитесь, что отметка находится посередине края дверцы. Вам нужно будет просверлить отверстие для механизма доводчика сверлом того же диаметра (или как можно более близкого). Перед тем, как начать сверление, отметьте глубину механизма доводчика на сверле с помощью изоленты, чтобы вы знали, когда отверстие станет достаточно глубоким.
Вставьте металлический корпус в просверленное отверстие так, чтобы винтовая пластина плотно прилегала к краю дверцы.Обведите карандашом пластину винта, а затем выньте металлический корпус из отверстия. Используя острое долото для обработки дерева, удалите слой дерева внутри отметок карандаша, чтобы пластина шурупа прилегала заподлицо с поверхностью дерева.
Шаг 2 — Отметка положения пластины
Вставьте металлический цилиндр обратно в отверстие и закройте дверцу. Будем надеяться, что металлическая пластина с винтами оставит слабый след на дверной накладке в том месте, где она касается, когда дверь закрывается. Затем вы можете использовать эту отметку, чтобы вырезать слой дерева для анкерной пластины.
Если от винтовой пластины не осталось следов, вы можете попробовать перенести положение на дверную накладку на глаз, или вы можете попробовать провести карандашом по краю винтовой пластины, а затем закрыть дверцу, чтобы увидеть, что оставляет след. Перенести положение анкерной пластины вручную не так уж сложно, но вы должны позаботиться о том, чтобы сделать это как можно точнее.
Шаг 3 — Крепление винтовой пластины
Закрутите пластину, которая крепит ствол к двери, используя винты, входящие в комплект или рекомендуемые.Убедитесь, что он надежно закреплен. Теперь оттяните анкерную пластину от винтовой пластины с помощью плоскогубцев. Это обнажит цепь, которая прикрепляет пластину к пружине внутри металлического цилиндра. В комплект доводчика должен входить зажим, который надевается на цепь, чтобы предотвратить ее втягивание обратно в цилиндр. В противном случае вы можете использовать тонкий гвоздь или кусок проволоки, продетый через одно из звеньев цепи, чтобы удерживать цепь.
Шаг 4 — Крепление анкерной пластины
Теперь вы можете потянуть анкерную пластину так, чтобы она вошла в углубление, которое вы выточили в дверной обшивке.Просверлите направляющие отверстия и затем прикрутите анкерную пластину на место. Возможно, вам придется вырезать еще немного в дверной обшивке, чтобы приспособить заднюю часть анкерной пластины.
Инструкции по установке дверного доводчика Storm
Davinci resolve удалить фон без зеленого экрана
Помощник окружного прокурора округа Лодердейл
Дверные ручки, ручки, комплекты замков и другие аксессуары Инструкции по установке оборудования и руководства ресурсы от Emtek Products, Inc.Я бы сказал, что штормовая дверь заняла у меня около четырех часов, чтобы полностью установить, но это потому, что мне пришлось установить дверь и снять некоторые петли с предыдущей штормовой двери, у которой были сняты винты. Это был кошмар. Если кто знает, как легко открутить снятые винты, то я все уши. Присоедините переднее отверстие доводчика к дверному кронштейну (длинный соединительный штифт) и к соединительному штифту бокового кронштейна косяка — см. Рис. D3) открытой стороной кронштейна косяка в сторону штормовой двери. (См. Стрелку на кронштейне.) Закройте и защелкните дверцу.Удерживайте уровень сборки доводчика на 3 дюйма ниже окна двери и кронштейн косяка на 1/4 дюйма от Z-образной балки. Отметьте Руководство по установке. для штормовых дверей Andersen® серии 3000 со съемным экраном от насекомых. с любыми вопросами, касающимися установки, замены утерянных деталей или чего-либо еще, связанного с вашей штормовой дверью, страницы 4-10 с инструкциями по установке. снаружи, штормовая дверь с правой стороны будет. Инструкции по установке комплекта ручек см. в руководстве по эксплуатации ниже для вашей модели штормовых ворот серии EMCO®.02.11.2020 · При установке новой штормовой двери необходимо будет установить на нее доводчик. Emco — компания, которая производит штормовые двери Andersen. Иллюстрированная инструкция по установке левой двери. те же размеры относятся к правой двери — измеренные доводчики Storm можно найти в разделе «Все о дверях и окнах» здесь. Инструкции по гидравлическому доводчику двери | eHow UK. Откройте упаковку доводчика и найдите инструкцию по эксплуатации.
Копии штыков на продажу
Документы по искусственному интеллекту 2018 pdf
- 27 сентября 2020 г. рынок, в том числе от Wright Products, Barton Kramer, Prime-Line, Stanley и, конечно же, Ideal.Какой размер штормового доводчика мне нужен? Дверные доводчики бывают разных достоинств, а некоторые обладают особыми характеристиками.
- Acorn Manufacturing AZ1I Комплект дверных ширм с 3 петлями, 1 доводчиком и защелкой для штормовых дверей, черный. Комплект дверных проемов с 3 петлями, 1 доводчиком и защелкой для штормовых дверей. Это полный комплект дверных проемов, который включает в себя все необходимое для монтажа дверных проемов. Acorn — лучший и крупнейший производитель и дистрибьютор кованого железа …
- 18 ноября, 2020 · Дверной доводчик FS-1306 Автоматические регулируемые доводчики Пружинный гидравлический автоматический доводчик 3-го класса с простой установкой Шаблон для установки в натуральную величину и инструкции Серебристый алюминий.Плавность: без звука вы можете плавно управлять этим. Благодаря компактной пружине этот дверной доводчик легко установить. Это устройство для поверхностного монтажа.
- Различные производители дверных доводчиков, как правило, производят разную продукцию, но все дверные доводчики имеют какую-то регулировку давления. В некоторых моделях предусмотрены отдельные настройки для «развертки» («S»), то есть скорости, с которой дверь движется, когда она начинает закрываться, и «защелки» («L»), которая является ее скоростью …
- дверной доводчик на моем крыльце — это механическое цилиндрическое устройство, которое не дает двери слишком далеко распахнуться, а затем автоматически закрывает ее. того, который вы заменяете.
- У меня недавно установили новую сетку / штормовую дверь. Мой муж подумал, можно ли мне установить замену дверных проемов (или что-нибудь еще) до того, как я присмотрелся к двери и обрамлению. Похоже, что если я установил дверь, проверьте свое руководство по установке и / или позвоните Андерсену.
- Двери Storm бывают разных стилей, чтобы удовлетворить индивидуальный вкус. Но перед установкой нового открутите винты крепления косяка кронштейна доводчика с помощью крестовой отвертки.Лоус: Инструкции по установке штормовой двери Ларсона. Креативный домовладелец: как убрать доводчик штормовой двери.
- Чтобы увидеть все продукты Storm и Screen Door, Patio Door и Commerical Closer, предлагаемые Wright Products, загрузите наш каталог в формате PDF. Чтобы увидеть больше видеороликов о наших продуктах, нажмите здесь, чтобы перейти на официальный канал продуктов Wright на YouTube.
- 21 июля 2007 г. · время, когда я попросил команду Sears установить штормовую дверь, и они распилили части дверного молдинга, чтобы вытащить выступ защелки, которая находится на раме, чтобы компенсировать тот факт, что они установил ручку примерно на дюйм внутрь от того места, где она должна заходить на дверь, так что я полагаю, что справлюсь и сам.Так что с грустью отмечу, что Пелла
- Storm Door Цены. Цены варьируются от 100 до 950 долларов, при средней цене около 400 долларов. Низкие модели из алюминия с базовой защелкой и шириной 4 дюйма стоят около 100 долларов. Высококачественные варианты включают такие функции, как более тонкие профили и прочная алюминиевая конструкция. , входы с ключами, стеклянные панели со скошенной кромкой и выдвижные экраны и стоят 400 долларов и более, а некоторые модели стоят более 950 долларов.
- Инструкции по установке или замене штормовых и дверных доводчиков.Это пошаговое руководство показывает идеальную безопасность … Правильно установленная штормовая дверь легко закроется из положения, открытого на 90 градусов, в течение 7 секунд. Штормовые двери ProVia поставляются с …
- Для регулировки натяжения: Отцепите доводчик от дверного кронштейна. Найдите регулировочный винт на дверце корпуса доводчика. Используя отвертку с плоской головкой, затяните винт (поверните по часовой стрелке), чтобы увеличить натяжение и снизить скорость закрытия дверцы. Ослабьте винт (поверните …
- зазор 1/8 дюйма между верхней частью дверцы и колпачком.3. Установите два (2) винта с полукруглой головкой # 8×1 «через предварительно просверленные отверстия на внешней поверхности капельной крышки. G УСТАНОВИТЕ ВЕРХНЮЮ ОТКРЫТУЮ КРЫШКУ J ПРИКРЕПИТЕ ОБОРУДОВАНИЕ (ЗАЩЕЛКУ, ВЕТРОВОЙ ЦЕПЬ * И ДОПОЛНИТЕЛЬНО) ИНСТРУКЦИИ ПО УСТАНОВКЕ ПРОДОЛЖЕНИЕ 1. Откройте дверь и расположите боковую Z-образную планку защелки напротив деревянной обшивки — закройте дверь, пока …
не
Как преобразовать логический адрес в физический адрес в пейджинге
Доводчик на штормовой двери представляет собой трубчатый объект, прикрепленный к нему Устанавливается на той же стороне, что и дверные петли Andersen — одна из самых часто покупаемых марок окон и дверей на рынке.Инструкции Андерсена по установке доводчика следующие …
Недорогие дверные доводчики, купите качественные товары для дома напрямую из Китая. Поставщики: Автоматические штормовые двери из нержавеющей стали Регулируемая противопожарная дверная фурнитура Наслаждайтесь бесплатной доставкой по всему миру! Продажа с ограниченным сроком действия. Легкий возврат.
ПНЕВМАТИЧЕСКИЙ Доводчик, ШТОРМОВАЯ ДВЕРЬ И ОБОРУДОВАНИЕ ЭКРАННОЙ ДВЕРИ. Описание: Доводчики штормовых дверей также различаются, но большинство из них относятся к разновидности велосипедных насосов: длинный цилиндр с прикрепленным плунжерным механизмом. Информация о покупке: снова отнесите старую в магазин, чтобы получить подходящую замену.Практические советы: Обратите особое внимание на инструкции по установке …
2. Минимальная глубина 3-3 / 4 дюйма требуется между основной дверью и монтажной рамой штормовой двери, чтобы можно было разместить оборудование. Между основной дверью и внутренней стороной ливневой двери требуется минимальная глубина 2-1 / 2 дюйма. При необходимости выровняйте ее. См. Рис. 2. Приставка
к инструкциям производителя по установке в двери с другой шириной. Резьбовой стержень 5. УСТАНОВИТЕ ЗАЩЕЛКУ, ДВЕРЬ и кольцевую пилу. Ручки в соответствии с инструкциями производителя, прилагаемыми к вашему комплекту замков.
Дверные ручки, ручки, комплекты замков и другие аксессуары, инструкции по установке оборудования и ресурсы руководства от Emtek Products, Inc.
Петля регулировки штормовой двери Ларсона Скрытый доводчик Установка натяжной защелки Инструкции экрана 36 Крючки Сесилии Фоули Август 09th, 2020-18: 37:03 С другой стороны, плоские крючки имеют плоские концы стержня вместо проушин, плоскую часть, чтобы закрыть петлю узел от выдергивания из крючка.
внутренняя сторона штормовой двери. Отметьте 4 отверстия для винтов в каждом кронштейне косяка и просверлите направляющие отверстия 1/8 дюйма. Закрепите каждый кронштейн косяка 4 винтами с цилиндрической головкой №10 x 1 1/2 дюйма.
Описание продукта.Комплект доводчика двери Andersen Storm в белом цвете Комплект включает верхний доводчик, нижний доводчик двери с «нажимной кнопкой», кронштейн косяка, дверной кронштейн, сверло и отзыв клиента: OlideAuto 120 Автоматический открыватель распашной двери, видео по установке и программированию. Смотрите полный обзор.
Как отрегулировать доводчик штормовой двери? Моя штормовая дверь недавно начала хлопать, когда она закрывается. Я попытался изменить положение кронштейна. Если вы приобретете близкое или точное совпадение, вы можете сэкономить немного времени, так как самая сложная часть установки — это установка кронштейнов двери и рамы.
Перед установкой убедитесь, что ручка штормовой двери не задевает ручку входной двери при закрытии, чтобы избежать ее изменения в дальнейшем. Шаг 9: Установите расширительный элемент. Если расширительный элемент еще не прикреплен, а между дном ливневой двери и порогом есть зазор, просто сдвиньте заднюю планку …
Специалисты «сделай сам» дают здесь полные инструкции по установке. Штормовые двери можно установить так, чтобы они открывались вправо или влево. Вам будет удобнее установить шторм. Соберите весь доводчик с помощью скоб на каждом конце доводчика.Удерживайте доводчик на рекомендованной высоте …
Когда стеклянные шторки опущены, вставьте соединительный штифт в переднее отверстие трубки доводчика (ближе всего к дверному кронштейну). Это увеличивает закрывающее давление на дверь на последних нескольких дюймах хода, чтобы дверная защелка защелкнулась в защелке. Когда экраны опущены, поместите соединительный штифт в заднее отверстие трубки доводчика (самое дальнее от дверного кронштейна). Теперь вместо того, чтобы захлопнуться, дверь будет замедляться по мере приближения к дверной защелке.
Сохраните штормовую дверь, чтобы получать оповещения по электронной почте и обновления в ленте eBay. + Продукты Wright V2010BLTAP-N-GO® ПНЕМАТИЧЕСКИЙ ЗАКРЫТИЕ, ЧЕРНЫЙ. Совершенно новый. Инструкции по установке серии Larson Wood-Core — штормовые двери Larson.
Эта дверь очень прочная и безопасная; отличная штормовая дверь для нашей области, подверженной ураганам. Пережив 2 урагана и многочисленные штормы за последние 10 лет, я заменил все 5 наших внешних штормовых дверей на двери этого типа. Особенностью этой двери является многослойное стекло и трехточечная система запирания.
Автоматические дверные операторы Коммерческие замки Коммерческие пороги Скрытые Вертикальные стержни Винты с конической головкой Ударные цепи Стопорные защелки Комплекты и ключи Дверные доводчики Дверные доводчики Корпуса и сковороды Дверная электроника Дверные ручки и лопасти Детали дверных ручек Отделка дверной фурнитуры Дверные клавиатуры Манекены Пылезащитные удары Электрические удары …
Недорогие дверные доводчики, покупайте качественные товары для дома напрямую из Китая. Поставщики: Автоматические штормовые дверные доводчики из нержавеющей стали Регулируемая противопожарная дверная фурнитура Наслаждайтесь бесплатной доставкой по всему миру! Продажа с ограниченным сроком действия. Легкий возврат.Штормовые двери серии
Premium имеют прочные перекрывающиеся не требующие обслуживания экструдированные алюминиевые рамы с соответствующими по цвету расширителями, двойным уплотнением, двумя подходящими доводчиками и дизайнерскими крышками для винтов для скрытия внешних крепежных винтов.
Доводчики для коммерческих дверей; Фурнитура для дверей патио; … Поиск. Фурнитура для штормовых дверей. Показано 1-8 из 89 товаров; Пункты на странице. V170WH HEAVY DUTY TORSION BAR ПНЕВМАТИЧЕСКИЙ ЗАВОДЧИК …
Запрещен доступ в чат Twitch без причины
LARSON® Storm Doors УСТАНОВКА Двери LARSON настолько просты в установке, что они имеют запатентованную конструкцию по способу установки.Просто выберите правое или левое крепление для петель и следуйте понятным инструкциям. Подвешивание за один шаг с предварительно просверленными установочными отверстиями Эксклюзивные удлинители рельсов No Cutting обеспечивают регулируемую высоту без резки
с любыми вопросами, касающимися установки, замены потерянных деталей или чего-либо еще, связанного с вашей штормовой дверью. Прочтите это руководство, прежде чем приступить к установке. Если ваши способности не соответствуют правой стороне штормовой двери. См. Стр. 7-9 для инструкций по установке.3. Внутренняя сторона …
Минимальные этапы установки без сложных измерений или распиловки; Штормовая дверь готова к установке в дверной проем за считанные минуты; Выберите правую или левую руку, чтобы она лучше всего соответствовала вашему входу. Руководства по установке · Измерения · Запасные части. Руководства по установке — Storm Doors Компьютерный монитор …
Установите дверной доводчик. Чтобы установить дверной доводчик, следуйте инструкциям, прилагаемым к замене или блоку штормовой двери, см. Руководства по установке блока штормовой двери.Для штормовых дверей серии EMCO® с деревянным сердечником и алюминия инструкции по установке доводчика включены в инструкции по установке набора ручек.
Шаг 9: Установите дверные доводчики. Следуя инструкциям, прикрепите дверной доводчик (и) вверху (и внизу, если у вас их два). Откройте и закройте дверь и отрегулируйте давление в дверных доводчиках по мере необходимости (на конце каждого доводчика есть винт, который регулирует скорость). Шаг 10: Установите запорную пластину
I’m the Storm Door Guy и для последние 16 лет я изо дня в день устанавливаю штормовые, охранные и сетчатые двери для Lowe’s.У меня есть руководства по эксплуатации, инструкции по установке, обучающие видеоролики и многое другое. В отличие от руководств по эксплуатации, в которых рассказывается, как все должно работать в идеальном мире …
Acorn Manufacturing AZ1I Сетчатый дверной набор с 3 петлями, 1 доводчиком и защелкой для штормовой двери, черный. Комплект дверных проемов с 3 петлями, 1 доводчиком и защелкой для штормовых дверей. Это полный комплект дверных проемов, который включает в себя все необходимое для монтажа дверных проемов. Желудь — лучший и крупнейший производитель и дистрибьютор кованого железа…
Следуйте инструкциям ниже, чтобы отрегулировать скорость доводчика штормовой двери. Инструкции можно использовать для регулировки как кнопочного, так и удерживающего доводчика. Двойной стандартный доводчик с
На некоторых штормовых дверях доводчик располагается посередине двери и под окном. Эти доводчики необходимо переместить в верхнюю или нижнюю часть штормовой двери, если у вас есть штормовая дверь с верхней загрузкой. Следуйте инструкциям производителя штормовых дверей для правильного перемещения.
EasyHang® Этапы установки: Этап 1: Подготовка к установке штормовой двери Этап 2: Прикрепите планку петель и повесьте дверь Этап 3: Установите каплеуловитель и фиксирующую планку Этап 4: Завершите установку
Монтаж штормовой двери серии EMCO 300 был простой проект DIY.Изделие было высокого качества с очень подробными инструкциями по установке. Все детали были аккуратно упакованы и четко обозначены в инструкциях. Конечный продукт выглядел великолепно и работал без сбоев.
Доводчики для коммерческих дверей; Фурнитура для дверей патио; … Поиск. Фурнитура для штормовых дверей. Показано 1-8 из 89 товаров; Пункты на странице. V170WH ПНЕВМАТИЧЕСКИЙ ДОВОДЧИК ДЛЯ ТЯЖЕЛЫХ УСЛОВИЙ …
Следуйте приведенным ниже инструкциям, чтобы отрегулировать скорость доводчика штормовой двери. Инструкции можно использовать для регулировки как кнопочного, так и удерживающего доводчика.Двойной стандартный доводчик с
Замена дверного доводчика — это простая работа своими руками, которую вы сможете выполнить менее чем за 10 минут. Самая сложная часть — это убедиться, что вы идентифицируете себя, и сегодня мы собираемся показать вам, как выбрать и установить пневматический штормовой или сетчатый доводчик. Эти инструкции довольно стандартны и будут …
Django test дублированное значение ключа нарушает уникальное ограничение
Прогноз запасов Cgc cnn
Daikin fcu revit family
Hygge lake house
Kode syair naga mas hongkong hari ini
Ls всасывающие отверстия для грузовиков
Установка ополаскивателя для посудомоечной машины Bosch
Проверить скорость моей мыши
Какие рыбы находятся в ваттах, бар, озеро
Bloons td 6 cross platform
3D-печатный локомотив в масштабе
Bash case fallthrough
Пятиметровый сценарий радио
Родинки nahco3
Слухи о горячих игрушках
Корзина для плетения, резьба для пистолета
Преобразование xml в tp3
Универсальное оборудование | Uh5062 | Универсальное оборудование для тяжелых условий эксплуатации All-In-One Коммерческий дверной доводчик с отделкой под бронзу
Универсальные крепежные детали Uh5061 и Uh5062, обычные инструкции по установке ближе
Инструкции по установке доводчика универсального оборудования Uh5061 и Uh5062
Универсальные аппаратные средства Uh5061 и Uh5062, параллельная установка, более близкие инструкции по установке
Универсальное крепежное оборудование Uh5061 и Uh5062 Обычные универсальные монтажные панели доводчика Инструкции по установке
Универсальная фурнитура Uh5061 и Uh5062 Top Jamb Универсальная монтажная пластина, доводчик Инструкция по установке
Универсальное оборудование Uh5061 и Uh5062 Параллельная универсальная монтажная плита Инструкция по установке доводчика

Нередко их называют накладными, исходя из способа крепления.
Одним из основных свойств дверного доводчика считается усилие, которое он способен развивать при закрывании двери. Оно позволяет условно разделять доводчики на 7 классов. Выбор оптимального должен основываться на таких показателях, как вес двери и ширина дверного полотна. При этом на самые лёгкие и узкие двери (например, дверцы шкафа) должен устанавливаться доводчик 1 класса, а на самые тяжёлые и широкие – 7 класса. Если габариты и вес двери соответствуют разным классам, лучше отдавать предпочтение высшему, обеспечивая тем самым запас прочности и долговечности. Нежелательно устанавливать невероятно мощный доводчик на лёгкую дверь. Он будет создавать лишнюю нагрузку на петли, провоцируя их преждевременный износ и выход из строя.
Излишнее усердие в этом случае может стать причиной разгерметизации корпуса доводчика, в результате чего случится утечка масла, которая приведет к поломке устройства.